ПРОДАДЕН
Двустаен апартамент до Парадайс Мол
гр. София, кв."Кръстова вада"Жилище на шести етаж с атрактивна локация и прекрасна гледка
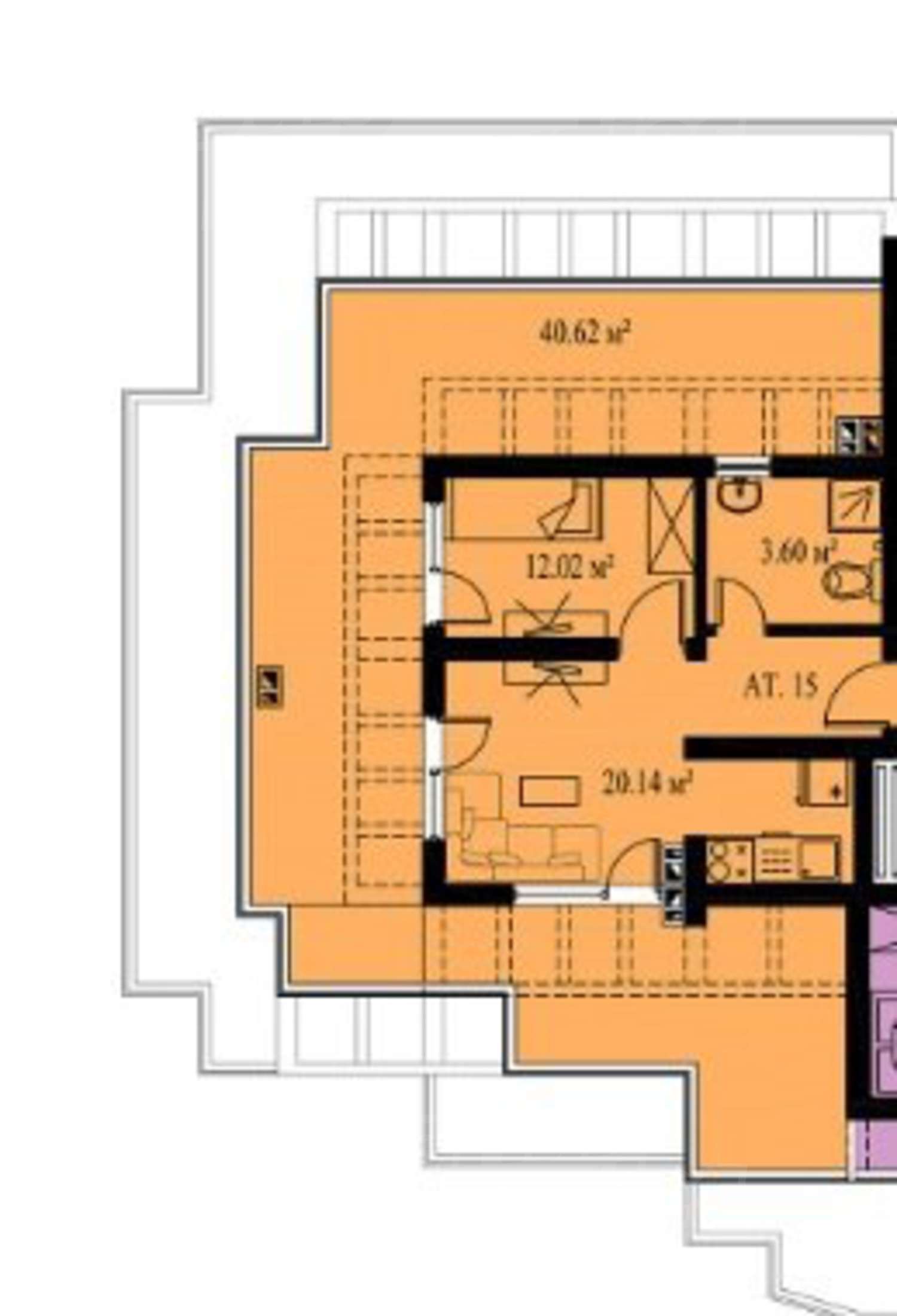
Жилището се намира на шести етаж с площ от 105.55 кв.м. разпределена между:
• хол с кухненски бокс
• спалния
• баня с тоалетна
• антре
• тераса
Апартаментът се продава със следната степен на завършеност
• PVC дограма
• окабеляване за интернет, телевизия и телефон
• стени и подове на шпакловка и замазка
Сградата разполага с добре поддържана градинка, в която има беседка, външно барбекю и детски кът с катерушки. Тиха локация отлична за семейства.
Удобните транспортни връзки в близост до сградата позволяват лесно придвижване до всяка точка на София. Любимият на столичани Южен парк предлага множество възможности за спорт и отдих на открито, а разположените на пешеходно разстояние търговски център и супермаркети ще посрещнат ежедневните ви нужди за комфортен живот и пазаруване.
Оглед на имота
Можем да организираме оглед на имота в удобно за вас време. За целта, свържете се с отговорния за офертата брокер и му кажете кога бихте искали да направите оглед.
Резервация на имота
Имотът може да бъде резервиран и свален от продажба със заплащане на депозит, след което се прекратява провеждането на огледи с други купувачи и започва подготовка на документите за сключване на предварителен и окончателен договор. Свържете се с отговорния брокер за този имот за подробна информация относно процедурата на покупка и начините за плащане.
Допълнителни услуги и следпродажбено обслужване
Ние сме реномирана компания и ще бъдем с вас не само по време на покупката, но и след това, осигурявайки ви допълнителни услуги по ваше изискване с цел пълноценно и безпроблемно ползване на новозакупения имот. Услугите, които можем да предложим, включват застраховка на движимо и недвижимо имущество, застраховка живот, медицинско и автомобилно застраховане, строителни и ремонтни дейности, обзавеждане, юридически и счетоводни услуги и др.
Характеристики на имота
Тип на имота
Двустайни апартаменти
Реф. номер
Sfa 67332
Площ
105.55 м2 (чиста площ: 91.38 м2 плюс общи части: 14.17 м2)
Спални
1
Състояние
БДС (на шпакловка и замазка)
Етаж
6 от 6
Асансьор
да
Обзавеждане
Необзаведен
Отопление
Парно на газ
Тип строителство
Тухла, Ново строителство
Двор
не
Година на построяване
2017
Изложение:
Местоположение
гр. София, кв."Кръстова вада"Изпратете запитване за цени, арх. планове или оглед
Този имот е продаден
Моля свържете се с нас, за да ви предложим други оферти, които отговарят на вашите изисквания.
115 000 €
(224 920,45 лв.)
- €
- $
- £
Този имот е продаден
Моля свържете се с нас, за да ви предложим други оферти, които отговарят на вашите изисквания.
ЗА ПОВЕЧЕ ИНФОРМАЦИЯ
Реф. номер: Sfa 67332
При обаждане, моля цитирайте референтния номер на имота.
