Малка сграда на пешеходно разстояние от удобни спирки на всички видове наземен транспорт и метро. В сградата се предлагат лимитиран брой апартаменти с две спални. Модерна приятна архитектура, качествени вложени строителни материали и оптимални срокове на завършване. Строителството е стартирало, очакваното завършване с Акт 16 е през юни 2020г.
Прекрасен избор за семеен дом в уреден квартал на столицата. Отлично разпределение на жилищните площи. Без комисионна от купувача за клиенти на агенцията.
Сградата е с фасади на изток, запад, север и юг. Предвидена е да бъде изпълнена с монолитна стоманобетонна конструкция, която е съобразена с действащите нормативни изисквания. Всички зидарии са предвидени с висококачествена червена тухла Wienerberger.
Степен на завършване на апартаментите и общите части:
• Стени и тавани – гипсова шпакловка
• Подове – циментова замазка
• Прозорци- PVC дограма – петкамерен профил, с двоен стъклопакет – 24мм, с бяло флоатно „К” стъкло, 50% отваряемост
• Входна врата – противопожарна, съгласно одобрения проект
• Бани и тоалетни – стени – варова мазилка
• Тераси и балкони – под – гранитогрес
• Стълбищна клетка – стени – латексово боядисване; стъпала – гранит; асансьор с автоматични врати, фотоклетки за стълбищното осветление
• Мазе – стени – варова мазилка, под – циментова замазка, метална врата
• Фасада – с топлоизолация и полимерна силикатна мазилка, парапети – стъклени
• Отоплителна инсталация – алуминиеви радиатори; хоризонтални връзки с полиетиленови тръби, оборудвана абонатна станция с изградена връзка към външен топлопровод
• ВиК инсталации – изцяло изградени с полипропиленови водопроводни тръби по проект, до тапа, канализационни разводки, изградени външни връзки към уличните водопровод и канал
• Ел. Инсталация – вътрешна: двойнотарифен електромер с общ часовник, апартаментно електрическо табло, инсталации за телефон, за СОТ, за домофон и за кабелна телевизия, звънчева и заземителна инсталации, изградени външни връзки с ГРТ (главно разпределително табло)
• Външните връзки към уличния канал и водопровод, както и към електрозахранващата мрежа ще бъдат изградени, съгласно одобрените проекти и сключените договори с експлоатационните дружества
Транспорт:
• Трамваи - 1, 6, 7, 9, 11, 12, 14, 19;
• Автобуси - 77, 81, 85, 86, 150, 309, 310
• Тролейбуси - 1, 5, 6
• Метростанция Княгиня Мария Луиза
Кварталът се намира на северозапад от центъра на столицата. Банишора е районът, който се намира най-близо до Централна гара и Централна автогара - София.
Защо да купите апартамент в тази сграда?
• Локация с отлични транспортни връзки и транспорт
• Функционално разпределение на апартаментите
• Район с лесен достъп до всички квартали на София
• Висококачествено строителство, доказан строител
Продажба
Невалидна оферта
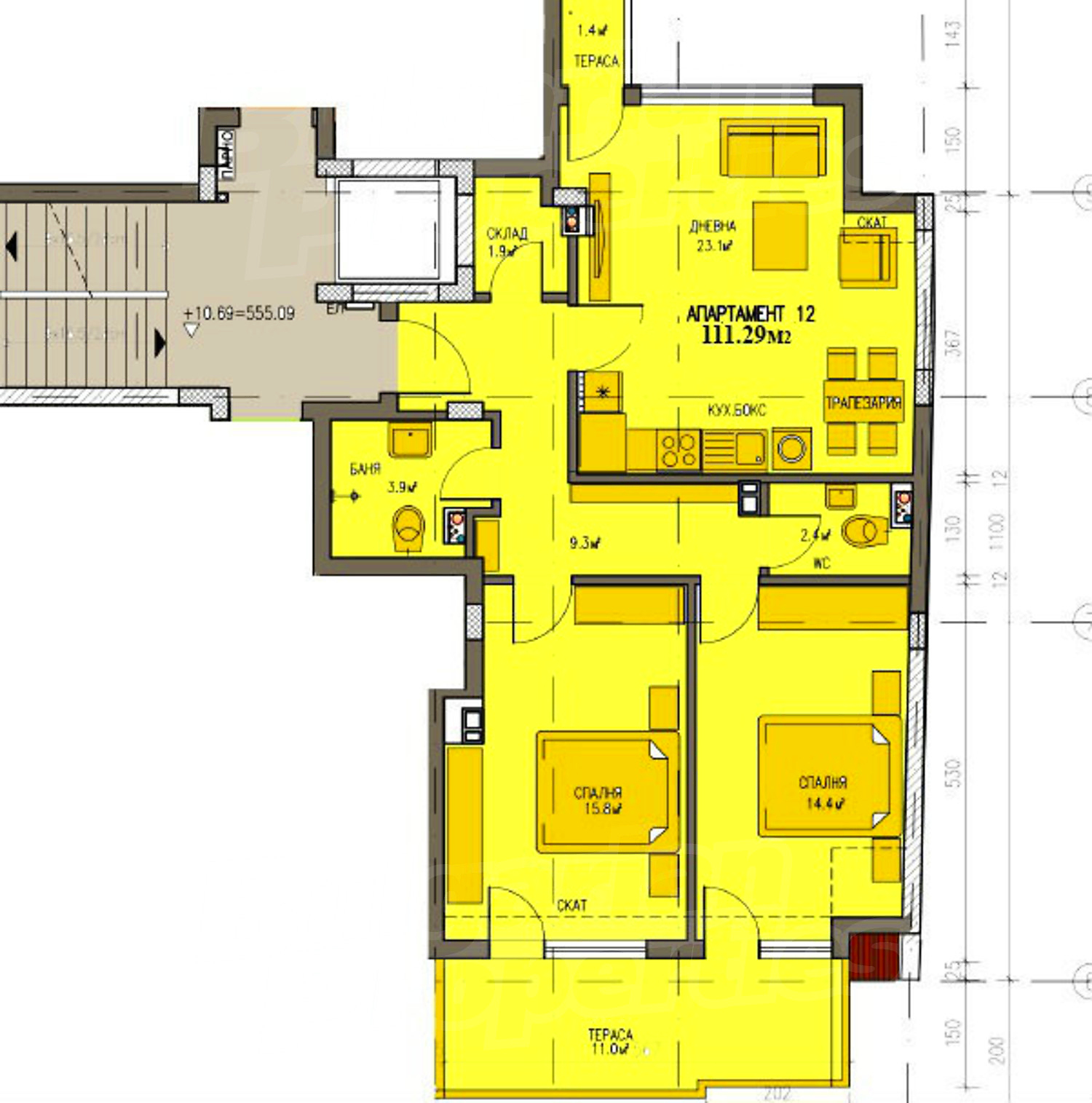
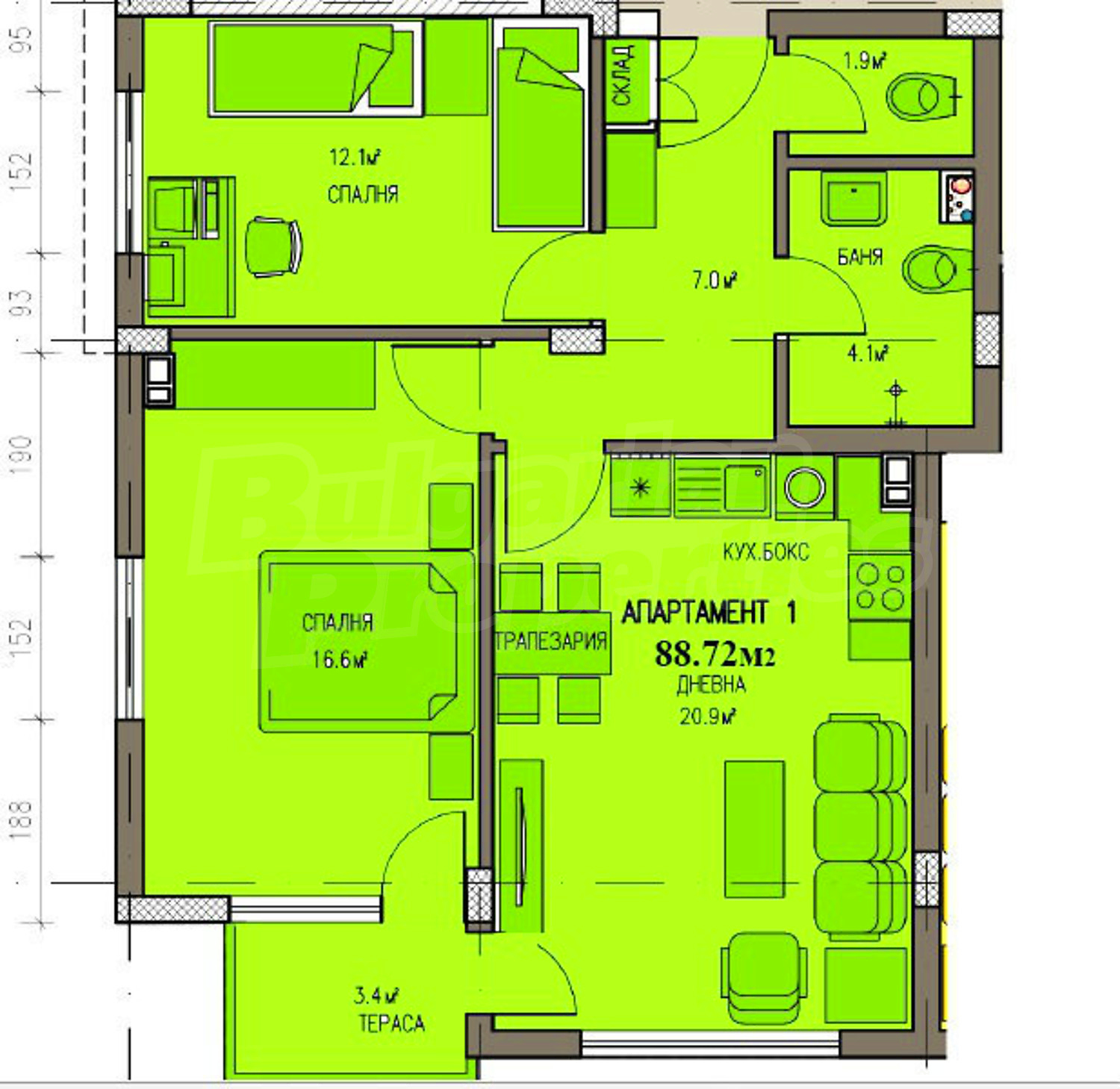
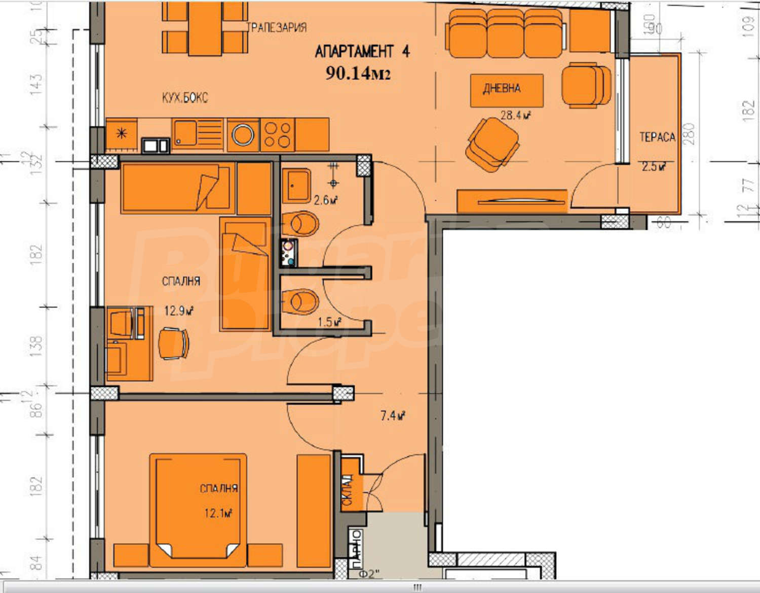
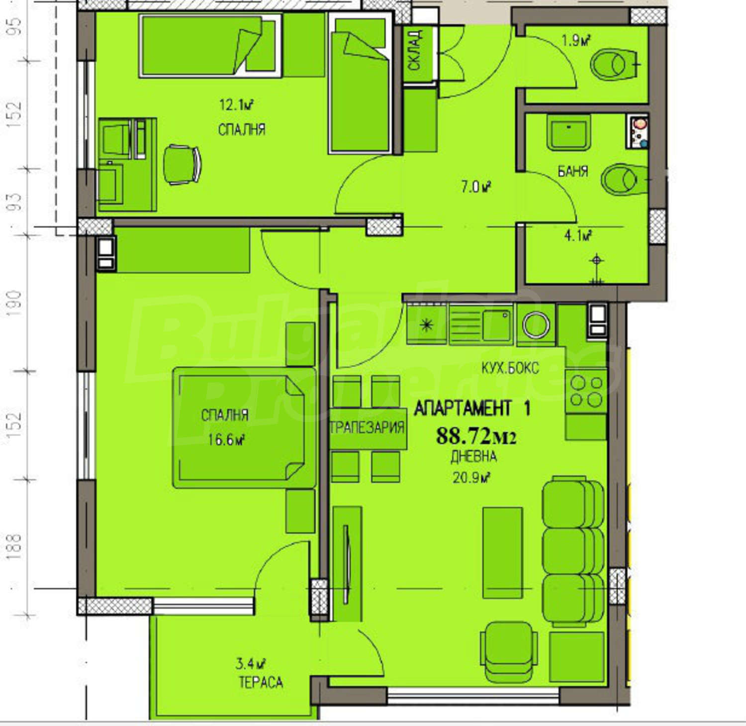
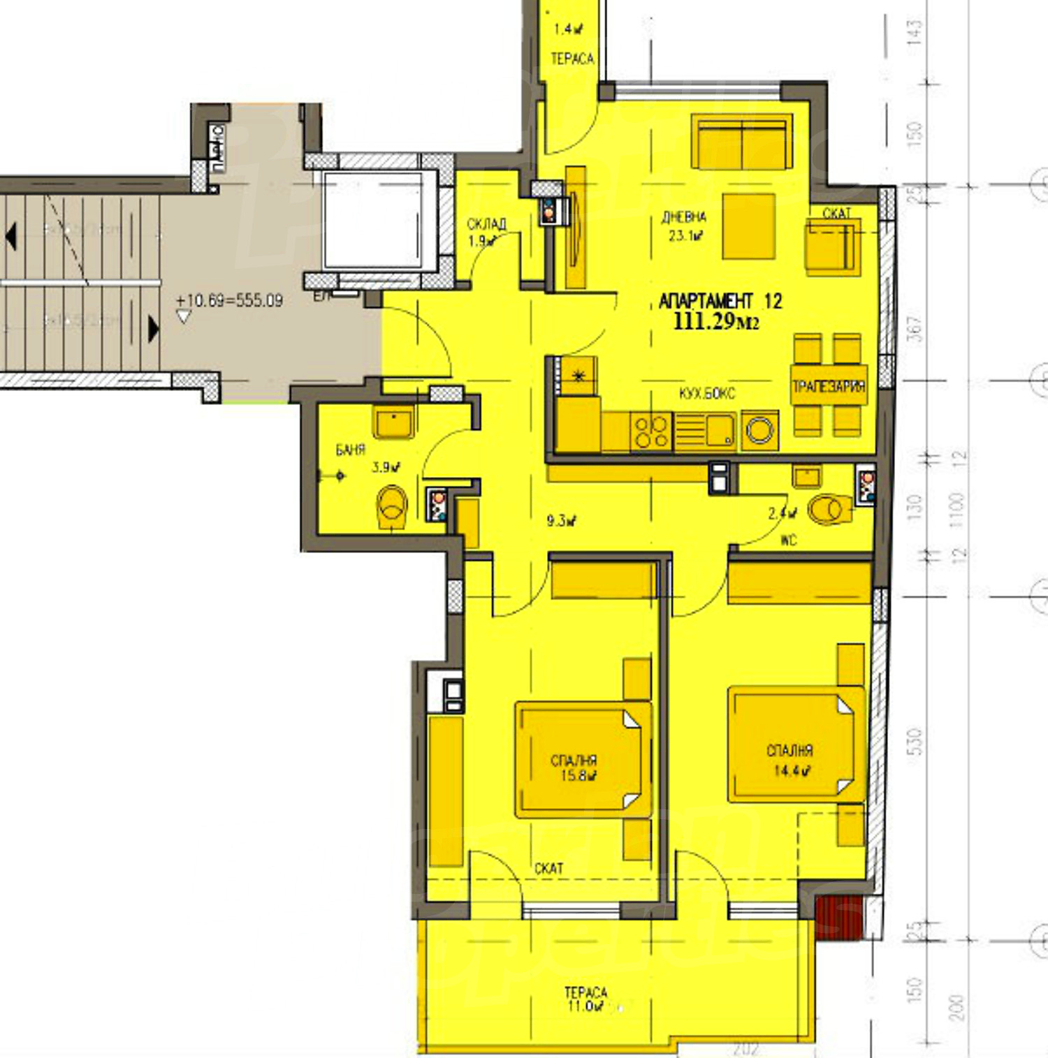
Тристайни апартаменти в нова сграда в кв. Банишора
гр. София, кв."Банишора"Жилища с две спални в малка сграда до ул. Опълченска
Характеристики на имота
Тип на имота
Апартаменти (различни типове), Тристайни апартаменти, Гаражи
Реф. номер
Sfa 70232
Площ
90.14 м2 (чиста площ: 76.3 м2 плюс общи части: 13.84 м2)
Спални
2
Състояние
БДС (на шпакловка и замазка)
Етаж
1 от 5
Асансьор
да
Обзавеждане
Необзаведен
Отопление
ТЕЦ
Тип строителство
Стоманобетонна конструкция, Тухла, Ново строителство
Двор
не
Година на построяване
2020
Местоположение
гр. София, кв."Банишора"Изпратете запитване за цени, арх. планове или оглед
Тази оферта е невалидна
Моля свържете се с нас, за да ви предложим други оферти, които отговарят на вашите изисквания.
Тази оферта е невалидна
Моля свържете се с нас, за да ви предложим други оферти, които отговарят на вашите изисквания.
ЗА ПОВЕЧЕ ИНФОРМАЦИЯ
Реф. номер: Sfa 70232
При обаждане, моля цитирайте референтния номер на имота.