Представяме за продажба мини жилищен комплекс с Акт 16, състоящ се от две сгради (сграда А - шестетажна, сграда Б - четириетажна) в кв. Манастирски ливади. Двете сгради разполагат с двустайни и тристайни апартаменти, а на партер (кота +0,00 м) – надеземни гаражи, на ниво -2,80 м - подземни гаражи (общи за двете сгради). Районът предлага бърз и удобен достъп до централните части на града. Кварталът е застроен с нови модерни жилищни сгради и предлага разнообразие от ежедневни удобства за комфортен начин на живот - спирки на градски транспорт, градинки, детски площадки, магазини, кафенета, заведения, детска градина.
Изпълнението на двете жилищни кооперации включва висококачествени материали за груб строеж и довършителни работи - окачена вентилирана HPL фасада; висок клас мазилки; безшумен хотелски тип асансьор; блиндирана входна врата на „Солид“; парапети – закалено стъкло; немска PVC дограма, 6 камерна, троен стъклопакет 4-ри сезона; изградена инсталация за отопление на газ.
В допълнение може да закупите подземен гараж – 14 000 евро.
Изберете своя нов дом, успешно съчетаващ луксозно строителство, функционалност и удобство, спокойствие и сигурност и комуникативно местоположение сред зеленина, недалеч от планината.
Защо да закупите апартамент в жилищния комплекс?
• Наличие на подземни и надземни гаражи
• Комункативна локация в предпочитана южна зона на София с бърз достъп до центъра на столицата и Витоша планина
• Нови, функционално разпределени жилища, в близост до магазини, училище, детска градина
• Доказана строителна фирма с множество успешни проекти
частни лица
Невалидна оферта
ПРОДАДЕН
Последен апартамент във втора фаза от луксозен жилищен комплекс с Акт 16
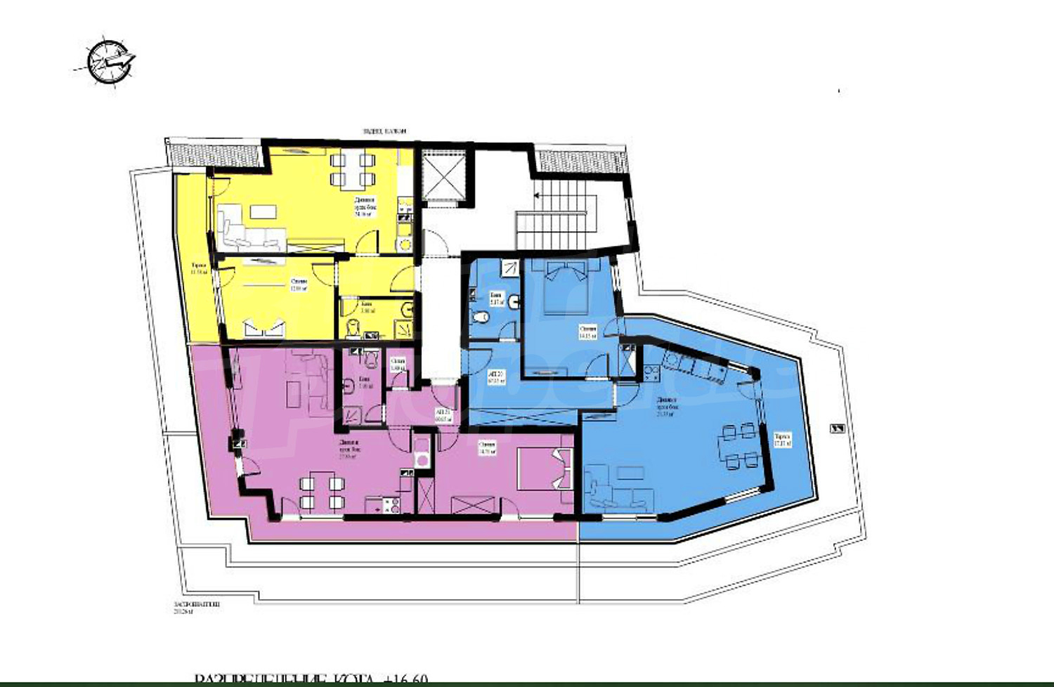
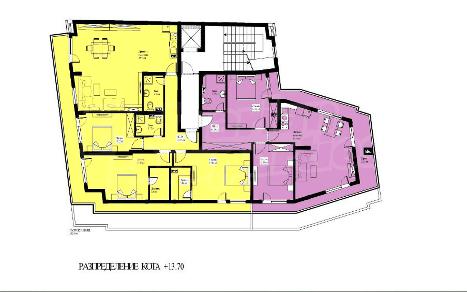
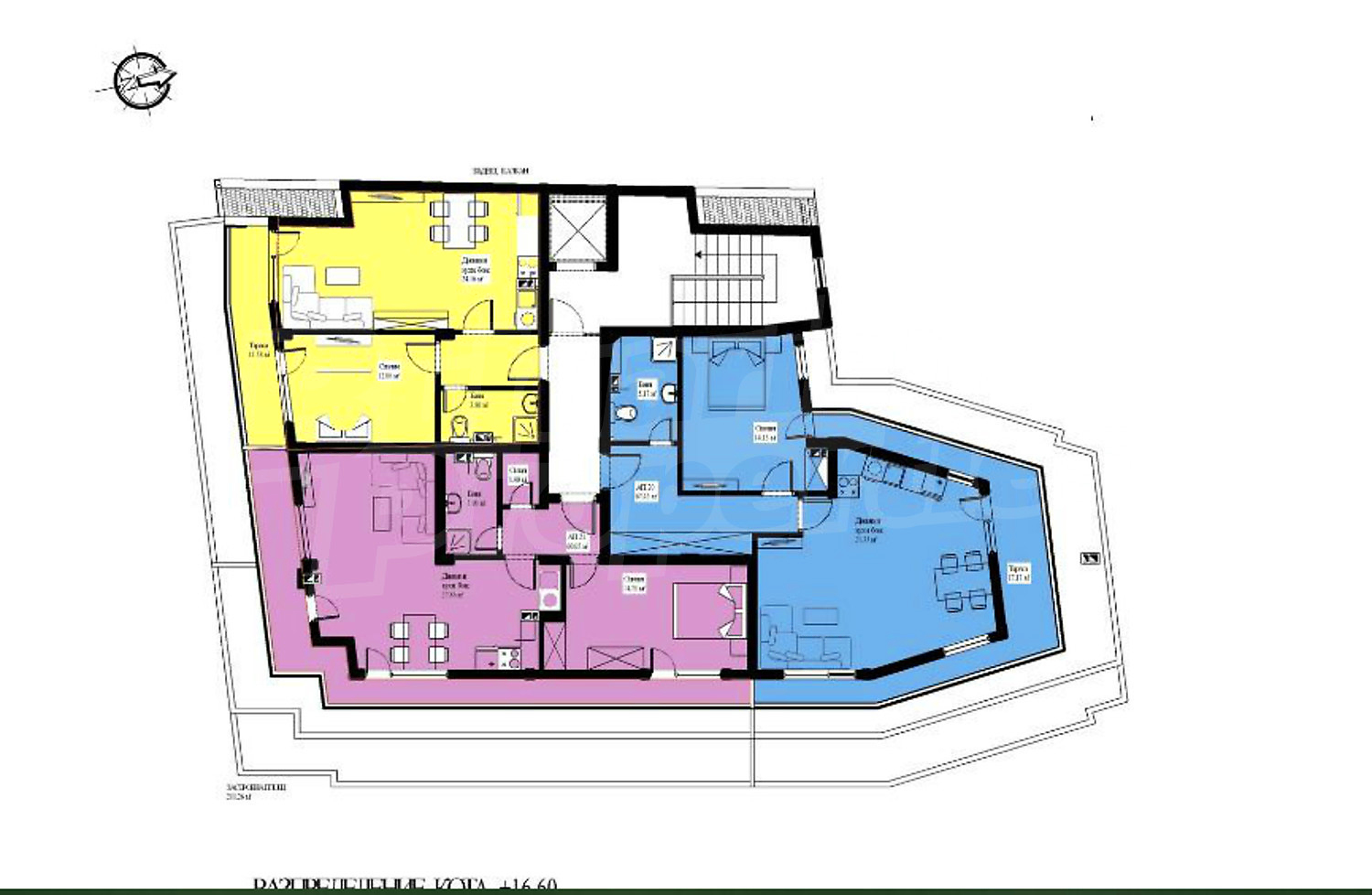
гр. София, кв."Манастирски ливади"Последен двустаен апартамент в кв. Мананстирски ливади
Характеристики на имота
Тип на имота
Апартаменти (различни типове), Двустайни апартаменти, Гаражи
Реф. номер
Sfb 70931
Площ
79.81 м2 (чиста площ: 67.45 м2 плюс общи части: 12.36 м2)
Спални
1
Състояние
БДС (на шпакловка и замазка)
Етаж
6 от 6
Асансьор
да
Обзавеждане
Необзаведен
Отопление
Парно на газ
Тип строителство
Тухла, Ново строителство
Двор
не
Година на построяване
2020
Местоположение
гр. София, кв."Манастирски ливади"Изпратете запитване за цени, арх. планове или оглед
Тази оферта е невалидна
Моля свържете се с нас, за да ви предложим други оферти, които отговарят на вашите изисквания.
Тази оферта е невалидна
Моля свържете се с нас, за да ви предложим други оферти, които отговарят на вашите изисквания.
ЗА ПОВЕЧЕ ИНФОРМАЦИЯ
Реф. номер: Sfb 70931
При обаждане, моля цитирайте референтния номер на имота.