Предлагаме за продажба двустаен апартамент ново строителство в кв. Възраждане 4. Сградата е на 5 етажа, като на първи има закрити паркоместа. До края на месец септември сградата ще има акт 15.
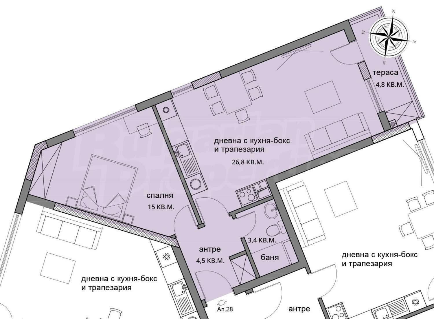
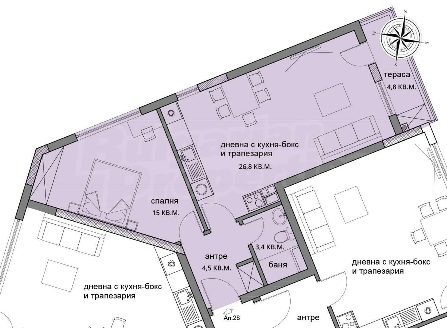
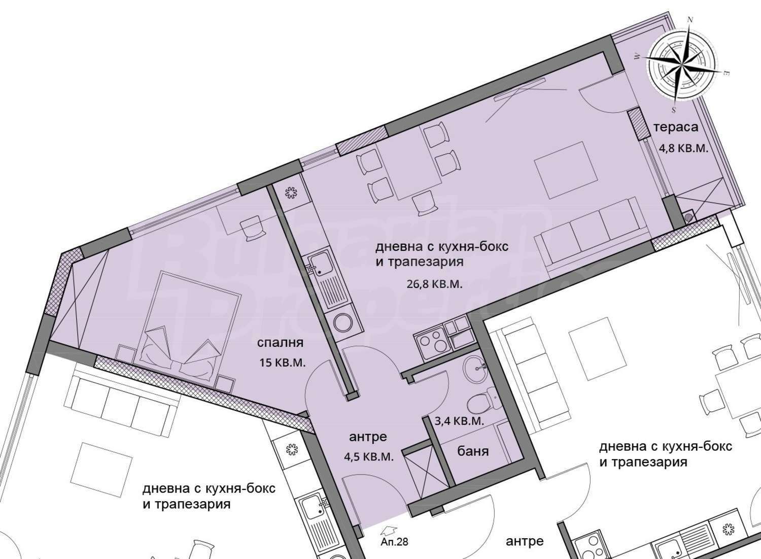
Апартаментът е с площ от 70.68м2 с включени общи части, намира се на четвърти етаж и се състои от:
• антре
• просторна дневна с остъклена тераса
• спалня
• баня с тоалетна
Жилището се предава завършено по БДС:
• Поставена е седемкамерна дограма REHAU с троен стъклопакет
• Стените са на фина шпакловка
• Положена е изолация на подовото пространство
• изводи за климатици и пожароизвестяване
В сградата е поставен безшумен асансьор на фирмата Liftkom. Всички общи части ще бъдат луксозно завършени. Сградата ще бъде снабдена с видеоконтрол и цветен видеодомофон. В сградата има и други двустайни и тристайни апартаменти. Възможност за разсрочено плащане.
Отлична инфраструктура на района, близост до градски транспорт, училища, детски градини, медицински учреждения, спортни съоръжения, детски площадки, супермаркети, търговски център, ресторанти, басейн и други.
Приблизително разстояние с кола:
• Западен Парк – 3 мин.
• Басейн "Делфин" – 3 мин.
• Кауфланд и Лидъл – 4 мин.
• Техномаркет, Технополис и Зора – 7 мин.
• Метро – 8 мин.
• Медицински център "Младост" – 7 мин.
• Гранд Мол – 13 мин.
• Център Катедрала – 17 мин.
Оглед на имота
Можем да организираме оглед на имота в удобно за вас време. За целта, свържете се с отговорния за офертата брокер и му кажете кога бихте искали да направите оглед.
Резервация на имота
Имотът може да бъде резервиран и свален от продажба със заплащане на депозит, след което се прекратява провеждането на огледи с други купувачи и започва подготовка на документите за сключване на предварителен и окончателен договор. Свържете се с отговорния брокер за този имот за подробна информация относно процедурата на покупка и начините за плащане.
Допълнителни услуги и следпродажбено обслужване
Ние сме реномирана компания и ще бъдем с вас не само по време на покупката, но и след това, осигурявайки ви допълнителни услуги по ваше изискване с цел пълноценно и безпроблемно ползване на новозакупения имот. Услугите, които можем да предложим, включват застраховка на движимо и недвижимо имущество, застраховка живот, медицинско и автомобилно застраховане, строителни и ремонтни дейности, обзавеждане, юридически и счетоводни услуги и др.
ПРОДАДЕН
Двустаен апартамент в нова сграда в гр. Варна
гр. Варна, кв."Възраждане 4"Жилище в модерна жилищна сграда с контролиран достъп в кв. Възраждане 4
Характеристики на имота
Тип на имота
Двустайни апартаменти
Реф. номер
Vna 72717
Площ
70.68 м2 (чиста площ: 8.54 м2 плюс общи части: 62.14 м2)
Спални
1
Състояние
БДС (на шпакловка и замазка)
Етаж
4
Асансьор
да
Обзавеждане
Необзаведен
Отопление
Климатици
Тип строителство
Тухла, Ново строителство
Двор
не
Година на построяване
2019
Местоположение
гр. Варна, кв."Възраждане 4"Изпратете запитване за цени, арх. планове или оглед
Този имот е продаден
Моля свържете се с нас, за да ви предложим други оферти, които отговарят на вашите изисквания.
41 702 €
(81 562,02 лв.)
- €
- $
- £
Този имот е продаден
Моля свържете се с нас, за да ви предложим други оферти, които отговарят на вашите изисквания.
ЗА ПОВЕЧЕ ИНФОРМАЦИЯ
Реф. номер: Vna 72717
При обаждане, моля цитирайте референтния номер на имота.