Домът, който наистина заслужавате!
AМur Gardens е повече от място за живеене – това е начин на живот, който съчетава комфорт, качество и удобства. Това е вашият дом – в малък град близо до динамиката на столицата. Инвестирайте в бъдещето си още днес!
Комплексът е с получен Акт 14!
Уникален комплекс с много удобства в гр. Костинброд. Домове като тези, се създават за да се изпълнят със смях, музика, танци и щастливи мигове. Качество, комфорт, спокойствие, зелени площи и всичко това сред красива природа близо до столицата.
Поради изключителното си местоположение точно до BILLA парк, комплексът предлага кобинация от градски удобства, магазини и търговски обекти, зелена среда, спокойствие и уют.
Удобство на една ръка разстояние, всичко необходимо близо до вас!
Комплексът включва:
• Жилища с 1, 2 и 3 спални, както и студиа – перфектни за семейства, млади професионалисти и инвеститори.
• Четири сгради с модерен дизайн, висококачествени материали и зелени площи.
• Над 250 подземни и 21 наземни паркоместа, както и зарядна станция за електромобили.
• Търговски обекти, кафене, детски център и външен фитнес – всичко необходимо за удобството на жителите.
• Детска площадка за игри и забавления.
• Барбекю зона за незабравими мигове с близки и приятели.
• Красиво озеленени общи части за отдих и релакс.
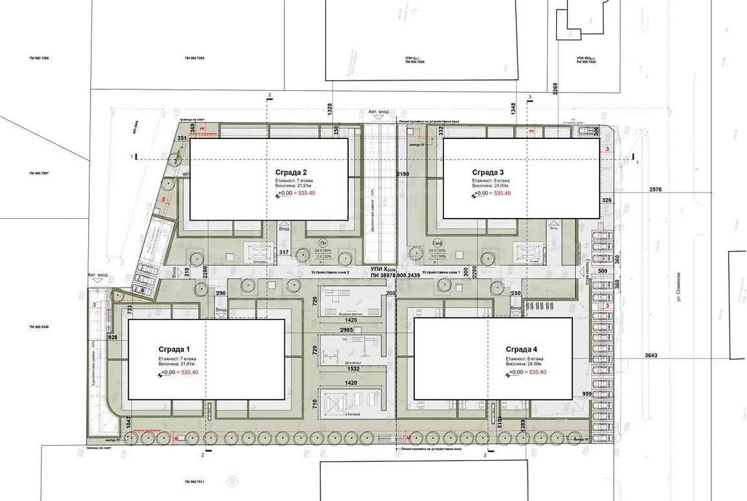
Сграда 1
- Застроена площ - 675,13 кв. м.
- Разгъната застроена площ - 4 665,51 кв. м.
- Светли етажни височини - усещане за простор и комфорт – 3,22 м на 1-ви етаж и 2,72 м на етажи от 2-ри до 7-ми.
- Апартаменти - 60 бр.
- Гаражи - 15 бр.
Решена е на 7 етажа, с един вход, подземен паркинг, на партерно ниво са разположени фоайе, обслужващи помещения, 8 апартамента със самостоятелни дворове. На останалите 6 етажа са разположени още 52 бр. апартамента. Общ брой апартаменти 60. Вертикалните комуникации са осигурени посредством двураменно стълбище и два асансьора.
Сграда 2
- Застроена площ - 697,6 кв. м.
- Разгъната застроена площ - 4 817,15 кв. м.
- Светли етажни височини - усещане за простор и комфорт – 3,22 м на 1-ви етаж и 2,72 м на етажи от 2-ри до 7-ми.
- Апартаменти - 60 бр.
- Гаражи - 8 бр.
Решена е на 7 етажа, с един вход, подземен паркинг, на партерно ниво са разположени фоайе, обслужващи помещения, детски център, 6 бр. апартаменти със самостоятелни дворове. На останалите 6 етажа са разположени още 48 бр. апартамента и 6 бр. студиа. Общ брой апартаменти 60. Вертикалните комуникации са осигурени посредством двураменно стълбище и два асансьора.
Сграда 3
- Застроена площ - 675,13 кв. м.
- Разгъната застроена площ - 5 379,69 кв. м.
- Светли етажни височини - усещане за простор и комфорт – 3,20 м на 1-ви етаж и 2,60 м на етажи от 2-ри до 8-ми.
- Апартаменти - 69 бр.
- Гаражи - 11 бр.
Решена е на 8 етажа, с един вход, подземен паркинг, на партерно ниво са разположени фоайе, обслужващи помещения, 6 бр. апартаменти със самостоятелни дворове, 2 бр. магазини със самостоятелни входове. На останалите 7 етажа са разположени още 63 бр. апартамента. Общ брой апартаменти 69. Вертикалните комуникации са осигурени посредством двураменно стълбище и два асансьора.
Сграда 4
- Застроена площ - 697,61 кв. м.
- Разгъната застроена площ - 5 559,38 кв. м.
- Светли етажни височини - усещане за простор и комфорт – 3,20 м на 1-ви етаж и 2,60 м на етажи от 2-ри до 8-ми.
- Апартаменти - 67 бр.
- Апартамент за хора в неравностойно положение - 1 бр.
- Гаражи - 20 бр
Решена е на 8 етажа, с един вход, подземен паркинг, на партерно ниво са разположени фоайе, обслужващи помещения, 5 бр. апартаменти със самостоятелни дворове, 1 от които е достъпен апартамент, 2 бр. магазини със самостоятелни входове, кафене. На останалите 7 етажа са разположени още 56 бр. апартамента и 6 бр. студиа. Общ брой апартаменти 67 бр. Вертикалнитекомуникации са осигурени посредством двураменно стълбище и два асансьора.
Плановите решения на сградите са ортогонални и ориентирани в най-благоприятните географски посоки. За достъп до всяка сграда е проектирана вътрешна мрежа от пешеходни връзки. На партерно ниво са разположени търговски площи, кафене и детски център, всеки обект е със самостоятелен вход. Паркирането се осигурява, чрез едно подземно ниво и паркоместа, разположени на терен. Автомобилният достъп до подземния паркинг се осъществява чрез една двулентова и една еднолентова рампа от тупиковата улица, разположена западно от имота.
Осигурени са автомобилни паркоместа (254 подземни, в т.ч. чрез 20 платформи за зависимо паркиране, и 21 наземни, в т.ч. 1 паркомясто, оборудвано със зарядна точка за ЕПС). Осигурени са и 49 велосипедни паркоместа.
За покупка се предлагат:
• Подземни паркоместа на цени от 23 600 евро/46,157.58 лв
• Гаражи на цени от 29 000 евро / 56,719.07 лв
• Складове на цени от 3 500 евро / 6,845.40 лв
Костинброд е малък, спокоен, но динамично развиващ се град в западна България, част от Софийска област. Благодарение на близостта си до столицата София (на около 15 км), градът се превръща във все по-привлекателно място за живеене и бизнес.
Отличен избор за хора, които търсят баланс между градската динамика и спокойствието на по-малко населено място. Благодарение на добрата си инфраструктура и близостта до София, градът предлага удобства, подходящи както за живеене, така и за бизнес.
Очаквани срокове на строителство:
• Акт 14 - получен
• Акт 15 - август 2027 г.
• Акт 16 - в края на 2027 г.
Техническа спецификация:
Всеки детайл е премислен. Всяка връзка е уплътнена. Всяка зона е защитена.
Жилищата се издават по БДС:
• Тухли Wienerberger или съотносими;
• Фасада - изградена с материали и технологии, които обикновено се срещат в проекти от най-висока категория. Клинкерни слипове и фасаден гранитогрес - изключително здрави и елегантни материали, устойчив на атмосферни въздействия, UV лъчение и температурни амплитуди. Никаква поддръжка, никакво избледняване. Под тази красива обвивка се крие 12 сантиметра топлоизолация - стандарт, който означава по-ниски сметки за отопление и охлаждане всеки месец, всяка година.
• Дограмата - PVC Kommerling 88 с троен стъклопакет, топли дистанционери и аргонова камера - тиха, топла и сигурна. На партерно ниво - алуминиева дограма ETEM E85 със същата висококачествена стъклена система.
• Стъклените парапети на лоджиите са от триплекс 8.2.8 - категорията, която се използва при най-взискателните проекти. Закрепени с алуминиева шина върху стоманобетонен борд, с фина ръкохватка като завършек - безопасни, здрави и красиви.
• Входни врати - Солид/SOLID, Dierre или съотносими;
• Инсталации за кабелна телевизия и интернет;
• Мълниезащитна и заземителна инсталация;
• Ел инсталации, съгласно одобрен проект - с монтирани ключове и контакти;
• ВиК инсталация - изпълнена по проект, до тапа;
• Отопление - газ и климатици;
• Изградена газова инсталация с индивидуални газови котлета /без поставени котли и радиатори/;
• Изградени тръбни пътища за климатиците;
• Най-висок клас асансьори Schindler, или съотносими;
• Луксозни общи части, по архитектурен проект.
• Под - 9-милиметрова шумоизолираща мембрана от високотехнологична гума от италианския технологичен лидер Isolgomma - абсорбира ударния шум (стъпки, детски игри, местене на столове) с до 31 децибела. Изолацията работи и в двете посоки – Вашите стъпки и активност вкъщи няма да притесняват хората под Вас. Материалът е сертифициран за чистота на въздуха (Class I за VOC емисии), гарантирайки, че във Вашия дом няма да има вредни изпарения. Благодарение на италианското качество, изолацията няма да загуби своята форма или ефективност след 5, 10 или 20 години.
Схеми на плащане:
Резервация на апартамент:
Всеки от апартаментите в проекта може да бъде резервиран веднага с невъзвръщаем депозит от 2 000 евро, платим в брой или по банков път. С платения депозит апартаментът ще бъде резервиран за период от 2 седмици до подписване на предварителния договор. Депозитът, представлява част от първата вноска.
Стандартен:
• 25% - предварителен договор
• 25% - кота Било
• 30% - Акт 14
• 10% - Акт 15
• 10% - Акт 16 (Удостоверение за въвеждане в експлоатация)
При ползване на банково финансиране:
• 25% самоучастие на предварителен договор
• 75% с ипотечен кредит след Акт 16 (Удостоверение за въвеждане в експлоатация)
С отстъпка от 2%:
• 80% - предварителен договор
• 20% - Акт 16 (Удостоверение за въвеждане в експлоатация)
С отстъпка от 1%:
• 30% предварителен договор
• 30% кота Било
• 30% Акт 14
• 10% Акт 15
През последните години се утвърди като привлекателен индустриален център, няколко големи компании откриха нови бази тук привличайки значителни инвестиции и създавайки хиляди работни места. Тези инвестиции допринасят за икономическото развитие на града, превръщайки го в ключов индустриален център в близост до София.
Защо да изберете дом в AМur Gardens?
• Отлична локация на 15 км от София.
• Малък град с налични удобства, както и търговски център BILLA парк точно до комплекса
• Четирите сгради ще бъдат изградени с висококачествени материали, осигуряващи дълготрайност и енергийна ефективност
• Апартаментите са просторни, с функционални разпределения, големи прозорци и изобилие от естествена светлина
• Съвременните технологии, контрол на достъпа и модерни асансьори, гарантират безопасност и удобство
• Детска площадка за забавление на най-малките
• Озеленените общи части създават усещане за уединение и хармония с природата
• Разположение близо до зелени хълмове и паркове, предоставящо възможности за разходки, спорт и отдих
• Търсенето на имоти в региона нараства, което прави покупката на жилище в комплекса отлична инвестиция както за лично ползване, така и за отдаване под наем.
• Спокойна и безопасна среда, идеална за отглеждане на деца и хора, които ценят личното си пространство
• Концепцията на комплекса осигурява уединение и сигурност, докато близостта до столицата ви дава бърз и удобен достъп до всичко необходимо.
Оглед на имота
Можем да организираме среща и оглед на терена. За целта, свържете се с отговорния за офертата брокер и му кажете кога бихте искали да направите оглед.
Резервация на имота
Жилище в комплекса може да бъде резервирано и свалено от продажба със заплащане на депозит, след което се прекратява предлагането му на други купувачи и започва подготовка на документите за сключване на предварителен договор. Свържете се с отговорния брокер за този имот за подробна информация относно процедурата за резервация и начините за плащане.
Продажба
ЕксклузивноХит
Лукс
AMur Gardens - висок клас комплекс със зеленина, детска площадка и магазини в Костинброд
Близо до гр. СофияЖилища с 1, 2, 3 спални - идеалният баланс между близост до София и спокойствието на малкия град
Характеристики на имота
Тип на имота
Апартаменти (различни типове), Двустайни апартаменти, Тристайни апартаменти, Четиристайни апартаменти, Многостайни апартаменти, Магазини
Реф. номер
Sfa 82112
Площ
58.52 м2 (чиста площ: 49.11 м2 плюс общи части: 9.41 м2)
Спални
1,2,3
Състояние
БДС (на шпакловка и замазка)
Етаж
2 от 8
Асансьор
да
Обзавеждане
Необзаведен
Отопление
Климатици / Парно на газ
Тип строителство
Тухла, Ново строителство
Година на построяване
2027
Такса поддръжка
0.51€ ; 1 лв/кв. м./месец
Енергиен клас
A
Местоположение
Близо до гр. СофияИзпратете запитване за цени, арх. планове или оглед
99 900 - 309 068 €
(195 387,42 - 604 484,47 лв.)
(1 670 - 2 218 €/м2)
(3 266,24 - 4 338,03 лв./м2)
- €
- $
- £
В процес на строителство
Планирано завършване: 01.12.2027 г
Без комисионна
ЗА ПОВЕЧЕ ИНФОРМАЦИЯ
Реф. номер: Sfa 82112
При обаждане, моля цитирайте референтния номер на имота.