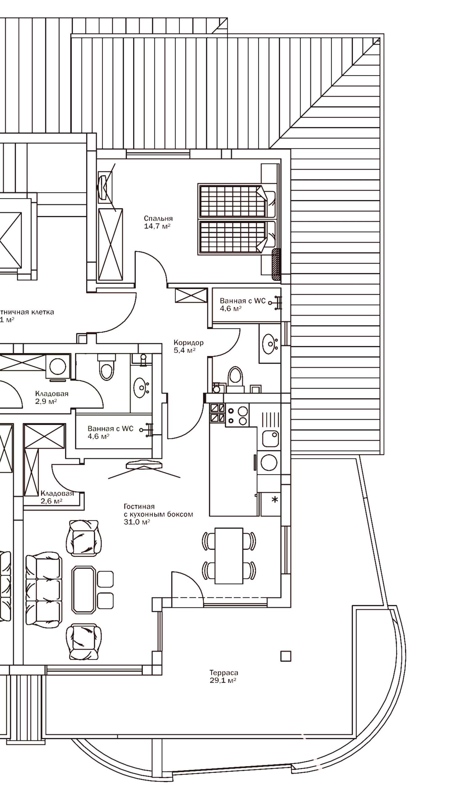
апартамент 16 , гледка към море, обща площ 111.29 кв.м. (нетна площ 97.26 кв.м.).
Радваме се да ви представим изключително висок клас имоти на първа линия море, на метри от плажа в Шкорпиловци. Разкошен комплекс, разположен в непосредствена близост до един от най-красивите плажове на черноморския бряг и био резервата „Камчийски пясъци“. Един проект, олицетворяващ хармонията на природата с ежедневния лукс и удобства.
Комплексът се състои от 10 дизайнерски сгради с великолепно ландшафтно озеленяване с бутикови растения. Предпочитан оазис както от семейства с деца, така и от двойки, които са ценители на дискретното му разположение, уютността и в същото време лукса, уникалният СПА център, превъзходната кухня и качеството на предлаганите услуги.
Ваканционните жилища се предлагат за продажба с качествени довършителните работи, напълно обзаведени с нови и стилни мебели и оборудване.
Комплексът е целогодишен, предлага първокласни удобства:
• 2 големи ресторанта с прекрасна морска панорама
• коктейл бар
• пицария
• СПА център и балнеология
• фитнес зала
• магазини
• детска градина
• плажни барове
• яхт клуб
• паркинг
С удобното си курортно местоположение на 40 км от Варна и 12 км от Камчия, комплексът е подходящ за спокойна почивка на брега на морето. Шкорпиловци съчетава всичко търсено за един пълноценен отдих - дълга плажна ивица, планински район и минерални извори, които са с много добри свойства и благоприятно въздействие върху здравето на човека.
Защо да купим имот в комплекса?
• луксозни апартаменти
• ценови диапазон, подходящ за всеки бюджет
• лесен достъп до плажната ивица
• 40 км от Международно летище Варна
• здравословна среда, съчетаваща морски и планински въздух
• ваканционно селище близо до панорамния път Варна-Бургас, между Камчия и Бяла
• идеално място за риболов и за разходки по плажа.
Оглед на имота
Можем да организираме оглед на имота в удобно за вас време. За целта, свържете се с отговорния за офертата брокер и му кажете кога бихте искали да направите оглед.
Резервация на имота
Имотът може да бъде резервиран и свален от продажба със заплащане на депозит, след което се прекратява провеждането на огледи с други купувачи и започва подготовка на документите за сключване на предварителен и окончателен договор. Свържете се с отговорния брокер за този имот за подробна информация относно процедурата на покупка и начините за плащане.
Продажба
ПЪРВА ЛИНИЯ
Двустаен апартамент в Жилища на първа линия море в елитен комплекс
с. ШкорпиловциАпартаменти в целогодишен комплекс на метри от плажа
Характеристики на имота
Тип на имота
Двустаен апартамент
Реф. номер
Vna 70822
Площ
111.29 кв.м.
Спални
1
Състояние
отлично
Етаж
6 от 5
Асансьор
да
Обзавеждане
Напълно обзаведен
Отопление
Климатици
Тип строителство
Тухла, Ново строителство
Изложение:
Изток, Запад, Север, Юг
Година на построяване
2013
Акт 16
да
Местоположение
с. ШкорпиловциУдобства в района
- Болница "Отделение УМБАЛ "Света Марина"" на 1.1 км. (14 мин.)
- Медицински център на 467 м. (6 мин.)
- Хранителен магазин "Kiosk" на 369 м. (5 мин.)
- Супермаркет на 204 м. (3 мин.)
- Супермаркет "Аглая" на 264 м. (4 мин.)
- Ресторант "Veni Vidi Vici" на 277 м. (4 мин.)
- Ресторант "Златната рибка" на 312 м. (4 мин.)
- Кафене на 375 м. (5 мин.)
- Бар "Орхидея" на 496 м. (6 мин.)
- Плувен басейн на 278 м. (4 мин.)
- Кино "Лятно кино" на 256 м. (4 мин.)
- Паркинг на 276 м. (4 мин.)
- Зарядна станция "Fines - Shkorpilovtsi" на 309 м. (4 мин.)
ЛЕЧЕБНИ ЗАВЕДЕНИЯ
ПАЗАРУВАНЕ
ЗАВЕДЕНИЯ
СПОРТ И СВОБОДНО ВРЕМЕ
АВТОМОБИЛНИ УСЛУГИ
Изпратете запитване
179 000 €
(350 093,57 лв.)
- €
- $
- £
Завършен с АКТ 16
Дата на завършване: 15.08.2013 г
Дължима комисиона
*/ ?>
ЗА ПОВЕЧЕ ИНФОРМАЦИЯ
Реф. номер: Vna 70822
При обаждане, моля цитирайте референтния номер на имота.
Юлияна Куртева
Офис Варна бул. "Владислав Варненчик" 110, етаж 2, офис 4, Варна 9000 Всички оферти (157)
Налични имоти в комплекса
93
имота
34
свободни
59
продадени
0
резервирани