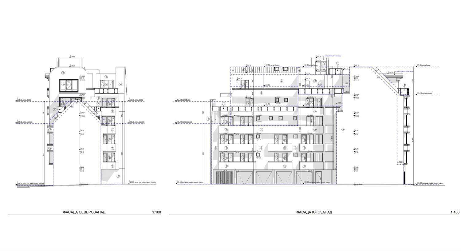
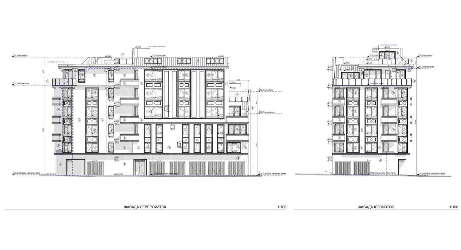
Представяме на вашето внимание нов жилищен проект в централния район на Колхозен пазар в морската столица Варна - изключително комуникативен район, в непосредствена близост до училища, детски градини, градски транспорт, търговски центрове и хранителни магазини. За продажба се предлагат двустайни, тристайни апартаменти и един четиристаен мезонет, разпределени в модерната 6-етажна сграда в процес на строителство (Акт 16 – май, 2022) с модерна и изчистена визия и функционално архитектурно решение, в съчетание с прецизно строителство и висококачествени материали. 
Строителството включва: 
• Монолитна стоманобетонова носеща конструкция
• Тухла - керамични блокове на Wienerberger - Porotherm, характеризиращи се с висока механична якост, ниска топлопроводимост
• Топло и хидроизолирана
• Фасада - система минерална мазилка с топлоизолация
• Модерен асансьор
• Луксозно изпълнени общи части с настилка от естествен камък, парапети от ковано желязо
Жилищата се предлагат по БДС:
• входни врати
• 5 камерна ПВЦ дограма златен дъб
• стени и тавани - мазилка, гипсова шпакловка, боядисани в бяло
• подове - циментова замазка
• окабеляване за кабелна телевизия и интернет
• отопление на климатици
В допълнение има възможност да закупите подземни паркоместа – 10000 евро, гараж – 24000 евро, както и партерно покрито паркомясто – 12000 евро и гаражи – 16000-22000 евро.
Кварталът се намира в южната част на Варна, южно от бул. „Владислав Варненчик“. Застроен е предимно с къщи и нови 4-5 етажни кооперации. Основната автобусна линия, минаваща през квартала е N 39. Квартал "Христо Ботев" е на около 10-15 минути пеша от Центъра. В района се намира средно училище – СОУ Елин Пелин, детска градина "Христо Ботев" и 5-та градска Поликлиника.
Оглед на имота
Можем да организираме оглед на имота в удобно за вас време. За целта, свържете се с отговорния за офертата брокер и му кажете кога бихте искали да направите оглед.
Резервация на имота
Имотът може да бъде резервиран и свален от продажба със заплащане на депозит, след което се прекратява провеждането на огледи с други купувачи и започва подготовка на документите за сключване на предварителен и окончателен договор. Свържете се с отговорния брокер за този имот за подробна информация относно процедурата на покупка и начините за плащане. 
Допълнителни услуги и следпродажбено обслужване
Ние сме реномирана компания и ще бъдем с вас не само по време на покупката, но и след това, осигурявайки ви допълнителни услуги по ваше изискване с цел пълноценно и безпроблемно ползване на новозакупения имот. Услугите, които можем да предложим, включват получаване на одобрение за ипотечен кредит, застраховка на движимо и недвижимо имущество, застраховка живот, медицинско и автомобилно застраховане, строителни и ремонтни дейности, обзавеждане, юридически и счетоводни услуги и др.
									
									
								
									
									
									
																											
									
									
									
									
																			ПРОДАДЕН
										
								
								
								
								
																Нов жилищен проект в района на Колхозен пазар
гр. Варна, кв."Колхозен пазар"Луксозни жилища, паркоместа и гаражи в модерна сграда в централна част на Варна
Характеристики на имота
										
											Тип на имота										
										
											Апартамент, Двустаен апартамент, Тристаен апартамент, Четиристаен апартамент, Мезонет, Гараж										
									
									
										
											Реф. номер										
										
											Vna 74850										
									
									
										
											Площ										
										
											97.37 м2 (чиста площ: 86.5 м2 плюс общи части: 10.87 м2)
										
									
																			
											
												Спални											
											
												1											
										
																			
										
											Състояние										
										
											БДС (на шпакловка и замазка)										
									
									
																			
											
												Етаж											
											
												2,6												 от 6											
										
																				
											
												Асансьор											
											
												да											
										
																				
											
												Обзавеждане											
											
												Необзаведен											
										
																				
											
												Отопление											
											
												Климатици											
										
																				
											
												Тип строителство											
											
												Тухла, Стоманобетонна конструкция, Ново строителство											
										
																				
											
												Двор											
											
												не											
										
																					
												
													Година на построяване												
												
													2022												
											
																			Местоположение
гр. Варна, кв."Колхозен пазар"Удобства в района
- Автобусна спирка "ПАТРИАРХ ЕВТИМИЙ-2" на 320 м. (4 мин.) - Автобус No: 22
- Детска градина на 280 м. (4 мин.)
- Детска градина "ЦДГ 8 - Христо Ботев" на 309 м. (4 мин.)
- Училище "ОУ "Цар Симеон I"" на 295 м. (4 мин.)
- Училище "ОУ "Константин Арабаджиев"" на 320 м. (4 мин.)
- Университет "Висше Училище по Мениджмънт" на 838 м. (11 мин.)
- Университет "Варненски Университет по Мениджмънт" на 843 м. (11 мин.)
- Болница "Медик Дент ЕООД" на 359 м. (5 мин.)
- Болница "V ДКЦ "Св. Екатерина"" на 381 м. (5 мин.)
- Хранителен магазин на 222 м. (3 мин.)
- Супермаркет "магазин 300" на 143 м. (2 мин.)
- Супермаркет "борса "Катилина"" на 165 м. (2 мин.)
- Пазар "Централен пазар" на 379 м. (5 мин.)
- Зоо магазин на 392 м. (5 мин.)
- Мол на 303 м. (4 мин.)
- Банка "Централна Кооперативна Банка" на 538 м. (7 мин.)
- Банка "Банка ДСК" на 558 м. (7 мин.)
- Банкомат "Fibank" на 608 м. (8 мин.)
- Банкомат "Пощенска банка" на 633 м. (8 мин.)
- Аптека на 329 м. (4 мин.)
- Поща/Куриер "Еконт" на 55 м. (1 мин.)
- Поща/Куриер "Speedy" на 62 м. (1 мин.)
- Фризьорски салон на 198 м. (3 мин.)
- Салон за красота на 311 м. (4 мин.)
- Ветеринарен лекар "Д-р Манолов" на 143 м. (2 мин.)
- Ресторант "Terra" на 490 м. (6 мин.)
- Ресторант на 623 м. (8 мин.)
- Бар на 162 м. (2 мин.)
- Нощен клуб "Opium" на 888 м. (11 мин.)
- Казино "Desperado" на 524 м. (7 мин.)
- Детска площадка на 135 м. (2 мин.)
- Фитнес зала "VM Fitness" на 425 м. (6 мин.)
- Спортен терен "Зала "Димитър Нушев'" на 978 м. (12 мин.)
- Тенис корт на 1.2 км.
- Театър "Българан" на 1.2 км. (14 мин.)
- Театър "Сцена "Филиал"" на 1.2 км. (15 мин.)
- Кино "Arena" на 1.2 км. (15 мин.)
- Музей "Ретро музей" на 719 м. (9 мин.)
- Парк "парк Елин Пелин" на 346 м. (5 мин.)
- Градина на 513 м. (7 мин.)
- Паркинг на 56 м. (1 мин.)
- Бензиностанция "ОМВ" на 585 м. (8 мин.)
- Зарядна станция на 347 м. (5 мин.)
- Автомивка на 211 м. (3 мин.)
- Съд "Военен съд" на 563 м. (7 мин.)
- Библиотека "Клуб-библиотека «Виделина»" на 1.2 км. (15 мин.)
- Църква "Катедрален храм "Св. Прокопий Варненски"" на 793 м. (10 мин.)
ТРАНСПОРТ
УЧЕБНИ ЗАВЕДЕНИЯ
ЛЕЧЕБНИ ЗАВЕДЕНИЯ
ПАЗАРУВАНЕ
УСЛУГИ
ЗАВЕДЕНИЯ
СПОРТ И СВОБОДНО ВРЕМЕ
ПРИРОДА И ЗАБЕЛЕЖИТЕЛНОСТИ
АВТОМОБИЛНИ УСЛУГИ
ОБЩЕСТВЕНИ СГРАДИ И ИНСТИТУЦИИ
Изпратете запитване
														Този имот е продаден
														
																							Моля свържете се с нас, за да ви предложим други оферти, които отговарят на вашите изисквания.
79 000 
79 000 €
(154 510,57 )
154 510,57 лв.
- €
- $
- £
															Този имот е продаден
															
																									Моля свържете се с нас, за да ви предложим други оферти, които отговарят на вашите изисквания.
																																												   */ ?>
											
											
													ЗА ПОВЕЧЕ ИНФОРМАЦИЯ
													Реф. номер: Vna 74850
													
												
											При обаждане, моля цитирайте референтния номер на имота.
 
																					Калина Иванова
Офис Варна бул. "Владислав Варненчик" 110, етаж 2, офис 4, Варна 9000 Всички оферти (114)
																12															
															
																имота															
														
																1															
															
																свободни															
														
																4															
															
																продадени															
														
																7															
															
																резервирани															
														Изпратете запитване
Вижте още имоти в кв. "Колхозен пазар" в град Варна:
- Апартаменти (различни типове) в кв. "Колхозен пазар"
- Къщи в кв. "Колхозен пазар"
- Офиси в кв. "Колхозен пазар"
- Магазини в кв. "Колхозен пазар"
- Земи в кв. "Колхозен пазар"
- Всички имоти в кв. "Колхозен пазар"
 
							 
									 
									 
									 
									 
									 
									 
									 
									 
									 
									 
									 
									 
														 
															 
														 
															 
														 
														 
														 
														 
													 
													 
													 
													 
													 
													 
													 
													 
													 
															 
													 
													 
													 
													 
													 
													 
													 
													 
													 
													 
															 
													 
													 
													 
													 
													