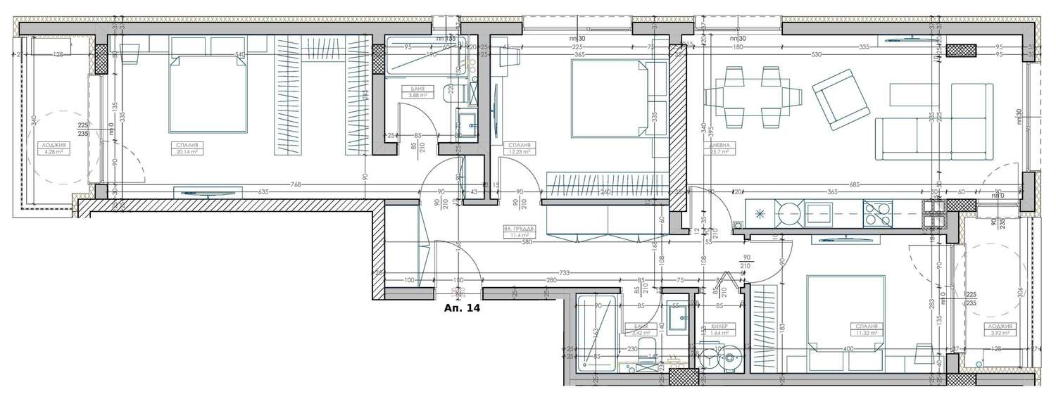
апартамент 14 , обща площ 143.21 кв.м. (нетна площ 121.89 кв.м. + общи части 21.32 кв.м.).
Продажбите на жилища в най-новия проект в кв. Младост 2 вече започнаха! Побързайте да се възползвате от най-изгодните условия за покупка в началото на проекта.
Високо качество, удобна и комуникативна локация, комфортна жилищна среда и атрактивна цена, част от фактори, които привличат взискателните купувачи.
Сградата ще бъде с модерен облик и добро изложение. Ще бъдат изградени единадесет етажа, от които десет са жилищни и един подземен предназначен за паркоместа и складове. На партерен етаж ще има търговски обект. За продажба се предлагат двустайни, тристайни и четиристайни апартаменти.
Основни характеристики на сградата:
• Брой етажи - 11
• От които жилищни - 10
• Брой подз. етажи - 1
• Брой апартаменти - 89
• Тип конструкция - монолитна
Видове апартаментите, изложения:
• Двустайни - изток , обща площ 76 кв. м.
• Двустайни - запад, обща площ 75,2 кв. м.
• Двустайни - запад, обща площ 68,9 кв. м.
• Тристайни - юг-изток, обща площ 112,56 кв. м.
• Четиристайни - изток-запад, обща площ 143,21 кв. м.
• Четиристайни - юг-запад, обща площ 120,44 кв. м.
Апартаментите ще бъдат завършени по БДС:
• Входни врати - блиндирани
• Под – циментова замазка
• Стени и тавани - гипсова мазилка
• Настилки по тераси и балкони – гранитогрес
• Парапети по балкони и тераси – съгласно одобрен архитектурен проект
• PVC дограма
• Слаботокови инсталации – изградено окабеляване
• Изцяло изградена ВиК инсталация
• Ел. инсталации – изцяло изградени с монтирани ключове, контакти и апартаментно табло
• Външна изолация
• Отопление на климатици
За удобство на живущите се предлагат за продажба външни паркоместа на цена 11 000 евро и подземни паркоместа на цена 16 000 евро.
Целият процес, от проектиране до последния детайл ще бъдат изцяло съобразени с актуалното търсене на пазара и възможността да се предложи модерен и същевременно уютен дом. Локацията предлага добра комуникативност и лесен автомобилен достъп, както и удобно придвижване с градски транспорт. На пешеходно разстояние има още супермаркети, магазини и търговски центрове, аптеки, поликлиники, ресторанти, кафенета, спирки на градския транспорт, които правят достъпа до всяка точка на града лесен и удобен.
Защо да изберете за собствен дом в сградата?
• Двустайни, тристайни и четиристайни апартаменти с отлични разпределения.
• Луксозно и модерно строителство, с висок клас материали.
• Отлична инфраструктура.
• Просторни помещения с добри изложения.
• Строителната фирма с голям опит и много реализирани обекти
Варна е град в Североизточна България, разположен по бреговете на Черно море и Варненското езеро и е административен център на едноименните община и област. Градът е третият по големина в страната и най-големият по българското Черноморие. Заради своята история, географски и икономически особености, той си е спечелил прозвището Морската столица на България. В близост може да се насладите на почивката на море.
Оглед на имота
Можем да организираме оглед на имота в удобно за вас време. За целта, свържете се с отговорния за офертата брокер и му кажете кога бихте искали да направите оглед.
Резервация на имота
Имотът може да бъде резервиран и свален от продажба със заплащане на депозит, след което се прекратява провеждането на огледи с други купувачи и започва подготовка на документите за сключване на предварителен и окончателен договор. Свържете се с отговорния брокер за този имот за подробна информация относно процедурата на покупка и начините за плащане.
Продажба
Четиристаен апартамент в Нова сграда със съвременни архитектурни линии и функционален дизайн в кв. Младост 2
гр. Варна, кв."Младост 2"Жилища с 1, 2 или 3 спални, с добри изложения, в комуникативен район на гр. Варна
Характеристики на имота
Тип на имота
Четиристаен апартамент
Реф. номер
Vna 85835
Площ
143.21 м2 (чиста площ: 121.89 м2 плюс общи части: 21.32 м2)
Спални
1,2,3
Състояние
БДС (на шпакловка и замазка)
Етаж
3 от 11
Асансьор
да
Обзавеждане
Необзаведен
Отопление
Климатици
Тип строителство
Тухла, Ново строителство
Изложение:
Изток, Запад, Юг
Година на построяване
2026
Местоположение
гр. Варна, кв."Младост 2"Удобства в района
- Автобусна спирка "ПАРК-МУЗЕЙ ВЛ.ВАРНЕНЧИК-2" на 141 м. (2 мин.) - Автобус No: 22, 82
- Университет "Полицейска академия към МВР" на 679 м. (9 мин.)
- Поща/Куриер "Speedy" на 176 м. (3 мин.)
- Поща/Куриер "Еконт" на 298 м. (4 мин.)
- Ресторант "Маестро" на 382 м. (5 мин.)
- Ресторант "КОМИТИ" на 533 м. (7 мин.)
- Бар "Биротерапия" на 348 м. (5 мин.)
- Детска площадка на 388 м. (5 мин.)
ТРАНСПОРТ
УЧЕБНИ ЗАВЕДЕНИЯ
УСЛУГИ
ЗАВЕДЕНИЯ
СПОРТ И СВОБОДНО ВРЕМЕ
Изпратете запитване
185 000 €
(361 828,55 лв.)
- €
- $
- £
В процес на строителство
Планирано завършване: 15.11.2026 г
Без комисионна
*/ ?>
ЗА ПОВЕЧЕ ИНФОРМАЦИЯ
Реф. номер: Vna 85835
При обаждане, моля цитирайте референтния номер на имота.
Калина Иванова
Офис Варна бул. "Владислав Варненчик" 110, етаж 2, офис 4, Варна 9000 Всички оферти (117)
Налични имоти в комплекса
26
имота
5
свободни
20
продадени
1
резервирани
Изпратете запитване
Вижте още имоти в кв. "Младост 2" в град Варна:
- Апартаменти (различни типове) в кв. "Младост 2"
- Къщи в кв. "Младост 2"
- Офиси в кв. "Младост 2"
- Магазини в кв. "Младост 2"
- Земи в кв. "Младост 2"
- Всички имоти в кв. "Младост 2"