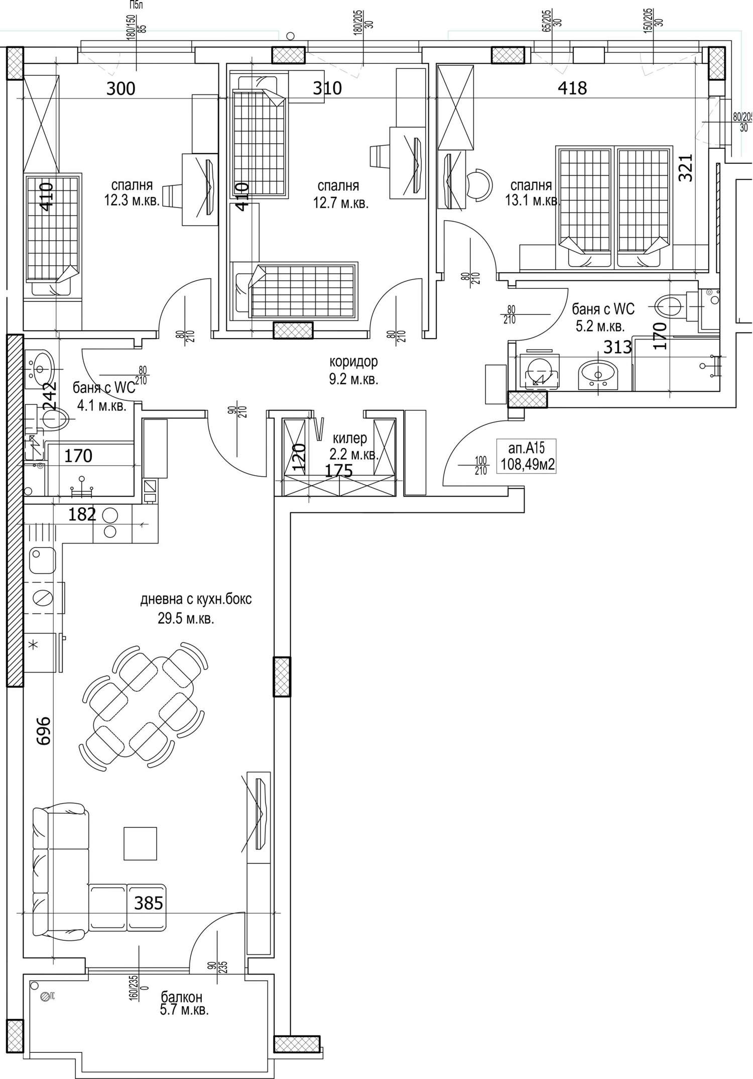
апартамент A15 , обща площ 127.30 кв.м. (нетна площ 108.49 кв.м. + общи части 18.81 кв.м.).
Предлагаме за продажба разнообразие от функционално разпределени апартаменти в нов мащабен проект на доказала се фирма в кв. Кайсиева градина. Отличава се с подчертана градска визия и естетично балансирана фасада, разнообразие в цветовите елементи и функционално разпределение на обемите. Имотът е разположен в динамично развиващ се район с удобна инфраструктура и близост до зелени площи - отлична комбинация между удобство, стил и спокойствие.
• Сграда 1 е проектирана с пет самостоятелни входа. Визията ѝ съчетава модерна фасадна композиция с топли цветови акценти, които придават динамика и елегантност на силуета. Подземното ниво е изцяло отделено за гаражи и паркоместа, а в дворното пространство са обособени външни зони за паркиране и зелени площи.
• Сграда 2 се състои от 4 входа, разпределени така, че да осигурят удобство и функционалност за живущите. Подземното ниво предлага гаражи и паркоместа, а в зоната около сградата са разположени допълнителни външни паркоместа и зелени площи за отдих. Контрастът между топли и неутрални тонове създава естетически баланс, а широките балкони и големите прозорци осигуряват максимална светлина във всеки апартамент.
Фасадата на сградата е изградена с комбинация от модерни материали, които осигуряват енергийна ефективност и устойчивост. Комплексът е изграден по съвременни инженерни стандарти с армирани бетонни елементи и надеждна изолационна система.
• Конструкцията гарантира стабилност, дълготрайност и защита при всякакви климатични условия.
• Входовете и коридорите са проектирани с мисъл за удобството на обитателите – просторни стълбища, добре осветени зони и използвани висококачествени материали.
• Общите части носят усещане за завършеност и създават комфортна жилищна среда.
• Всеки вход разполага със съвременен асансьор, който осигурява лесен и безшумен достъп до всички етажи, включително подземните гаражи. Това гарантира удобство както за семейства с деца, така и за хора с намалена подвижност.
• Покривът на сградата е плосък и изпълнен с висок клас хидро- и топлоизолация, отговарящ на актуалните енергийни стандарти.
• ВиК инсталацията е изградена от материали с доказано качество, които гарантират надеждност и оптимално налягане във всеки момент. Системата е проектирана така, че да осигурява лесна поддръжка и дългосрочна издръжливост.
• Сградите са оборудвани с модерни електроинсталации и предвидена възможност за интегриране на „умен дом“ решения. Всички апартаменти разполагат с достатъчно точки за захранване и сигурни ел. табла, отговарящи на най-новите стандарти.
На разположение на собствениците е и подземен паркинг с гаражи и паркоместа, достъпни директно чрез асансьорите на сградата. Предлагат се паркоместа и в двора.
Жилищата са разнообразни по площ и разпределения – от функционални апартаменти, подходящи за млади семейства, до просторни жилища с панорамни гледки. Цените на сайта са при вариант на плащане 1. Обадете ни се за повече информация и оглед.
Оглед на имота
Можем да организираме оглед на имота спрямо нашия график и възможностите за достъп до него. Заявете вашето желание за оглед, като се свържете с отговорния за офертата брокер по имейл или телефон.
Резервация на имота
Имотът може да бъде резервиран и свален от продажба със заплащане на депозит, след което се прекратява провеждането на огледи с други купувачи и започва подготовка на документите за сключване на предварителен и окончателен договор. Свържете се с отговорния брокер за подробна информация относно процедурата на покупка и начините за плащане.
Жилищен кредит
Ние си партнираме с водещите български банки и можем да ви свържем с техните консултанти за информация и кандидатстване за кредит.
- Описание
- Характеристики
- Галерия
- Местоположение
- Ценова листа
Продажба
частни лица
Четиристаен апартамент в Нов мащабен жилищен проект в кв. Кайсиева градина
гр. Варна, кв."Кайсиева градина"Модерна градска визия в динамичен район с удобна инфраструктура и близост до зелени площи - отлична комбинация между удобство, стил и спокойствие
Прочетете цялата информация
Характеристики на имота
Тип на имота
Четиристаен апартамент
Реф. номер
Vna 88180
Площ
127.30 м2 (чиста площ: 108.49 м2 плюс общи части: 18.81 м2)
Спални
1,2,3
Състояние
БДС (на шпакловка и замазка)
Етаж
4 от 9
Асансьор
да
Обзавеждане
Необзаведен
Отопление
Климатици
Тип строителство
Тухла, Ново строителство
Изложение:
Изток, Запад, Север, Юг
Година на построяване
2028
Още информация за Нов мащабен жилищен проект в кв. Кайсиева градина:
План на имота
Планове
Ценова листа
Техническа спецификация
Качество на въздуха
Обзавеждане
Плащане
План на строителство
Снимки от въздуха
Общ план
360° изглед
Инфо пакет
Референтен номер: Vna 88180
Местоположение
гр. Варна, кв."Кайсиева градина"Удобства в района
- Автобусна спирка "ОБЩЕЖИТИЕТО-2" на 300 м. (4 мин.) - Автобус No: 14, 41
- Детска градина "ДГ 39 "Приказка"" на 58 м. (1 мин.)
- Детска градина на 903 м. (11 мин.)
- Училище "ОУ Стоян Михайловски" на 102 м. (2 мин.)
- Училище "ОУ Патриарх Евтимий" на 787 м. (10 мин.)
- Медицински център на 243 м. (3 мин.)
- Хранителен магазин на 257 м. (4 мин.)
- Супермаркет на 154 м. (2 мин.)
- Супермаркет "My Market, бл. 11" на 750 м. (10 мин.)
- Пазар на 1.1 км. (14 мин.)
- Пекарна на 1.0 км. (13 мин.)
- Аптека на 254 м. (4 мин.)
- Поща/Куриер "Speedy" на 720 м. (9 мин.)
- Поща/Куриер "Пощенски клон 23 (9023)" на 1.1 км. (14 мин.)
- Фризьорски салон на 1.1 км. (14 мин.)
- Ресторант "Борисовата воденица" на 396 м. (5 мин.)
- Ресторант на 922 м. (12 мин.)
- Кафене "Парадайс" на 331 м. (4 мин.)
- Бар "Shisha Pharaohs" на 980 м. (12 мин.)
- Музей "Музей Владислав Варненчик" на 990 м. (12 мин.)
- Парк на 420 м. (6 мин.)
- Паркинг на 272 м. (4 мин.)
- Бензиностанция "Sevi Oil" на 420 м. (6 мин.)
- Зарядна станция "Fines - Alpha Motors" на 483 м. (6 мин.)
- Автомивка "Bubbles Bay" на 447 м. (6 мин.)
- Автосервиз "Колор груп ЕООД" на 400 м. (5 мин.)
ТРАНСПОРТ
УЧЕБНИ ЗАВЕДЕНИЯ
ЛЕЧЕБНИ ЗАВЕДЕНИЯ
ПАЗАРУВАНЕ
УСЛУГИ
ЗАВЕДЕНИЯ
СПОРТ И СВОБОДНО ВРЕМЕ
ПРИРОДА И ЗАБЕЛЕЖИТЕЛНОСТИ
АВТОМОБИЛНИ УСЛУГИ
Изпратете запитване
169 500 €
(331 513,19 лв.)
- €
- $
- £
В процес на строителство
Планирано завършване: 30.12.2028 г
Без комисионна
Ценова листа
*/ ?>
ЗА ПОВЕЧЕ ИНФОРМАЦИЯ
Реф. номер: Vna 88180
При обаждане, моля цитирайте референтния номер на имота.
Калина Иванова
Офис Варна бул. "Владислав Варненчик" 110, етаж 2, офис 4, Варна 9000 Всички оферти (114)
Налични имоти в комплекса
226
имота
94
свободни
104
продадени
28
резервирани
Изпратете запитване
Още имоти в този комплекс
Продажба
За частни лица
Четиристаен апартамент в Нов мащабен жилищен проект в кв. Кайсиева градина
гр. Варна , кв. "Кайсиева градина"
Модерна градска визия в динамичен район с удобна инфраструктура и близост до зелени площи - отлична комбинация между удобство, стил и спокойствие
173 000 €338 358,59 лв.
(1 221 €/кв.м.) (2 388,07 лв./кв.м.)141.60 кв.м.
Калина Иванова
Старши брокер, Варна
Продажба
За частни лица
Четиристаен апартамент в Нов мащабен жилищен проект в кв. Кайсиева градина
гр. Варна , кв. "Кайсиева градина"
Модерна градска визия в динамичен район с удобна инфраструктура и близост до зелени площи - отлична комбинация между удобство, стил и спокойствие
167 000 €326 623,61 лв.
(1 332 €/кв.м.) (2 605,17 лв./кв.м.)125.31 кв.м.
Калина Иванова
Старши брокер, Варна
Продажба
За частни лица
Четиристаен апартамент в Нов мащабен жилищен проект в кв. Кайсиева градина
гр. Варна , кв. "Кайсиева градина"
Модерна градска визия в динамичен район с удобна инфраструктура и близост до зелени площи - отлична комбинация между удобство, стил и спокойствие
169 500 €331 513,19 лв.
(1 331 €/кв.м.) (2 603,21 лв./кв.м.)127.30 кв.м.
Калина Иванова
Старши брокер, Варна
Продажба
За частни лица
Четиристаен апартамент в Нов мащабен жилищен проект в кв. Кайсиева градина
гр. Варна , кв. "Кайсиева градина"
Модерна градска визия в динамичен район с удобна инфраструктура и близост до зелени площи - отлична комбинация между удобство, стил и спокойствие
169 500 €331 513,19 лв.
(1 331 €/кв.м.) (2 603,21 лв./кв.м.)127.30 кв.м.
Калина Иванова
Старши брокер, Варна
Продажба
За частни лица
Четиристаен апартамент в Нов мащабен жилищен проект в кв. Кайсиева градина
гр. Варна , кв. "Кайсиева градина"
Модерна градска визия в динамичен район с удобна инфраструктура и близост до зелени площи - отлична комбинация между удобство, стил и спокойствие
169 500 €331 513,19 лв.
(1 331 €/кв.м.) (2 603,21 лв./кв.м.)127.30 кв.м.
Калина Иванова
Старши брокер, Варна
Продажба
За частни лица
Четиристаен апартамент в Нов мащабен жилищен проект в кв. Кайсиева градина
гр. Варна , кв. "Кайсиева градина"
Модерна градска визия в динамичен район с удобна инфраструктура и близост до зелени площи - отлична комбинация между удобство, стил и спокойствие
167 000 €326 623,61 лв.
(1 332 €/кв.м.) (2 605,17 лв./кв.м.)125.31 кв.м.
Калина Иванова
Старши брокер, Варна
Продажба
За частни лица
Четиристаен апартамент в Нов мащабен жилищен проект в кв. Кайсиева градина
гр. Варна , кв. "Кайсиева градина"
Модерна градска визия в динамичен район с удобна инфраструктура и близост до зелени площи - отлична комбинация между удобство, стил и спокойствие
169 500 €331 513,19 лв.
(1 331 €/кв.м.) (2 603,21 лв./кв.м.)127.30 кв.м.
Калина Иванова
Старши брокер, Варна
Продажба
За частни лица
Четиристаен апартамент в Нов мащабен жилищен проект в кв. Кайсиева градина
гр. Варна , кв. "Кайсиева градина"
Модерна градска визия в динамичен район с удобна инфраструктура и близост до зелени площи - отлична комбинация между удобство, стил и спокойствие
169 500 €331 513,19 лв.
(1 331 €/кв.м.) (2 603,21 лв./кв.м.)127.30 кв.м.
Калина Иванова
Старши брокер, Варна
Продажба
За частни лица
Четиристаен апартамент в Нов мащабен жилищен проект в кв. Кайсиева градина
гр. Варна , кв. "Кайсиева градина"
Модерна градска визия в динамичен район с удобна инфраструктура и близост до зелени площи - отлична комбинация между удобство, стил и спокойствие
167 000 €326 623,61 лв.
(1 332 €/кв.м.) (2 605,17 лв./кв.м.)125.31 кв.м.
Калина Иванова
Старши брокер, Варна
Продажба
За частни лица
Четиристаен апартамент в Нов мащабен жилищен проект в кв. Кайсиева градина
гр. Варна , кв. "Кайсиева градина"
Модерна градска визия в динамичен район с удобна инфраструктура и близост до зелени площи - отлична комбинация между удобство, стил и спокойствие
167 000 €326 623,61 лв.
(1 332 €/кв.м.) (2 605,17 лв./кв.м.)125.31 кв.м.
Калина Иванова
Старши брокер, Варна
Продажба
За частни лица
Четиристаен апартамент в Нов мащабен жилищен проект в кв. Кайсиева градина
гр. Варна , кв. "Кайсиева градина"
Модерна градска визия в динамичен район с удобна инфраструктура и близост до зелени площи - отлична комбинация между удобство, стил и спокойствие
169 500 €331 513,19 лв.
(1 331 €/кв.м.) (2 603,21 лв./кв.м.)127.30 кв.м.
Калина Иванова
Старши брокер, Варна
Продажба
За частни лица
Тристаен апартамент в Нов мащабен жилищен проект в кв. Кайсиева градина
гр. Варна , кв. "Кайсиева градина"
Модерна градска визия в динамичен район с удобна инфраструктура и близост до зелени площи - отлична комбинация между удобство, стил и спокойствие
141 000 €275 772,03 лв.
(1 256 €/кв.м.) (2 456,52 лв./кв.м.)112.19 кв.м.
Калина Иванова
Старши брокер, Варна
Продажба
За частни лица
Тристаен апартамент в Нов мащабен жилищен проект в кв. Кайсиева градина
гр. Варна , кв. "Кайсиева градина"
Модерна градска визия в динамичен район с удобна инфраструктура и близост до зелени площи - отлична комбинация между удобство, стил и спокойствие
136 500 €266 970,80 лв.
(1 390 €/кв.м.) (2 718,60 лв./кв.м.)98.18 кв.м.
Калина Иванова
Старши брокер, Варна
Продажба
За частни лица
Тристаен апартамент в Нов мащабен жилищен проект в кв. Кайсиева градина
гр. Варна , кв. "Кайсиева градина"
Модерна градска визия в динамичен район с удобна инфраструктура и близост до зелени площи - отлична комбинация между удобство, стил и спокойствие
135 500 €265 014,97 лв.
(1 396 €/кв.м.) (2 730,34 лв./кв.м.)97.04 кв.м.
Калина Иванова
Старши брокер, Варна
Продажба
За частни лица
Тристаен апартамент в Нов мащабен жилищен проект в кв. Кайсиева градина
гр. Варна , кв. "Кайсиева градина"
Модерна градска визия в динамичен район с удобна инфраструктура и близост до зелени площи - отлична комбинация между удобство, стил и спокойствие
142 000 €277 727,86 лв.
(1 142 €/кв.м.) (2 233,56 лв./кв.м.)124.24 кв.м.
Калина Иванова
Старши брокер, Варна
Продажба
За частни лица
Двустаен апартамент в Нов мащабен жилищен проект в кв. Кайсиева градина
гр. Варна , кв. "Кайсиева градина"
Модерна градска визия в динамичен район с удобна инфраструктура и близост до зелени площи - отлична комбинация между удобство, стил и спокойствие
124 000 €242 522,92 лв.
(1 066 €/кв.м.) (2 084,91 лв./кв.м.)116.29 кв.м.
Калина Иванова
Старши брокер, Варна
Продажба
За частни лица
Тристаен апартамент в Нов мащабен жилищен проект в кв. Кайсиева градина
гр. Варна , кв. "Кайсиева градина"
Модерна градска визия в динамичен район с удобна инфраструктура и близост до зелени площи - отлична комбинация между удобство, стил и спокойствие
135 500 €265 014,97 лв.
(1 396 €/кв.м.) (2 730,34 лв./кв.м.)97.04 кв.м.
Калина Иванова
Старши брокер, Варна
Продажба
За частни лица
Тристаен апартамент в Нов мащабен жилищен проект в кв. Кайсиева градина
гр. Варна , кв. "Кайсиева градина"
Модерна градска визия в динамичен район с удобна инфраструктура и близост до зелени площи - отлична комбинация между удобство, стил и спокойствие
136 500 €266 970,80 лв.
(1 396 €/кв.м.) (2 730,34 лв./кв.м.)97.76 кв.м.
Калина Иванова
Старши брокер, Варна
Продажба
За частни лица
Тристаен апартамент в Нов мащабен жилищен проект в кв. Кайсиева градина
гр. Варна , кв. "Кайсиева градина"
Модерна градска визия в динамичен район с удобна инфраструктура и близост до зелени площи - отлична комбинация между удобство, стил и спокойствие
135 500 €265 014,97 лв.
(1 396 €/кв.м.) (2 730,34 лв./кв.м.)97.04 кв.м.
Калина Иванова
Старши брокер, Варна
Продажба
За частни лица
Тристаен апартамент в Нов мащабен жилищен проект в кв. Кайсиева градина
гр. Варна , кв. "Кайсиева градина"
Модерна градска визия в динамичен район с удобна инфраструктура и близост до зелени площи - отлична комбинация между удобство, стил и спокойствие
136 500 €266 970,80 лв.
(1 396 €/кв.м.) (2 730,34 лв./кв.м.)97.76 кв.м.
Калина Иванова
Старши брокер, Варна
Продажба
За частни лица
Двустаен апартамент в Нов мащабен жилищен проект в кв. Кайсиева градина
гр. Варна , кв. "Кайсиева градина"
Модерна градска визия в динамичен район с удобна инфраструктура и близост до зелени площи - отлична комбинация между удобство, стил и спокойствие
113 500 €221 986,71 лв.
(1 272 €/кв.м.) (2 487,82 лв./кв.м.)89.16 кв.м.
Калина Иванова
Старши брокер, Варна
Продажба
За частни лица
Двустаен апартамент в Нов мащабен жилищен проект в кв. Кайсиева градина
гр. Варна , кв. "Кайсиева градина"
Модерна градска визия в динамичен район с удобна инфраструктура и близост до зелени площи - отлична комбинация между удобство, стил и спокойствие
108 500 €212 207,56 лв.
(1 321 €/кв.м.) (2 583,65 лв./кв.м.)82.11 кв.м.
Калина Иванова
Старши брокер, Варна
Продажба
За частни лица
Двустаен апартамент в Нов мащабен жилищен проект в кв. Кайсиева градина
гр. Варна , кв. "Кайсиева градина"
Модерна градска визия в динамичен район с удобна инфраструктура и близост до зелени площи - отлична комбинация между удобство, стил и спокойствие
105 000 €205 362,15 лв.
(1 473 €/кв.м.) (2 880,94 лв./кв.м.)71.27 кв.м.
Калина Иванова
Старши брокер, Варна
Продажба
За частни лица
Двустаен апартамент в Нов мащабен жилищен проект в кв. Кайсиева градина
гр. Варна , кв. "Кайсиева градина"
Модерна градска визия в динамичен район с удобна инфраструктура и близост до зелени площи - отлична комбинация между удобство, стил и спокойствие
104 000 €203 406,32 лв.
(1 319 €/кв.м.) (2 579,74 лв./кв.м.)78.83 кв.м.
Калина Иванова
Старши брокер, Варна
Продажба
За частни лица
Тристаен апартамент в Нов мащабен жилищен проект в кв. Кайсиева градина
гр. Варна , кв. "Кайсиева градина"
Модерна градска визия в динамичен район с удобна инфраструктура и близост до зелени площи - отлична комбинация между удобство, стил и спокойствие
134 000 €262 081,22 лв.
(1 414 €/кв.м.) (2 765,54 лв./кв.м.)94.73 кв.м.
Калина Иванова
Старши брокер, Варна
Още имоти в кв. Кайсиева градина
Продажба
Модерен жилищен проект в Кайсиева градина – функционален дизайн, комфорт и високо качество
гр. Варна , кв. "Кайсиева градина"
Съвременна сграда с модерна архитектура, просторни жилища и отлично местоположение
Модерен жилищен проект в Кайсиева градина – функционален дизайн, комфорт и високо качество - Съвременна сграда с модерна архитектура, просторни жилища и отлично местоположение
от 87 900 €(от 171 917,46 лв.)
(991 €/кв.м. - 1 378 €/кв.м.)(1 938,23 лв./кв.м. - 2 695,13 лв./кв.м.)Площ: 70.56 - 162.54 кв.м.
Калина Иванова
Старши брокер, Варна
Продажба
За частни лица
Двустаен апартамент пред Акт 16 в кв. Кайсиева градина
гр. Варна , кв. "Кайсиева градина"
Новопостроен апартамент до възлов булевард във Варна
Двустаен апартамент пред Акт 16 в кв. Кайсиева градина - Новопостроен апартамент до възлов булевард във Варна
Продажба
За частни лица
Нова сграда съчетание от модерна архитектура и естествени елементи в кв. Кайсиева градина
гр. Варна , кв. "Кайсиева градина"
Отлично разпределени жилища с 1, 2 и 3 спални в предпочитан район на град Варна
Нова сграда съчетание от модерна архитектура и естествени елементи в кв. Кайсиева градина - Отлично разпределени жилища с 1, 2 и 3 спални в предпочитан район на град Варна
от 100 000 €(от 195 583 лв.)
(1 443 €/кв.м. - 1 574 €/кв.м.)(2 822,26 лв./кв.м. - 3 078,48 лв./кв.м.)Площ: 63.53 - 119.44 кв.м.
Калина Иванова
Старши брокер, Варна
Продажба
Жилищен комплекс сред зеленина и спокойствие
гр. Варна , кв. "Кайсиева градина"
Апартаменти с топ локация в кв. Кайсиева градина
Жилищен комплекс сред зеленина и спокойствие - Апартаменти с топ локация в кв. Кайсиева градина
от 104 970 €(от 205 303,48 лв.)
(1 350 €/кв.м. - 1 390 €/кв.м.)(2 640,37 лв./кв.м. - 2 718,60 лв./кв.м.)Площ: 77.76 - 119.42 кв.м.
Калина Иванова
Старши брокер, Варна
Още имоти в гр. Варна
Продажба
Хит
Лукс
Жилища в небостъргач - луксозен комплекс в Младост, Варна!
гр. Варна , кв. "Младост 1"
Висок клас апартаменти с уникални гледки в кв. Младост 1 на морската столица
Жилища в небостъргач - луксозен комплекс в Младост, Варна! - Висок клас апартаменти с уникални гледки в кв. Младост 1 на морската столица
от 107 900 €(от 211 034,06 лв.)
(1 518 €/кв.м. - 1 751 €/кв.м.)(2 968,95 лв./кв.м. - 3 424,66 лв./кв.м.)Площ: 68.20 - 122.26 кв.м.
Калина Иванова
Старши брокер, Варна
Продажба
Хит
Лукс
Жилищен комплекс с Акт 16 до плаж Кабакум, Варна
гр. Варна , кв. "м-т Ален мак"
Последни наличности! Луксозни апартаменти с директен достъп до плажа
Жилищен комплекс с Акт 16 до плаж Кабакум, Варна - Последни наличности! Луксозни апартаменти с директен достъп до плажа
от 256 000 €(от 500 692,48 лв.)
(1 199 €/кв.м. - 2 100 €/кв.м.)(2 345,04 лв./кв.м. - 4 107,24 лв./кв.м.)Площ: 186.80 - 213.49 кв.м.
Анна Ицова
Брокер, Варна
Продажба
ново
Слънчев двустаен апартамент в нова сграда в района на Лятно кино Тракия
гр. Варна , кв. "Лятно кино Тракия"
Модерен апартамент в новострояща се сграда с отлична локация
Слънчев двустаен апартамент в нова сграда в района на Лятно кино Тракия - Модерен апартамент в новострояща се сграда с отлична локация
Продажба
ново
Нов жилищен проект в престижния квартал Гръцка махала
гр. Варна , кв. "Гръцка махала"
Луксозна сграда с модерна архитектура и морска панорама
Нов жилищен проект в престижния квартал Гръцка махала - Луксозна сграда с модерна архитектура и морска панорама
от 136 000 €(от 265 992,88 лв.)
(2 002 €/кв.м. - 2 700 €/кв.м.)(3 915,57 лв./кв.м. - 5 280,74 лв./кв.м.)Площ: 56.76 - 98.90 кв.м.
Анна Ицова
Брокер, Варна
Продажба
-15%
ново
Напълно обзаведен тристаен апартамент с паркомясто в района на Лятно кино Тракия
гр. Варна , кв. "Лятно кино Тракия"
Апартамент с две спални в малка сграда на четири етажа
Напълно обзаведен тристаен апартамент с паркомясто в района на Лятно кино Тракия - Апартамент с две спални в малка сграда на четири етажа
269 000 €229 000 €526,12 лв.447 885,07 лв.
(1 991 €/кв.м.)(3 894,65 лв./кв.м.)Площ: 115.00 кв.м.
Калина Иванова
Старши брокер, Варна
Наем
ново
Лукс
Двустаен апартамент с хубава морска гледка в кв. Чайка
гр. Варна , кв. "Чайка"
Обзаведен имот в луксозна сграда до к.к. Златни пясъци
Двустаен апартамент с хубава морска гледка в кв. Чайка - Обзаведен имот в луксозна сграда до к.к. Златни пясъци
Продажба
ново
Голям парцел до главен път в местност Прибой
гр. Варна , кв. "м-т Прибой"
Парцел, подходящ за промишлено или жилищно строителство, къмпинг и др.
Голям парцел до главен път в местност Прибой - Парцел, подходящ за промишлено или жилищно строителство, къмпинг и др.
Наем
ново
Етаж от къща под наем в м-т Евксиноград
гр. Варна , кв. "м-т Евксиноград"
Обзаведен едностаен имот на 200 м от плажа
Етаж от къща под наем в м-т Евксиноград - Обзаведен едностаен имот на 200 м от плажа
Продажба
ново
За частни лица
Нов тристаен апартамент с Акт 16 и предпочитана локация в кв. Бриз
гр. Варна , кв. "Бриз"
Просторно жилище с изба до възлови булеварди и учебни заведения
Нов тристаен апартамент с Акт 16 и предпочитана локация в кв. Бриз - Просторно жилище с изба до възлови булеварди и учебни заведения
Наем
ново
Обзаведен четиристаен апартамент в кв. Аспарухово –до главен булевард
гр. Варна , кв. "Аспарухово"
Жилище в поддържана сграда с отлична локация във Варна
Обзаведен четиристаен апартамент в кв. Аспарухово –до главен булевард - Жилище в поддържана сграда с отлична локация във Варна
450 €400 €880,12 лв.782,33 лв.
(6,08 €/кв.м.)(11,90 лв./кв.м.)Площ: 65.75 кв.м.
Анна Ицова
Брокер, Варна
Продажба
За частни лица
Лукс
ПЪРВА ЛИНИЯ
Мезонет в комплекс Варна Саут Бей/Varna South Bay
гр. Варна , кв. "Аспарухово"
Обзаведен апартамент с 2 спални на първа линия
Мезонет в комплекс Варна Саут Бей/Varna South Bay - Обзаведен апартамент с 2 спални на първа линия
Наем
Четиристаен апартамент до Медицински университет
гр. Варна , кв. "Окръжна болница-Генерали"
Обзаведено просторно жилище с централна локация в морската столица
Четиристаен апартамент до Медицински университет - Обзаведено просторно жилище с централна локация в морската столица
Продажба
Нов проект с апартаменти в кв. „Христо Ботев“
гр. Варна , кв. "Христо Ботев"
Двустайни и тристайни жилища, завършени по БДС, на 10 минути от Катедралата
Нов проект с апартаменти в кв. „Христо Ботев“ - Двустайни и тристайни жилища, завършени по БДС, на 10 минути от Катедралата
от 99 000 €(от 193 627,17 лв.)
(1 544 €/кв.м. - 1 668 €/кв.м.)(3 019,80 лв./кв.м. - 3 262,32 лв./кв.м.)Площ: 59.37 - 128.89 кв.м.
Анна Ицова
Брокер, Варна
Продажба
Новопостроено студио до магазин Макао в кв. Виница
гр. Варна , кв. "Виница"
Обзаведено жилище в тих и живописен район в морската столица Варна
Новопостроено студио до магазин Макао в кв. Виница - Обзаведено жилище в тих и живописен район в морската столица Варна
Продажба
-11%
Лукс
Луксозен тристаен апартамент в елитен комплекс до морето – к.к. Чайка
гр. Варна , кв. "м-т Ален мак"
Модерен имот с панорамна гледка, висок клас обзавеждане и подземно паркомясто
Луксозен тристаен апартамент в елитен комплекс до морето – к.к. Чайка - Модерен имот с панорамна гледка, висок клас обзавеждане и подземно паркомясто
390 000 €349 000 €762,77 лв.682 584,67 лв.
(2 553 €/кв.м.)(4 993,67 лв./кв.м.)Площ: 136.69 кв.м.
Анна Ицова
Брокер, Варна
Продажба
Работещ хостел с ресторант в Евксиноград
гр. Варна , кв. "м-т Евксиноград"
Голям бизнес имот с възможности за разширяване на 1 км от плажа
Работещ хостел с ресторант в Евксиноград - Голям бизнес имот с възможности за разширяване на 1 км от плажа
Продажба
Триетажни къщи с двор в местност Ален мак
гр. Варна , кв. "м-т Ален мак"
Модерни къщи с открит басейн на 300 м от Варненски свободен университет
Триетажни къщи с двор в местност Ален мак - Модерни къщи с открит басейн на 300 м от Варненски свободен университет
Продажба
Продава се къща за ремонт в кв. Христо Ботев, гр. Варна
гр. Варна , кв. "Христо Ботев"
Имот с потенциал в търсен район на морската столица
Продава се къща за ремонт в кв. Христо Ботев, гр. Варна - Имот с потенциал в търсен район на морската столица
Продажба
Лукс
Луксозен тристаен апартамент с морска панорама и гараж в кв. Чайка
гр. Варна , кв. "Чайка"
Отлично обзаведено жилище в нов комплекс с много удобства
Луксозен тристаен апартамент с морска панорама и гараж в кв. Чайка - Отлично обзаведено жилище в нов комплекс с много удобства
Продажба
Тристаен апартамент с вътрешен двор в кв. Гръцка махала
гр. Варна , кв. "Гръцка махала"
Жилище с чисто ново обзавеждане на 300 от плажа и Морската градина
Тристаен апартамент с вътрешен двор в кв. Гръцка махала - Жилище с чисто ново обзавеждане на 300 от плажа и Морската градина
Продажба
Лукс
Луксозен имот до Морската градина и Градската галерия
гр. Варна , кв. "Център"
Инвестиционен имот с висока доходност в идеалния център на Варна
Луксозен имот до Морската градина и Градската галерия - Инвестиционен имот с висока доходност в идеалния център на Варна
448 000 €(876 211,84 лв.)
(2 789 €/кв.м.)(5 454,85 лв./кв.м.)Площ: 160.63 кв.м.
Калин Чернев
Регионален мениджър, Варна
Продажба
-8%
Двустаен апартамент с топ локация в район Гръцка махала
гр. Варна , кв. "Гръцка махала"
Комфортно обзаведено жилище до Морската градина и Фестивален комплекс
Двустаен апартамент с топ локация в район Гръцка махала - Комфортно обзаведено жилище до Морската градина и Фестивален комплекс
249 000 €229 900 €487 лв.449 645,32 лв.
(2 986 €/кв.м.)(5 839,55 лв./кв.м.)Площ: 77.00 кв.м.
Анна Ицова
Брокер, Варна
Продажба
Лукс
Просторна къща с морска панорама във Варна
гр. Варна , кв. "Галата"
Имот с два гаража в престижния квартал Галата
Просторна къща с морска панорама във Варна - Имот с два гаража в престижния квартал Галата
Наем
Просторна къща с 4 спални под наем в местност Свети Никола
гр. Варна , кв. "м-т Св. Никола"
Модерна къща с морска панорама, градина, съвременни удобства и комфорт
Просторна къща с 4 спални под наем в местност Свети Никола - Модерна къща с морска панорама, градина, съвременни удобства и комфорт
Наем
Лукс
ПЪРВА ЛИНИЯ
Двустаен апартамент с морска гледка в комплекс Ла Мер / La Mer
гр. Варна , кв. "Чайка"
Обзаведен имот под наем на първа линия на плаж Кабакум
Двустаен апартамент с морска гледка в комплекс Ла Мер / La Mer - Обзаведен имот под наем на първа линия на плаж Кабакум
Вижте още имоти в кв. "Кайсиева градина" в град Варна:
- Апартаменти (различни типове) в кв. "Кайсиева градина"
- Къщи в кв. "Кайсиева градина"
- Офиси в кв. "Кайсиева градина"
- Магазини в кв. "Кайсиева градина"
- Земи в кв. "Кайсиева градина"
- Всички имоти в кв. "Кайсиева градина"
Вижте още имоти в град Варна:
Абонирайте се за нашия канал