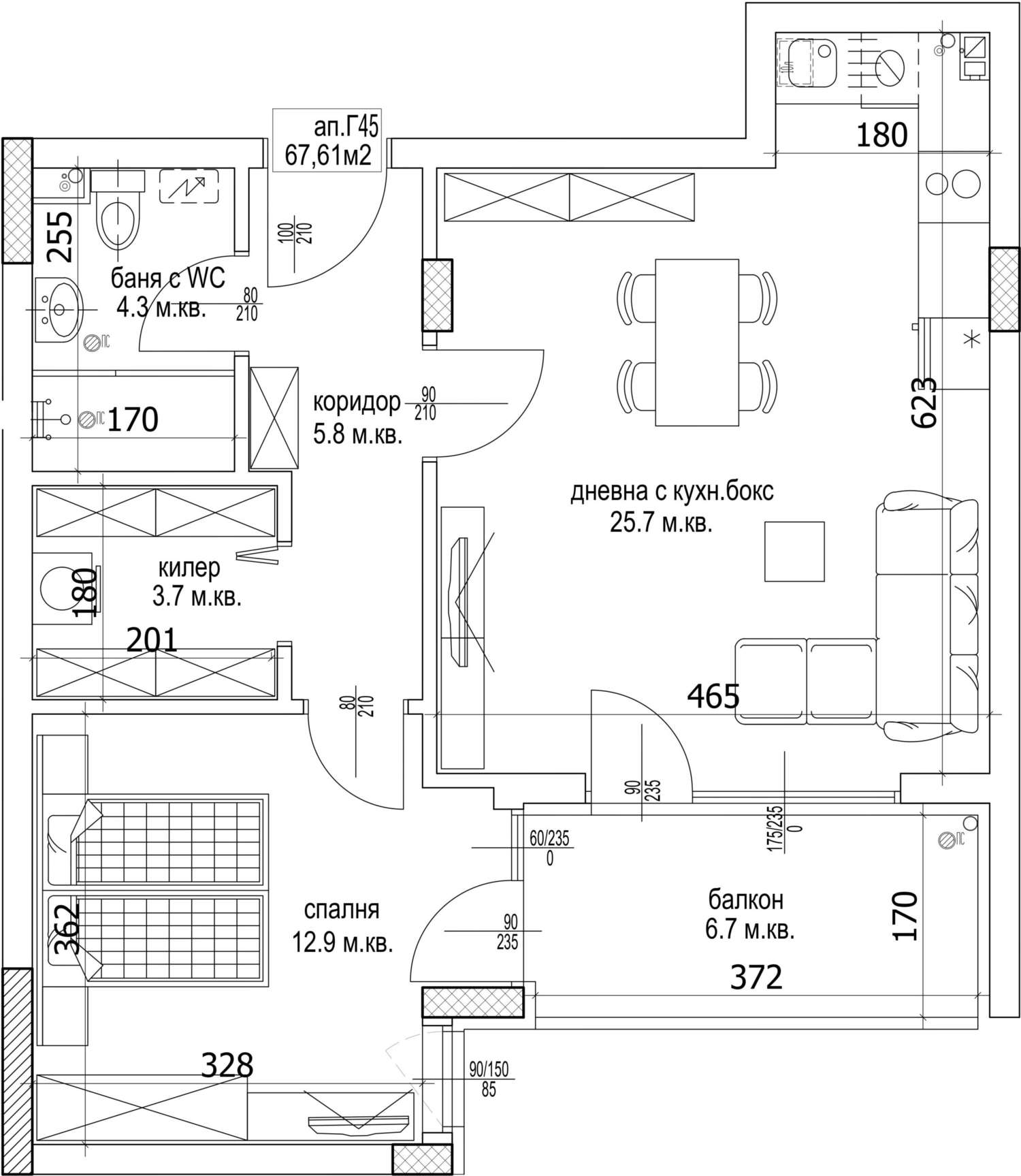
апартамент G45 , обща площ 78.12 кв.м. (нетна площ 66.58 кв.м. + общи части 11.54 кв.м.).
Предлагаме за продажба разнообразие от функционално разпределени апартаменти в нов мащабен проект на доказала се фирма в кв. Кайсиева градина. Отличава се с подчертана градска визия и естетично балансирана фасада, разнообразие в цветовите елементи и функционално разпределение на обемите. Имотът е разположен в динамично развиващ се район с удобна инфраструктура и близост до зелени площи - отлична комбинация между удобство, стил и спокойствие.
• Сграда 1 е проектирана с пет самостоятелни входа. Визията ѝ съчетава модерна фасадна композиция с топли цветови акценти, които придават динамика и елегантност на силуета. Подземното ниво е изцяло отделено за гаражи и паркоместа, а в дворното пространство са обособени външни зони за паркиране и зелени площи.
• Сграда 2 се състои от 4 входа, разпределени така, че да осигурят удобство и функционалност за живущите. Подземното ниво предлага гаражи и паркоместа, а в зоната около сградата са разположени допълнителни външни паркоместа и зелени площи за отдих. Контрастът между топли и неутрални тонове създава естетически баланс, а широките балкони и големите прозорци осигуряват максимална светлина във всеки апартамент.
Фасадата на сградата е изградена с комбинация от модерни материали, които осигуряват енергийна ефективност и устойчивост. Комплексът е изграден по съвременни инженерни стандарти с армирани бетонни елементи и надеждна изолационна система.
• Конструкцията гарантира стабилност, дълготрайност и защита при всякакви климатични условия.
• Входовете и коридорите са проектирани с мисъл за удобството на обитателите – просторни стълбища, добре осветени зони и използвани висококачествени материали.
• Общите части носят усещане за завършеност и създават комфортна жилищна среда.
• Всеки вход разполага със съвременен асансьор, който осигурява лесен и безшумен достъп до всички етажи, включително подземните гаражи. Това гарантира удобство както за семейства с деца, така и за хора с намалена подвижност.
• Покривът на сградата е плосък и изпълнен с висок клас хидро- и топлоизолация, отговарящ на актуалните енергийни стандарти.
• ВиК инсталацията е изградена от материали с доказано качество, които гарантират надеждност и оптимално налягане във всеки момент. Системата е проектирана така, че да осигурява лесна поддръжка и дългосрочна издръжливост.
• Сградите са оборудвани с модерни електроинсталации и предвидена възможност за интегриране на „умен дом“ решения. Всички апартаменти разполагат с достатъчно точки за захранване и сигурни ел. табла, отговарящи на най-новите стандарти.
На разположение на собствениците е и подземен паркинг с гаражи и паркоместа, достъпни директно чрез асансьорите на сградата. Предлагат се паркоместа и в двора.
Жилищата са разнообразни по площ и разпределения – от функционални апартаменти, подходящи за млади семейства, до просторни жилища с панорамни гледки. Цените на сайта са при вариант на плащане 1. Обадете ни се за повече информация и оглед.
Оглед на имота
Можем да организираме оглед на имота спрямо нашия график и възможностите за достъп до него. Заявете вашето желание за оглед, като се свържете с отговорния за офертата брокер по имейл или телефон.
Резервация на имота
Имотът може да бъде резервиран и свален от продажба със заплащане на депозит, след което се прекратява провеждането на огледи с други купувачи и започва подготовка на документите за сключване на предварителен и окончателен договор. Свържете се с отговорния брокер за подробна информация относно процедурата на покупка и начините за плащане.
Жилищен кредит
Ние си партнираме с водещите български банки и можем да ви свържем с техните консултанти за информация и кандидатстване за кредит.
- Описание
- Характеристики
- Галерия
- Местоположение
- Ценова листа
Продажба
частни лица
Двустаен апартамент в Нов мащабен жилищен проект в кв. Кайсиева градина
гр. Варна, кв."Кайсиева градина"Модерна градска визия в динамичен район с удобна инфраструктура и близост до зелени площи - отлична комбинация между удобство, стил и спокойствие
Прочетете цялата информация
Характеристики на имота
Тип на имота
Двустаен апартамент
Реф. номер
Vna 88180
Площ
78.12 м2 (чиста площ: 66.58 м2 плюс общи части: 11.54 м2)
Спални
1
Състояние
БДС (на шпакловка и замазка)
Етаж
9 от 9
Асансьор
да
Обзавеждане
Необзаведен
Отопление
Климатици
Тип строителство
Тухла, Ново строителство
Изложение:
Изток, Запад, Север, Юг
Година на построяване
2028
Още информация за Нов мащабен жилищен проект в кв. Кайсиева градина:
План на имота
Ценова листа
Техническа спецификация
Качество на въздуха
Обзавеждане
Плащане
План на строителство
Снимки от въздуха
Общ план
360° изглед
Инфо пакет
Референтен номер: Vna 88180
Местоположение
гр. Варна, кв."Кайсиева градина"Удобства в района
- Автобусна спирка "ОБЩЕЖИТИЕТО-2" на 300 м. (4 мин.) - Автобус No: 14, 41
- Детска градина "ДГ 39 "Приказка"" на 58 м. (1 мин.)
- Детска градина на 903 м. (11 мин.)
- Училище "ОУ Стоян Михайловски" на 102 м. (2 мин.)
- Училище "ОУ Патриарх Евтимий" на 787 м. (10 мин.)
- Медицински център на 243 м. (3 мин.)
- Хранителен магазин на 257 м. (4 мин.)
- Супермаркет на 154 м. (2 мин.)
- Супермаркет "My Market, бл. 11" на 750 м. (10 мин.)
- Пазар на 1.1 км. (14 мин.)
- Аптека на 254 м. (4 мин.)
- Поща/Куриер "Speedy" на 720 м. (9 мин.)
- Поща/Куриер "Пощенски клон 23 (9023)" на 1.1 км. (14 мин.)
- Фризьорски салон на 1.1 км. (14 мин.)
- Ресторант "Борисовата воденица" на 396 м. (5 мин.)
- Ресторант на 922 м. (12 мин.)
- Кафене "Парадайс" на 331 м. (4 мин.)
- Бар "Shisha Pharaohs" на 980 м. (12 мин.)
- Детска площадка на 1.0 км. (13 мин.)
- Музей "Музей Владислав Варненчик" на 990 м. (12 мин.)
- Парк на 420 м. (6 мин.)
- Паркинг на 272 м. (4 мин.)
- Бензиностанция "Sevi Oil" на 420 м. (6 мин.)
- Зарядна станция "Fines Charging" на 638 м. (8 мин.)
- Автомивка "Bubbles Bay" на 447 м. (6 мин.)
- Автосервиз "Колор груп ЕООД" на 400 м. (5 мин.)
ТРАНСПОРТ
УЧЕБНИ ЗАВЕДЕНИЯ
ЛЕЧЕБНИ ЗАВЕДЕНИЯ
ПАЗАРУВАНЕ
УСЛУГИ
ЗАВЕДЕНИЯ
СПОРТ И СВОБОДНО ВРЕМЕ
ПРИРОДА И ЗАБЕЛЕЖИТЕЛНОСТИ
АВТОМОБИЛНИ УСЛУГИ
Изпратете запитване
106 500 €
(208 295,90 лв.)
- €
- $
- £
В процес на строителство
Планирано завършване: 30.12.2028 г
Без комисионна
Ценова листа
*/ ?>
ЗА ПОВЕЧЕ ИНФОРМАЦИЯ
Реф. номер: Vna 88180
При обаждане, моля цитирайте референтния номер на имота.

Калина Иванова
Офис Варна бул. "Владислав Варненчик" 110, етаж 2, офис 4, Варна 9000 Всички оферти (112)
Налични имоти в комплекса
225
имота
225
свободни
0
продадени
0
резервирани
Изпратете запитване
Още имоти в този комплекс

Продажба
За частни лица
Четиристаен апартамент в Нов мащабен жилищен проект в кв. Кайсиева градина
гр. Варна , кв. "Кайсиева градина"
Модерна градска визия в динамичен район с удобна инфраструктура и близост до зелени площи - отлична комбинация между удобство, стил и спокойствие
164 000 €320 756,12 лв.
(1 235 €/кв.м.) (2 415,45 лв./кв.м.)132.75 кв.м.

Калина Иванова
Старши брокер, Варна

Продажба
За частни лица
Двустаен апартамент в Нов мащабен жилищен проект в кв. Кайсиева градина
гр. Варна , кв. "Кайсиева градина"
Модерна градска визия в динамичен район с удобна инфраструктура и близост до зелени площи - отлична комбинация между удобство, стил и спокойствие
112 500 €220 030,88 лв.
(1 193 €/кв.м.) (2 333,31 лв./кв.м.)94.23 кв.м.

Калина Иванова
Старши брокер, Варна

Продажба
За частни лица
Четиристаен апартамент в Нов мащабен жилищен проект в кв. Кайсиева градина
гр. Варна , кв. "Кайсиева градина"
Модерна градска визия в динамичен район с удобна инфраструктура и близост до зелени площи - отлична комбинация между удобство, стил и спокойствие
170 000 €332 491,10 лв.
(1 200 €/кв.м.) (2 347 лв./кв.м.)141.60 кв.м.

Калина Иванова
Старши брокер, Варна

Продажба
За частни лица
Четиристаен апартамент в Нов мащабен жилищен проект в кв. Кайсиева градина
гр. Варна , кв. "Кайсиева градина"
Модерна градска визия в динамичен район с удобна инфраструктура и близост до зелени площи - отлична комбинация между удобство, стил и спокойствие
164 000 €320 756,12 лв.
(1 308 €/кв.м.) (2 558,23 лв./кв.м.)125.31 кв.м.

Калина Иванова
Старши брокер, Варна

Продажба
За частни лица
Четиристаен апартамент в Нов мащабен жилищен проект в кв. Кайсиева градина
гр. Варна , кв. "Кайсиева градина"
Модерна градска визия в динамичен район с удобна инфраструктура и близост до зелени площи - отлична комбинация между удобство, стил и спокойствие
166 500 €325 645,70 лв.
(1 307 €/кв.м.) (2 556,27 лв./кв.м.)127.30 кв.м.

Калина Иванова
Старши брокер, Варна

Продажба
За частни лица
Четиристаен апартамент в Нов мащабен жилищен проект в кв. Кайсиева градина
гр. Варна , кв. "Кайсиева градина"
Модерна градска визия в динамичен район с удобна инфраструктура и близост до зелени площи - отлична комбинация между удобство, стил и спокойствие
164 000 €320 756,12 лв.
(1 308 €/кв.м.) (2 558,23 лв./кв.м.)125.31 кв.м.

Калина Иванова
Старши брокер, Варна

Продажба
За частни лица
Четиристаен апартамент в Нов мащабен жилищен проект в кв. Кайсиева градина
гр. Варна , кв. "Кайсиева градина"
Модерна градска визия в динамичен район с удобна инфраструктура и близост до зелени площи - отлична комбинация между удобство, стил и спокойствие
166 500 €325 645,70 лв.
(1 307 €/кв.м.) (2 556,27 лв./кв.м.)127.30 кв.м.

Калина Иванова
Старши брокер, Варна

Продажба
За частни лица
Четиристаен апартамент в Нов мащабен жилищен проект в кв. Кайсиева градина
гр. Варна , кв. "Кайсиева градина"
Модерна градска визия в динамичен район с удобна инфраструктура и близост до зелени площи - отлична комбинация между удобство, стил и спокойствие
164 000 €320 756,12 лв.
(1 308 €/кв.м.) (2 558,23 лв./кв.м.)125.31 кв.м.

Калина Иванова
Старши брокер, Варна

Продажба
За частни лица
Четиристаен апартамент в Нов мащабен жилищен проект в кв. Кайсиева градина
гр. Варна , кв. "Кайсиева градина"
Модерна градска визия в динамичен район с удобна инфраструктура и близост до зелени площи - отлична комбинация между удобство, стил и спокойствие
166 500 €325 645,70 лв.
(1 307 €/кв.м.) (2 556,27 лв./кв.м.)127.30 кв.м.

Калина Иванова
Старши брокер, Варна

Продажба
За частни лица
Четиристаен апартамент в Нов мащабен жилищен проект в кв. Кайсиева градина
гр. Варна , кв. "Кайсиева градина"
Модерна градска визия в динамичен район с удобна инфраструктура и близост до зелени площи - отлична комбинация между удобство, стил и спокойствие
164 000 €320 756,12 лв.
(1 308 €/кв.м.) (2 558,23 лв./кв.м.)125.31 кв.м.

Калина Иванова
Старши брокер, Варна

Продажба
За частни лица
Четиристаен апартамент в Нов мащабен жилищен проект в кв. Кайсиева градина
гр. Варна , кв. "Кайсиева градина"
Модерна градска визия в динамичен район с удобна инфраструктура и близост до зелени площи - отлична комбинация между удобство, стил и спокойствие
166 500 €325 645,70 лв.
(1 307 €/кв.м.) (2 556,27 лв./кв.м.)127.30 кв.м.

Калина Иванова
Старши брокер, Варна

Продажба
За частни лица
Четиристаен апартамент в Нов мащабен жилищен проект в кв. Кайсиева градина
гр. Варна , кв. "Кайсиева градина"
Модерна градска визия в динамичен район с удобна инфраструктура и близост до зелени площи - отлична комбинация между удобство, стил и спокойствие
164 000 €320 756,12 лв.
(1 308 €/кв.м.) (2 558,23 лв./кв.м.)125.31 кв.м.

Калина Иванова
Старши брокер, Варна

Продажба
За частни лица
Четиристаен апартамент в Нов мащабен жилищен проект в кв. Кайсиева градина
гр. Варна , кв. "Кайсиева градина"
Модерна градска визия в динамичен район с удобна инфраструктура и близост до зелени площи - отлична комбинация между удобство, стил и спокойствие
166 500 €325 645,70 лв.
(1 307 €/кв.м.) (2 556,27 лв./кв.м.)127.30 кв.м.

Калина Иванова
Старши брокер, Варна

Продажба
За частни лица
Четиристаен апартамент в Нов мащабен жилищен проект в кв. Кайсиева градина
гр. Варна , кв. "Кайсиева градина"
Модерна градска визия в динамичен район с удобна инфраструктура и близост до зелени площи - отлична комбинация между удобство, стил и спокойствие
164 000 €320 756,12 лв.
(1 308 €/кв.м.) (2 558,23 лв./кв.м.)125.31 кв.м.

Калина Иванова
Старши брокер, Варна

Продажба
За частни лица
Четиристаен апартамент в Нов мащабен жилищен проект в кв. Кайсиева градина
гр. Варна , кв. "Кайсиева градина"
Модерна градска визия в динамичен район с удобна инфраструктура и близост до зелени площи - отлична комбинация между удобство, стил и спокойствие
166 500 €325 645,70 лв.
(1 307 €/кв.м.) (2 556,27 лв./кв.м.)127.30 кв.м.

Калина Иванова
Старши брокер, Варна

Продажба
За частни лица
Четиристаен апартамент в Нов мащабен жилищен проект в кв. Кайсиева градина
гр. Варна , кв. "Кайсиева градина"
Модерна градска визия в динамичен район с удобна инфраструктура и близост до зелени площи - отлична комбинация между удобство, стил и спокойствие
164 000 €320 756,12 лв.
(1 308 €/кв.м.) (2 558,23 лв./кв.м.)125.31 кв.м.

Калина Иванова
Старши брокер, Варна

Продажба
За частни лица
Двустаен апартамент в Нов мащабен жилищен проект в кв. Кайсиева градина
гр. Варна , кв. "Кайсиева градина"
Модерна градска визия в динамичен район с удобна инфраструктура и близост до зелени площи - отлична комбинация между удобство, стил и спокойствие
104 000 €203 406,32 лв.
(1 498 €/кв.м.) (2 929,83 лв./кв.м.)69.41 кв.м.

Калина Иванова
Старши брокер, Варна

Продажба
За частни лица
Четиристаен апартамент в Нов мащабен жилищен проект в кв. Кайсиева градина
гр. Варна , кв. "Кайсиева градина"
Модерна градска визия в динамичен район с удобна инфраструктура и близост до зелени площи - отлична комбинация между удобство, стил и спокойствие
166 500 €325 645,70 лв.
(1 307 €/кв.м.) (2 556,27 лв./кв.м.)127.30 кв.м.

Калина Иванова
Старши брокер, Варна

Продажба
За частни лица
Тристаен апартамент в Нов мащабен жилищен проект в кв. Кайсиева градина
гр. Варна , кв. "Кайсиева градина"
Модерна градска визия в динамичен район с удобна инфраструктура и близост до зелени площи - отлична комбинация между удобство, стил и спокойствие
139 000 €271 860,37 лв.
(1 238 €/кв.м.) (2 421,32 лв./кв.м.)112.19 кв.м.

Калина Иванова
Старши брокер, Варна

Продажба
За частни лица
Двустаен апартамент в Нов мащабен жилищен проект в кв. Кайсиева градина
гр. Варна , кв. "Кайсиева градина"
Модерна градска визия в динамичен район с удобна инфраструктура и близост до зелени площи - отлична комбинация между удобство, стил и спокойствие
112 500 €220 030,88 лв.
(1 193 €/кв.м.) (2 333,31 лв./кв.м.)94.23 кв.м.

Калина Иванова
Старши брокер, Варна

Продажба
За частни лица
Двустаен апартамент в Нов мащабен жилищен проект в кв. Кайсиева градина
гр. Варна , кв. "Кайсиева градина"
Модерна градска визия в динамичен район с удобна инфраструктура и близост до зелени площи - отлична комбинация между удобство, стил и спокойствие
112 500 €220 030,88 лв.
(1 193 €/кв.м.) (2 333,31 лв./кв.м.)94.23 кв.м.

Калина Иванова
Старши брокер, Варна

Продажба
За частни лица
Тристаен апартамент в Нов мащабен жилищен проект в кв. Кайсиева градина
гр. Варна , кв. "Кайсиева градина"
Модерна градска визия в динамичен район с удобна инфраструктура и близост до зелени площи - отлична комбинация между удобство, стил и спокойствие
139 000 €271 860,37 лв.
(1 235 €/кв.м.) (2 415,45 лв./кв.м.)112.46 кв.м.

Калина Иванова
Старши брокер, Варна

Продажба
За частни лица
Тристаен апартамент в Нов мащабен жилищен проект в кв. Кайсиева градина
гр. Варна , кв. "Кайсиева градина"
Модерна градска визия в динамичен район с удобна инфраструктура и близост до зелени площи - отлична комбинация между удобство, стил и спокойствие
133 500 €261 103,31 лв.
(1 375 €/кв.м.) (2 689,27 лв./кв.м.)97.04 кв.м.

Калина Иванова
Старши брокер, Варна

Продажба
За частни лица
Тристаен апартамент в Нов мащабен жилищен проект в кв. Кайсиева градина
гр. Варна , кв. "Кайсиева градина"
Модерна градска визия в динамичен район с удобна инфраструктура и близост до зелени площи - отлична комбинация между удобство, стил и спокойствие
134 500 €263 059,14 лв.
(1 369 €/кв.м.) (2 677,53 лв./кв.м.)98.18 кв.м.

Калина Иванова
Старши брокер, Варна

Продажба
За частни лица
Тристаен апартамент в Нов мащабен жилищен проект в кв. Кайсиева градина
гр. Варна , кв. "Кайсиева градина"
Модерна градска визия в динамичен район с удобна инфраструктура и близост до зелени площи - отлична комбинация между удобство, стил и спокойствие
133 500 €261 103,31 лв.
(1 375 €/кв.м.) (2 689,27 лв./кв.м.)97.04 кв.м.

Калина Иванова
Старши брокер, Варна
Още имоти в кв. Кайсиева градина

Продажба
За частни лица
Двустаен апартамент пред Акт 16 в кв. Кайсиева градина
гр. Варна , кв. "Кайсиева градина"
Новопостроен апартамент до възлов булевард във Варна
Двустаен апартамент пред Акт 16 в кв. Кайсиева градина - Новопостроен апартамент до възлов булевард във Варна

Продажба
За частни лица
Нова сграда съчетание от модерна архитектура и естествени елементи в кв. Кайсиева градина
гр. Варна , кв. "Кайсиева градина"
Отлично разпределени жилища с 1, 2 и 3 спални в предпочитан район на град Варна
Нова сграда съчетание от модерна архитектура и естествени елементи в кв. Кайсиева градина - Отлично разпределени жилища с 1, 2 и 3 спални в предпочитан район на град Варна
от 99 000 €(от 193 627,17 лв.)
(1 337 €/кв.м. - 1 703 €/кв.м.)(2 614,94 лв./кв.м. - 3 330,78 лв./кв.м.)Площ: 63.53 - 119.44 кв.м.

Калина Иванова
Старши брокер, Варна

Наем
Търговско помещение със статут аптека под наем в кв. Кайсиева градина
гр. Варна , кв. "Кайсиева градина"
Имот, подходящ за аптека в оживен район
Търговско помещение със статут аптека под наем в кв. Кайсиева градина - Имот, подходящ за аптека в оживен район

Продажба
Жилищен комплекс сред зеленина и спокойствие
гр. Варна , кв. "Кайсиева градина"
Апартаменти с топ локация в кв. Кайсиева градина
Жилищен комплекс сред зеленина и спокойствие - Апартаменти с топ локация в кв. Кайсиева градина
от 104 970 €(от 205 303,48 лв.)
(1 350 €/кв.м. - 1 390 €/кв.м.)(2 640,37 лв./кв.м. - 2 718,60 лв./кв.м.)Площ: 77.76 - 119.42 кв.м.

Калина Иванова
Старши брокер, Варна
Още имоти в гр. Варна

Продажба
Хит
Лукс
Жилища в небостъргач - луксозен комплекс в Младост, Варна!
гр. Варна , кв. "Младост 1"
Висок клас апартаменти с уникални гледки в кв. Младост 1 на морската столица
Жилища в небостъргач - луксозен комплекс в Младост, Варна! - Висок клас апартаменти с уникални гледки в кв. Младост 1 на морската столица
от 102 900 €(от 201 254,91 лв.)
(1 424 €/кв.м. - 1 681 €/кв.м.)(2 785,10 лв./кв.м. - 3 287,75 лв./кв.м.)Площ: 68.20 - 118.32 кв.м.

Калина Иванова
Старши брокер, Варна

Продажба
Хит
Лукс
Жилищен комплекс с Акт 16 до плаж Кабакум, Варна
гр. Варна , кв. "м-т Ален мак"
Последни наличности! Луксозни апартаменти с директен достъп до плажа
Жилищен комплекс с Акт 16 до плаж Кабакум, Варна - Последни наличности! Луксозни апартаменти с директен достъп до плажа
от 256 000 €(от 500 692,48 лв.)
(1 199 €/кв.м. - 2 100 €/кв.м.)(2 345,04 лв./кв.м. - 4 107,24 лв./кв.м.)Площ: 186.80 - 213.49 кв.м.

Анна Ицова
Брокер, Варна

Наем
ново
Лукс
ПЪРВА ЛИНИЯ
Двустаен апартамент с морска гледка в комплекс Ла Мер / La Mer
гр. Варна , кв. "Чайка"
Обзаведен имот под наем на първа линия на плаж Кабакум
Двустаен апартамент с морска гледка в комплекс Ла Мер / La Mer - Обзаведен имот под наем на първа линия на плаж Кабакум

Продажба
ново
Хит
Нова жилищна сграда в предпочитания за живеене кв. Възраждане 1
гр. Варна , кв. "Възраждане 1"
Последни двустайни и тристайни апартаменти до парк, магазини, булеварди, учебни заведения
Нова жилищна сграда в предпочитания за живеене кв. Възраждане 1 - Последни двустайни и тристайни апартаменти до парк, магазини, булеварди, учебни заведения
от 120 000 €(от 234 699,60 лв.)
(1 680 €/кв.м. - 1 932 €/кв.м.)(3 285,79 лв./кв.м. - 3 778,66 лв./кв.м.)Площ: 67.29 - 100.51 кв.м.

Калина Иванова
Старши брокер, Варна

Наем
ново
Обзаведен четиристаен апартамент в кв. Аспарухово – до Свободния университет
гр. Варна , кв. "Аспарухово"
Жилище в поддържана сграда с отлична локация във Варна
Обзаведен четиристаен апартамент в кв. Аспарухово – до Свободния университет - Жилище в поддържана сграда с отлична локация във Варна

Продажба
ново
Лукс
Луксозно реновиран тристаен апартамент в Балчик
гр. Балчик
Изцяло обзаведен и готов за нанасяне дом с дизайнерски мебели
Луксозно реновиран тристаен апартамент в Балчик - Изцяло обзаведен и готов за нанасяне дом с дизайнерски мебели

Продажба
ново
Последни апартаменти в нова сграда с Акт 15 в Изгрев
гр. Варна , кв. "Изгрев"
Жилища три спални и отлична локация в гр. Варна
Последни апартаменти в нова сграда с Акт 15 в Изгрев - Жилища три спални и отлична локация в гр. Варна
от 249 900 €(от 488 761,92 лв.)
(1 354 €/кв.м. - 1 537 €/кв.м.)(2 648,19 лв./кв.м. - 3 006,11 лв./кв.м.)Площ: 162.55 - 197.13 кв.м.

Калина Иванова
Старши брокер, Варна

Продажба
ново
Просторен апартамент за ремонт до парк Аспарухово
гр. Варна , кв. "Аспарухово"
Панорамно жилище с паркомясто и удобен достъп до плажа
Просторен апартамент за ремонт до парк Аспарухово - Панорамно жилище с паркомясто и удобен достъп до плажа
150 000 €(293 374,50 лв.)
(1 485 €/кв.м.)(2 904,70 лв./кв.м.)Площ: 101.00 кв.м.

Анна Ицова
Брокер, Варна

Продажба
ново
Лукс
Тристаен апартамент с Акт 16 в к.к. Св.Св. Константин и Елена
гр. Варна , кв. "Св. Св. Константин и Елена"
Луксозен апартамент до ключ на 150 м от плажа
Тристаен апартамент с Акт 16 в к.к. Св.Св. Константин и Елена - Луксозен апартамент до ключ на 150 м от плажа

Продажба
ново
За частни лица
Двустаен апартамент с Акт 16 в кв. Виница
гр. Варна , кв. "Виница"
Имот до ключ с гледка море
Двустаен апартамент с Акт 16 в кв. Виница - Имот до ключ с гледка море

Продажба
ново
Лукс
Нова двуетажна къща с нескриваема морска панорама в затворен комплекс в м-ст „Прибой“
гр. Варна , кв. "м-т Прибой"
Просторен имот с дворно място и две паркоместа в бутиков комплекс във Варна
Нова двуетажна къща с нескриваема морска панорама в затворен комплекс в м-ст „Прибой“ - Просторен имот с дворно място и две паркоместа в бутиков комплекс във Варна

Продажба
ново
Лукс
Новострояща се двуетажна къща в местност Прибой
гр. Варна , кв. "м-т Прибой"
Модерен семеен дом със собствен двор, две паркоместа и нескриваема морска панорама
Новострояща се двуетажна къща в местност Прибой - Модерен семеен дом със собствен двор, две паркоместа и нескриваема морска панорама

Продажба
ново
Готов за нанасяне двустаен апартамент в кв. Възраждане 1
гр. Варна , кв. "Възраждане 1"
Поддържан панелен апартамент до парк, възлов булевард, фитнес
Готов за нанасяне двустаен апартамент в кв. Възраждане 1 - Поддържан панелен апартамент до парк, възлов булевард, фитнес

Наем
ново
Лукс
ПЪРВА ЛИНИЯ
Двустаен апартамент с гледка към морето в комплекс „Аргищ Палас“
гр. Варна , кв. "Чайка"
Обзаведено жилище на първа линия в к. к. Златни пясъци
Двустаен апартамент с гледка към морето в комплекс „Аргищ Палас“ - Обзаведено жилище на първа линия в к. к. Златни пясъци

Продажба
ново
Голям промишлен парцел до бъдещата индустриална зона на с. Тополи
с. Тополи
Леснодостъпен регулиран парцел с лице на път Девня-Варна
Голям промишлен парцел до бъдещата индустриална зона на с. Тополи - Леснодостъпен регулиран парцел с лице на път Девня-Варна

Продажба
ново
За частни лица
Новопостроен двустаен апартамент в кв. Възраждане 1
гр. Варна , кв. "Възраждане 1"
Просторен апартамент висок клас строителство с панорамна гледка
Новопостроен двустаен апартамент в кв. Възраждане 1 - Просторен апартамент висок клас строителство с панорамна гледка

Наем
Лукс
Луксозен тристаен апартамент с морска панорама в кв. Бриз, Варна
гр. Варна , кв. "Бриз"
Елегантно обзаведен имот в затворен комплекс „Евъргрийн“ с паркомясто
Луксозен тристаен апартамент с морска панорама в кв. Бриз, Варна - Елегантно обзаведен имот в затворен комплекс „Евъргрийн“ с паркомясто

Продажба
Новопостроено студио до магазин Макао в кв. Виница
гр. Варна , кв. "Виница"
Обзаведено жилище в тих и живописен район в морската столица Варна
Новопостроено студио до магазин Макао в кв. Виница - Обзаведено жилище в тих и живописен район в морската столица Варна

Продажба
Тристаен апартамент с прилежащ двор и паркомясто в местност Пчелина
гр. Варна , кв. "м-т Пчелина"
Обзаведен апартамент в спокoкоен и живописен район на морската столица Варна
Тристаен апартамент с прилежащ двор и паркомясто в местност Пчелина - Обзаведен апартамент в спокoкоен и живописен район на морската столица Варна

Продажба
Многостаен апартамент в центъра на кв. Аспарухово
гр. Варна , кв. "Аспарухово"
Просторно тухлено жилище с подобрения до парк Аспарухово
Многостаен апартамент в центъра на кв. Аспарухово - Просторно тухлено жилище с подобрения до парк Аспарухово
158 500 €(309 999,06 лв.)
(1 378 €/кв.м.)(2 695,64 лв./кв.м.)Площ: 115.00 кв.м.

Калина Иванова
Старши брокер, Варна

Продажба
За частни лица
Двустаен апартамент пред Акт 16 в кв. Кайсиева градина
гр. Варна , кв. "Кайсиева градина"
Новопостроен апартамент до възлов булевард във Варна
Двустаен апартамент пред Акт 16 в кв. Кайсиева градина - Новопостроен апартамент до възлов булевард във Варна

Наем
Тристаен апартамент в района на Медицински университет – Варна
гр. Варна , кв. "Център"
Обзаведен апартамент на пешеходна разстояние от идеалния център на града
Тристаен апартамент в района на Медицински университет – Варна - Обзаведен апартамент на пешеходна разстояние от идеалния център на града

Продажба
За частни лица
Лукс
Нова къща с четири спални и двор в централната част на кв. Виница, Варна
гр. Варна , кв. "Виница"
Къща в един от най-предпочитаните варненски квартали
Нова къща с четири спални и двор в централната част на кв. Виница, Варна - Къща в един от най-предпочитаните варненски квартали

Продажба
За частни лица
Партерен гараж в кв. „Аспарухово“
гр. Варна , кв. "Аспарухово"
Функционален имот с ток и вода в централната част на района
Партерен гараж в кв. „Аспарухово“ - Функционален имот с ток и вода в централната част на района

Продажба
Лукс
Луксозен апартамент с 3 спални в идеалния център на Варна
гр. Варна , кв. "Център"
Модерно жилище с възможност за покупка на подземно паркомясто за две коли и мазе
Луксозен апартамент с 3 спални в идеалния център на Варна - Модерно жилище с възможност за покупка на подземно паркомясто за две коли и мазе
595 000 €(1 163 718,85 лв.)
(4 364 €/кв.м.)(8 534,79 лв./кв.м.)Площ: 136.35 кв.м.

Калин Чернев
Регионален мениджър, Варна
Вижте още имоти в кв. "Кайсиева градина" в град Варна:
- Апартаменти (различни типове) в кв. "Кайсиева градина"
- Къщи в кв. "Кайсиева градина"
- Офиси в кв. "Кайсиева градина"
- Магазини в кв. "Кайсиева градина"
- Земи в кв. "Кайсиева градина"
- Всички имоти в кв. "Кайсиева градина"
Вижте още имоти в град Варна:
Абонирайте се за нашия канал
