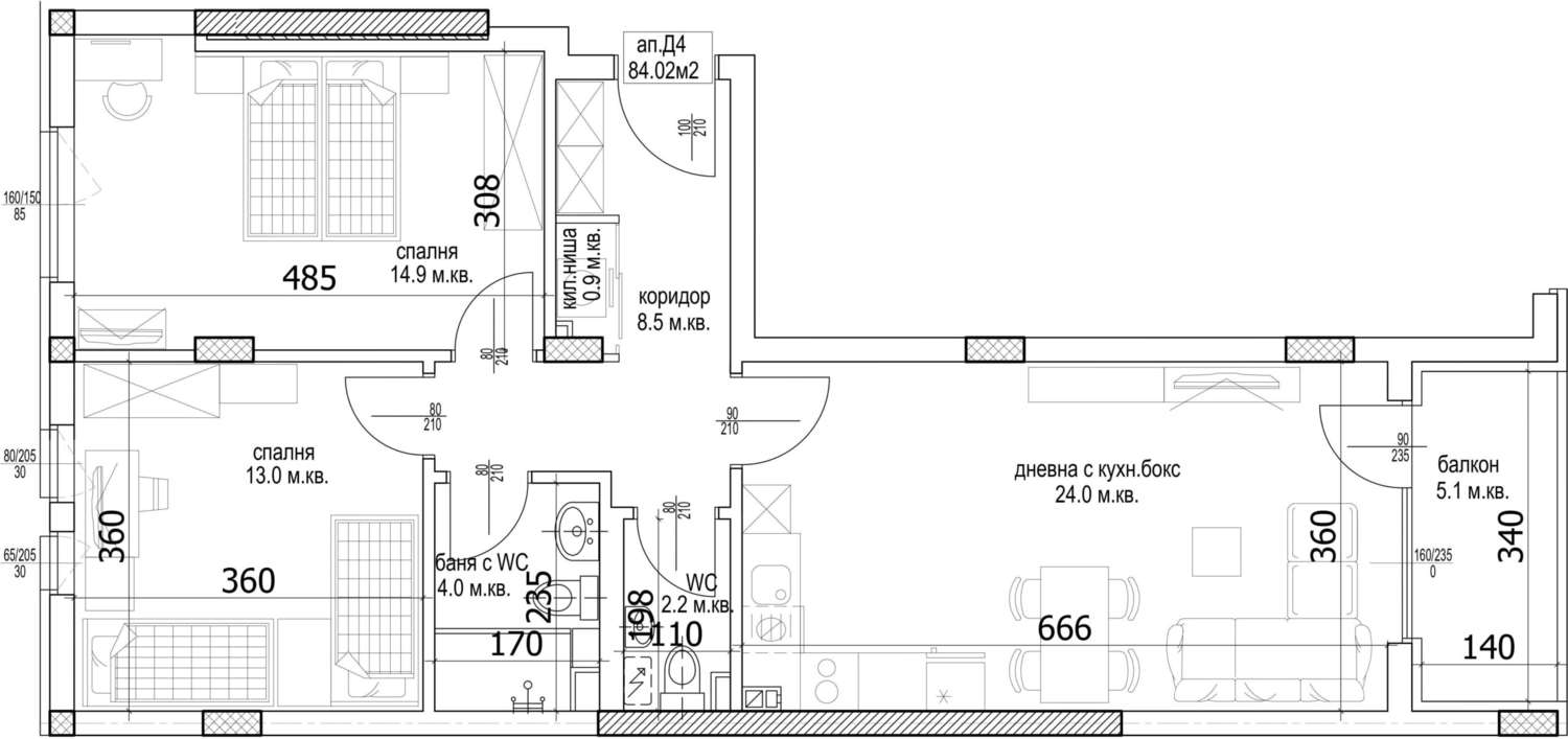
апартамент  D4 , обща площ 98.59 кв.м. (нетна площ 84.02 кв.м. + общи части 14.57 кв.м.).
Предлагаме за продажба разнообразие от функционално разпределени апартаменти в нов мащабен проект на доказала се фирма в кв. Кайсиева градина. Отличава се с подчертана градска визия и естетично балансирана фасада, разнообразие в цветовите елементи и функционално разпределение на обемите. Имотът е разположен в динамично развиващ се район с удобна инфраструктура и близост до зелени площи - отлична комбинация между удобство, стил и спокойствие.
• Сграда 1 е проектирана с пет самостоятелни входа. Визията ѝ съчетава модерна фасадна композиция с топли цветови акценти, които придават динамика и елегантност на силуета. Подземното ниво е изцяло отделено за гаражи и паркоместа, а в дворното пространство са обособени външни зони за паркиране и зелени площи. 
• Сграда 2 се състои от 4 входа, разпределени така, че да осигурят удобство и функционалност за живущите. Подземното ниво предлага гаражи и паркоместа, а в зоната около сградата са разположени допълнителни външни паркоместа и зелени площи за отдих. Контрастът между топли и неутрални тонове създава естетически баланс, а широките балкони и големите прозорци осигуряват максимална светлина във всеки апартамент.
Фасадата на сградата е изградена с комбинация от модерни материали, които осигуряват енергийна ефективност и устойчивост. Комплексът е изграден по съвременни инженерни стандарти с армирани бетонни елементи и надеждна изолационна система. 
• Конструкцията гарантира стабилност, дълготрайност и защита при всякакви климатични условия. 
• Входовете и коридорите са проектирани с мисъл за удобството на обитателите – просторни стълбища, добре осветени зони и използвани висококачествени материали. 
• Общите части носят усещане за завършеност и създават комфортна жилищна среда. 
• Всеки вход разполага със съвременен асансьор, който осигурява лесен и безшумен достъп до всички етажи, включително подземните гаражи. Това гарантира удобство както за семейства с деца, така и за хора с намалена подвижност. 
• Покривът на сградата е плосък и изпълнен с висок клас хидро- и топлоизолация, отговарящ на актуалните енергийни стандарти. 
• ВиК инсталацията е изградена от материали с доказано качество, които гарантират надеждност и оптимално налягане във всеки момент. Системата е проектирана така, че да осигурява лесна поддръжка и дългосрочна издръжливост. 
• Сградите са оборудвани с модерни електроинсталации и предвидена възможност за интегриране на „умен дом“ решения. Всички апартаменти разполагат с достатъчно точки за захранване и сигурни ел. табла, отговарящи на най-новите стандарти.
На разположение на собствениците е и подземен паркинг с гаражи и паркоместа, достъпни директно чрез асансьорите на сградата. Предлагат се паркоместа и в двора.
Жилищата са разнообразни по площ и разпределения – от функционални апартаменти, подходящи за млади семейства, до просторни жилища с панорамни гледки. Цените на сайта са при вариант на плащане 1. Обадете ни се за повече информация и оглед.
Оглед на имота
Можем да организираме оглед на имота спрямо нашия график и възможностите за достъп до него. Заявете вашето желание за оглед, като се свържете с отговорния за офертата брокер по имейл или телефон.
Резервация на имота
Имотът може да бъде резервиран и свален от продажба със заплащане на депозит, след което се прекратява провеждането на огледи с други купувачи и започва подготовка на документите за сключване на предварителен и окончателен договор. Свържете се с отговорния брокер за подробна информация относно процедурата на покупка и начините за плащане.
Жилищен кредит
Ние си партнираме с водещите български банки и можем да ви свържем с техните консултанти за информация и кандидатстване за кредит.
									
									
								- Описание
 - Характеристики
 - Галерия
 - Местоположение
 - Ценова листа
 
																			Продажба
									
									
									
																											частни лица
									
									
									
									
									
								
								
								
								
																Тристаен апартамент в Нов мащабен жилищен проект в кв. Кайсиева градина
гр. Варна, кв."Кайсиева градина"Модерна градска визия в динамичен район с удобна инфраструктура и близост до зелени площи - отлична комбинация между удобство, стил и спокойствие
									Прочетете цялата информация
								
								
							Характеристики на имота
										
											Тип на имота										
										
											Тристаен апартамент										
									
									
										
											Реф. номер										
										
											Vna 88180										
									
									
										
											Площ										
										
											98.59 м2 (чиста площ: 84.02 м2 плюс общи части: 14.57 м2)
										
									
																			
											
												Спални											
											
												2											
										
																			
										
											Състояние										
										
											БДС (на шпакловка и замазка)										
									
									
																			
											
												Етаж											
											
												1												 от 9											
										
																				
											
												Асансьор											
											
												да											
										
																				
											
												Обзавеждане											
											
												Необзаведен											
										
																				
											
												Отопление											
											
												Климатици											
										
																				
											
												Тип строителство											
											
												Тухла, Ново строителство											
										
																					
												
													Изложение:												
												
													Изток, Запад, Север, Юг												
											
																						
												
													Година на построяване												
												
													2028												
											
																			
									Още информация за Нов мащабен жилищен проект в кв. Кайсиева градина:
																			
											
											План на имота
										
										
																						
													
													Планове
												
																							
											
												
												Ценова листа
											
																						
												Техническа спецификация
											
											
												
													
														Качество на въздуха													
												
																							
												Обзавеждане
											
																						
												Плащане
											
																						
												План на строителство
											
																				
										Снимки от въздуха
									
									
																		
										
										Общ план
									
									
									
																		
										360° изглед
									
									
									
									
									
										
										Инфо пакет
									
									
							Референтен номер: Vna 88180
Местоположение
гр. Варна, кв."Кайсиева градина"Удобства в района
- Автобусна спирка "ОБЩЕЖИТИЕТО-2" на 300 м. (4 мин.) - Автобус No: 14, 41
 - Детска градина "ДГ 39 "Приказка"" на 58 м. (1 мин.)
 - Детска градина на 903 м. (11 мин.)
 - Училище "ОУ Стоян Михайловски" на 102 м. (2 мин.)
 - Училище "ОУ Патриарх Евтимий" на 787 м. (10 мин.)
 - Хранителен магазин на 257 м. (4 мин.)
 - Супермаркет на 154 м. (2 мин.)
 - Супермаркет "My Market, бл. 11" на 750 м. (10 мин.)
 - Пазар на 1.1 км. (14 мин.)
 - Аптека на 254 м. (4 мин.)
 - Поща/Куриер "Speedy" на 720 м. (9 мин.)
 - Поща/Куриер "Пощенски клон 23 (9023)" на 1.1 км. (14 мин.)
 - Фризьорски салон на 1.1 км. (14 мин.)
 - Ресторант "Борисовата воденица" на 396 м. (5 мин.)
 - Ресторант на 922 м. (12 мин.)
 - Бар "Shisha Pharaohs" на 980 м. (12 мин.)
 - Детска площадка на 1.0 км. (13 мин.)
 - Музей "Музей Владислав Варненчик" на 990 м. (12 мин.)
 - Парк на 420 м. (6 мин.)
 - Паркинг на 272 м. (4 мин.)
 - Бензиностанция "Sevi Oil" на 420 м. (6 мин.)
 - Зарядна станция "Fines Charging" на 638 м. (8 мин.)
 - Автомивка "Bubbles Bay" на 447 м. (6 мин.)
 
ТРАНСПОРТ
УЧЕБНИ ЗАВЕДЕНИЯ
ПАЗАРУВАНЕ
УСЛУГИ
ЗАВЕДЕНИЯ
СПОРТ И СВОБОДНО ВРЕМЕ
ПРИРОДА И ЗАБЕЛЕЖИТЕЛНОСТИ
АВТОМОБИЛНИ УСЛУГИ
Изпратете запитване
127 000 €
(248 390,41 лв.)
- €
 - $
 - £
 
																В процес на строителство
																
																	Планирано завършване: 30.12.2028 г																
															
														
																Без комисионна
															
														
												
												
																									
														 Ценова листа 
													
												
											
											
																																												   */ ?>
											
											
													ЗА ПОВЕЧЕ ИНФОРМАЦИЯ
													Реф. номер: Vna 88180
													
												
											При обаждане, моля цитирайте референтния номер на имота.
																					Калина Иванова
Офис Варна бул. "Владислав Варненчик" 110, етаж 2, офис 4, Варна 9000 Всички оферти (113)
														
																Налични имоти в комплекса															
														
																226															
															
																имота															
														
																167															
															
																свободни															
														
																31															
															
																продадени															
														
																28															
															
																резервирани															
														Изпратете запитване
Още имоти в този комплекс
																
																	Продажба
																																																		
																
																	
																																																			За частни лица
																	
																	
																	
																	
																	
																
																															
															
																
																	Четиристаен апартамент в Нов мащабен жилищен проект в кв. Кайсиева градина																
																
																	гр. Варна																	, кв. "Кайсиева градина"																
																
																	Модерна градска визия в динамичен район с удобна инфраструктура и близост до зелени площи - отлична комбинация между удобство, стил и спокойствие																
																
																																	
															
														
																165 000 €322 711,95 лв.
															
															
																(1 242 €/кв.м.) (2 429,14 лв./кв.м.)132.75 кв.м.
															
															
															
																
																
																	
																		Калина Иванова																	
																	
																		Старши брокер, Варна																	
																
															
														
																
																	Продажба
																																																		
																
																	
																																																			За частни лица
																	
																	
																	
																	
																	
																
																															
															
																
																	Двустаен апартамент в Нов мащабен жилищен проект в кв. Кайсиева градина																
																
																	гр. Варна																	, кв. "Кайсиева градина"																
																
																	Модерна градска визия в динамичен район с удобна инфраструктура и близост до зелени площи - отлична комбинация между удобство, стил и спокойствие																
																
																																	
															
														
																113 500 €221 986,71 лв.
															
															
																(1 204 €/кв.м.) (2 354,82 лв./кв.м.)94.23 кв.м.
															
															
															
																
																
																	
																		Калина Иванова																	
																	
																		Старши брокер, Варна																	
																
															
														
																
																	Продажба
																																																		
																
																	
																																																			За частни лица
																	
																	
																	
																	
																	
																
																															
															
																
																	Четиристаен апартамент в Нов мащабен жилищен проект в кв. Кайсиева градина																
																
																	гр. Варна																	, кв. "Кайсиева градина"																
																
																	Модерна градска визия в динамичен район с удобна инфраструктура и близост до зелени площи - отлична комбинация между удобство, стил и спокойствие																
																
																																	
															
														
																171 000 €334 446,93 лв.
															
															
																(1 207 €/кв.м.) (2 360,69 лв./кв.м.)141.60 кв.м.
															
															
															
																
																
																	
																		Калина Иванова																	
																	
																		Старши брокер, Варна																	
																
															
														
																
																	Продажба
																																																		
																
																	
																																																			За частни лица
																	
																	
																	
																	
																	
																
																															
															
																
																	Четиристаен апартамент в Нов мащабен жилищен проект в кв. Кайсиева градина																
																
																	гр. Варна																	, кв. "Кайсиева градина"																
																
																	Модерна градска визия в динамичен район с удобна инфраструктура и близост до зелени площи - отлична комбинация между удобство, стил и спокойствие																
																
																																	
															
														
																165 000 €322 711,95 лв.
															
															
																(1 316 €/кв.м.) (2 573,87 лв./кв.м.)125.31 кв.м.
															
															
															
																
																
																	
																		Калина Иванова																	
																	
																		Старши брокер, Варна																	
																
															
														
																
																	Продажба
																																																		
																
																	
																																																			За частни лица
																	
																	
																	
																	
																	
																
																															
															
																
																	Четиристаен апартамент в Нов мащабен жилищен проект в кв. Кайсиева градина																
																
																	гр. Варна																	, кв. "Кайсиева градина"																
																
																	Модерна градска визия в динамичен район с удобна инфраструктура и близост до зелени площи - отлична комбинация между удобство, стил и спокойствие																
																
																																	
															
														
																167 500 €327 601,53 лв.
															
															
																(1 315 €/кв.м.) (2 571,92 лв./кв.м.)127.30 кв.м.
															
															
															
																
																
																	
																		Калина Иванова																	
																	
																		Старши брокер, Варна																	
																
															
														
																
																	Продажба
																																																		
																
																	
																																																			За частни лица
																	
																	
																	
																	
																	
																
																															
															
																
																	Четиристаен апартамент в Нов мащабен жилищен проект в кв. Кайсиева градина																
																
																	гр. Варна																	, кв. "Кайсиева градина"																
																
																	Модерна градска визия в динамичен район с удобна инфраструктура и близост до зелени площи - отлична комбинация между удобство, стил и спокойствие																
																
																																	
															
														
																167 500 €327 601,53 лв.
															
															
																(1 315 €/кв.м.) (2 571,92 лв./кв.м.)127.30 кв.м.
															
															
															
																
																
																	
																		Калина Иванова																	
																	
																		Старши брокер, Варна																	
																
															
														
																
																	Продажба
																																																		
																
																	
																																																			За частни лица
																	
																	
																	
																	
																	
																
																															
															
																
																	Четиристаен апартамент в Нов мащабен жилищен проект в кв. Кайсиева градина																
																
																	гр. Варна																	, кв. "Кайсиева градина"																
																
																	Модерна градска визия в динамичен район с удобна инфраструктура и близост до зелени площи - отлична комбинация между удобство, стил и спокойствие																
																
																																	
															
														
																167 500 €327 601,53 лв.
															
															
																(1 315 €/кв.м.) (2 571,92 лв./кв.м.)127.30 кв.м.
															
															
															
																
																
																	
																		Калина Иванова																	
																	
																		Старши брокер, Варна																	
																
															
														
																
																	Продажба
																																																		
																
																	
																																																			За частни лица
																	
																	
																	
																	
																	
																
																															
															
																
																	Четиристаен апартамент в Нов мащабен жилищен проект в кв. Кайсиева градина																
																
																	гр. Варна																	, кв. "Кайсиева градина"																
																
																	Модерна градска визия в динамичен район с удобна инфраструктура и близост до зелени площи - отлична комбинация между удобство, стил и спокойствие																
																
																																	
															
														
																165 000 €322 711,95 лв.
															
															
																(1 316 €/кв.м.) (2 573,87 лв./кв.м.)125.31 кв.м.
															
															
															
																
																
																	
																		Калина Иванова																	
																	
																		Старши брокер, Варна																	
																
															
														
																
																	Продажба
																																																		
																
																	
																																																			За частни лица
																	
																	
																	
																	
																	
																
																															
															
																
																	Четиристаен апартамент в Нов мащабен жилищен проект в кв. Кайсиева градина																
																
																	гр. Варна																	, кв. "Кайсиева градина"																
																
																	Модерна градска визия в динамичен район с удобна инфраструктура и близост до зелени площи - отлична комбинация между удобство, стил и спокойствие																
																
																																	
															
														
																167 500 €327 601,53 лв.
															
															
																(1 315 €/кв.м.) (2 571,92 лв./кв.м.)127.30 кв.м.
															
															
															
																
																
																	
																		Калина Иванова																	
																	
																		Старши брокер, Варна																	
																
															
														
																
																	Продажба
																																																		
																
																	
																																																			За частни лица
																	
																	
																	
																	
																	
																
																															
															
																
																	Четиристаен апартамент в Нов мащабен жилищен проект в кв. Кайсиева градина																
																
																	гр. Варна																	, кв. "Кайсиева градина"																
																
																	Модерна градска визия в динамичен район с удобна инфраструктура и близост до зелени площи - отлична комбинация между удобство, стил и спокойствие																
																
																																	
															
														
																165 000 €322 711,95 лв.
															
															
																(1 316 €/кв.м.) (2 573,87 лв./кв.м.)125.31 кв.м.
															
															
															
																
																
																	
																		Калина Иванова																	
																	
																		Старши брокер, Варна																	
																
															
														
																
																	Продажба
																																																		
																
																	
																																																			За частни лица
																	
																	
																	
																	
																	
																
																															
															
																
																	Четиристаен апартамент в Нов мащабен жилищен проект в кв. Кайсиева градина																
																
																	гр. Варна																	, кв. "Кайсиева градина"																
																
																	Модерна градска визия в динамичен район с удобна инфраструктура и близост до зелени площи - отлична комбинация между удобство, стил и спокойствие																
																
																																	
															
														
																167 500 €327 601,53 лв.
															
															
																(1 315 €/кв.м.) (2 571,92 лв./кв.м.)127.30 кв.м.
															
															
															
																
																
																	
																		Калина Иванова																	
																	
																		Старши брокер, Варна																	
																
															
														
																
																	Продажба
																																																		
																
																	
																																																			За частни лица
																	
																	
																	
																	
																	
																
																															
															
																
																	Четиристаен апартамент в Нов мащабен жилищен проект в кв. Кайсиева градина																
																
																	гр. Варна																	, кв. "Кайсиева градина"																
																
																	Модерна градска визия в динамичен район с удобна инфраструктура и близост до зелени площи - отлична комбинация между удобство, стил и спокойствие																
																
																																	
															
														
																165 000 €322 711,95 лв.
															
															
																(1 316 €/кв.м.) (2 573,87 лв./кв.м.)125.31 кв.м.
															
															
															
																
																
																	
																		Калина Иванова																	
																	
																		Старши брокер, Варна																	
																
															
														
																
																	Продажба
																																																		
																
																	
																																																			За частни лица
																	
																	
																	
																	
																	
																
																															
															
																
																	Четиристаен апартамент в Нов мащабен жилищен проект в кв. Кайсиева градина																
																
																	гр. Варна																	, кв. "Кайсиева градина"																
																
																	Модерна градска визия в динамичен район с удобна инфраструктура и близост до зелени площи - отлична комбинация между удобство, стил и спокойствие																
																
																																	
															
														
																167 500 €327 601,53 лв.
															
															
																(1 315 €/кв.м.) (2 571,92 лв./кв.м.)127.30 кв.м.
															
															
															
																
																
																	
																		Калина Иванова																	
																	
																		Старши брокер, Варна																	
																
															
														
																
																	Продажба
																																																		
																
																	
																																																			За частни лица
																	
																	
																	
																	
																	
																
																															
															
																
																	Четиристаен апартамент в Нов мащабен жилищен проект в кв. Кайсиева градина																
																
																	гр. Варна																	, кв. "Кайсиева градина"																
																
																	Модерна градска визия в динамичен район с удобна инфраструктура и близост до зелени площи - отлична комбинация между удобство, стил и спокойствие																
																
																																	
															
														
																165 000 €322 711,95 лв.
															
															
																(1 316 €/кв.м.) (2 573,87 лв./кв.м.)125.31 кв.м.
															
															
															
																
																
																	
																		Калина Иванова																	
																	
																		Старши брокер, Варна																	
																
															
														
																
																	Продажба
																																																		
																
																	
																																																			За частни лица
																	
																	
																	
																	
																	
																
																															
															
																
																	Четиристаен апартамент в Нов мащабен жилищен проект в кв. Кайсиева градина																
																
																	гр. Варна																	, кв. "Кайсиева градина"																
																
																	Модерна градска визия в динамичен район с удобна инфраструктура и близост до зелени площи - отлична комбинация между удобство, стил и спокойствие																
																
																																	
															
														
																167 500 €327 601,53 лв.
															
															
																(1 315 €/кв.м.) (2 571,92 лв./кв.м.)127.30 кв.м.
															
															
															
																
																
																	
																		Калина Иванова																	
																	
																		Старши брокер, Варна																	
																
															
														
																
																	Продажба
																																																		
																
																	
																																																			За частни лица
																	
																	
																	
																	
																	
																
																															
															
																
																	Тристаен апартамент в Нов мащабен жилищен проект в кв. Кайсиева градина																
																
																	гр. Варна																	, кв. "Кайсиева градина"																
																
																	Модерна градска визия в динамичен район с удобна инфраструктура и близост до зелени площи - отлична комбинация между удобство, стил и спокойствие																
																
																																	
															
														
																140 000 €273 816,20 лв.
															
															
																(1 247 €/кв.м.) (2 438,92 лв./кв.м.)112.19 кв.м.
															
															
															
																
																
																	
																		Калина Иванова																	
																	
																		Старши брокер, Варна																	
																
															
														
																
																	Продажба
																																																		
																
																	
																																																			За частни лица
																	
																	
																	
																	
																	
																
																															
															
																
																	Двустаен апартамент в Нов мащабен жилищен проект в кв. Кайсиева градина																
																
																	гр. Варна																	, кв. "Кайсиева градина"																
																
																	Модерна градска визия в динамичен район с удобна инфраструктура и близост до зелени площи - отлична комбинация между удобство, стил и спокойствие																
																
																																	
															
														
																113 500 €221 986,71 лв.
															
															
																(1 204 €/кв.м.) (2 354,82 лв./кв.м.)94.23 кв.м.
															
															
															
																
																
																	
																		Калина Иванова																	
																	
																		Старши брокер, Варна																	
																
															
														
																
																	Продажба
																																																		
																
																	
																																																			За частни лица
																	
																	
																	
																	
																	
																
																															
															
																
																	Тристаен апартамент в Нов мащабен жилищен проект в кв. Кайсиева градина																
																
																	гр. Варна																	, кв. "Кайсиева градина"																
																
																	Модерна градска визия в динамичен район с удобна инфраструктура и близост до зелени площи - отлична комбинация между удобство, стил и спокойствие																
																
																																	
															
														
																140 000 €273 816,20 лв.
															
															
																(1 244 €/кв.м.) (2 433,05 лв./кв.м.)112.46 кв.м.
															
															
															
																
																
																	
																		Калина Иванова																	
																	
																		Старши брокер, Варна																	
																
															
														
																
																	Продажба
																																																		
																
																	
																																																			За частни лица
																	
																	
																	
																	
																	
																
																															
															
																
																	Тристаен апартамент в Нов мащабен жилищен проект в кв. Кайсиева градина																
																
																	гр. Варна																	, кв. "Кайсиева градина"																
																
																	Модерна градска визия в динамичен район с удобна инфраструктура и близост до зелени площи - отлична комбинация между удобство, стил и спокойствие																
																
																																	
															
														
																134 500 €263 059,14 лв.
															
															
																(1 386 €/кв.м.) (2 710,78 лв./кв.м.)97.04 кв.м.
															
															
															
																
																
																	
																		Калина Иванова																	
																	
																		Старши брокер, Варна																	
																
															
														
																
																	Продажба
																																																		
																
																	
																																																			За частни лица
																	
																	
																	
																	
																	
																
																															
															
																
																	Тристаен апартамент в Нов мащабен жилищен проект в кв. Кайсиева градина																
																
																	гр. Варна																	, кв. "Кайсиева градина"																
																
																	Модерна градска визия в динамичен район с удобна инфраструктура и близост до зелени площи - отлична комбинация между удобство, стил и спокойствие																
																
																																	
															
														
																135 500 €265 014,97 лв.
															
															
																(1 380 €/кв.м.) (2 699,05 лв./кв.м.)98.18 кв.м.
															
															
															
																
																
																	
																		Калина Иванова																	
																	
																		Старши брокер, Варна																	
																
															
														
																
																	Продажба
																																																		
																
																	
																																																			За частни лица
																	
																	
																	
																	
																	
																
																															
															
																
																	Тристаен апартамент в Нов мащабен жилищен проект в кв. Кайсиева градина																
																
																	гр. Варна																	, кв. "Кайсиева градина"																
																
																	Модерна градска визия в динамичен район с удобна инфраструктура и близост до зелени площи - отлична комбинация между удобство, стил и спокойствие																
																
																																	
															
														
																135 500 €265 014,97 лв.
															
															
																(1 380 €/кв.м.) (2 699,05 лв./кв.м.)98.18 кв.м.
															
															
															
																
																
																	
																		Калина Иванова																	
																	
																		Старши брокер, Варна																	
																
															
														
																
																	Продажба
																																																		
																
																	
																																																			За частни лица
																	
																	
																	
																	
																	
																
																															
															
																
																	Тристаен апартамент в Нов мащабен жилищен проект в кв. Кайсиева градина																
																
																	гр. Варна																	, кв. "Кайсиева градина"																
																
																	Модерна градска визия в динамичен район с удобна инфраструктура и близост до зелени площи - отлична комбинация между удобство, стил и спокойствие																
																
																																	
															
														
																135 500 €265 014,97 лв.
															
															
																(1 380 €/кв.м.) (2 699,05 лв./кв.м.)98.18 кв.м.
															
															
															
																
																
																	
																		Калина Иванова																	
																	
																		Старши брокер, Варна																	
																
															
														
																
																	Продажба
																																																		
																
																	
																																																			За частни лица
																	
																	
																	
																	
																	
																
																															
															
																
																	Тристаен апартамент в Нов мащабен жилищен проект в кв. Кайсиева градина																
																
																	гр. Варна																	, кв. "Кайсиева градина"																
																
																	Модерна градска визия в динамичен район с удобна инфраструктура и близост до зелени площи - отлична комбинация между удобство, стил и спокойствие																
																
																																	
															
														
																134 500 €263 059,14 лв.
															
															
																(1 386 €/кв.м.) (2 710,78 лв./кв.м.)97.04 кв.м.
															
															
															
																
																
																	
																		Калина Иванова																	
																	
																		Старши брокер, Варна																	
																
															
														
																
																	Продажба
																																																		
																
																	
																																																			За частни лица
																	
																	
																	
																	
																	
																
																															
															
																
																	Тристаен апартамент в Нов мащабен жилищен проект в кв. Кайсиева градина																
																
																	гр. Варна																	, кв. "Кайсиева градина"																
																
																	Модерна градска визия в динамичен район с удобна инфраструктура и близост до зелени площи - отлична комбинация между удобство, стил и спокойствие																
																
																																	
															
														
																135 500 €265 014,97 лв.
															
															
																(1 380 €/кв.м.) (2 699,05 лв./кв.м.)98.18 кв.м.
															
															
															
																
																
																	
																		Калина Иванова																	
																	
																		Старши брокер, Варна																	
																
															
														
																
																	Продажба
																																																		
																
																	
																																																			За частни лица
																	
																	
																	
																	
																	
																
																															
															
																
																	Тристаен апартамент в Нов мащабен жилищен проект в кв. Кайсиева градина																
																
																	гр. Варна																	, кв. "Кайсиева градина"																
																
																	Модерна градска визия в динамичен район с удобна инфраструктура и близост до зелени площи - отлична комбинация между удобство, стил и спокойствие																
																
																																	
															
														
																135 500 €265 014,97 лв.
															
															
																(1 380 €/кв.м.) (2 699,05 лв./кв.м.)98.18 кв.м.
															
															
															
																
																
																	
																		Калина Иванова																	
																	
																		Старши брокер, Варна																	
																
															
														Още имоти в кв. Кайсиева градина
														
															Продажба
															
																
																													
														
															
																																													За частни лица
															
															
															
															
															
														
																													
														
															Двустаен апартамент пред Акт 16 в кв. Кайсиева градина														
														
															гр. Варна															, кв. "Кайсиева градина"														
														
															Новопостроен апартамент до възлов булевард във Варна														
														
															Двустаен апартамент пред Акт 16 в кв. Кайсиева градина - Новопостроен апартамент до възлов булевард във Варна														
													
												
														
															Продажба
																													
														
															
																																													За частни лица
															
															
															
															
															
														
																											
													
														
															Нова сграда съчетание от модерна архитектура и естествени елементи в кв. Кайсиева градина														
														
															гр. Варна															, кв. "Кайсиева градина"														
														
															Отлично разпределени жилища с 1, 2 и 3 спални в предпочитан район на град Варна														
														
															Нова сграда съчетание от модерна архитектура и естествени елементи в кв. Кайсиева градина - Отлично разпределени жилища с 1, 2 и 3 спални в предпочитан район на град Варна														
													
												
															от 100 000 €(от 195 583 лв.)
														
														
															(1 443 €/кв.м. - 1 574 €/кв.м.)(2 822,26 лв./кв.м. - 3 078,48 лв./кв.м.)Площ: 63.53 - 119.44 кв.м. 
															
															
														
														
														
															
																
																	Калина Иванова																
																
																	Старши брокер, Варна																
															
														
													
														
															Продажба
																													
														
														
															Жилищен комплекс сред зеленина и спокойствие														
														
															гр. Варна															, кв. "Кайсиева градина"														
														
															Апартаменти с топ локация в кв. Кайсиева градина														
														
															Жилищен комплекс сред зеленина и спокойствие - Апартаменти с топ локация в кв. Кайсиева градина														
													
												
															от 104 970 €(от 205 303,48 лв.)
														
														
															(1 350 €/кв.м. - 1 390 €/кв.м.)(2 640,37 лв./кв.м. - 2 718,60 лв./кв.м.)Площ: 77.76 - 119.42 кв.м. 
															
															
														
														
														
															
																
																	Калина Иванова																
																
																	Старши брокер, Варна																
															
														
													Още имоти в гр. Варна
													
														Продажба
														
															
																											
													
														
														Хит																												
														
															
																Лукс															
														
														
														
														
														
													
																											
													
														Жилищен комплекс с Акт 16 до плаж Кабакум, Варна													
													
														гр. Варна														, кв. "м-т Ален мак"													
													
														Последни наличности! Луксозни апартаменти с директен достъп до плажа													
													
														Жилищен комплекс с Акт 16 до плаж Кабакум, Варна - Последни наличности! Луксозни апартаменти с директен достъп до плажа													
												
											
															от 256 000 €(от 500 692,48 лв.)
														
														
															(1 199 €/кв.м. - 2 100 €/кв.м.)(2 345,04 лв./кв.м. - 4 107,24 лв./кв.м.)Площ: 186.80 - 213.49 кв.м. 
															
															
														
														
														
															
																
																	Анна Ицова 																
																
																	Брокер, Варна																
															
														
													
													
														Продажба
														
															
																											
													
														
														Хит																												
														
															
																Лукс															
														
														
														
														
														
													
																											
													
														Жилища в небостъргач - луксозен комплекс в Младост, Варна!													
													
														гр. Варна														, кв. "Младост 1"													
													
														Висок клас апартаменти с уникални гледки в кв. Младост 1 на морската столица													
													
														Жилища в небостъргач - луксозен комплекс в Младост, Варна! - Висок клас апартаменти с уникални гледки в кв. Младост 1 на морската столица													
												
											
															от 107 900 €(от 211 034,06 лв.)
														
														
															(1 537 €/кв.м. - 1 717 €/кв.м.)(3 006,11 лв./кв.м. - 3 358,16 лв./кв.м.)Площ: 68.20 - 118.32 кв.м. 
															
															
														
														
														
															
																
																	Калина Иванова																
																
																	Старши брокер, Варна																
															
														
													
													
														Продажба
																											
													
																													
																ново															
															
																																										
														
															
																Лукс															
														
														
														
														
														
													
																											
													
														Просторна къща с морска панорама във Варна													
													
														гр. Варна														, кв. "Галата"													
													
														Имот с два гаража в престижния квартал Галата													
													
														Просторна къща с морска панорама във Варна - Имот с два гаража в престижния квартал Галата													
												
											
													
														Продажба
																											
													
																													
																ново															
															
																																										
														
														
														
														
														
													
																									
												
													
														Обзаведени апартаменти за продажба в целогодишен комплекс в Златни пясъци													
													
														к.к. Златни пясъци																											
													
														Просторни жилища с гледка към море, парк или басейн, подходящи за целогодишно живеене или инвестиция													
													
														Обзаведени апартаменти за продажба в целогодишен комплекс в Златни пясъци - Просторни жилища с гледка към море, парк или басейн, подходящи за целогодишно живеене или инвестиция													
												
											
															от 66 410 €(от 129 886,67 лв.)
														
														
															(1 000 €/кв.м. - 1 700 €/кв.м.)(1 955,83 лв./кв.м. - 3 324,91 лв./кв.м.)Площ: 63.24 - 104.87 кв.м. 
															
															
														
														
														
															
																
																	Калина Иванова																
																
																	Старши брокер, Варна																
															
														
													
													
														Продажба
																											
													
																													
																ново															
															
																																										За частни лица
														
															
																Лукс															
														
														
														
														
														
													
																											
													
														Бутикова жилищна сграда с модерна архитектура в кв. Виница													
													
														гр. Варна														, кв. "Виница"													
													
														Четириетажна сграда с нескриваема морска панорама до детска градина, автобусна спирка, супермаркети													
													
														Бутикова жилищна сграда с модерна архитектура в кв. Виница - Четириетажна сграда с нескриваема морска панорама до детска градина, автобусна спирка, супермаркети													
												
											
															от 94 100 €(от 184 043,60 лв.)
														
														
															(1 326 €/кв.м. - 1 824 €/кв.м.)(2 593,43 лв./кв.м. - 3 567,43 лв./кв.м.)Площ: 58.08 - 104.97 кв.м. 
															
															
														
														
														
															
																
																	Николай Витанов																
																
																	Брокер, Варна																
															
														
													
													
														Наем
																											
													
																													
																ново															
															
																																										
														
														
														
														
														
													
																											
													
														Офис с паркомясто и възлова локация в идеален център на гр. Варна													
													
														гр. Варна														, кв. "Център"													
													
														Бизнес имот подходящ за счетоводна фирма, адвокатска кантора, туристическа агенция													
													
														Офис с паркомясто и възлова локация в идеален център на гр. Варна - Бизнес имот подходящ за счетоводна фирма, адвокатска кантора, туристическа агенция													
												
											
													
														Наем
																											
													
																													
																ново															
															
																																										
														
														
														
														
														
													
																											
													
														Луксозен тристаен апартамент под наем с морска панорама и безплатен гараж в кв. Чайка, Варна													
													
														гр. Варна														, кв. "Чайка"													
													
														Нов, стилно обзаведен апартамент в луксозна сграда до Морската градина и плажа													
													
														Луксозен тристаен апартамент под наем с морска панорама и безплатен гараж в кв. Чайка, Варна - Нов, стилно обзаведен апартамент в луксозна сграда до Морската градина и плажа													
												
											
													
														Продажба
														
															
														
																-8%
																													
													
																													
																ново															
															
																																										
														
														
														
														
														
													
																											
													
														Двустаен апартамент с топ локация в район Гръцка махала													
													
														гр. Варна														, кв. "Гръцка махала"													
													
														Комфортно обзаведено жилище до Морската градина и Фестивален комплекс													
													
														Двустаен апартамент с топ локация в район Гръцка махала - Комфортно обзаведено жилище до Морската градина и Фестивален комплекс													
												
											
															249 000 €229 900 €487 лв.449 645,32 лв.
														
														
															(2 986 €/кв.м.)(5 839,55 лв./кв.м.)Площ: 77.00 кв.м. 
															
															
														
														
														
															
																
																	Анна Ицова 																
																
																	Брокер, Варна																
															
														
													
													
														Продажба
																											
													
																													
																ново															
															
																																										
														
															
																Лукс															
														ПЪРВА ЛИНИЯ
														
														
														
														
													
																											
													
														Обзаведен имот на първа линия до собствен плаж в к. к. Чайка													
													
														гр. Варна														, кв. "Чайка"													
													
														Двустаен апартамент с прекрасна гледка в комплекс Ла Мер / La Mer
													
													
														Обзаведен имот на първа линия до собствен плаж в к. к. Чайка - Двустаен апартамент с прекрасна гледка в комплекс Ла Мер / La Mer
													
												
											
													
														Продажба
																											
													
																													
																ново															
															
																																										
														
															
																Лукс															
														
														
														
														
														
													
																											
													
														Тристаен апартамент в нов комплекс в Ален Мак													
													
														гр. Варна														, кв. "м-т Ален мак"													
													
														Жилище с морска гледка в сграда ново строителство във Варна													
													
														Тристаен апартамент в нов комплекс в Ален Мак - Жилище с морска гледка в сграда ново строителство във Варна													
												
											
													
														Продажба
														
															
																											
													
																													
																ново															
															
																																										
														
															
																Лукс															
														
														
														
														
														
													
																											
													
														Нов дизайнерски двустаен апартамент в кв. Победа													
													
														гр. Варна														, кв. "Победа"													
													
														Стилно обзаведено жилище близо до Гранд Мол Варна													
													
														Нов дизайнерски двустаен апартамент в кв. Победа - Стилно обзаведено жилище близо до Гранд Мол Варна													
												
											
													
														Наем
																											
													
																													
																ново															
															
																																										
														
														
														
														
														
													
																											
													
														Тристаен апартамент под наем в централен район до Бизнес хотела													
													
														гр. Варна														, кв. "Колхозен пазар"													
													
														Южно жилище с обзавеждане и гледка към града и морето													
													
														Тристаен апартамент под наем в централен район до Бизнес хотела - Южно жилище с обзавеждане и гледка към града и морето													
												
											
													
														Наем
																											
													
																													
																ново															
															
																																										
														
														
														
														
														
													
																											
													
														Офис в луксозна сграда с отлична локация в центъра на гр. Варна													
													
														гр. Варна														, кв. "Център"													
													
														Комуникативен офис с 3 работни помещния близо до Макдоналдс Макдрайв-център													
													
														Офис в луксозна сграда с отлична локация в центъра на гр. Варна - Комуникативен офис с 3 работни помещния близо до Макдоналдс Макдрайв-център													
												
											
													
														Продажба
																											
													
																													
																ново															
															
																																										
														ПЪРВА ЛИНИЯ
														
														
														
														
													
																									
												
													
														Панорамен парцел на първа линия в местност Перчемлията													
													
														гр. Варна														, кв. "м-т Перчемлията"													
													
														Парцел с лице на асфалтов път и нескриваема гледка към морето и Златни Пясъци													
													
														Панорамен парцел на първа линия в местност Перчемлията - Парцел с лице на асфалтов път и нескриваема гледка към морето и Златни Пясъци													
												
											
													
														Продажба
																											
													
																													
																ново															
															
																																										
														
														
														
														
														
													
																									
												
													
														Двуетажна къща с двор и гараж във Варна, в близост до фабрика „Христо Ботев“													
													
														гр. Варна														, кв. "Христо Ботев"													
													
														Имот с потенциал и удобна локация в морската столица													
													
														Двуетажна къща с двор и гараж във Варна, в близост до фабрика „Христо Ботев“ - Имот с потенциал и удобна локация в морската столица													
												
											
													
														Наем
																											
													
																													
																ново															
															
																																										
														
															
																Лукс															
														
														
														
														
														
													
																											
													
														Двустаен обзаведен апартамент в луксозна сграда Гранд Каравела 													
													
														гр. Варна														, кв. "Център"													
													
														Обзаведено жилище под наем  на 50 от   хотел Черно море - Варна до главен булевард.													
													
														Двустаен обзаведен апартамент в луксозна сграда Гранд Каравела  - Обзаведено жилище под наем  на 50 от   хотел Черно море - Варна до главен булевард.													
												
											
															1 100 €1 000 €1,96 лв.1 955,83 лв.
														
														
															(14 €/кв.м.)(27,94 лв./кв.м.)Площ: 70.00 кв.м. 
															
															
														
														
														
															
																
																	Анна Ицова 																
																
																	Брокер, Варна																
															
														
													
													
														Наем
														
															
																											
													
																													
																ново															
															
																																										
														
														
														
														
														
													
																											
													
														Обзаведен четиристаен апартамент в кв. Аспарухово –до главен булевард 													
													
														гр. Варна														, кв. "Аспарухово"													
													
														Жилище в поддържана сграда с отлична локация във Варна													
													
														Обзаведен четиристаен апартамент в кв. Аспарухово –до главен булевард  - Жилище в поддържана сграда с отлична локация във Варна													
												
											
															500 €450 €977,92 лв.880,12 лв.
														
														
															(6,84 €/кв.м.)(13,39 лв./кв.м.)Площ: 65.75 кв.м. 
															
															
														
														
														
															
																
																	Анна Ицова 																
																
																	Брокер, Варна																
															
														
													
													
														Продажба
																											
													
													
														Урегулиран парцел с готов ПУП и комуникации в м. Ракитника, Варна													
													
														гр. Варна														, кв. "м-т Ракитника"													
													
														Идеален за къща или вила – само на минути от морето и природата													
													
														Урегулиран парцел с готов ПУП и комуникации в м. Ракитника, Варна - Идеален за къща или вила – само на минути от морето и природата													
												
											
													
														Продажба
																											
													
														
																																										
														
															
																Лукс															
														
														
														
														
														
													
																											
													
														Голям двустаен апартамент в нов комплекс в Ален Мак													
													
														гр. Варна														, кв. "м-т Ален мак"													
													
														Жилище с възможност за обособяване на допълнителна спалня													
													
														Голям двустаен апартамент в нов комплекс в Ален Мак - Жилище с възможност за обособяване на допълнителна спалня													
												
											
													
														Наем
																											
													
													
														Напълно обзаведен тристаен апартамент под наем в местност Горна Трака													
													
														гр. Варна														, кв. "м-т Горна Трака"													
													
														Комфортно жилище с морска панорама в комплекс от затворен тип													
													
														Напълно обзаведен тристаен апартамент под наем в местност Горна Трака - Комфортно жилище с морска панорама в комплекс от затворен тип													
												
											
													
														Продажба
																											
													
														
																																										За частни лица
														
														
														
														
														
													
																											
													
														Парцел за частна къща с гледка към морето в м-т „Сълзица“													
													
														гр. Варна														, кв. "м-т Сълзица"													
													
														Парцел в една от най-хубавите и близки вилни зони на гр. Варна													
													
														Парцел за частна къща с гледка към морето в м-т „Сълзица“ - Парцел в една от най-хубавите и близки вилни зони на гр. Варна													
												
											
													
														Продажба
														
															
																											
													
													
														Два панорамни парцела в жк. Изгрев													
													
														гр. Варна														, кв. "Изгрев"													
													
														Регулирани парцели в урбанизирана зона с отлична възможност за разнообразни инвестиционни проекти													
													
														Два панорамни парцела в жк. Изгрев - Регулирани парцели в урбанизирана зона с отлична възможност за разнообразни инвестиционни проекти													
												
											
													
														Наем
																											
													
													
														Новообзаведен двустаен апартамент в местност Долна Трака													
													
														гр. Варна														, кв. "м-т Долна Трака"													
													
														Модерно жилище с морска гледка и включено паркомясто, такса поддръжка, интернет и кабелна телевизия													
													
														Новообзаведен двустаен апартамент в местност Долна Трака - Модерно жилище с морска гледка и включено паркомясто, такса поддръжка, интернет и кабелна телевизия													
												
											
													
														Продажба
																											
													
														
																																										
														
															
																Лукс															
														
														
														
														
														
													
																									
												
													
														Тристаен апартамент с огромна тераса и морска гледка в кв. Бриз, Варна													
													
														гр. Варна														, кв. "Бриз"													
													
														Луксозно обзаведен апартамент с гараж, паркомясто и несравнима панорама													
													
														Тристаен апартамент с огромна тераса и морска гледка в кв. Бриз, Варна - Луксозно обзаведен апартамент с гараж, паркомясто и несравнима панорама													
												
											
															450 000 €(880 123,50 лв.)
														
														
															(2 113 €/кв.м.)(4 132,04 лв./кв.м.)Площ: 213.00 кв.м. 
															
															
														
														
														
															
																
																	Калин Чернев																
																
																	Регионален мениджър, Варна																
															
														
													
													
														Наем
																											
													
													
														Готов за нанасяне двустаен апартамент в затворен комплекс Бела Вита													
													
														гр. Варна														, кв. "Виница"													
													
														Модерен имот за дългосрочен наем с паркомясто в кв. Виница													
													
														Готов за нанасяне двустаен апартамент в затворен комплекс Бела Вита - Модерен имот за дългосрочен наем с паркомясто в кв. Виница													
												
											Вижте още имоти в кв. "Кайсиева градина" в град Варна:
- Апартаменти (различни типове) в кв. "Кайсиева градина"
 - Къщи в кв. "Кайсиева градина"
 - Офиси в кв. "Кайсиева градина"
 - Магазини в кв. "Кайсиева градина"
 - Земи в кв. "Кайсиева градина"
 - Всички имоти в кв. "Кайсиева градина"
 
Вижте още имоти в град Варна:
						
						Абонирайте се за нашия канал