Контакти Контакти
0
Здравейте,
Любими имоти (0)
Запазени търсения
Избрани за Вас
Известия
Абонаменти
Настройки
Изход
Затвори

Удобства в района

    ТРАНСПОРТ

    УЧЕБНИ ЗАВЕДЕНИЯ

  • Детска градина "Звънче" на 7.6 км.
  • Детска градина "ОДЗ "Самоково"" на 7.9 км.
  • Училище "ОУ „Св. Св. Кирил и Методий”" на 6.8 км.
  • Училище на 7.2 км.
  • ЛЕЧЕБНИ ЗАВЕДЕНИЯ

  • Болница на 7.9 км.
  • Болница на 7.9 км.
  • Медицински център "Медицински център" на 4.2 км.
  • ПАЗАРУВАНЕ

  • Хранителен магазин "Iceberg Shopping Center" на 4.4 км.
  • Супермаркет на 4.4 км.
  • Супермаркет "Рила" на 4.6 км.
  • Пазар на 7.7 км.
  • Мол на 7.7 км.
  • УСЛУГИ

  • Банка "ДСК" на 7.5 км.
  • Банка "Банка ДСК" на 7.6 км.
  • Аптека на 4.6 км.
  • Поща/Куриер "Поща" на 4.1 км.
  • Поща/Куриер "Еконт" на 7.4 км.
  • Фризьорски салон на 7.5 км.
  • Салон за красота "Салон за красота "REFRESH"" на 8.0 км.
  • Ветеринарен лекар на 7.7 км.
  • ЗАВЕДЕНИЯ

  • Ресторант "Restaurant Yagoda" на 3.2 км.
  • Ресторант "Чучулига" на 4.1 км.
  • Кафене на 5.7 км.
  • Бар "BJ's Bar" на 4.6 км.
  • Нощен клуб "Dance club Iceberg" на 4.4 км.
  • Казино на 7.6 км.
  • СПОРТ И СВОБОДНО ВРЕМЕ

  • Плувен басейн на 3.8 км.
  • Спортен терен "ролбан" на 6.0 км.
  • Тенис корт "Тенис корт" на 6.5 км.
  • Театър на 7.5 км.
  • Музей "Исторически музей" на 7.5 км.
  • Музей на 7.6 км.
  • ПРИРОДА И ЗАБЕЛЕЖИТЕЛНОСТИ

  • Парк на 4.2 км.
  • Градина на 7.8 км.
  • АВТОМОБИЛНИ УСЛУГИ

  • Паркинг на 2.9 км.
  • Бензиностанция "Юг" на 6.3 км.
  • Зарядна станция "Fines - Mura Hotel Borovets" на 4.4 км.
  • Автомивка на 8.0 км.
  • Автосервиз "Експерт сервиз - автосервиз" на 6.4 км.
  • ОБЩЕСТВЕНИ СГРАДИ И ИНСТИТУЦИИ

  • Съд "Районен съд Самоков" на 7.4 км.
  • Библиотека на 7.5 км.

Изпратете запитване

45 000
(88 012,35 лв.)
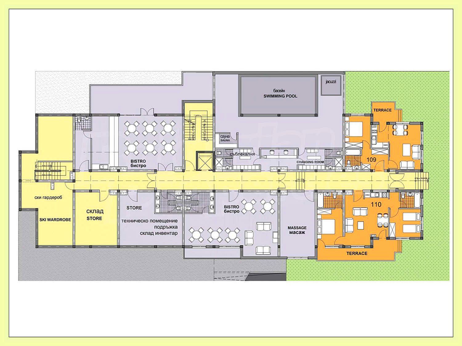
(1 207 €/м2)  (2 360,85 лв./м2) Площ: 37.28 м2   
  • $
  • £
Дължима комисиона
ЗА ПОВЕЧЕ ИНФОРМАЦИЯ Реф. номер: Bo 87887

При обаждане, моля цитирайте референтния номер на имота.

Стефан Абанозов

Стефан Абанозов

Офис Боровец
гр. Самоков, бул. Искър 121 Всички оферти (298)

Изпратете запитване

Още имоти в к.к. Боровец

Последен напълно обзаведен 3-стаен апартамент в уникален комплекс в Боровец.
Продажба
ЕксклузивноХит
Еуфория Клуб Хотел и Ризорт - твоят собствен рай в Боровец! к.к. Боровец Последен напълно обзаведен 3-стаен апартамент в уникален комплекс в Боровец. Еуфория Клуб Хотел и Ризорт - твоят собствен рай в Боровец! - Последен напълно обзаведен 3-стаен апартамент в уникален комплекс в Боровец.
от 150 000 (от 293 374,50 лв.)
(1 116 €/м2)(2 183,01 лв./м2)Площ: 134.39 - 134.39 м2
Стефан Абанозов Регионален мениджър, Боровец
Жилища до ключ в завършен комплекс в Боровец сред вековни борови гори. Възможност за пакетно обзавеждане
Продажба
ЕксклузивноХит
Феста Чамкория Форест Резиденс / Festa Chamkoria Forest Residence к.к. Боровец Жилища до ключ в завършен комплекс в Боровец сред вековни борови гори. Възможност за пакетно обзавеждане Феста Чамкория Форест Резиденс / Festa Chamkoria Forest Residence - Жилища до ключ в завършен комплекс в Боровец сред вековни борови гори. Възможност за пакетно обзавеждане
от 68 145 (от 133 280,04 лв.)
(1 006 €/м2 - 1 350 €/м2)(1 967,56 лв./м2 - 2 640,37 лв./м2)Площ: 59.00 - 126.43 м2
Стефан Абанозов Регионален мениджър, Боровец
Kомфортно обзаведен планински имот в централната част на Боровец
Продажба
Ваканционно студио в комплекс Флора/Flora к.к. Боровец Kомфортно обзаведен планински имот в централната част на Боровец Ваканционно студио в комплекс Флора/Flora - Kомфортно обзаведен планински имот в централната част на Боровец
109 995 (215 131,52 лв.)
(2 233 €/м2)(4 368,15 лв./м2)Площ: 49.25 м2
Стефан Абанозов Регионален мениджър, Боровец
Просторен апартамент „до ключ“ с две спални и достъп до СПА удобства в целогодишен комплекс
Продажба
Ексклузивно
Апартамент в комплекс Festa Chamkoria Forest Residence – сред боровите гори на Боровец к.к. Боровец Просторен апартамент „до ключ“ с две спални и достъп до СПА удобства в целогодишен комплекс Апартамент в комплекс Festa Chamkoria Forest Residence – сред боровите гори на Боровец - Просторен апартамент „до ключ“ с две спални и достъп до СПА удобства в целогодишен комплекс
161 879 (316 607,80 лв.)
(1 350 €/м2)(2 640,38 лв./м2)Площ: 119.91 м2
Стефан Абанозов Регионален мениджър, Боровец
Просторен тристаен апартамент „до ключ“ в целогодишен комплекс
Продажба
Апартамент с 2 спални в комплекс Festa Chamkoria Forest Residence к.к. Боровец Просторен тристаен апартамент „до ключ“ в целогодишен комплекс Апартамент с 2 спални в комплекс Festa Chamkoria Forest Residence - Просторен тристаен апартамент „до ключ“ в целогодишен комплекс
158 670 (310 331,55 лв.)
(1 255 €/м2)(2 454,57 лв./м2)Площ: 126.43 м2
Стефан Абанозов Регионален мениджър, Боровец
Уютно жилище до ключ с Акт 16 и прекрасна гледка към борова гора
Продажба
Студио в комплекс Феста Чамкория Форест Резиденс к.к. Боровец Уютно жилище до ключ с Акт 16 и прекрасна гледка към борова гора Студио в комплекс Феста Чамкория Форест Резиденс - Уютно жилище до ключ с Акт 16 и прекрасна гледка към борова гора
68 145 (133 280,04 лв.)
(1 155 €/м2)(2 258,98 лв./м2)Площ: 59.00 м2
Стефан Абанозов Регионален мениджър, Боровец
Ваканционен апартамент с гледка към борови гори до ски лифта
Продажба
Обзаведено студио в комплекс Флора / Flora в центъра на Боровец к.к. Боровец Ваканционен апартамент с гледка към борови гори до ски лифта Обзаведено студио в комплекс Флора / Flora в центъра на Боровец - Ваканционен апартамент с гледка към борови гори до ски лифта
101 000 (197 538,83 лв.)
(2 062 €/м2)(4 032,23 лв./м2)Площ: 48.99 м2
Стефан Абанозов Регионален мениджър, Боровец
Жилище в модерен комплекс с всички удобства в Боровец
Продажба
Ексклузивно
Апартамент с две спални в Еуфория Клуб Хотел и Ризорт / Euphoria Club Hotel & Resort к.к. Боровец Жилище в модерен комплекс с всички удобства в Боровец Апартамент с две спални в Еуфория Клуб Хотел и Ризорт / Euphoria Club Hotel & Resort - Жилище в модерен комплекс с всички удобства в Боровец
150 000 (293 374,50 лв.)
(1 116 €/м2)(2 183,01 лв./м2)Площ: 134.39 м2
Стефан Абанозов Регионален мениджър, Боровец
Едностаен апартамент с красива гледка до ски лифта в центъра на Боровец
Продажба
Обзаведено студио в комплекс Флора / Flora к.к. Боровец Едностаен апартамент с красива гледка до ски лифта в центъра на Боровец Обзаведено студио в комплекс Флора / Flora - Едностаен апартамент с красива гледка до ски лифта в центъра на Боровец
104 000 (203 406,32 лв.)
(2 567 €/м2)(5 021,14 лв./м2)Площ: 40.51 м2
Стефан Абанозов Регионален мениджър, Боровец
Бизнес имот с потенциал на 6 км от центъра на Боровец
Продажба
Оборудван ресторант в к-с Чамкория Чалетс к.к. Боровец Бизнес имот с потенциал на 6 км от центъра на Боровец Оборудван ресторант в к-с Чамкория Чалетс - Бизнес имот с потенциал на 6 км от центъра на Боровец
70 000 (136 908,10 лв.)
(598 €/м2)(1 169,55 лв./м2)Площ: 117.06 м2
Стефан Абанозов Регионален мениджър, Боровец
Парцел в регулация с южно изложение и панорамна гледка към Рила
Продажба
Имот с фантастична гледка на топ цена в с. Говедарци с. Говедарци Парцел в регулация с южно изложение и панорамна гледка към Рила Имот с фантастична гледка на топ цена в с. Говедарци - Парцел в регулация с южно изложение и панорамна гледка към Рила
137 000 (267 948,71 лв.)
(105 €/м2)(206,27 лв./м2)Площ: 1 299.00 м2
Стефан Абанозов Регионален мениджър, Боровец
Жилище в модерен комплекс с всички удобства в Боровец
Продажба
Двустаен апартамент в Еуфория Клуб Хотел и Ризорт / Euphoria Club Hotel & Resort к.к. Боровец Жилище в модерен комплекс с всички удобства в Боровец Двустаен апартамент в Еуфория Клуб Хотел и Ризорт / Euphoria Club Hotel & Resort - Жилище в модерен комплекс с всички удобства в Боровец
116 000 (226 876,28 лв.)
(1 643 €/м2)(3 213,55 лв./м2)Площ: 70.60 м2
Стефан Абанозов Регионален мениджър, Боровец
Работещо заведение с отлично разположение в ски-курорт Боровец
Продажба
Ресторант в комплекс Вила Парк/Villa Park Боровец к.к. Боровец Работещо заведение с отлично разположение в ски-курорт Боровец Ресторант в комплекс Вила Парк/Villa Park Боровец - Работещо заведение с отлично разположение в ски-курорт Боровец
295 815 (578 563,85 лв.)
(500 €/м2)(977,92 лв./м2)Площ: 591.63 м2
Стефан Абанозов Регионален мениджър, Боровец
Модерен спа център с отлично разположение в ски-курорт Боровец
Продажба
Спа център с фитнес в комплекс Вила Парк/Villa Park Боровец к.к. Боровец Модерен спа център с отлично разположение в ски-курорт Боровец Спа център с фитнес в комплекс Вила Парк/Villa Park Боровец - Модерен спа център с отлично разположение в ски-курорт Боровец
408 430 (798 819,65 лв.)
(500 €/м2)(977,92 лв./м2)Площ: 816.86 м2
Стефан Абанозов Регионален мениджър, Боровец
Комфортно обзаведен апартамент с красива гледка до ски лифта
Продажба
Двустаен апартамент в комплекс Флора / Flora в центъра на Боровец к.к. Боровец Комфортно обзаведен апартамент с красива гледка до ски лифта Двустаен апартамент в комплекс Флора / Flora в центъра на Боровец - Комфортно обзаведен апартамент с красива гледка до ски лифта
208 250 (407 301,60 лв.)
(2 500 €/м2)(4 889,58 лв./м2)Площ: 83.30 м2
Стефан Абанозов Регионален мениджър, Боровец
Парцел за строеж на вила или малък хотел с лице на пътя в посока Долна Баня и Костенец
Продажба
Регулиран парцел сред борова гора на 2 км от центъра на Боровец к.к. Боровец Парцел за строеж на вила или малък хотел с лице на пътя в посока Долна Баня и Костенец Регулиран парцел сред борова гора на 2 км от центъра на Боровец - Парцел за строеж на вила или малък хотел с лице на пътя в посока Долна Баня и Костенец
1 062 370 (2 077 815,12 лв.)
(310 €/м2)(606,31 лв./м2)Площ: 3 427.00 м2
Стефан Абанозов Регионален мениджър, Боровец
Поземлен имот с отличен потенциал и локация
Продажба
Урегулиран парцел в района на Супер Боровец к.к. Боровец Поземлен имот с отличен потенциал и локация Урегулиран парцел в района на Супер Боровец - Поземлен имот с отличен потенциал и локация
75 050 (146 785,04 лв.)
(50 €/м2)(97,79 лв./м2)Площ: 1 501.00 м2
Стефан Абанозов Регионален мениджър, Боровец
 Парцел на 500 метра от х-л Боровец Хилс и 850 метра от лифта до х-л Ястребец
Продажба
Атрактивен парцел в сърцето на Боровец – идеален за вашия следващ проект к.к. Боровец Парцел на 500 метра от х-л Боровец Хилс и 850 метра от лифта до х-л Ястребец Атрактивен парцел в сърцето на Боровец – идеален за вашия следващ проект - Парцел на 500 метра от х-л Боровец Хилс и 850 метра от лифта до х-л Ястребец
450 000 (880 123,50 лв.)
(71 €/м2)(139,64 лв./м2)Площ: 6 303.00 м2
Стефан Абанозов Регионален мениджър, Боровец
Имот за инвестиция в к.к. Боровец
Продажба
Парцел на 850 м от лифта до х-л Ястребец к.к. Боровец Имот за инвестиция в к.к. Боровец Парцел на 850 м от лифта до х-л Ястребец - Имот за инвестиция в к.к. Боровец
170 000 (332 491,10 лв.)
(93 €/м2)(181,79 лв./м2)Площ: 1 829.00 м2
Стефан Абанозов Регионален мениджър, Боровец
Имот с потенциал за жилищно строителство в балнео район
Продажба
Поземлен имот в с. Костенец гр. Костенец Имот с потенциал за жилищно строителство в балнео район Поземлен имот в с. Костенец - Имот с потенциал за жилищно строителство в балнео район
51 420 (100 568,78 лв.)
(15 €/м2)(29,34 лв./м2)Площ: 3 428.00 м2
Стефан Абанозов Регионален мениджър, Боровец
Ателие в комплекс Вила парк
Продажба
Мансарда с две отделни помещения в Боровец к.к. Боровец Ателие в комплекс Вила парк Мансарда с две отделни помещения в Боровец - Ателие в комплекс Вила парк
88 000 (172 113,04 лв.)
(668 €/м2)(1 307,35 лв./м2)Площ: 131.65 м2
Стефан Абанозов Регионален мениджър, Боровец
Живописен парцел в регулация
Продажба
Парцел на метри от лифта на проекта Супер Боровец к.к. Боровец Живописен парцел в регулация Парцел на метри от лифта на проекта Супер Боровец - Живописен парцел в регулация
150 060 (293 491,85 лв.)
(60 €/м2)(117,35 лв./м2)Площ: 2 501.00 м2
Стефан Абанозов Регионален мениджър, Боровец
Обзаведен и оборудван лоби бар в центъра на Боровец до ски лифта
Продажба
Лоби бар в затворен комплекс Вила Парк/Villa Park к.к. Боровец Обзаведен и оборудван лоби бар в центъра на Боровец до ски лифта Лоби бар в затворен комплекс Вила Парк/Villa Park - Обзаведен и оборудван лоби бар в центъра на Боровец до ски лифта
123 170 (240 899,58 лв.)
(500 €/м2)(977,92 лв./м2)Площ: 246.34 м2
Стефан Абанозов Регионален мениджър, Боровец
Ваканционен имот в комплекс с всички удобства сред зеленина и чист въздух
Продажба
Обзаведено студио в комплекс Флора / Flora до ски-пистата в Боровец к.к. Боровец , Ски лифт Ваканционен имот в комплекс с всички удобства сред зеленина и чист въздух Обзаведено студио в комплекс Флора / Flora до ски-пистата в Боровец - Ваканционен имот в комплекс с всички удобства сред зеленина и чист въздух
130 000 (254 257,90 лв.)
(3 138 €/м2)(6 137,05 лв./м2)Площ: 41.43 м2
Стефан Абанозов Регионален мениджър, Боровец
Живописен парцел в регулация
Продажба
Атрактивен парцел попадащ в района на проекта Супер Боровец к.к. Боровец Живописен парцел в регулация Атрактивен парцел попадащ в района на проекта Супер Боровец - Живописен парцел в регулация
116 080 (227 032,75 лв.)
(40 €/м2)(78,23 лв./м2)Площ: 2 902.00 м2
Стефан Абанозов Регионален мениджър, Боровец
Вижте всички

Вижте още имоти в к.к. Боровец:

Изпратете запитване