Имаме удоволствието да Ви предложим готова еднофамилна къща намираща се във Владая. Къщата е с площ 366.30 кв. м. разпределена между:
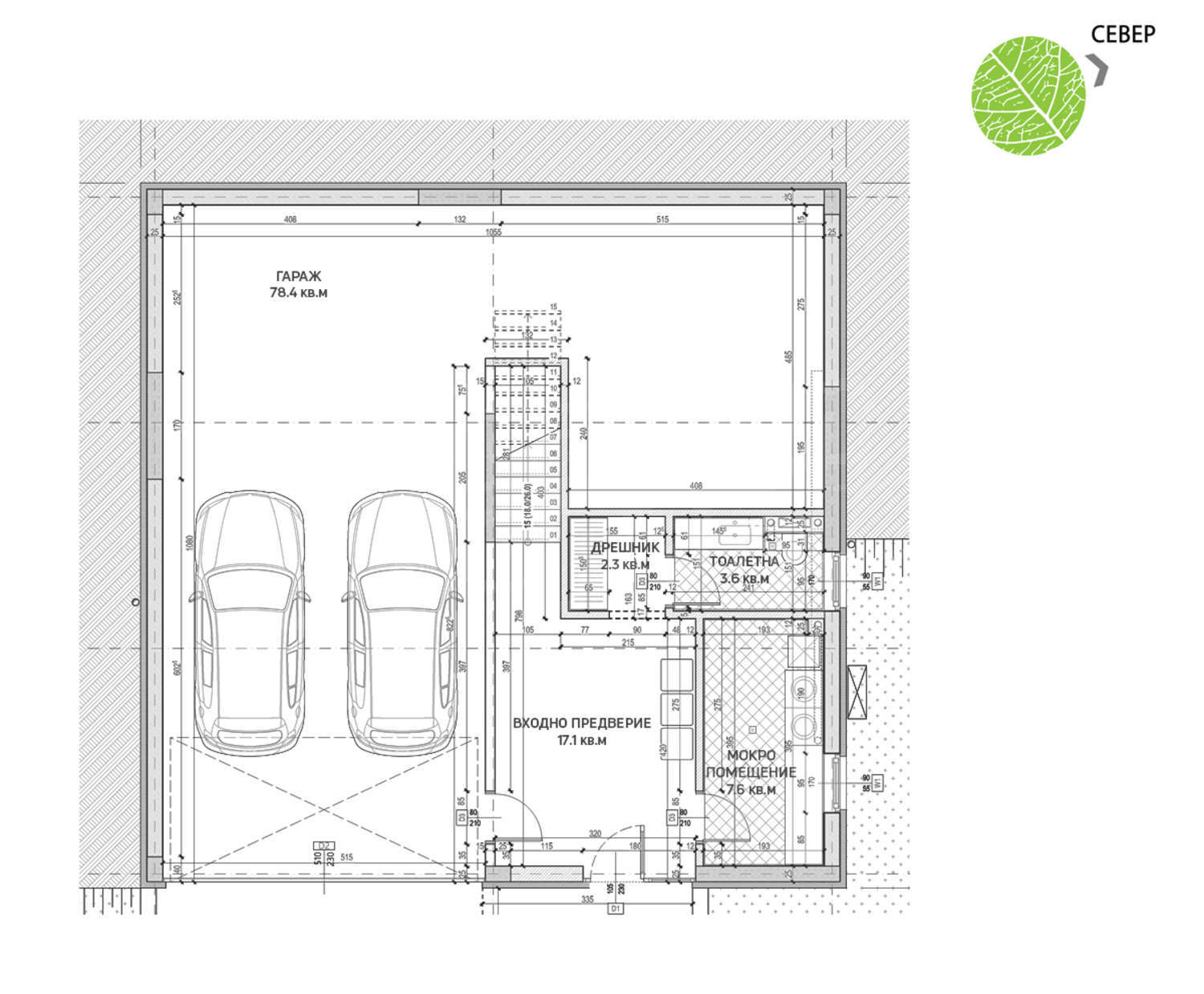
• Ниво - 1 - двоен гараж, дрешник, тоалетна, склад-техническо помещение.
• Първи етаж - входно преддверие, дневна с трапезария (54.8 кв.м.) кухня (13.9 кв.м.), спалня (13 к.м.), тоалетна, дрешник и склад.
• Втори етаж - родителска спалня с дрешник (26.7 кв.м.) и собтвена баня с тоалетна, три спални, като едната от тях също е със собствен дрешник и баня с тоалетна.
Къщата е част от затворен комплекс, като разполага със самостоятелен ограден двор. Дворът е равен с големина от 612.44 кв.м. с изградена тръбна разводка за поливна система. От него се откриват прекрасни гледки към гората.
Техническото изпълнение на имотите е с най-качествените съвременни системи и материали, гарантиращи комфорта, сигурността на обитаване, ниските експлоатационни разходи, дългия живот на сградата и устойчивата във времето естетика.
В комплекса ще откриете всички предимства на неподправената среда, както и необходимите удобства за живота на всеки динамичен човек:
• Отлична локация близо до природата.
• Просторен дом и собствен двор.
• Сигурност и комфорт в затворен тип комплекс.
• Условия за спорт и защитена игра за децата.
• Организиран транспорт от комплекса към центъра на София и обратно.
Изградени са:
• разводки за термопомпа;
• подравнен двор с ограда, изводи за градинско осветление и извод за вода;
• закрит двоен гараж.
Обществените зони на комплекса ще включват:
• Детска площадка
• Фитнес на открито
• Мултифункционално игрище
• Барбекю зона
• Контрол на достъп
• Поляна за домашни любимци
• Охраняем портал
• Площад с часовникова кула и пеещи фонтани
• Кафене/Закусвалня
• Смесен магазин
• Парти зала, мултифункционална за спортни занимания
Поддръжка на общите части:
• Алеи
• Тротоари
• Игрища
• Осветление
• Озеленяване, косене
• Охрана
• Почистване
• Снегопочистване
• Сметосъбиране/ сметоизвозване
• Сондажи
• Био - пречиствателна станция
• Видеонаблюдение
• Ограда на целия проект
• Техническа поддръжка
Такса поддръжка - 360 лв. на месец за самостоятелна къща.
Оглед на имота
Можем да организираме оглед на имота в удобно за вас време. За целта, свържете се с отговорния за офертата брокер и му кажете кога бихте искали да направите оглед.
Резервация на имота
Имотът може да бъде резервиран и свален от продажба със заплащане на депозит, след което се прекратява провеждането на огледи с други купувачи и започва подготовка на документите за сключване на предварителен и окончателен договор. Свържете се с отговорния брокер за този имот за подробна информация относно процедурата на покупка и начините за плащане.
Допълнителни услуги и следпродажбено обслужване
Ние сме реномирана компания и ще бъдем с вас не само по време на покупката, но и след това, осигурявайки ви допълнителни услуги по ваше изискване с цел пълноценно и безпроблемно ползване на новозакупения имот. Услугите, които можем да предложим, включват застраховка на движимо и недвижимо имущество, застраховка живот, медицинско и автомобилно застраховане, строителни и ремонтни дейности, обзавеждане, юридически и счетоводни услуги и др.
Лукс
ПРОДАДЕН
Двуетажна къща с двор и гараж във Владая
с. ВладаяСамостоятелна къща на 15 минути от ценътра на столицата
Характеристики на имота
Тип на имота
Къща
Реф. номер
Sfa 77134
Площ
366.30 м2
Спални
4
Състояние
БДС (на шпакловка и замазка)
Брой етажи
2
Обзавеждане
Необзаведен
Отопление
Термопомпа
Тип строителство
Тухла, Ново строителство
Двор
612.44 м2
Година на построяване
2021
Изложение:
Юг
Местоположение
с. ВладаяУдобства в района
- Автобусна спирка "НАЧАЛО С. ВЛАДАЯ - ПО ЖЕЛАНИЕ" на 101 м. (2 мин.) - Автобус No: 59, 58
- Училище "86 ОУ Св. Климент Охридски" на 314 м. (4 мин.)
- Училище "4 ЦДГ Слънчо" на 669 м. (9 мин.)
- Болница "Медицински център" на 691 м. (9 мин.)
- Болница "Правителствен санаториум" на 1.2 км. (15 мин.)
- Супермаркет "Фреш Маркет" на 498 м. (6 мин.)
- Фризьорски салон "100-ЯМ-М ЕООД Владая" на 588 м. (8 мин.)
- Ресторант "Океан" на 502 м. (7 мин.)
- Ресторант на 669 м. (9 мин.)
- Детска площадка "Владая" на 582 м. (8 мин.)
- Парк на 223 м. (3 мин.)
- Църква "Успение Богородично" на 266 м. (4 мин.)
ТРАНСПОРТ
УЧЕБНИ ЗАВЕДЕНИЯ
ЛЕЧЕБНИ ЗАВЕДЕНИЯ
ПАЗАРУВАНЕ
УСЛУГИ
ЗАВЕДЕНИЯ
СПОРТ И СВОБОДНО ВРЕМЕ
ПРИРОДА И ЗАБЕЛЕЖИТЕЛНОСТИ
ОБЩЕСТВЕНИ СГРАДИ И ИНСТИТУЦИИ
Изпратете запитване
Този имот е продаден
Моля свържете се с нас, за да ви предложим други оферти, които отговарят на вашите изисквания.
430 000 €
(841 006,90 лв.)
- €
- $
- £
Този имот е продаден
Моля свържете се с нас, за да ви предложим други оферти, които отговарят на вашите изисквания.
*/ ?>
ЗА ПОВЕЧЕ ИНФОРМАЦИЯ
Реф. номер: Sfa 77134
При обаждане, моля цитирайте референтния номер на имота.
