Предлагаме парцел в местност Евксиноград, на много тихо и спокойно място, с бърз достъп по асфалтов път, до пътя Варна- Златни пясъци (250-300 м.) и на 7-8 мин. от ВИНС Варна.
Имотът е с правилна правоъгълна форма, равен и без денивелация. Има партиди за ток и вода. На пешеходно разстояние има супермаркет и бензиностанция.
Параметрите на застрояване в района са:
• плътност - 20%
• кинт - 0,6
• кота корниз - 7м.
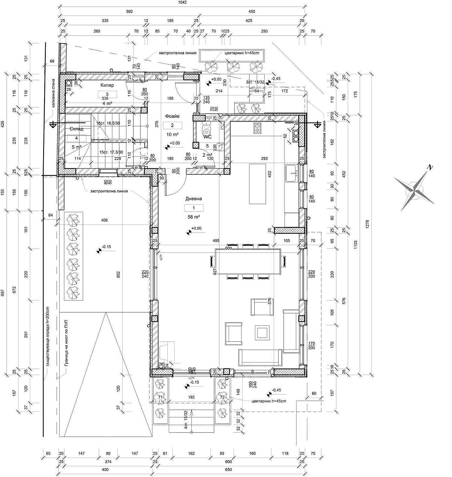
Подходящ за строителство на фамилна къща. Продава се с проект и всички нужни документи за построяването на самостоятелна къща със следното разпределение:
• Сутерен - 53 кв. м.
• 1-ви етаж - голям дневен тракт (61 кв. м.), сервизни помещения и веранда.
• 2-ри етаж - 3 спални, 2 бани, 2 дрешника.
Наличието на всички съвременни комуникации, лесният и бърз достъп посредством магистралата Варна - Златни пясъци и непосредствената близост на комплекс Св. Св. Константин и Елена и морския бряг определят локацията като изключително благоприятна за целогодишно живеене.
Оглед на имота
Можем да организираме оглед на имота в удобно за вас време. За целта, свържете се с отговорния за офертата брокер и му кажете кога бихте искали да направите оглед.
Резервация на имота
Имотът може да бъде резервиран и свален от продажба със заплащане на депозит, след което се прекратява провеждането на огледи с други купувачи и започва подготовка на документите за сключване на предварителен и окончателен договор. Свържете се с отговорния брокер за този имот за подробна информация относно процедурата на покупка и начините за плащане.
Допълнителни услуги и следпродажбено обслужване
Ние сме реномирана компания и ще бъдем с вас не само по време на покупката, но и след това, осигурявайки ви допълнителни услуги по ваше изискване с цел пълноценно и безпроблемно ползване на новозакупения имот. Услугите, които можем да предложим, включват застраховка на движимо и недвижимо имущество, застраховка живот, медицинско и автомобилно застраховане, строителни и ремонтни дейности, обзавеждане, юридически и счетоводни услуги и др.
Характеристики на имота
Тип на имота
Парцел в регулация, Парцел за инвестиция
Реф. номер
Vna 81538
Площ
527.00 м2
Състояние
прочетете текста
Двор
не
Още информация за Парцел в регулация на много тихо и спокойно място в м-т Евсиноград:
План на имота
Качество на въздуха
Снимки от въздуха
Общ план
360° изглед
Инфо пакет
Референтен номер: Vna 81538
Местоположение
гр. Варна, кв."м-т Евксиноград"Удобства в района
- Автобусна спирка "ЕВКСИНОГРАД" на 382 м. (5 мин.) - Автобус No: 9
- Супермаркет "Сити Маркет" на 613 м. (8 мин.)
- Ветеринарен лекар "Ветеринарен кабинет ПримаВет – Варна ЕООД" на 751 м. (10 мин.)
- Ресторант "Бижу" на 1.1 км. (13 мин.)
- Ресторант "Немо" на 1.1 км. (13 мин.)
- Плувен басейн на 301 м. (4 мин.)
- Парк на 224 м. (3 мин.)
- Паркинг на 839 м. (11 мин.)
- Бензиностанция "EKO" на 448 м. (6 мин.)
ТРАНСПОРТ
ПАЗАРУВАНЕ
УСЛУГИ
ЗАВЕДЕНИЯ
СПОРТ И СВОБОДНО ВРЕМЕ
ПРИРОДА И ЗАБЕЛЕЖИТЕЛНОСТИ
АВТОМОБИЛНИ УСЛУГИ
Изпратете запитване
Тази оферта е невалидна
Моля свържете се с нас, за да ви предложим други оферти, които отговарят на вашите изисквания.
Тази оферта е невалидна
Моля свържете се с нас, за да ви предложим други оферти, които отговарят на вашите изисквания.
*/ ?>
ЗА ПОВЕЧЕ ИНФОРМАЦИЯ
Реф. номер: Vna 81538
При обаждане, моля цитирайте референтния номер на имота.

Анна Ицова
Офис Варна бул. "Владислав Варненчик" 110, етаж 2, офис 4, Варна 9000 Всички оферти (154)Изпратете запитване
Още имоти в кв. м-т Евксиноград

Продажба
Работещ хостел с ресторант в Евксиноград
гр. Варна , кв. "м-т Евксиноград"
Голям бизнес имот с възможности за разширяване на 1 км от плажа
Работещ хостел с ресторант в Евксиноград - Голям бизнес имот с възможности за разширяване на 1 км от плажа

Наем
Хостел под наем в м-ст Евксиноград
гр. Варна , кв. "м-т Евксиноград"
Хостел с 36 легла, ресторант и градина близо до Южния плаж
Хостел под наем в м-ст Евксиноград - Хостел с 36 легла, ресторант и градина близо до Южния плаж

Продажба
Лукс
ИНВЕСТИЦИОНЕН ПРОЕКТ
Резиденция над района к.к Св.Св. Константин и Елена
гр. Варна , кв. "м-т Евксиноград"
Луксозен хотел с удобства с морска панорама
Резиденция над района к.к Св.Св. Константин и Елена - Луксозен хотел с удобства с морска панорама
Още имоти в гр. Варна

Продажба
Хит
Лукс
Жилища в небостъргач - луксозен комплекс в Младост, Варна!
гр. Варна , кв. "Младост 1"
Висок клас апартаменти с уникални гледки в кв. Младост 1 на морската столица
Жилища в небостъргач - луксозен комплекс в Младост, Варна! - Висок клас апартаменти с уникални гледки в кв. Младост 1 на морската столица
от 107 900 €(от 211 034,06 лв.)
(1 537 €/м2 - 1 717 €/м2)(3 006,11 лв./м2 - 3 358,16 лв./м2)Площ: 68.20 - 118.32 м2

Калина Иванова
Старши брокер, Варна

Продажба
Хит
Лукс
Жилищен комплекс с Акт 16 до плаж Кабакум, Варна
гр. Варна , кв. "м-т Ален мак"
Последни наличности! Луксозни апартаменти с директен достъп до плажа
Жилищен комплекс с Акт 16 до плаж Кабакум, Варна - Последни наличности! Луксозни апартаменти с директен достъп до плажа
от 256 000 €(от 500 692,48 лв.)
(1 199 €/м2 - 2 100 €/м2)(2 345,04 лв./м2 - 4 107,24 лв./м2)Площ: 186.80 - 213.49 м2

Анна Ицова
Брокер, Варна

Продажба
ново
За частни лица
Студио с Акт 16 в кв. Виница
гр. Варна , кв. "Виница"
Имот до ключ с възможност за разделяне на две стаи
Студио с Акт 16 в кв. Виница - Имот до ключ с възможност за разделяне на две стаи

Продажба
ново
Тристаен апартамент в санирана сграда в кв. Трошево, Варна
гр. Варна , кв. "Трошево"
Необзаведен имот в поддържан вход, свободно паркиране пред сградата
Тристаен апартамент в санирана сграда в кв. Трошево, Варна - Необзаведен имот в поддържан вход, свободно паркиране пред сградата

Продажба
ново
Два съседни парцела с панорамна гледка към Варненското езеро и града
гр. Варна , кв. "м-т Сълзица"
Парцели в спокойната и зелена местност „Сълзица“, само на 4 км от центъра на Варна
Два съседни парцела с панорамна гледка към Варненското езеро и града - Парцели в спокойната и зелена местност „Сълзица“, само на 4 км от центъра на Варна

Продажба
ново
Вила в землището на Калиманци м-т Асфалтова база на 15 км от Варна
с. Калиманци
Имот с кладенец, партиди за ток и вода с нужда от ремонт и освежаване в землището на село Калиманци
Вила в землището на Калиманци м-т Асфалтова база на 15 км от Варна - Имот с кладенец, партиди за ток и вода с нужда от ремонт и освежаване в землището на село Калиманци

Продажба
ново
изгодно
Компактно жилище в удобна близост до градски удобства
гр. Варна , кв. "Виница"
Малко жилище в сграда ново строителство без асансьор във Виница
Компактно жилище в удобна близост до градски удобства - Малко жилище в сграда ново строителство без асансьор във Виница

Наем
ново
Обзаведен четиристаен апартамент в кв. Аспарухово – до Свободния университет
гр. Варна , кв. "Аспарухово"
Жилище в поддържана сграда с отлична локация във Варна
Обзаведен четиристаен апартамент в кв. Аспарухово – до Свободния университет - Жилище в поддържана сграда с отлична локация във Варна

Наем
ново
Лукс
ПЪРВА ЛИНИЯ
Двустаен апартамент с морска гледка в комплекс Ла Мер / La Mer
гр. Варна , кв. "Чайка"
Обзаведен имот под наем на първа линия на плаж Кабакум
Двустаен апартамент с морска гледка в комплекс Ла Мер / La Mer - Обзаведен имот под наем на първа линия на плаж Кабакум

Продажба
-13%
ново
За частни лица
Лукс
Завършени къщи "до ключ" в местност Зеленика, Варна
гр. Варна , кв. "м-т Зеленика"
Просторни самостоятелни къщи с впечатляваща морска и горска панорама на 10 мин от центъра на Варна
Завършени къщи "до ключ" в местност Зеленика, Варна - Просторни самостоятелни къщи с впечатляваща морска и горска панорама на 10 мин от центъра на Варна

Наем
ново
Ексклузивно
Обзаведен апартамент с две спални и хубава тераса до Морската градина
гр. Варна , кв. "Спортна зала"
Просторно жилище след ремонт близо до Икономически университет – Варна и Висше военноморско училище „Н. Й. Вапцаров“
Обзаведен апартамент с две спални и хубава тераса до Морската градина - Просторно жилище след ремонт близо до Икономически университет – Варна и Висше военноморско училище „Н. Й. Вапцаров“

Наем
ново
Модерен апартамент с две спални и отлична локация във Варна
гр. Варна , кв. "Център"
Обзаведено жилище в нова сграда до хотел „Черно море“
Модерен апартамент с две спални и отлична локация във Варна - Обзаведено жилище в нова сграда до хотел „Черно море“

Наем
ново
Лукс
Двустаен апартамент с хубава морска гледка в кв. Чайка
гр. Варна , кв. "Чайка"
Обзаведен имот в луксозна сграда до к.к. Златни пясъци
Двустаен апартамент с хубава морска гледка в кв. Чайка - Обзаведен имот в луксозна сграда до к.к. Златни пясъци

Продажба
ново
Жилищна сграда в кв. Възраждане 4
гр. Варна , кв. "Възраждане 4"
Апартаменти в близост до всички удобства в гр. Варна
Жилищна сграда в кв. Възраждане 4 - Апартаменти в близост до всички удобства в гр. Варна
от 96 000 €(от 187 759,68 лв.)
(1 359 €/м2 - 1 825 €/м2)(2 657,97 лв./м2 - 3 569,39 лв./м2)Площ: 66.31 - 142.22 м2

Калина Иванова
Старши брокер, Варна

Наем
ново
Готов за нанасяне двустаен апартамент в затворен комплекс Бела Вита
гр. Варна , кв. "Виница"
Модерен имот за дългосрочен наем с паркомясто в кв. Виница
Готов за нанасяне двустаен апартамент в затворен комплекс Бела Вита - Модерен имот за дългосрочен наем с паркомясто в кв. Виница

Продажба
За частни лица
Външни паркоместа за продажба с отлична локация близо до главен път
гр. Варна , кв. "Виница"
Паркоместа на 150 метра от пътя Виница – Св. Св. Константин и Елена
Външни паркоместа за продажба с отлична локация близо до главен път - Паркоместа на 150 метра от пътя Виница – Св. Св. Константин и Елена

Наем
Тристаен апартамент под наем след основен ремонт до Гранд Мол Варна
гр. Варна , кв. "Гранд Мол"
Комфортно и стилно жилище в динамичния градски ритъм на Варна
Тристаен апартамент под наем след основен ремонт до Гранд Мол Варна - Комфортно и стилно жилище в динамичния градски ритъм на Варна

Продажба
За частни лица
ВТОРА ЛИНИЯ
Вила с двор и морска панорама
с. Кранево
Имот на 200 метра от плажа в Кранево
Вила с двор и морска панорама - Имот на 200 метра от плажа в Кранево

Наем
Четиристаен апартамент под наем до пазар Чаталджа във Варна
гр. Варна , кв. "Чаталджа"
Обзаведено жилище с отлична локация във Варна
Четиристаен апартамент под наем до пазар Чаталджа във Варна - Обзаведено жилище с отлична локация във Варна

Продажба
Модерен жилищен комплекс с Акт 16 в кв. Виница
гр. Варна , кв. "Виница"
Просторни жилища по БДС или до ключ до гора, на 10 минути от центъра на Варна
Модерен жилищен комплекс с Акт 16 в кв. Виница - Просторни жилища по БДС или до ключ до гора, на 10 минути от центъра на Варна
от 109 900 €(от 214 945,72 лв.)
(1 434 €/м2 - 2 052 €/м2)(2 804,66 лв./м2 - 4 013,36 лв./м2)Площ: 66.77 - 159.48 м2

Анна Ицова
Брокер, Варна

Продажба
Хит
Нова жилищна сграда в предпочитания за живеене кв. Възраждане 1
гр. Варна , кв. "Възраждане 1"
Последни двустайни и тристайни апартаменти до парк, магазини, булеварди, учебни заведения
Нова жилищна сграда в предпочитания за живеене кв. Възраждане 1 - Последни двустайни и тристайни апартаменти до парк, магазини, булеварди, учебни заведения
от 120 000 €(от 234 699,60 лв.)
(1 680 €/м2 - 1 932 €/м2)(3 285,79 лв./м2 - 3 778,66 лв./м2)Площ: 67.29 - 100.51 м2

Калина Иванова
Старши брокер, Варна

Продажба
Лукс
Луксозно реновиран тристаен апартамент в Балчик
гр. Балчик
Изцяло обзаведен и готов за нанасяне дом с дизайнерски мебели
Луксозно реновиран тристаен апартамент в Балчик - Изцяло обзаведен и готов за нанасяне дом с дизайнерски мебели

Продажба
Последни апартаменти в нова сграда с Акт 15 в Изгрев
гр. Варна , кв. "Изгрев"
Жилища три спални и отлична локация в гр. Варна
Последни апартаменти в нова сграда с Акт 15 в Изгрев - Жилища три спални и отлична локация в гр. Варна
от 249 900 €(от 488 761,92 лв.)
(1 354 €/м2 - 1 537 €/м2)(2 648,19 лв./м2 - 3 006,11 лв./м2)Площ: 162.55 - 197.13 м2

Калина Иванова
Старши брокер, Варна

Продажба
Просторен апартамент за ремонт до парк Аспарухово
гр. Варна , кв. "Аспарухово"
Панорамно жилище с паркомясто и удобен достъп до плажа
Просторен апартамент за ремонт до парк Аспарухово - Панорамно жилище с паркомясто и удобен достъп до плажа

Продажба
Лукс
Тристаен апартамент с Акт 16 в к.к. Св.Св. Константин и Елена
гр. Варна , кв. "Св. Св. Константин и Елена"
Луксозен апартамент до ключ на 150 м от плажа
Тристаен апартамент с Акт 16 в к.к. Св.Св. Константин и Елена - Луксозен апартамент до ключ на 150 м от плажа
Вижте още имоти в кв. "м-т Евксиноград" в град Варна:
- Парцели в регулация в кв. "м-т Евксиноград"
- Апартаменти (различни типове) в кв. "м-т Евксиноград"
- Къщи в кв. "м-т Евксиноград"
- Офиси в кв. "м-т Евксиноград"
- Магазини в кв. "м-т Евксиноград"
- Земи в кв. "м-т Евксиноград"
- Всички имоти в кв. "м-т Евксиноград"
Вижте още имоти в град Варна:
Абонирайте се за нашия канал
