Представете си вашия мечтан дом в престижния квартал Чайка - оживен район на Варна. Предлагаме тристаен тухлен апартамент след основен ремонт, който е готов за незабавно настаняване или отдаване под наем.
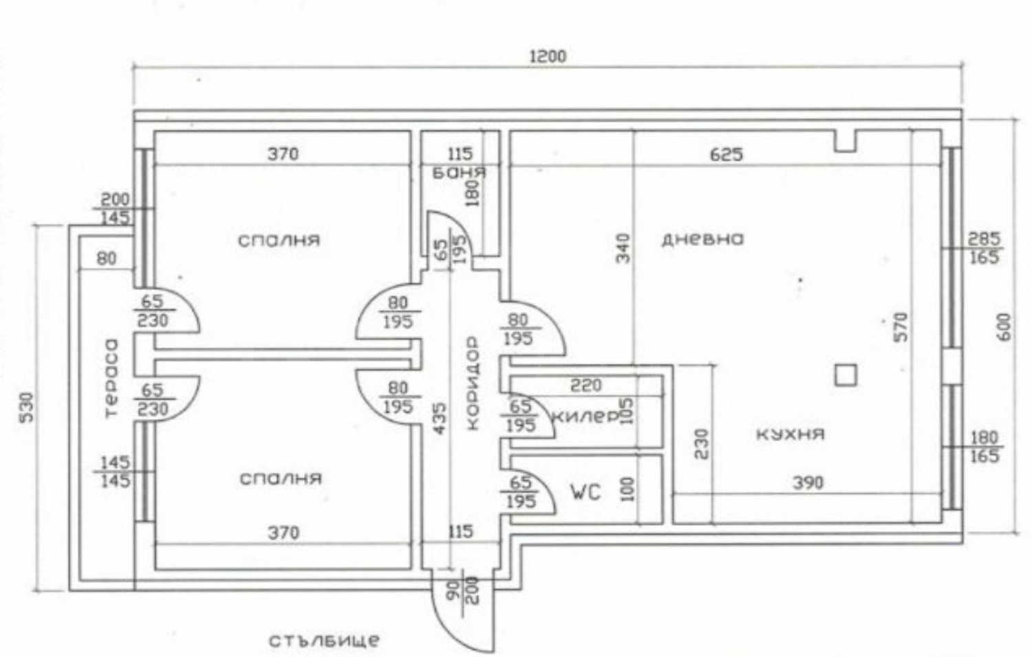
Този обзаведен имот предлага комфорт и стил, заема обща площ от 82 кв.м. и включва избено помещение от 6 кв.м.
Апартаментът се състои от дневен тракт от 33 кв.м., две спални от по 12 кв.м., баня с отделна тоалетна и килер. Със своето югоизточно/северозападно изложение и голяма обща тераса, пред която се открива гледка към зеленината на квартала, той предлага слънчеви, уютни и топли пространства за живеене.
Имотът е след цялостен ремонт, с нови ВиК и електрически инсталации, съвременно обзавеждане и висококачествени настилки и уреди. Сградата се характеризира с добре поддържани общи части, осигуряващи приятна жизнена среда.
Местоположението на имота е първокласно, с множество удобства наблизо, включително елитни гимназии, хипермаркети като Kaufland, Billa и Burlex, заведения за хранене, банки и денонощни магазини. Освен това е на пешеходно разстояние от Морската градина и плажа, което го прави идеален както за лично ползване, така и за краткосрочно или дългосрочно отдаване под наем.
Не пропускайте тази изключителна възможност да притежавате напълно обзаведен, ремонтиран апартамент в един от най-търсените квартали на Варна. Със своето удобно местоположение, първокласни удобства и стилен интериор, този имот предлага комфорт, функционалност и елегантност на една ръка разстояние от оживения градски живот.
Оглед на имота
Можем да организираме оглед на имота в удобно за вас време. За целта, свържете се с отговорния за офертата брокер и му кажете кога бихте искали да направите оглед.
Резервация на имота
Имотът може да бъде резервиран и свален от продажба със заплащане на депозит, след което се прекратява провеждането на огледи с други купувачи и започва подготовка на документите за сключване на предварителен и окончателен договор. Свържете се с отговорния брокер за този имот за подробна информация относно процедурата на покупка и начините за плащане.
Продажба
частни лица
Лукс
Плаж на 2 км
Голям апартамент с хубава гледка в ж.к. Чайка
гр. Варна, кв."Чайка"Луксозен имот с просторни светли помещения на пешеходно разстояние от плажа
Характеристики на имота
Тип на имота
Тристаен апартамент
Реф. номер
Vna 85651
Площ
82.00 м2 (чиста площ: 72 м2 плюс общи части: 10.00 м2)
Спални
2
Състояние
отлично
Етаж
4 от 7
Асансьор
да
Обзавеждане
Напълно обзаведен
Отопление
Климатици
Тип строителство
Тухла
Двор
не
Година на построяване
1977
Изложение:
Изток, Юг
Местоположение
гр. Варна, кв."Чайка"- Плаж на 2 км
Удобства в района
- Автобусна спирка "СПОРТИСТ-2" на 126 м. (2 мин.) - Автобус No: 7, 29, 31
- Детска градина "Калина Малина" на 101 м. (2 мин.)
- Детска градина "4 ОДЗ Чайка" на 376 м. (5 мин.)
- Училище "Математическа гимназия „Доктор Петър Берон“" на 157 м. (2 мин.)
- Училище "ОУ "Захари Стоянов"" на 162 м. (2 мин.)
- Университет "Технически университет – Варна" на 659 м. (8 мин.)
- Университет "ВВМУ „Н. Й. Вапцаров“" на 799 м. (10 мин.)
- Болница "ДКЦ Чайка – Курортна поликлиника" на 677 м. (9 мин.)
- Болница "Очна клиника "Св. Петка"" на 974 м. (12 мин.)
- Хранителен магазин "Денонощен магазин Вера" на 187 м. (3 мин.)
- Супермаркет "Бурлекс" на 146 м. (2 мин.)
- Супермаркет "Billa" на 310 м. (4 мин.)
- Пазар "Пазар Левски" на 671 м. (9 мин.)
- Зоо магазин "Лъки" на 711 м. (9 мин.)
- Банка "Централна Кооперативна Банка" на 149 м. (2 мин.)
- Банка "ОББ" на 195 м. (3 мин.)
- Банкомат на 448 м. (6 мин.)
- Банкомат "Банка ДСК" на 517 м. (7 мин.)
- Аптека на 185 м. (3 мин.)
- Поща/Куриер "Чайка" на 459 м. (6 мин.)
- Поща/Куриер "Еконт" на 517 м. (7 мин.)
- Фризьорски салон на 623 м. (8 мин.)
- Салон за красота "Mood Nail Lounge" на 462 м. (6 мин.)
- Ветеринарен лекар "Санавет" на 689 м. (9 мин.)
- Ресторант "Muffin" на 151 м. (2 мин.)
- Ресторант "Фратели Фиш" на 229 м. (3 мин.)
- Бар на 447 м. (6 мин.)
- Нощен клуб "PLAZZA" на 792 м. (10 мин.)
- Детска площадка "Тужо" на 111 м. (2 мин.)
- Плаж на 2.0 км.
- Фитнес зала "Pro Gym" на 348 м. (5 мин.)
- Плувен басейн на 705 м. (9 мин.)
- Спортен терен "Спортна зала Черно море" на 663 м. (8 мин.)
- Тенис корт на 390 м. (5 мин.)
- Музей "частна галерия Обелиск" на 827 м. (10 мин.)
- Парк на 182 м. (3 мин.)
- Градина на 898 м. (11 мин.)
- Паркинг на 88 м. (2 мин.)
- Бензиностанция "ОМВ" на 187 м. (3 мин.)
- Зарядна станция на 615 м. (8 мин.)
- Автомивка "Omv" на 196 м. (3 мин.)
- Съд "Варненски Административен съд" на 704 м. (9 мин.)
- Манастир "Метох на Девически Манастир "Св. Успение Богородично"" на 1.2 км. (15 мин.)
ТРАНСПОРТ
УЧЕБНИ ЗАВЕДЕНИЯ
ЛЕЧЕБНИ ЗАВЕДЕНИЯ
ПАЗАРУВАНЕ
УСЛУГИ
ЗАВЕДЕНИЯ
СПОРТ И СВОБОДНО ВРЕМЕ
ПРИРОДА И ЗАБЕЛЕЖИТЕЛНОСТИ
АВТОМОБИЛНИ УСЛУГИ
ОБЩЕСТВЕНИ СГРАДИ И ИНСТИТУЦИИ
Изпратете запитване
269 000 €
(526 118,27 лв.)
- €
- $
- £
За частни лица
Дължима комисиона
*/ ?>
ЗА ПОВЕЧЕ ИНФОРМАЦИЯ
Реф. номер: Vna 85651
При обаждане, моля цитирайте референтния номер на имота.

Анна Ицова
Офис Варна бул. "Владислав Варненчик" 110, етаж 2, офис 4, Варна 9000 Всички оферти (154)Изпратете запитване
Вижте още имоти в кв. "Чайка" в град Варна:
- Тристайни апартаменти в кв. "Чайка"
- Апартаменти (различни типове) в кв. "Чайка"
- Къщи в кв. "Чайка"
- Офиси в кв. "Чайка"
- Магазини в кв. "Чайка"
- Земи в кв. "Чайка"
- Всички имоти в кв. "Чайка"