Имоти и апартаменти в Магазини/офиси в комплекс Вила Парк/Villa Park Боровец, гр. Боровец, кв. , за продажба и под наем
ТЪРСИ

Продажба
Магазин в Магазини/офиси в комплекс Вила Парк/Villa Park Боровец
к.к. Боровец
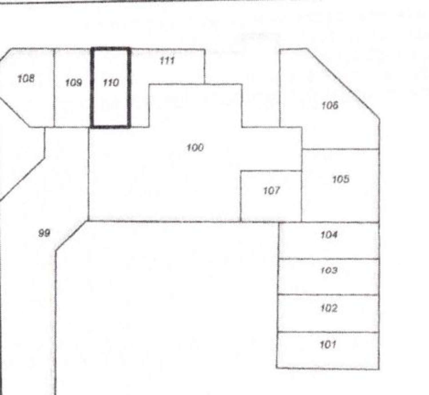
Магазин 2
Търговски и бизнес помещения с отлично разположение в ски-курорт Боровец
Предлагаме за продажба завършени до ключ търговски помещения в ски-комплекс Вила Парк/Villa Park в Боровец.
Villa park се намира в центъра на Боровец - един от най-предпочитаните планински курорти

Продажба
Магазин в Магазини/офиси в комплекс Вила Парк/Villa Park Боровец
к.к. Боровец
Магазин 3
Търговски и бизнес помещения с отлично разположение в ски-курорт Боровец
Предлагаме за продажба завършени до ключ търговски помещения в ски-комплекс Вила Парк/Villa Park в Боровец.
Villa park се намира в центъра на Боровец - един от най-предпочитаните планински курорти

Продажба
Магазин в Магазини/офиси в комплекс Вила Парк/Villa Park Боровец
к.к. Боровец
Магазин 1
Търговски и бизнес помещения с отлично разположение в ски-курорт Боровец
Предлагаме за продажба завършени до ключ търговски помещения в ски-комплекс Вила Парк/Villa Park в Боровец.
Villa park се намира в центъра на Боровец - един от най-предпочитаните планински курорти