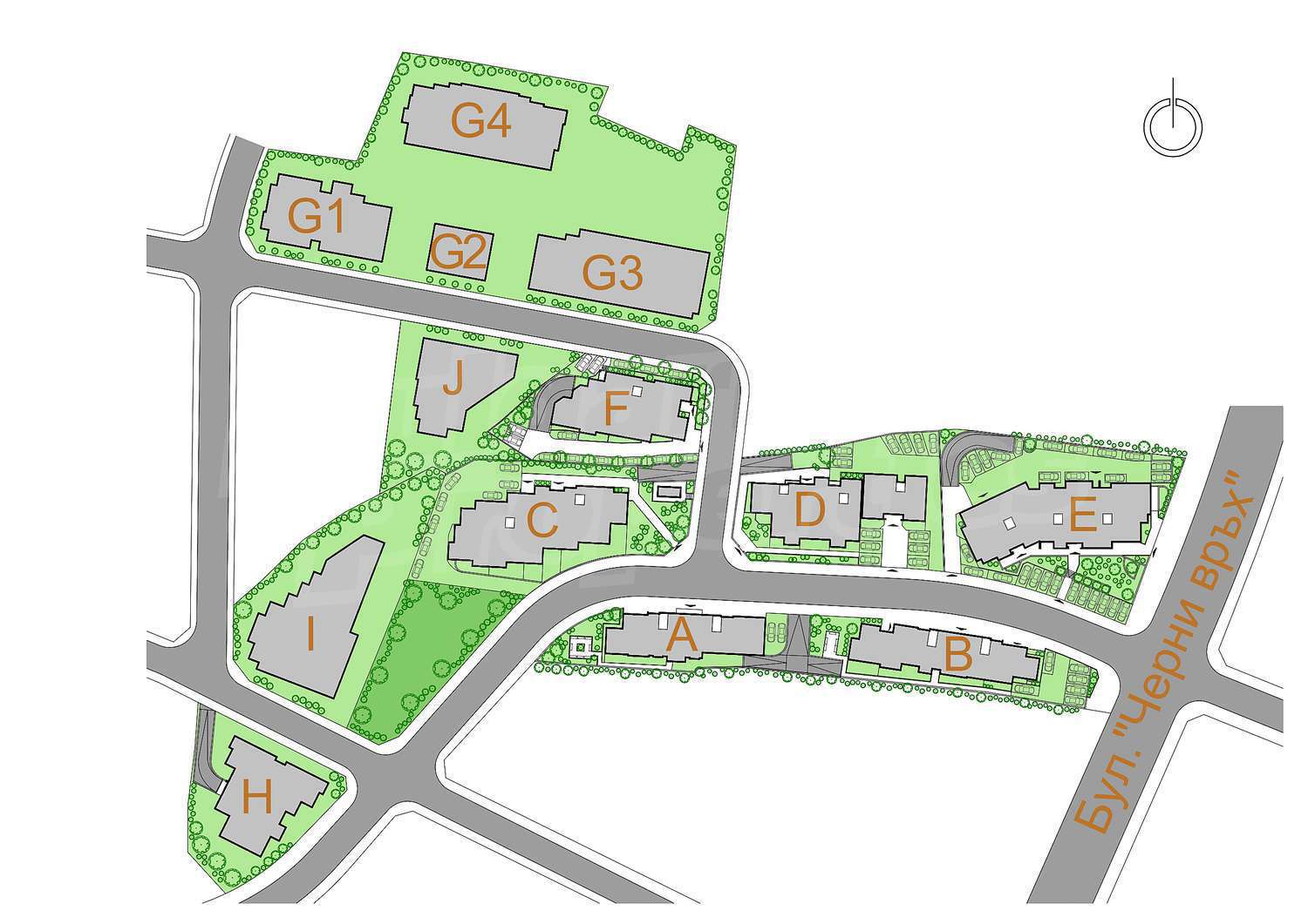
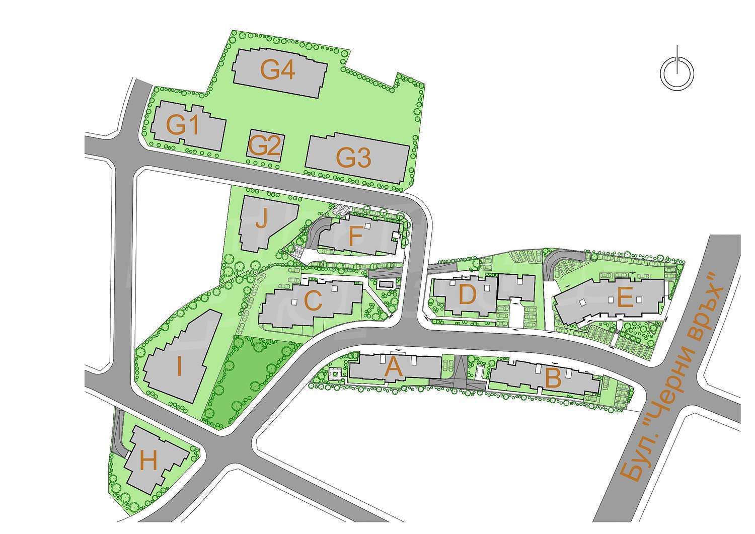
Стартираха продажбите в сграда H на комплекс Vitosha View

С особено вълнение обявяваме старта на продажбите на поредната нова фаза от емблематичния комплекс Vitosha View в кв. Кръстова вада!
Тя е част от разширението на проекта навътре в квартала и се очаква строителството й да започне в началото на 2023 г.

Възползвайте се от възможността да изберете имот в този емблематичен комплекс при максимален избор сега! Разгледайте тук
Вече Ви информирахме за старта на сроителството на сграда G4. Вижте видео:
Предстои издаването на разрешение за строеж и на сградите G1 и G2. Последни наличности в сгради G!
Хитовият комплекс Vitosha View е разположен на новоизградена асфалтирана улица, която има директен излаз на бул. Черни връх. Ключово в локацията е нейната изключителна комуникативност. Разположен на няколкостотин метра под кръговото движение на булевардите „Черни Връх“ и „Околовръстен път“, там, където „Околовръстен път“ „потъва“ под нивото на булевард „Черни връх“, което заедно със зеления пояс от висока растителност осигурява тишината и уюта на обитаване.
Бъдещата спирка на метрото и спирката на градския транспорт с повече от 7 различни автобуса са на по-малко от 100 метра от Vitosha View. В непосредствена близост се намират модерни спортни комплекси с игрища за тенис, футбол и др.
От другата страна на булеварда на пешеходно разстояние е предвидено изграждане на парк, до който ще минава и велоалеята, свързваща квартала с Южния парк и центъра на града. На пет минути с автомобил (2.5 км) се намира станцията на Драгалевския лифт, който води до главната ски зона на Витоша.
За изминалите 7 години Vitosha View може да се похвали с изключителен успех в продажбите, 5 напълно завършени сгради и 1 на финаланата права и бързи продажби още на предварителен етап на всяка следваща нова сграда в комплекса!
Всичко това, дължащо се на доказаното качество, отличното проектиране и изпълнение, модерна архитeктура и отличаваща се визия, популярен район, за чието развитие Vitosha View има ключов принос, както и страхотен екип, който допринася за развитието на комплекса и неговия маркетинг и продажби.
Разгледайте подробно Vitosha View
Още новини