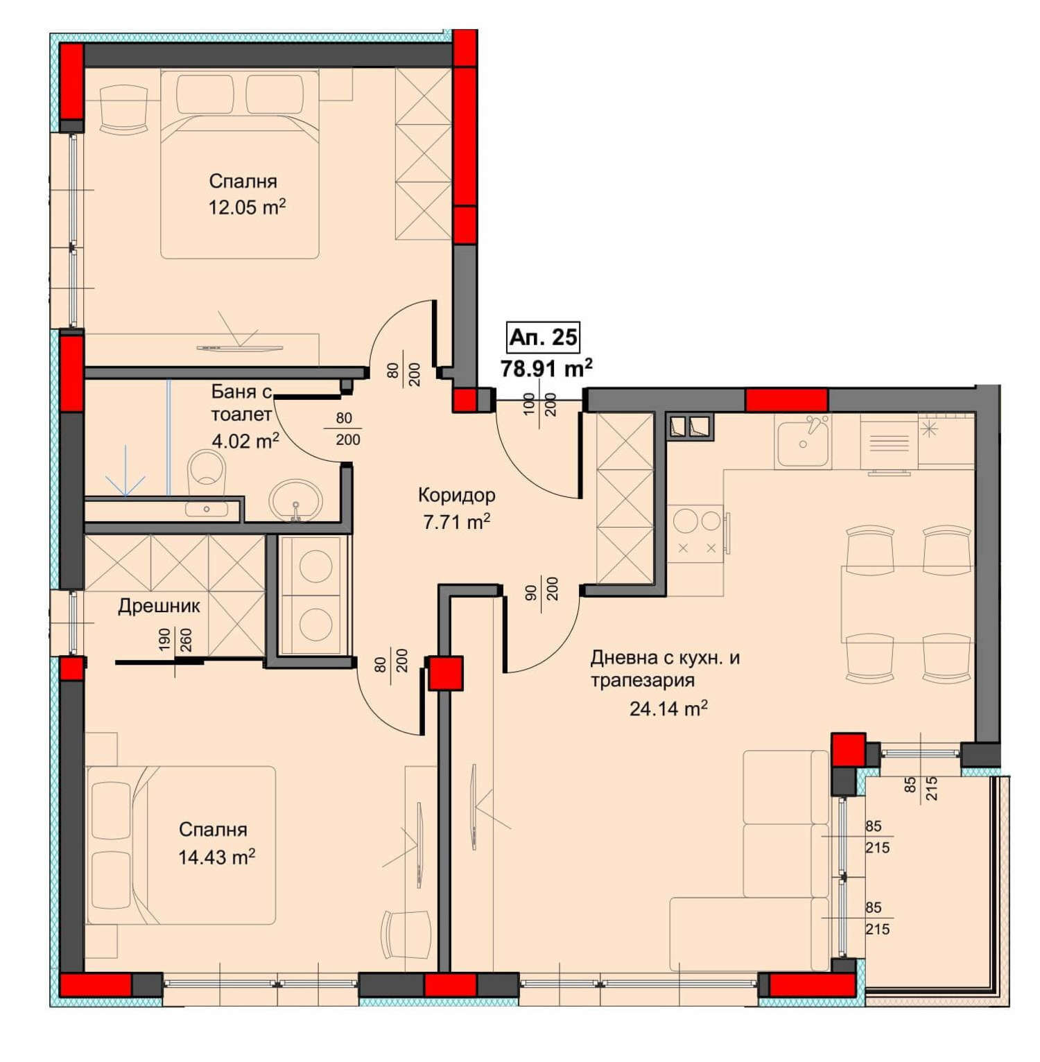
апартамент A-25 , обща площ 90.37 кв.м. (нетна площ 78.91 кв.м. + общи части 11.46 кв.м.).
Открийте идеалното място за вашето ново начало в многофамилната жилищна сграда, разположена в престижния квартал Аспарухово, Варна. Съвременната сграда предлага уникална смесица от комфорт, стил и великолепна морска панорама, която ще обогати всекидневието на своите обитатели.
Тази сграда е перфектният избор за всеки, който търси комфорт, удобство и перспективна инвестиция.
Основни характеристики:
• Апартаменти - 33 модерно проектирани апартамента с различни квадратури, разпределени на 6 жилищни етажа.
• Паркоместа - Осигурени са удобни подземни и надземни паркоместа, гарантиращи комфорта на обитателите.
• Застроена площ - 475 квадратни метра.
• Разгърната застроена площ - 3300 квадратни метра.
• Местоположение - в местност "Платото" в квартал Аспарухово, известен със своята тишина и спокойствие, близост до морето и красиви природни гледки.
Предимства за обитателите:
• Всяко жилище в комплекса е проектирано така, че да предлага максимална функционалност и удобство.
• Прекрасната морска панорама добавя допълнителен чар и усещане за простор.
• Близостта до централните части на града и основни транспортни артерии осигурява лесен достъп до всички удобства, които градът предлага.
Изключително подходящ за тези, които търсят уединение и спокойствие в близост до морето, съчетано с модерния уют на новопостроена сграда.
Оглед на имота
Можем да организираме оглед на имота в удобно за вас време. За целта, свържете се с отговорния за офертата брокер и му кажете кога бихте искали да направите оглед.
Резервация на имота
Имотът може да бъде резервиран и свален от продажба със заплащане на депозит, след което се прекратява провеждането на огледи с други купувачи и започва подготовка на документите за сключване на предварителен и окончателен договор. Свържете се с отговорния брокер за този имот за подробна информация относно процедурата на покупка и начините за плащане.
- Описание
- Характеристики
- Галерия
- Местоположение
- Ценова листа
Характеристики на имота
Тип на имота
Тристаен апартамент
Реф. номер
Vna 86536
Площ
90.37 м2 (чиста площ: 78.91 м2 плюс общи части: 11.46 м2)
Спални
2
Състояние
БДС (на шпакловка и замазка)
Етаж
5 от 6
Асансьор
да
Обзавеждане
Необзаведен
Отопление
Климатици / Електрически уреди
Тип строителство
Стоманобетонна конструкция, Тухла, Ново строителство
Година на построяване
2027
Още информация за Съвременен жилищен комплекс с морска панорама във Варна:
План на имота
Ценова листа
Обзавеждане
План на плащане
Снимки от въздуха
Общ план
360° изглед
Инфо пакет
Референтен номер: Vna 86536
Местоположение
гр. Варна, кв."Аспарухово"Удобства в района
- Автобусна спирка "ХРИСТО БАЕВ" на 17 м. (1 мин.) - Автобус No: 12
- Детска градина "9. Детска ясла Детелина" на 289 м. (4 мин.)
- Детска градина "ЦДГ 43 "Пинокио"" на 459 м. (6 мин.)
- Училище "НУ Васил Левски" на 182 м. (3 мин.)
- Училище "ОУ Христо Ботев" на 386 м. (5 мин.)
- Университет "Морска гимназия "Св. Николай Чудотворец"" на 625 м. (8 мин.)
- Болница "МЦ Оксигена" на 278 м. (4 мин.)
- Болница "II ДКЦ Св. Иван Рилски" на 292 м. (4 мин.)
- Хранителен магазин "Бакалница Янтра" на 10 м. (1 мин.)
- Супермаркет "Мак" на 316 м. (4 мин.)
- Супермаркет "Billa" на 351 м. (5 мин.)
- Пазар "Аспарухово Център" на 268 м. (4 мин.)
- Мол "Търговски Център Аспарухово" на 542 м. (7 мин.)
- Банка "Банка ДСК" на 252 м. (4 мин.)
- Поща/Куриер "9003" на 282 м. (4 мин.)
- Поща/Куриер "Аспарухово" на 592 м. (8 мин.)
- Фризьорски салон "Ива" на 207 м. (3 мин.)
- Ветеринарен лекар "ветеринарен кабинет Диана" на 348 м. (5 мин.)
- Ресторант "Рибката" на 198 м. (3 мин.)
- Ресторант "пицария "Дандо"" на 537 м. (7 мин.)
- Детска площадка "Тужо" на 351 м. (5 мин.)
- Спортен терен на 836 м. (11 мин.)
- Парк на 244 м. (3 мин.)
- Паркинг на 110 м. (2 мин.)
- Бензиностанция "Лукойл" на 566 м. (7 мин.)
- Библиотека на 291 м. (4 мин.)
ТРАНСПОРТ
УЧЕБНИ ЗАВЕДЕНИЯ
ЛЕЧЕБНИ ЗАВЕДЕНИЯ
ПАЗАРУВАНЕ
УСЛУГИ
ЗАВЕДЕНИЯ
СПОРТ И СВОБОДНО ВРЕМЕ
ПРИРОДА И ЗАБЕЛЕЖИТЕЛНОСТИ
АВТОМОБИЛНИ УСЛУГИ
ОБЩЕСТВЕНИ СГРАДИ И ИНСТИТУЦИИ
Изпратете запитване
129 154 €
(252 603,27 лв.)
- €
- $
- £
Предварителни Продажби
Старт на строителството: 15.03.2025 гСрок на завършване: 01.03.2027 г.
Без комисионна
Ценова листа
*/ ?>
ЗА ПОВЕЧЕ ИНФОРМАЦИЯ
Реф. номер: Vna 86536
При обаждане, моля цитирайте референтния номер на имота.

Анна Ицова
Офис Варна бул. "Владислав Варненчик" 110, етаж 2, офис 4, Варна 9000 Всички оферти (153)
Налични имоти в комплекса
24
имота
19
свободни
1
продадени
4
резервирани
Изпратете запитване
Още имоти в този комплекс

Продажба
За частни лица
Двустаен апартамент в Съвременен жилищен комплекс с морска панорама във Варна
гр. Варна , кв. "Аспарухово"
Апартаменти с 1, 2 или 3 спални в квартал Аспарухово, местност „Платото“

Продажба
За частни лица
Двустаен апартамент в Съвременен жилищен комплекс с морска панорама във Варна
гр. Варна , кв. "Аспарухово"
Апартаменти с 1, 2 или 3 спални в квартал Аспарухово, местност „Платото“

Продажба
За частни лица
Тристаен апартамент в Съвременен жилищен комплекс с морска панорама във Варна
гр. Варна , кв. "Аспарухово"
Апартаменти с 1, 2 или 3 спални в квартал Аспарухово, местност „Платото“

Продажба
За частни лица
Тристаен апартамент в Съвременен жилищен комплекс с морска панорама във Варна
гр. Варна , кв. "Аспарухово"
Апартаменти с 1, 2 или 3 спални в квартал Аспарухово, местност „Платото“

Продажба
За частни лица
Тристаен апартамент в Съвременен жилищен комплекс с морска панорама във Варна
гр. Варна , кв. "Аспарухово"
Апартаменти с 1, 2 или 3 спални в квартал Аспарухово, местност „Платото“

Продажба
За частни лица
Апартамент в Съвременен жилищен комплекс с морска панорама във Варна
гр. Варна , кв. "Аспарухово"
Апартаменти с 1, 2 или 3 спални в квартал Аспарухово, местност „Платото“

Продажба
За частни лица
Тристаен апартамент в Съвременен жилищен комплекс с морска панорама във Варна
гр. Варна , кв. "Аспарухово"
Апартаменти с 1, 2 или 3 спални в квартал Аспарухово, местност „Платото“

Продажба
За частни лица
Двустаен апартамент в Съвременен жилищен комплекс с морска панорама във Варна
гр. Варна , кв. "Аспарухово"
Апартаменти с 1, 2 или 3 спални в квартал Аспарухово, местност „Платото“

Продажба
За частни лица
Тристаен апартамент в Съвременен жилищен комплекс с морска панорама във Варна
гр. Варна , кв. "Аспарухово"
Апартаменти с 1, 2 или 3 спални в квартал Аспарухово, местност „Платото“

Продажба
За частни лица
Тристаен апартамент в Съвременен жилищен комплекс с морска панорама във Варна
гр. Варна , кв. "Аспарухово"
Апартаменти с 1, 2 или 3 спални в квартал Аспарухово, местност „Платото“

Продажба
За частни лица
Тристаен апартамент в Съвременен жилищен комплекс с морска панорама във Варна
гр. Варна , кв. "Аспарухово"
Апартаменти с 1, 2 или 3 спални в квартал Аспарухово, местност „Платото“

Продажба
За частни лица
Тристаен апартамент в Съвременен жилищен комплекс с морска панорама във Варна
гр. Варна , кв. "Аспарухово"
Апартаменти с 1, 2 или 3 спални в квартал Аспарухово, местност „Платото“

Продажба
За частни лица
Двустаен апартамент в Съвременен жилищен комплекс с морска панорама във Варна
гр. Варна , кв. "Аспарухово"
Апартаменти с 1, 2 или 3 спални в квартал Аспарухово, местност „Платото“

Продажба
За частни лица
Тристаен апартамент в Съвременен жилищен комплекс с морска панорама във Варна
гр. Варна , кв. "Аспарухово"
Апартаменти с 1, 2 или 3 спални в квартал Аспарухово, местност „Платото“

Продажба
За частни лица
Тристаен апартамент в Съвременен жилищен комплекс с морска панорама във Варна
гр. Варна , кв. "Аспарухово"
Апартаменти с 1, 2 или 3 спални в квартал Аспарухово, местност „Платото“

Продажба
За частни лица
Тристаен апартамент в Съвременен жилищен комплекс с морска панорама във Варна
гр. Варна , кв. "Аспарухово"
Апартаменти с 1, 2 или 3 спални в квартал Аспарухово, местност „Платото“

Продажба
За частни лица
Четиристаен апартамент в Съвременен жилищен комплекс с морска панорама във Варна
гр. Варна , кв. "Аспарухово"
Апартаменти с 1, 2 или 3 спални в квартал Аспарухово, местност „Платото“

Продажба
За частни лица
Тристаен апартамент в Съвременен жилищен комплекс с морска панорама във Варна
гр. Варна , кв. "Аспарухово"
Апартаменти с 1, 2 или 3 спални в квартал Аспарухово, местност „Платото“

Продажба
За частни лица
Тристаен апартамент в Съвременен жилищен комплекс с морска панорама във Варна
гр. Варна , кв. "Аспарухово"
Апартаменти с 1, 2 или 3 спални в квартал Аспарухово, местност „Платото“
Още имоти в кв. Аспарухово

Наем
Обзаведен четиристаен апартамент в кв. Аспарухово – до Свободния университет
гр. Варна , кв. "Аспарухово"
Жилище в поддържана сграда с отлична локация във Варна
Обзаведен четиристаен апартамент в кв. Аспарухово – до Свободния университет - Жилище в поддържана сграда с отлична локация във Варна

Продажба
Просторен апартамент за ремонт до парк Аспарухово
гр. Варна , кв. "Аспарухово"
Панорамно жилище с паркомясто и удобен достъп до плажа
Просторен апартамент за ремонт до парк Аспарухово - Панорамно жилище с паркомясто и удобен достъп до плажа
150 000 €(293 374,50 лв.)
(1 485 €/кв.м.)(2 904,70 лв./кв.м.)Площ: 101.00 кв.м.

Анна Ицова
Брокер, Варна

Продажба
Многостаен апартамент в центъра на кв. Аспарухово
гр. Варна , кв. "Аспарухово"
Просторно тухлено жилище с подобрения до парк Аспарухово
Многостаен апартамент в центъра на кв. Аспарухово - Просторно тухлено жилище с подобрения до парк Аспарухово
158 500 €(309 999,06 лв.)
(1 378 €/кв.м.)(2 695,64 лв./кв.м.)Площ: 115.00 кв.м.

Калина Иванова
Старши брокер, Варна

Продажба
За частни лица
Партерен гараж в кв. „Аспарухово“
гр. Варна , кв. "Аспарухово"
Функционален имот с ток и вода в централната част на района
Партерен гараж в кв. „Аспарухово“ - Функционален имот с ток и вода в централната част на района

Продажба
За частни лица
Лукс
ПЪРВА ЛИНИЯ
Мезонет в комплекс Варна Саут Бей/Varna South Bay
гр. Варна , кв. "Аспарухово"
Обзаведен апартамент с 2 спални на първа линия
Мезонет в комплекс Варна Саут Бей/Varna South Bay - Обзаведен апартамент с 2 спални на първа линия

Продажба
За частни лица
Последни апартаменти в малка жилищна сграда в кв. Аспарухово
гр. Варна , кв. "Аспарухово"
Сграда с удобна локация на 3 км от Катедралата
Последни апартаменти в малка жилищна сграда в кв. Аспарухово - Сграда с удобна локация на 3 км от Катедралата
от 120 000 €(от 234 699,60 лв.)
(1 295 €/кв.м. - 1 646 €/кв.м.)(2 532,80 лв./кв.м. - 3 219,30 лв./кв.м.)Площ: 72.92 - 135.18 кв.м.

Анна Ицова
Брокер, Варна

Продажба
ПЪРВА ЛИНИЯ
Тристаен апартамент в комплекс Варна Саут Бей/Varna South Bay
гр. Варна , кв. "Аспарухово"
Имот на 2 нива на първа линия от морето, до парк Аспарухово
Тристаен апартамент в комплекс Варна Саут Бей/Varna South Bay - Имот на 2 нива на първа линия от морето, до парк Аспарухово

Продажба
За частни лица
Тристаен апартамент пред Акт 16 до парка в кв. Аспарухово
гр. Варна , кв. "Аспарухово"
Новопостроен функционално разпределен апартамент до учебни заведения и морето
Тристаен апартамент пред Акт 16 до парка в кв. Аспарухово - Новопостроен функционално разпределен апартамент до учебни заведения и морето

Продажба
Нов двустаен апартамент в модерна сграда в кв. Аспарухово
гр. Варна , кв. "Аспарухово"
Отлична инвестиция и бъдещ дом в град Варна
Нов двустаен апартамент в модерна сграда в кв. Аспарухово - Отлична инвестиция и бъдещ дом в град Варна

Продажба
Новопостроен тристаен апартамент с Акт 15 в кв. Аспарухово
гр. Варна , кв. "Аспарухово"
Просторно жилище със спокойна и зелена локация в морската столица
Новопостроен тристаен апартамент с Акт 15 в кв. Аспарухово - Просторно жилище със спокойна и зелена локация в морската столица

Продажба
Апартамент с две спални и прекрасна гледка в град Варна
гр. Варна , кв. "Аспарухово"
Жилище в нова сграда с Акт 15 в кв. Аспарухово
Апартамент с две спални и прекрасна гледка в град Варна - Жилище в нова сграда с Акт 15 в кв. Аспарухово

Продажба
ПЪРВА ЛИНИЯ
Двустаен апартамент в комплекс на първа линия във Варна
гр. Варна , кв. "Аспарухово"
Обзаведен апартамент с морска гледка в близост до парк Аспарухово
Двустаен апартамент в комплекс на първа линия във Варна - Обзаведен апартамент с морска гледка в близост до парк Аспарухово

Наем
За частни лица
ПЪРВА ЛИНИЯ
Тристаен апартамент с прекрасна гледка към морето на първа линия от плажа в кв. Аспарухово
гр. Варна , кв. "Аспарухово"
Жилище с две спални и южно изложение в комплекс Варна Саут Бей/Varna South Bay
Тристаен апартамент с прекрасна гледка към морето на първа линия от плажа в кв. Аспарухово - Жилище с две спални и южно изложение в комплекс Варна Саут Бей/Varna South Bay

Продажба
ПЪРВА ЛИНИЯ
Двустаен апартамент в комплекс Варна Саут Бей/Varna South Bay
гр. Варна , кв. "Аспарухово"
Комфортно жилище на първа линия от морето, до парк Аспарухово
Двустаен апартамент в комплекс Варна Саут Бей/Varna South Bay - Комфортно жилище на първа линия от морето, до парк Аспарухово

Продажба
За частни лица
Нова жилищна сграда в ж.к. Аспарухово
гр. Варна , кв. "Аспарухово"
Последни апартаменти и търговски площи в един от най-удобните и предпочитани квартали на Варна
Нова жилищна сграда в ж.к. Аспарухово - Последни апартаменти и търговски площи в един от най-удобните и предпочитани квартали на Варна
от 124 218 €(от 242 949,29 лв.)
(1 186 €/кв.м. - 1 236 €/кв.м.)(2 319,61 лв./кв.м. - 2 417,41 лв./кв.м.)Площ: 100.50 - 112.81 кв.м.

Анна Ицова
Брокер, Варна

Продажба
За частни лица
Нов проект в кв. Аспарухово
гр. Варна , кв. "Аспарухово"
Малка, луксозна сграда с отлична локация в гр. Варна
Нов проект в кв. Аспарухово - Малка, луксозна сграда с отлична локация в гр. Варна
от 76 000 €(от 148 643,08 лв.)
(1 335 €/кв.м.)(2 611,90 лв./кв.м.)Площ: 56.91 - 56.91 кв.м.

Анна Ицова
Брокер, Варна

Продажба
За частни лица
Подземно паркомясто до парк Аспарухово
гр. Варна , кв. "Аспарухово"
Паркомясто на минути от удобствата на град Варна по булеварден път
Подземно паркомясто до парк Аспарухово - Паркомясто на минути от удобствата на град Варна по булеварден път

Наем
ПЪРВА ЛИНИЯ
Двустаен апартамент под наем в първокласен комплекс във Варна
гр. Варна , кв. "Аспарухово"
Обзаведен апартамент в близост до парк Аспарухово
Двустаен апартамент под наем в първокласен комплекс във Варна - Обзаведен апартамент в близост до парк Аспарухово

Продажба
Модерна пететажна жилищна сграда пред Акт 16 в кв. Аспарухово
гр. Варна , кв. "Аспарухово"
Последен тристаен апартамент до магазин Била и училище
Модерна пететажна жилищна сграда пред Акт 16 в кв. Аспарухово - Последен тристаен апартамент до магазин Била и училище
от 147 500 €(от 288 484,93 лв.)
(1 497 €/кв.м.)(2 928,78 лв./кв.м.)Площ: 98.50 - 98.50 кв.м.

Анна Ицова
Брокер, Варна

Продажба
Етаж от къща в централната част на кв. Аспарухово
гр. Варна , кв. "Аспарухово"
Жилище за ремонт с дворно място и гараж близо до градски удобства
Етаж от къща в централната част на кв. Аспарухово - Жилище за ремонт с дворно място и гараж близо до градски удобства

Продажба
Малка жилищна сграда с 15 апартамента в кв. Аспарухово
гр. Варна , кв. "Аспарухово"
Последен наличен изцяло обзаведен двустаен апартамент на 3 мин. от градината и на 7 мин. от плажа на Аспарухово
Малка жилищна сграда с 15 апартамента в кв. Аспарухово - Последен наличен изцяло обзаведен двустаен апартамент на 3 мин. от градината и на 7 мин. от плажа на Аспарухово
от 147 000 €(от 287 507,01 лв.)
(1 879 €/кв.м.)(3 675,15 лв./кв.м.)Площ: 78.23 - 78.23 кв.м.

Анна Ицова
Брокер, Варна

Наем
За частни лица
ПЪРВА ЛИНИЯ
Магазини до ключ в комплекс Варна Саут Бей/Varna South Bay
гр. Варна , кв. "Аспарухово"
Атрактивни търговски помещения на първа линия в кв. Аспарухово
Магазини до ключ в комплекс Варна Саут Бей/Varna South Bay - Атрактивни търговски помещения на първа линия в кв. Аспарухово

Продажба
ПЪРВА ЛИНИЯ
Обзаведено жилище с хубава гледка на първа линия от плажа в кв. Аспарухово
гр. Варна , кв. "Аспарухово"
Двустаен апартамент в комплекс Варна Саут Бей/Varna South Bay
Обзаведено жилище с хубава гледка на първа линия от плажа в кв. Аспарухово - Двустаен апартамент в комплекс Варна Саут Бей/Varna South Bay

Продажба
Земя на 4 км от плаж, район Аспарухово, Варна
гр. Варна , кв. "Аспарухово"
Равен имот до Галата
Земя на 4 км от плаж, район Аспарухово, Варна - Равен имот до Галата
Още имоти в гр. Варна

Продажба
Хит
Лукс
Жилища в небостъргач - луксозен комплекс в Младост, Варна!
гр. Варна , кв. "Младост 1"
Висок клас апартаменти с уникални гледки в кв. Младост 1 на морската столица
Жилища в небостъргач - луксозен комплекс в Младост, Варна! - Висок клас апартаменти с уникални гледки в кв. Младост 1 на морската столица
от 107 900 €(от 211 034,06 лв.)
(1 537 €/кв.м. - 1 717 €/кв.м.)(3 006,11 лв./кв.м. - 3 358,16 лв./кв.м.)Площ: 68.20 - 118.32 кв.м.

Калина Иванова
Старши брокер, Варна

Продажба
Хит
Лукс
Жилищен комплекс с Акт 16 до плаж Кабакум, Варна
гр. Варна , кв. "м-т Ален мак"
Последни наличности! Луксозни апартаменти с директен достъп до плажа
Жилищен комплекс с Акт 16 до плаж Кабакум, Варна - Последни наличности! Луксозни апартаменти с директен достъп до плажа
от 256 000 €(от 500 692,48 лв.)
(1 199 €/кв.м. - 2 100 €/кв.м.)(2 345,04 лв./кв.м. - 4 107,24 лв./кв.м.)Площ: 186.80 - 213.49 кв.м.

Анна Ицова
Брокер, Варна

Наем
ново
Лукс
Двустаен апартамент с хубава морска гледка в кв. Чайка
гр. Варна , кв. "Чайка"
Обзаведен имот в луксозна сграда до к.к. Златни пясъци
Двустаен апартамент с хубава морска гледка в кв. Чайка - Обзаведен имот в луксозна сграда до к.к. Златни пясъци

Продажба
ново
Жилищна сграда в кв. Възраждане 4
гр. Варна , кв. "Възраждане 4"
Апартаменти в близост до всички удобства в гр. Варна
Жилищна сграда в кв. Възраждане 4 - Апартаменти в близост до всички удобства в гр. Варна
от 96 000 €(от 187 759,68 лв.)
(1 359 €/кв.м. - 1 825 €/кв.м.)(2 657,97 лв./кв.м. - 3 569,39 лв./кв.м.)Площ: 66.31 - 142.22 кв.м.

Калина Иванова
Старши брокер, Варна

Наем
ново
Търговско помещение със статут аптека под наем в кв. Кайсиева градина
гр. Варна , кв. "Кайсиева градина"
Имот, подходящ за аптека в оживен район
Търговско помещение със статут аптека под наем в кв. Кайсиева градина - Имот, подходящ за аптека в оживен район

Наем
ново
Готов за нанасяне двустаен апартамент в затворен комплекс Бела Вита
гр. Варна , кв. "Виница"
Модерен имот за дългосрочен наем с паркомясто в кв. Виница
Готов за нанасяне двустаен апартамент в затворен комплекс Бела Вита - Модерен имот за дългосрочен наем с паркомясто в кв. Виница

Продажба
ново
За частни лица
Външни паркоместа за продажба с отлична локация близо до главен път
гр. Варна , кв. "Виница"
Паркоместа на 150 метра от пътя Виница – Св. Св. Константин и Елена
Външни паркоместа за продажба с отлична локация близо до главен път - Паркоместа на 150 метра от пътя Виница – Св. Св. Константин и Елена

Наем
ново
Тристаен апартамент под наем след основен ремонт до Гранд Мол Варна
гр. Варна , кв. "Гранд Мол"
Комфортно и стилно жилище в динамичния градски ритъм на Варна
Тристаен апартамент под наем след основен ремонт до Гранд Мол Варна - Комфортно и стилно жилище в динамичния градски ритъм на Варна

Продажба
ново
За частни лица
ВТОРА ЛИНИЯ
Вила с двор и морска панорама
с. Кранево
Имот на 200 метра от плажа в Кранево
Вила с двор и морска панорама - Имот на 200 метра от плажа в Кранево

Наем
ново
Четиристаен апартамент под наем до пазар Чаталджа във Варна
гр. Варна , кв. "Чаталджа"
Обзаведено жилище с отлична локация във Варна
Четиристаен апартамент под наем до пазар Чаталджа във Варна - Обзаведено жилище с отлична локация във Варна

Продажба
ново
Модерен жилищен комплекс с Акт 16 в кв. Виница
гр. Варна , кв. "Виница"
Просторни жилища по БДС или до ключ до гора, на 10 минути от центъра на Варна
Модерен жилищен комплекс с Акт 16 в кв. Виница - Просторни жилища по БДС или до ключ до гора, на 10 минути от центъра на Варна
от 109 900 €(от 214 945,72 лв.)
(1 434 €/кв.м. - 2 052 €/кв.м.)(2 804,66 лв./кв.м. - 4 013,36 лв./кв.м.)Площ: 66.77 - 159.48 кв.м.

Анна Ицова
Брокер, Варна

Наем
Лукс
ПЪРВА ЛИНИЯ
Двустаен апартамент с морска гледка в комплекс Ла Мер / La Mer
гр. Варна , кв. "Чайка"
Обзаведен имот под наем на първа линия на плаж Кабакум
Двустаен апартамент с морска гледка в комплекс Ла Мер / La Mer - Обзаведен имот под наем на първа линия на плаж Кабакум

Продажба
Хит
Нова жилищна сграда в предпочитания за живеене кв. Възраждане 1
гр. Варна , кв. "Възраждане 1"
Последни двустайни и тристайни апартаменти до парк, магазини, булеварди, учебни заведения
Нова жилищна сграда в предпочитания за живеене кв. Възраждане 1 - Последни двустайни и тристайни апартаменти до парк, магазини, булеварди, учебни заведения
от 120 000 €(от 234 699,60 лв.)
(1 680 €/кв.м. - 1 932 €/кв.м.)(3 285,79 лв./кв.м. - 3 778,66 лв./кв.м.)Площ: 67.29 - 100.51 кв.м.

Калина Иванова
Старши брокер, Варна

Наем
Обзаведен четиристаен апартамент в кв. Аспарухово – до Свободния университет
гр. Варна , кв. "Аспарухово"
Жилище в поддържана сграда с отлична локация във Варна
Обзаведен четиристаен апартамент в кв. Аспарухово – до Свободния университет - Жилище в поддържана сграда с отлична локация във Варна

Продажба
Лукс
Луксозно реновиран тристаен апартамент в Балчик
гр. Балчик
Изцяло обзаведен и готов за нанасяне дом с дизайнерски мебели
Луксозно реновиран тристаен апартамент в Балчик - Изцяло обзаведен и готов за нанасяне дом с дизайнерски мебели

Продажба
Последни апартаменти в нова сграда с Акт 15 в Изгрев
гр. Варна , кв. "Изгрев"
Жилища три спални и отлична локация в гр. Варна
Последни апартаменти в нова сграда с Акт 15 в Изгрев - Жилища три спални и отлична локация в гр. Варна
от 249 900 €(от 488 761,92 лв.)
(1 354 €/кв.м. - 1 537 €/кв.м.)(2 648,19 лв./кв.м. - 3 006,11 лв./кв.м.)Площ: 162.55 - 197.13 кв.м.

Калина Иванова
Старши брокер, Варна

Продажба
Просторен апартамент за ремонт до парк Аспарухово
гр. Варна , кв. "Аспарухово"
Панорамно жилище с паркомясто и удобен достъп до плажа
Просторен апартамент за ремонт до парк Аспарухово - Панорамно жилище с паркомясто и удобен достъп до плажа
150 000 €(293 374,50 лв.)
(1 485 €/кв.м.)(2 904,70 лв./кв.м.)Площ: 101.00 кв.м.

Анна Ицова
Брокер, Варна

Продажба
Лукс
Тристаен апартамент с Акт 16 в к.к. Св.Св. Константин и Елена
гр. Варна , кв. "Св. Св. Константин и Елена"
Луксозен апартамент до ключ на 150 м от плажа
Тристаен апартамент с Акт 16 в к.к. Св.Св. Константин и Елена - Луксозен апартамент до ключ на 150 м от плажа

Продажба
За частни лица
Двустаен апартамент с Акт 16 в кв. Виница
гр. Варна , кв. "Виница"
Имот до ключ с гледка море
Двустаен апартамент с Акт 16 в кв. Виница - Имот до ключ с гледка море

Продажба
Лукс
Нова двуетажна къща с нескриваема морска панорама в затворен комплекс в м-ст „Прибой“
гр. Варна , кв. "м-т Прибой"
Просторен имот с дворно място и две паркоместа в бутиков комплекс във Варна
Нова двуетажна къща с нескриваема морска панорама в затворен комплекс в м-ст „Прибой“ - Просторен имот с дворно място и две паркоместа в бутиков комплекс във Варна

Продажба
Лукс
Новострояща се двуетажна къща в местност Прибой
гр. Варна , кв. "м-т Прибой"
Модерен семеен дом със собствен двор, две паркоместа и нескриваема морска панорама
Новострояща се двуетажна къща в местност Прибой - Модерен семеен дом със собствен двор, две паркоместа и нескриваема морска панорама

Продажба
Готов за нанасяне двустаен апартамент в кв. Възраждане 1
гр. Варна , кв. "Възраждане 1"
Поддържан панелен апартамент до парк, възлов булевард, фитнес
Готов за нанасяне двустаен апартамент в кв. Възраждане 1 - Поддържан панелен апартамент до парк, възлов булевард, фитнес

Наем
Лукс
ПЪРВА ЛИНИЯ
Двустаен апартамент с гледка към морето в комплекс „Аргищ Палас“
гр. Варна , кв. "Чайка"
Обзаведено жилище на първа линия в к. к. Златни пясъци
Двустаен апартамент с гледка към морето в комплекс „Аргищ Палас“ - Обзаведено жилище на първа линия в к. к. Златни пясъци

Продажба
Голям промишлен парцел до бъдещата индустриална зона на с. Тополи
с. Тополи
Леснодостъпен регулиран парцел с лице на път Девня-Варна
Голям промишлен парцел до бъдещата индустриална зона на с. Тополи - Леснодостъпен регулиран парцел с лице на път Девня-Варна

Продажба
За частни лица
Новопостроен двустаен апартамент в кв. Възраждане 1
гр. Варна , кв. "Възраждане 1"
Просторен апартамент висок клас строителство с панорамна гледка
Новопостроен двустаен апартамент в кв. Възраждане 1 - Просторен апартамент висок клас строителство с панорамна гледка
Вижте още имоти в кв. "Аспарухово" в град Варна:
- Апартаменти (различни типове) в кв. "Аспарухово"
- Къщи в кв. "Аспарухово"
- Офиси в кв. "Аспарухово"
- Магазини в кв. "Аспарухово"
- Земи в кв. "Аспарухово"
- Всички имоти в кв. "Аспарухово"
Вижте още имоти в град Варна:
Абонирайте се за нашия канал
