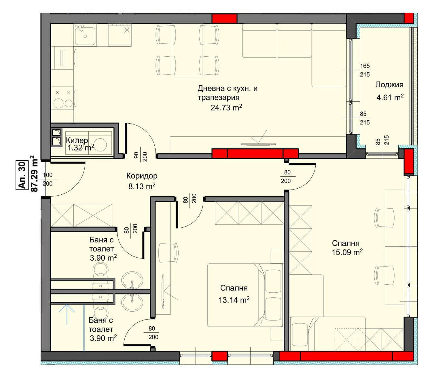
апартамент A-30 , обща площ 100.13 кв.м. (нетна площ 87.29 кв.м. + общи части 12.84 кв.м.).
Открийте идеалното място за вашето ново начало в многофамилната жилищна сграда, разположена в престижния квартал Аспарухово, Варна. Съвременната сграда предлага уникална смесица от комфорт, стил и великолепна морска панорама, която ще обогати всекидневието на своите обитатели.
Тази сграда е перфектният избор за всеки, който търси комфорт, удобство и перспективна инвестиция.
Основни характеристики:
• Апартаменти - 33 модерно проектирани апартамента с различни квадратури, разпределени на 6 жилищни етажа.
• Паркоместа - Осигурени са удобни подземни и надземни паркоместа, гарантиращи комфорта на обитателите.
• Застроена площ - 475 квадратни метра.
• Разгърната застроена площ - 3300 квадратни метра.
• Местоположение - в местност "Платото" в квартал Аспарухово, известен със своята тишина и спокойствие, близост до морето и красиви природни гледки.
Предимства за обитателите:
• Всяко жилище в комплекса е проектирано така, че да предлага максимална функционалност и удобство.
• Прекрасната морска панорама добавя допълнителен чар и усещане за простор.
• Близостта до централните части на града и основни транспортни артерии осигурява лесен достъп до всички удобства, които градът предлага.
Изключително подходящ за тези, които търсят уединение и спокойствие в близост до морето, съчетано с модерния уют на новопостроена сграда.
Оглед на имота
Можем да организираме оглед на имота в удобно за вас време. За целта, свържете се с отговорния за офертата брокер и му кажете кога бихте искали да направите оглед.
Резервация на имота
Имотът може да бъде резервиран и свален от продажба със заплащане на депозит, след което се прекратява провеждането на огледи с други купувачи и започва подготовка на документите за сключване на предварителен и окончателен договор. Свържете се с отговорния брокер за този имот за подробна информация относно процедурата на покупка и начините за плащане.
- Описание
- Характеристики
- Галерия
- Местоположение
- Ценова листа
Характеристики на имота
Тип на имота
Тристаен апартамент
Реф. номер
Vna 86536
Площ
100.13 м2 (чиста площ: 87.29 м2 плюс общи части: 12.84 м2)
Спални
2
Състояние
БДС (на шпакловка и замазка)
Етаж
5 от 6
Асансьор
да
Обзавеждане
Необзаведен
Отопление
Климатици / Електрически уреди
Тип строителство
Стоманобетонна конструкция, Тухла, Ново строителство
Година на построяване
2027
Още информация за Съвременен жилищен комплекс с морска панорама във Варна:
План на имота
Планове
Ценова листа
Обзавеждане
План на плащане
Снимки от въздуха
Общ план
360° изглед
Инфо пакет
Референтен номер: Vna 86536
Местоположение
гр. Варна, кв."Аспарухово"Удобства в района
- Автобусна спирка "ХРИСТО БАЕВ" на 17 м. (1 мин.) - Автобус No: 12
- Детска градина "9. Детска ясла Детелина" на 289 м. (4 мин.)
- Детска градина "ЦДГ 43 "Пинокио"" на 459 м. (6 мин.)
- Училище "НУ Васил Левски" на 182 м. (3 мин.)
- Училище "ОУ Христо Ботев" на 386 м. (5 мин.)
- Университет "Морска гимназия "Св. Николай Чудотворец"" на 625 м. (8 мин.)
- Болница "МЦ Оксигена" на 278 м. (4 мин.)
- Болница "II ДКЦ Св. Иван Рилски" на 292 м. (4 мин.)
- Медицински център на 279 м. (4 мин.)
- Хранителен магазин "Бакалница Янтра" на 10 м. (1 мин.)
- Супермаркет "Billa" на 351 м. (5 мин.)
- Супермаркет "My Market" на 499 м. (7 мин.)
- Пазар "Аспарухово Център" на 268 м. (4 мин.)
- Пекарна "Тужо" на 351 м. (5 мин.)
- Мол "Търговски Център Аспарухово" на 542 м. (7 мин.)
- Банка "Банка ДСК" на 252 м. (4 мин.)
- Поща/Куриер "9003" на 282 м. (4 мин.)
- Поща/Куриер "Аспарухово" на 592 м. (8 мин.)
- Фризьорски салон "Ива" на 207 м. (3 мин.)
- Ветеринарен лекар "ветеринарен кабинет Диана" на 348 м. (5 мин.)
- Ресторант "Рибката" на 198 м. (3 мин.)
- Ресторант "пицария "Дандо"" на 537 м. (7 мин.)
- Кафене "Стефано" на 415 м. (5 мин.)
- Спортен терен на 836 м. (11 мин.)
- Парк на 244 м. (3 мин.)
- Паркинг на 110 м. (2 мин.)
- Бензиностанция "Лукойл" на 566 м. (7 мин.)
- Библиотека на 291 м. (4 мин.)
ТРАНСПОРТ
УЧЕБНИ ЗАВЕДЕНИЯ
ЛЕЧЕБНИ ЗАВЕДЕНИЯ
ПАЗАРУВАНЕ
УСЛУГИ
ЗАВЕДЕНИЯ
СПОРТ И СВОБОДНО ВРЕМЕ
ПРИРОДА И ЗАБЕЛЕЖИТЕЛНОСТИ
АВТОМОБИЛНИ УСЛУГИ
ОБЩЕСТВЕНИ СГРАДИ И ИНСТИТУЦИИ
Изпратете запитване
142 718 €
(279 132,15 лв.)
- €
- $
- £
Предварителни Продажби
Старт на строителството: 15.03.2025 гСрок на завършване: 01.03.2027 г.
Без комисионна
Ценова листа
*/ ?>
ЗА ПОВЕЧЕ ИНФОРМАЦИЯ
Реф. номер: Vna 86536
При обаждане, моля цитирайте референтния номер на имота.
Анна Ицова
Офис Варна бул. "Владислав Варненчик" 110, етаж 2, офис 4, Варна 9000 Всички оферти (169)
Налични имоти в комплекса
24
имота
19
свободни
1
продадени
4
резервирани
Изпратете запитване
Още имоти в този комплекс
Продажба
За частни лица
Двустаен апартамент в Съвременен жилищен комплекс с морска панорама във Варна
гр. Варна , кв. "Аспарухово"
Апартаменти с 1, 2 или 3 спални в квартал Аспарухово, местност „Платото“
Продажба
За частни лица
Двустаен апартамент в Съвременен жилищен комплекс с морска панорама във Варна
гр. Варна , кв. "Аспарухово"
Апартаменти с 1, 2 или 3 спални в квартал Аспарухово, местност „Платото“
Продажба
За частни лица
Тристаен апартамент в Съвременен жилищен комплекс с морска панорама във Варна
гр. Варна , кв. "Аспарухово"
Апартаменти с 1, 2 или 3 спални в квартал Аспарухово, местност „Платото“
Продажба
За частни лица
Тристаен апартамент в Съвременен жилищен комплекс с морска панорама във Варна
гр. Варна , кв. "Аспарухово"
Апартаменти с 1, 2 или 3 спални в квартал Аспарухово, местност „Платото“
Продажба
За частни лица
Тристаен апартамент в Съвременен жилищен комплекс с морска панорама във Варна
гр. Варна , кв. "Аспарухово"
Апартаменти с 1, 2 или 3 спални в квартал Аспарухово, местност „Платото“
Продажба
За частни лица
Апартамент в Съвременен жилищен комплекс с морска панорама във Варна
гр. Варна , кв. "Аспарухово"
Апартаменти с 1, 2 или 3 спални в квартал Аспарухово, местност „Платото“
Продажба
За частни лица
Тристаен апартамент в Съвременен жилищен комплекс с морска панорама във Варна
гр. Варна , кв. "Аспарухово"
Апартаменти с 1, 2 или 3 спални в квартал Аспарухово, местност „Платото“
Продажба
За частни лица
Двустаен апартамент в Съвременен жилищен комплекс с морска панорама във Варна
гр. Варна , кв. "Аспарухово"
Апартаменти с 1, 2 или 3 спални в квартал Аспарухово, местност „Платото“
Продажба
За частни лица
Тристаен апартамент в Съвременен жилищен комплекс с морска панорама във Варна
гр. Варна , кв. "Аспарухово"
Апартаменти с 1, 2 или 3 спални в квартал Аспарухово, местност „Платото“
Продажба
За частни лица
Тристаен апартамент в Съвременен жилищен комплекс с морска панорама във Варна
гр. Варна , кв. "Аспарухово"
Апартаменти с 1, 2 или 3 спални в квартал Аспарухово, местност „Платото“
Продажба
За частни лица
Тристаен апартамент в Съвременен жилищен комплекс с морска панорама във Варна
гр. Варна , кв. "Аспарухово"
Апартаменти с 1, 2 или 3 спални в квартал Аспарухово, местност „Платото“
Продажба
За частни лица
Тристаен апартамент в Съвременен жилищен комплекс с морска панорама във Варна
гр. Варна , кв. "Аспарухово"
Апартаменти с 1, 2 или 3 спални в квартал Аспарухово, местност „Платото“
Продажба
За частни лица
Двустаен апартамент в Съвременен жилищен комплекс с морска панорама във Варна
гр. Варна , кв. "Аспарухово"
Апартаменти с 1, 2 или 3 спални в квартал Аспарухово, местност „Платото“
Продажба
За частни лица
Тристаен апартамент в Съвременен жилищен комплекс с морска панорама във Варна
гр. Варна , кв. "Аспарухово"
Апартаменти с 1, 2 или 3 спални в квартал Аспарухово, местност „Платото“
Продажба
За частни лица
Тристаен апартамент в Съвременен жилищен комплекс с морска панорама във Варна
гр. Варна , кв. "Аспарухово"
Апартаменти с 1, 2 или 3 спални в квартал Аспарухово, местност „Платото“
Продажба
За частни лица
Тристаен апартамент в Съвременен жилищен комплекс с морска панорама във Варна
гр. Варна , кв. "Аспарухово"
Апартаменти с 1, 2 или 3 спални в квартал Аспарухово, местност „Платото“
Продажба
За частни лица
Четиристаен апартамент в Съвременен жилищен комплекс с морска панорама във Варна
гр. Варна , кв. "Аспарухово"
Апартаменти с 1, 2 или 3 спални в квартал Аспарухово, местност „Платото“
Продажба
За частни лица
Тристаен апартамент в Съвременен жилищен комплекс с морска панорама във Варна
гр. Варна , кв. "Аспарухово"
Апартаменти с 1, 2 или 3 спални в квартал Аспарухово, местност „Платото“
Продажба
За частни лица
Тристаен апартамент в Съвременен жилищен комплекс с морска панорама във Варна
гр. Варна , кв. "Аспарухово"
Апартаменти с 1, 2 или 3 спални в квартал Аспарухово, местност „Платото“
Още имоти в кв. Аспарухово
Продажба
ново
Мезонет с две спални и невероятна гледка море в кв. Аспарухово
гр. Варна , кв. "Аспарухово"
Просторен имот в затворен комплекс с всички удобства и изключителна морска панорама
Мезонет с две спални и невероятна гледка море в кв. Аспарухово - Просторен имот в затворен комплекс с всички удобства и изключителна морска панорама
Наем
За частни лица
ПЪРВА ЛИНИЯ
Тристаен апартамент с прекрасна гледка към морето на първа линия от плажа в кв. Аспарухово
гр. Варна , кв. "Аспарухово"
Жилище с две спални и южно изложение в комплекс Варна Саут Бей/Varna South Bay
Тристаен апартамент с прекрасна гледка към морето на първа линия от плажа в кв. Аспарухово - Жилище с две спални и южно изложение в комплекс Варна Саут Бей/Varna South Bay
Продажба
-6%
Двустаен апартамент с гледка море и басейн в кв. Аспарухово
гр. Варна , кв. "Аспарухово"
Обзаведено жилище в популярен затворен комплекс в гр. Варна
Двустаен апартамент с гледка море и басейн в кв. Аспарухово - Обзаведено жилище в популярен затворен комплекс в гр. Варна
202 340 €190 000 €395,08 лв.371 607,70 лв.
(2 111 €/кв.м.)(4 128,97 лв./кв.м.)Площ: 90.00 кв.м.
Анна Ицова
Брокер, Варна
Продажба
ПЪРВА ЛИНИЯ
Тристаен апартамент в комплекс Варна Саут Бей/Varna South Bay
гр. Варна , кв. "Аспарухово"
Имот на 2 нива на първа линия от морето, до парк Аспарухово
Тристаен апартамент в комплекс Варна Саут Бей/Varna South Bay - Имот на 2 нива на първа линия от морето, до парк Аспарухово
Продажба
Новопостроен тристаен апартамент с Акт 15 в кв. Аспарухово
гр. Варна , кв. "Аспарухово"
Просторно жилище със спокойна и зелена локация в морската столица
Новопостроен тристаен апартамент с Акт 15 в кв. Аспарухово - Просторно жилище със спокойна и зелена локация в морската столица
Продажба
Нов двустаен апартамент в модерна сграда в кв. Аспарухово
гр. Варна , кв. "Аспарухово"
Отлична инвестиция и бъдещ дом в град Варна
Нов двустаен апартамент в модерна сграда в кв. Аспарухово - Отлична инвестиция и бъдещ дом в град Варна
Продажба
изгодно
Обзаведена къща на два етажа близо до морето в кв. Аспарухово
гр. Варна , кв. "Аспарухово"
Обзаведена къща на два етажа близо до морето в кв. Аспарухово
Обзаведена къща на два етажа близо до морето в кв. Аспарухово
Наем
Обзаведен четиристаен апартамент в кв. Аспарухово –до главен булевард
гр. Варна , кв. "Аспарухово"
Жилище в поддържана сграда с отлична локация във Варна
Обзаведен четиристаен апартамент в кв. Аспарухово –до главен булевард - Жилище в поддържана сграда с отлична локация във Варна
450 €400 €880,12 лв.782,33 лв.
(6,08 €/кв.м.)(11,90 лв./кв.м.)Площ: 65.75 кв.м.
Анна Ицова
Брокер, Варна
Продажба
За частни лица
Лукс
ПЪРВА ЛИНИЯ
Мезонет в комплекс Варна Саут Бей/Varna South Bay
гр. Варна , кв. "Аспарухово"
Обзаведен апартамент с 2 спални на първа линия
Мезонет в комплекс Варна Саут Бей/Varna South Bay - Обзаведен апартамент с 2 спални на първа линия
Продажба
ПЪРВА ЛИНИЯ
Обзаведено жилище с хубава гледка на първа линия от плажа в кв. Аспарухово
гр. Варна , кв. "Аспарухово"
Двустаен апартамент в комплекс Варна Саут Бей/Varna South Bay
Обзаведено жилище с хубава гледка на първа линия от плажа в кв. Аспарухово - Двустаен апартамент в комплекс Варна Саут Бей/Varna South Bay
Продажба
ПЪРВА ЛИНИЯ
Двустаен апартамент в комплекс Варна Саут Бей/Varna South Bay
гр. Варна , кв. "Аспарухово"
Комфортно жилище на първа линия от морето, до парк Аспарухово
Двустаен апартамент в комплекс Варна Саут Бей/Varna South Bay - Комфортно жилище на първа линия от морето, до парк Аспарухово
Продажба
Просторен апартамент за ремонт до парк Аспарухово
гр. Варна , кв. "Аспарухово"
Панорамно жилище с паркомясто и удобен достъп до плажа
Просторен апартамент за ремонт до парк Аспарухово - Панорамно жилище с паркомясто и удобен достъп до плажа
150 000 €(293 374,50 лв.)
(1 485 €/кв.м.)(2 904,70 лв./кв.м.)Площ: 101.00 кв.м.
Анна Ицова
Брокер, Варна
Продажба
За частни лица
Паркомясто в нов проект в кв. Аспарухово
гр. Варна , кв. "Аспарухово"
Паркомясто в малка, луксозна сграда с отлична локация в гр. Варна
Паркомясто в нов проект в кв. Аспарухово - Паркомясто в малка, луксозна сграда с отлична локация в гр. Варна
Продажба
За частни лица
Нова жилищна сграда в ж.к. Аспарухово
гр. Варна , кв. "Аспарухово"
Последни апартаменти и търговски площи в един от най-удобните и предпочитани квартали на Варна
Нова жилищна сграда в ж.к. Аспарухово - Последни апартаменти и търговски площи в един от най-удобните и предпочитани квартали на Варна
от 124 218 €(от 242 949,29 лв.)
(1 186 €/кв.м. - 1 236 €/кв.м.)(2 319,61 лв./кв.м. - 2 417,41 лв./кв.м.)Площ: 100.50 - 112.81 кв.м.
Анна Ицова
Брокер, Варна
Продажба
Апартамент с две спални и прекрасна гледка в град Варна
гр. Варна , кв. "Аспарухово"
Жилище в нова сграда с Акт 15 в кв. Аспарухово
Апартамент с две спални и прекрасна гледка в град Варна - Жилище в нова сграда с Акт 15 в кв. Аспарухово
Наем
ПЪРВА ЛИНИЯ
Двустаен апартамент под наем в първокласен комплекс във Варна
гр. Варна , кв. "Аспарухово"
Обзаведен апартамент в близост до парк Аспарухово
Двустаен апартамент под наем в първокласен комплекс във Варна - Обзаведен апартамент в близост до парк Аспарухово
Продажба
Етаж от къща в централната част на кв. Аспарухово
гр. Варна , кв. "Аспарухово"
Жилище за ремонт с дворно място и гараж близо до градски удобства
Етаж от къща в централната част на кв. Аспарухово - Жилище за ремонт с дворно място и гараж близо до градски удобства
Продажба
Малка жилищна сграда с 15 апартамента в кв. Аспарухово
гр. Варна , кв. "Аспарухово"
Последен наличен изцяло обзаведен двустаен апартамент на 3 мин. от градината и на 7 мин. от плажа на Аспарухово
Малка жилищна сграда с 15 апартамента в кв. Аспарухово - Последен наличен изцяло обзаведен двустаен апартамент на 3 мин. от градината и на 7 мин. от плажа на Аспарухово
от 147 000 €(от 287 507,01 лв.)
(1 879 €/кв.м.)(3 675,15 лв./кв.м.)Площ: 78.23 - 78.23 кв.м.
Анна Ицова
Брокер, Варна
Наем
За частни лица
ПЪРВА ЛИНИЯ
Магазини до ключ в комплекс Варна Саут Бей/Varna South Bay
гр. Варна , кв. "Аспарухово"
Атрактивни търговски помещения на първа линия в кв. Аспарухово
Магазини до ключ в комплекс Варна Саут Бей/Varna South Bay - Атрактивни търговски помещения на първа линия в кв. Аспарухово
Продажба
Земя на 4 км от плаж, район Аспарухово, Варна
гр. Варна , кв. "Аспарухово"
Равен имот до Галата
Земя на 4 км от плаж, район Аспарухово, Варна - Равен имот до Галата
Още имоти в гр. Варна
Продажба
Хит
Лукс
Жилища в небостъргач - луксозен комплекс в Младост, Варна!
гр. Варна , кв. "Младост 1"
Висок клас апартаменти с уникални гледки в кв. Младост 1 на морската столица
Жилища в небостъргач - луксозен комплекс в Младост, Варна! - Висок клас апартаменти с уникални гледки в кв. Младост 1 на морската столица
от 107 900 €(от 211 034,06 лв.)
(1 518 €/кв.м. - 1 751 €/кв.м.)(2 968,95 лв./кв.м. - 3 424,66 лв./кв.м.)Площ: 68.20 - 122.26 кв.м.
Калина Иванова
Старши брокер, Варна
Продажба
Хит
Лукс
Жилищен комплекс с Акт 16 до плаж Кабакум, Варна
гр. Варна , кв. "м-т Ален мак"
Последни наличности! Луксозни апартаменти с директен достъп до плажа
Жилищен комплекс с Акт 16 до плаж Кабакум, Варна - Последни наличности! Луксозни апартаменти с директен достъп до плажа
от 256 000 €(от 500 692,48 лв.)
(1 199 €/кв.м. - 2 100 €/кв.м.)(2 345,04 лв./кв.м. - 4 107,24 лв./кв.м.)Площ: 186.80 - 213.49 кв.м.
Анна Ицова
Брокер, Варна
Продажба
ново
Мезонет с две спални и невероятна гледка море в кв. Аспарухово
гр. Варна , кв. "Аспарухово"
Просторен имот в затворен комплекс с всички удобства и изключителна морска панорама
Мезонет с две спални и невероятна гледка море в кв. Аспарухово - Просторен имот в затворен комплекс с всички удобства и изключителна морска панорама
Наем
ново
Търговско помещение на две нива до Катедралата във Варна
гр. Варна , кв. "Център"
Магазин с витрина на главен булевард, завършен до ключ и готов за бизнес
Търговско помещение на две нива до Катедралата във Варна - Магазин с витрина на главен булевард, завършен до ключ и готов за бизнес
Продажба
ново
За частни лица
Обзаведени апартаменти за продажба в целогодишен комплекс в Златни пясъци
к.к. Златни пясъци
Просторни жилища с гледка към море, парк или басейн, подходящи за целогодишно живеене или инвестиция
Обзаведени апартаменти за продажба в целогодишен комплекс в Златни пясъци - Просторни жилища с гледка към море, парк или басейн, подходящи за целогодишно живеене или инвестиция
от 68 430 €(от 133 837,45 лв.)
(1 000 €/кв.м. - 1 850 €/кв.м.)(1 955,83 лв./кв.м. - 3 618,29 лв./кв.м.)Площ: 62.04 - 104.30 кв.м.
Калина Иванова
Старши брокер, Варна
Продажба
ново
Работещ хостел с ресторант в Евксиноград
гр. Варна , кв. "м-т Евксиноград"
Голям бизнес имот с възможности за разширяване на 1 км от плажа
Работещ хостел с ресторант в Евксиноград - Голям бизнес имот с възможности за разширяване на 1 км от плажа
Продажба
ново
За частни лица
Парцел за частна къща с гледка към морето в м-т „Сълзица“
гр. Варна , кв. "м-т Сълзица"
Парцел в една от най-хубавите и близки вилни зони на гр. Варна
Парцел за частна къща с гледка към морето в м-т „Сълзица“ - Парцел в една от най-хубавите и близки вилни зони на гр. Варна
Продажба
ново
Търговско помещение със статут на хранителен магазин в кв. Виница
гр. Варна , кв. "Виница"
Просторен магазин с отличен бизнес потенциал в нова сграда с Акт 16
Търговско помещение със статут на хранителен магазин в кв. Виница - Просторен магазин с отличен бизнес потенциал в нова сграда с Акт 16
Продажба
ново
За частни лица
Нови апартаменти в модерна сграда в кв. Изгрев, Варна
гр. Варна , кв. "Изгрев"
Избор от жилища с удобни разпределения и отлична локация
Нови апартаменти в модерна сграда в кв. Изгрев, Варна - Избор от жилища с удобни разпределения и отлична локация
от 72 900 €(от 142 580,01 лв.)
(1 488 €/кв.м. - 1 698 €/кв.м.)(2 910,28 лв./кв.м. - 3 321 лв./кв.м.)Площ: 46.01 - 113.07 кв.м.
Калина Иванова
Старши брокер, Варна
Продажба
ново
Напълно обзаведен апартамент с великолепна гледка в гр. Варна
гр. Варна , кв. "Галата"
Двустаен апартамент в нова сграда в кв. Галата
Напълно обзаведен апартамент с великолепна гледка в гр. Варна - Двустаен апартамент в нова сграда в кв. Галата
Наем
ново
За частни лица
Двустаен апартамент с голяма тераса в кв. Погреби
гр. Варна , кв. "Погреби"
Напълно обзаведено жилище с гледка към езерото, в близост до детска градина
Двустаен апартамент с голяма тераса в кв. Погреби - Напълно обзаведено жилище с гледка към езерото, в близост до детска градина
Продажба
ново
За частни лица
Просторен четиристаен апартамент в централен район на Варна
гр. Варна , кв. "ВИНС-Червен площад"
Функционално жилище до ключови булеварди, университети и Морската градина
Просторен четиристаен апартамент в централен район на Варна - Функционално жилище до ключови булеварди, университети и Морската градина
380 000 €(743 215,40 лв.)
(3 918 €/кв.м.)(7 662,01 лв./кв.м.)Площ: 97.00 кв.м.
Калина Иванова
Старши брокер, Варна
Наем
ново
Тристаен апартамент под наем в района на Чаталджа, Варна
гр. Варна , кв. "Чаталджа"
Просторно и напълно обзаведено жилище с югозападно изложение на пешеходно разстояние от центъра и Морската градина
Тристаен апартамент под наем в района на Чаталджа, Варна - Просторно и напълно обзаведено жилище с югозападно изложение на пешеходно разстояние от центъра и Морската градина
Продажба
ново
За частни лица
Двустаен апартамент ново строителство в кв. Изгрев, Варна
гр. Варна , кв. "Изгрев"
Жилище с отличен потенциал в сграда с очакван Акт 16 през 2026 г.
Двустаен апартамент ново строителство в кв. Изгрев, Варна - Жилище с отличен потенциал в сграда с очакван Акт 16 през 2026 г.
Наем
ново
Ексклузивно
Готово за нанасяне студио с паркомясто до Майчин дом в кв. Виница
гр. Варна , кв. "Виница"
Нов апартамент с частична морска гледка до учебни заведения, възлов булевард, зеленина
Готово за нанасяне студио с паркомясто до Майчин дом в кв. Виница - Нов апартамент с частична морска гледка до учебни заведения, възлов булевард, зеленина
350 €330 €684,54 лв.645,42 лв.
(7,02 €/кв.м.)(13,73 лв./кв.м.)Площ: 47.01 кв.м.
Анна Ицова
Брокер, Варна
Продажба
ново
Панорамен тристаен апартамент с морска гледка в Горна Трака
гр. Варна , кв. "м-т Горна Трака"
Просторно жилище с престижна локация и комфортно обзавеждане на 1 км от плажа
Панорамен тристаен апартамент с морска гледка в Горна Трака - Просторно жилище с престижна локация и комфортно обзавеждане на 1 км от плажа
Продажба
ново
Просторен тристаен апартамент с морска панорама в кв. Траката, Варна
гр. Варна , кв. "м-т Горна Трака"
Напълно обзаведен дом в затворен комплекс с удобства и престижна локация
Просторен тристаен апартамент с морска панорама в кв. Траката, Варна - Напълно обзаведен дом в затворен комплекс с удобства и престижна локация
Продажба
-2%
ново
Напълно обзаведен тристаен апартамент с паркомясто в района на Лятно кино Тракия
гр. Варна , кв. "Лятно кино Тракия"
Апартамент с две спални в малка сграда на четири етажа
Напълно обзаведен тристаен апартамент с паркомясто в района на Лятно кино Тракия - Апартамент с две спални в малка сграда на четири етажа
224 900 €219 900 €438,11 лв.430 087,02 лв.
(1 912 €/кв.м.)(3 739,89 лв./кв.м.)Площ: 115.00 кв.м.
Калина Иванова
Старши брокер, Варна
Продажба
ново
Едноетажна къща с двор в центъра на гр. Аксаково
гр. Аксаково
Готов за живеене, обзаведен дом – комфорт и спокойствие в близост до Варна
Едноетажна къща с двор в центъра на гр. Аксаково - Готов за живеене, обзаведен дом – комфорт и спокойствие в близост до Варна
Продажба
За частни лица
Външно паркомясто за продажба с отлична локация близо до главен път
гр. Варна , кв. "Виница"
Паркомясто на 150 метра от пътя Виница – Св. Св. Константин и Елена
Външно паркомясто за продажба с отлична локация близо до главен път - Паркомясто на 150 метра от пътя Виница – Св. Св. Константин и Елена
Продажба
Завършен до ключ двустаен апартамент с Акт 16 в кв. Виница
гр. Варна , кв. "Виница"
Слънчево жилище с приятна гледка до гора, на 3 км от плаж
Завършен до ключ двустаен апартамент с Акт 16 в кв. Виница - Слънчево жилище с приятна гледка до гора, на 3 км от плаж
Наем
За частни лица
ПЪРВА ЛИНИЯ
Тристаен апартамент с прекрасна гледка към морето на първа линия от плажа в кв. Аспарухово
гр. Варна , кв. "Аспарухово"
Жилище с две спални и южно изложение в комплекс Варна Саут Бей/Varna South Bay
Тристаен апартамент с прекрасна гледка към морето на първа линия от плажа в кв. Аспарухово - Жилище с две спални и южно изложение в комплекс Варна Саут Бей/Varna South Bay
Продажба
Модерен жилищен комплекс с Акт 16 в кв. Виница
гр. Варна , кв. "Виница"
Просторни жилища по БДС или до ключ до гора, на 10 минути от центъра на Варна
Модерен жилищен комплекс с Акт 16 в кв. Виница - Просторни жилища по БДС или до ключ до гора, на 10 минути от центъра на Варна
от 109 900 €(от 214 945,72 лв.)
(1 434 €/кв.м. - 2 052 €/кв.м.)(2 804,66 лв./кв.м. - 4 013,36 лв./кв.м.)Площ: 66.77 - 159.48 кв.м.
Анна Ицова
Брокер, Варна
Продажба
Комплекс от две сгради в кв. Виница
гр. Варна , кв. "Виница"
Модерен морски дом с панорамна гледка, стилна архитектура и комфортна среда за живот
Комплекс от две сгради в кв. Виница - Модерен морски дом с панорамна гледка, стилна архитектура и комфортна среда за живот
от 191 539 €(от 374 617,72 лв.)
(1 700 €/кв.м. - 1 800 €/кв.м.)(3 324,91 лв./кв.м. - 3 520,49 лв./кв.м.)Площ: 112.67 - 146.03 кв.м.
Анна Ицова
Брокер, Варна
Наем
Лукс
ПЪРВА ЛИНИЯ
Тристаен апартамент с гледка към морето в комплекс Кабакум Бийч Резиденс / Cabacum Beach Residence
гр. Варна , кв. "к.к. Чайка"
Напълно обзаведен апартамент с две спални на 100 метра от плажа
Тристаен апартамент с гледка към морето в комплекс Кабакум Бийч Резиденс / Cabacum Beach Residence - Напълно обзаведен апартамент с две спални на 100 метра от плажа
900 €800 €1 760,25 лв.1 564,66 лв.
(6,90 €/кв.м.)(13,49 лв./кв.м.)Площ: 116.00 кв.м.
Анна Ицова
Брокер, Варна
Вижте още имоти в кв. "Аспарухово" в град Варна:
- Апартаменти (различни типове) в кв. "Аспарухово"
- Къщи в кв. "Аспарухово"
- Офиси в кв. "Аспарухово"
- Магазини в кв. "Аспарухово"
- Земи в кв. "Аспарухово"
- Всички имоти в кв. "Аспарухово"
Вижте още имоти в град Варна:
Абонирайте се за нашия канал