Представяме ви нов модерен жилищен проект в курортния град Поморие – едно от най-предпочитаните места за живеене и инвестиция по българското Черноморие.
Сградата е разположена в тих и спокоен район, който същевременно предлага отлична инфраструктура и удобства. Само на няколко минути ще откриете лечебните кални бани, медицински центрове, плажната ивица, стадиона и централната част на града, както и разнообразие от магазини и заведения.
Проектът е с модерна визия, внимателно проектиран за максимален комфорт на бъдещите собственици. Сградата ще бъде построена с качествени материали и съвременни енергоефективни решения.
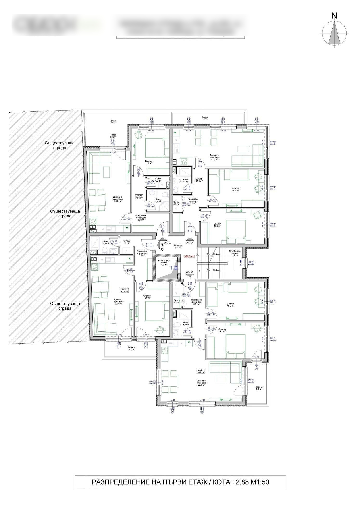
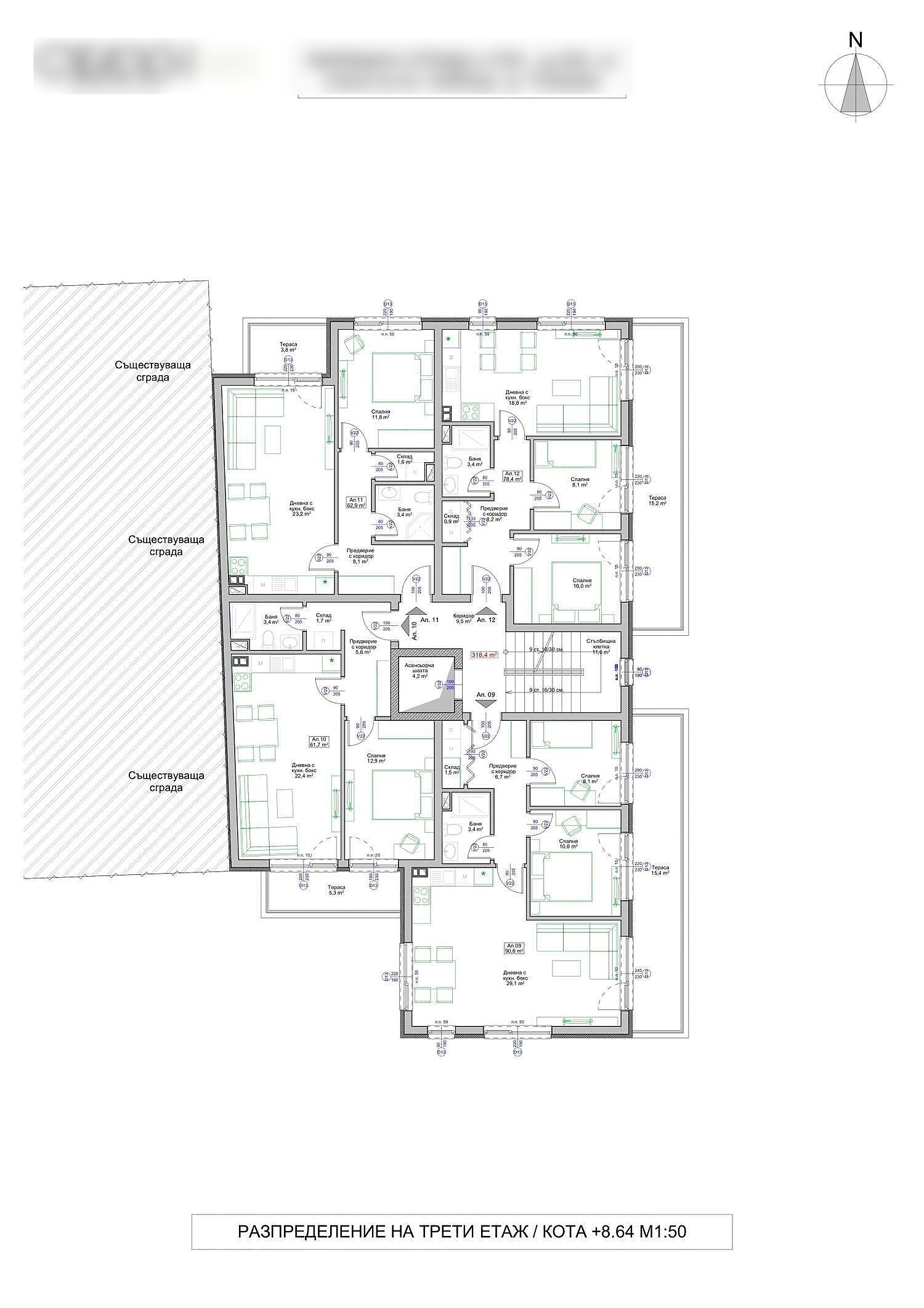
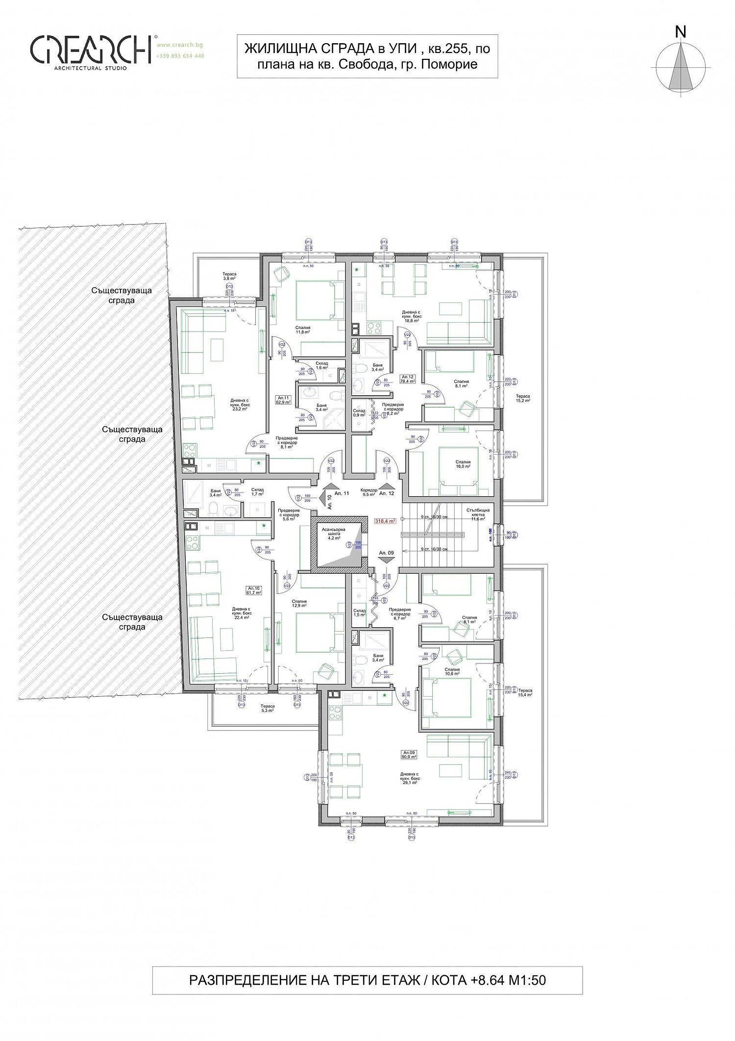
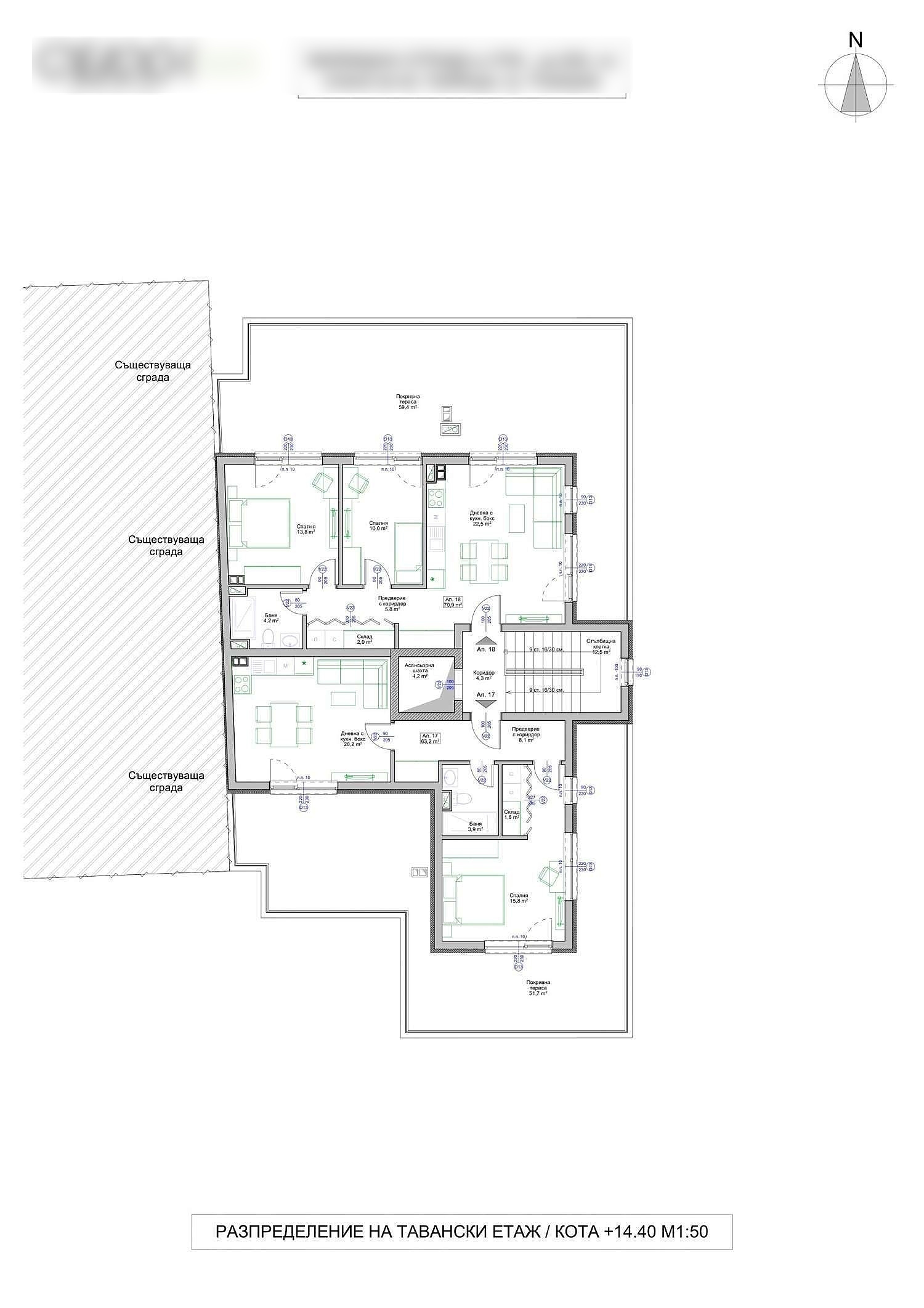
• 6 етажа с асансьор
• двустайни и тристайни апартаменти
• партерни паркоместа и гаражи
• луксозни общи части и контролиран достъп
Апартаментите се предлагат в степен на завършеност „на тапа“, като са осигурени:
• шпакловка и замазка, монтирана входна врата
• PVC дограма с висок клас енергийни стъкла
• изградени ВиК и ел. инсталации
• тераси „до ключ“ с мразоустойчив гранитогрес и парапети
• изводи за климатици
Поморие е известен с уникалната си лечебна кал, кристално чист въздух и приятен климат. Курортът предлага отличен баланс между спокойствие, природа и съвременни удобства, което го прави чудесен избор както за постоянно живеене, така и за ваканционен имот или инвестиция.
Оглед на имота
Можем да организираме оглед на имота спрямо нашия график и възможностите за достъп до него. Заявете вашето желание за оглед, като се свържете с отговорния за офертата брокер по имейл или телефон.
Резервация на имота
Имотът може да бъде резервиран и свален от продажба със заплащане на депозит, след което се прекратява провеждането на огледи с други купувачи и започва подготовка на документите за сключване на предварителен и окончателен договор. Свържете се с отговорния брокер за подробна информация относно процедурата на покупка и начините за плащане.
Жилищен кредит
Ние си партнираме с водещите български банки и можем да ви свържем с техните консултанти за информация и кандидатстване за кредит.
Продажба
ново
Плаж на 600 м
Нов проект в Поморие – модерна архитектура и комфорт до морето
гр. ПомориеСграда с двустайни и тристайни апартаменти, паркоместа и гаражи
Характеристики на имота
Тип на имота
Апартаменти (различни типове), Двустайни апартаменти, Тристайни апартаменти, Гаражи, Паркоместа
Реф. номер
BS 88254
Площ
67.27 м2
Спални
1,2
Състояние
БДС (на шпакловка и замазка)
Етаж
Партер от 6
Асансьор
да
Отопление
Климатици
Тип строителство
Тухла, Ново строителство
Местоположение
гр. Поморие- Плаж на 600 м
Удобства в района
- Детска градина на 281 м. (4 мин.)
- Детска градина "Детелина" на 743 м. (9 мин.)
- Училище "СУ Иван Вазов" на 776 м. (10 мин.)
- Болница на 47 м. (1 мин.)
- Болница на 134 м. (2 мин.)
- Медицински център "Поликлиника" на 59 м. (1 мин.)
- Хранителен магазин "Мега" на 107 м. (2 мин.)
- Супермаркет на 85 м. (2 мин.)
- Супермаркет "Смак" на 175 м. (3 мин.)
- Пазар "Общинский пазар" на 700 м. (9 мин.)
- Банка "ОББ" на 244 м. (3 мин.)
- Банка "УниКредит Булбанк" на 402 м. (5 мин.)
- Банкомат "ОББ" на 244 м. (3 мин.)
- Банкомат "ОББ" на 568 м. (7 мин.)
- Аптека на 63 м. (1 мин.)
- Поща/Куриер "Поморие" на 292 м. (4 мин.)
- Поща/Куриер на 505 м. (7 мин.)
- Фризьорски салон на 168 м. (3 мин.)
- Салон за красота на 437 м. (6 мин.)
- Ветеринарен лекар "Амикус" на 254 м. (4 мин.)
- Ресторант "Лагун" на 158 м. (2 мин.)
- Ресторант "Rose Garden" на 282 м. (4 мин.)
- Кафене "Бистро Нептун" на 202 м. (3 мин.)
- Бар на 199 м. (3 мин.)
- Нощен клуб "Атриум" на 380 м. (5 мин.)
- Казино на 285 м. (4 мин.)
- Плаж на 600 м. (8 мин.)
- Детска площадка "NAZ & NAZ" на 112 м. (2 мин.)
- Фитнес зала "Mega Gym" на 511 м. (7 мин.)
- Плувен басейн на 60 м. (1 мин.)
- Спортен терен на 1.1 км. (13 мин.)
- Театър на 861 м. (11 мин.)
- Кино на 860 м. (11 мин.)
- Музей "Музей на солта" на 559 м. (7 мин.)
- Музей "Посетителски център за опазване на Поморийско езеро" на 617 м. (8 мин.)
- Парк "Парк „Капката“" на 306 м. (4 мин.)
- Паркинг на 113 м. (2 мин.)
- Зарядна станция "Fines Charging" на 527 м. (7 мин.)
- Съд "Районен съд Поморие" на 629 м. (8 мин.)
- Църква "Рождество на Пресвета Богородица" на 767 м. (10 мин.)
ТРАНСПОРТ
УЧЕБНИ ЗАВЕДЕНИЯ
ЛЕЧЕБНИ ЗАВЕДЕНИЯ
ПАЗАРУВАНЕ
УСЛУГИ
ЗАВЕДЕНИЯ
СПОРТ И СВОБОДНО ВРЕМЕ
ПРИРОДА И ЗАБЕЛЕЖИТЕЛНОСТИ
АВТОМОБИЛНИ УСЛУГИ
ОБЩЕСТВЕНИ СГРАДИ И ИНСТИТУЦИИ
Изпратете запитване
84 093 - 129 795 €
(164 471,61 - 253 856,95 лв.)
800 - 1 300 €/м2
(1 564,66 - 2 542,58 лв./м2)
- €
- $
- £
В процес на строителство
Планирано завършване: 01.10.2027 г
Без комисионна
*/ ?>
ЗА ПОВЕЧЕ ИНФОРМАЦИЯ
Реф. номер: BS 88254
При обаждане, моля цитирайте референтния номер на имота.


Налични имоти в комплекса
13
имота
12
свободни
0
продадени
1
резервирани
Изпратете запитване
Вижте още имоти на ул. Тутхон:
- Апартаменти (различни типове) на ул. Тутхон
- Къщи на ул. Тутхон
- Офиси на ул. Тутхон
- Магазини на ул. Тутхон
- Земи на ул. Тутхон
- Всички имоти на ул. Тутхон