Къща радваща се на прекрасна локация сред живописната природа на Панчаревското езеро.
Двуетажната сграда е с площ 348 кв.м. и 840 кв.м. дворно пространство. Асфалтиран път, достъпен и през зимата, отвежда до имота.
Разпределението на пространството позволява обособяването на два самостоятелни етажа за голяма многофамилна къща:
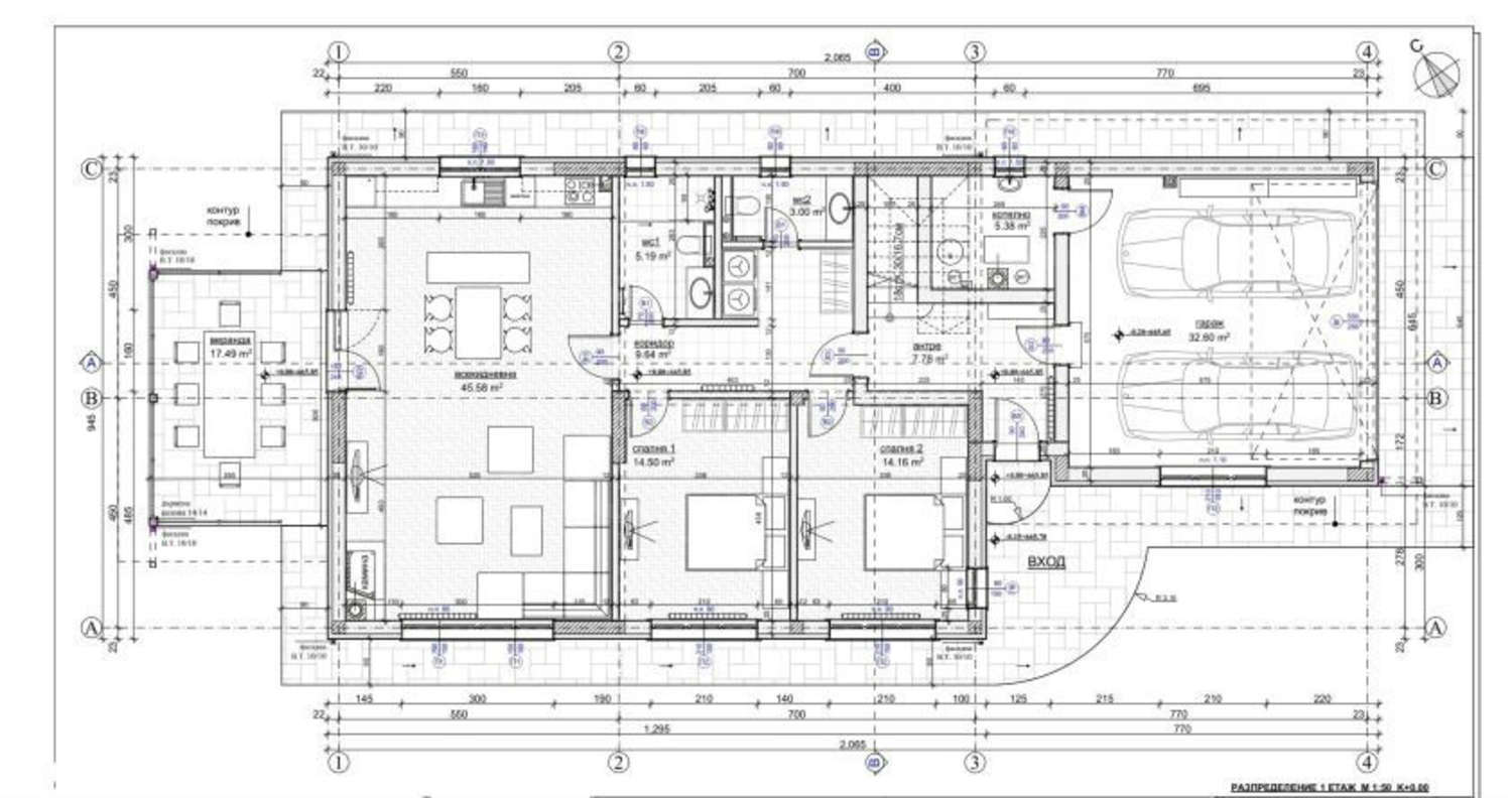
•	1 етаж: антре, баня с тоалетна, тоалетна, хол с кухненски бокс, 2 спални, веранда с барбекю, гараж за две коли;
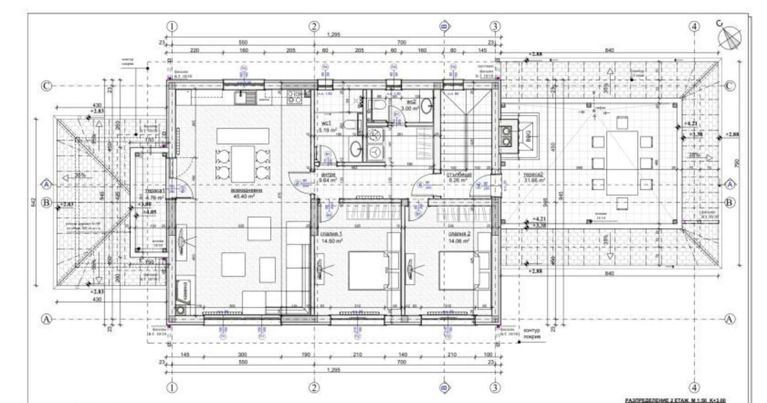
•	2 етаж: антре, баня с тоалетна, тоалетна, хол с кухненски бокс, 2 спални, тераса с барбекю.
Имотът ще бъде завършен според БДС:
•	Шпакловка и замазка;
•	Подово отопление и изводи за соларни панели на покрива;
•	Алуминиева или PVC-дограма;
•	Структурно окабеляване – интернет, телевизия, СОТ;
•	Завършени електрическа и ВиК-инсталации;
Срок на строителство:
•	Очакван Акт 14 - март 2023 г.
•	Очакван Акт 16 - декември 2023 г.
По желание на клиента къщата може къщата може да бъде изцяло завършена срещу допълнително заплащане. Планът на плащане е гъвкав -  на части, по договорка с купувача.
В двора може да се направи малък външен басейн, външно барбекю с кът за хранене и кът за отдих, да се оформи малка детска площадка или зеленчукови и цветни градинки и др.
От мястото се откриват спиращи дъха панорамни гледки.
В района има хранителен магазин, кафе, ресторант, детска градина, училище, а на 15 минути път с кола имате на разположение всички градски удобства, които предлага столицата – административни и офис сгради, аптеки, здравни заведения, банки, супермаркети, търговски центрове, детски градини, училища, университети и много други.
Подарете си спокойствие и здравословна среда на живот, останете в близост до ежедневните удобства, с които сте свикнали – този имот предлага всичко това в едно!
Оглед на имота
Можем да организираме оглед на имота в удобно за вас време. За целта, свържете се с отговорния за офертата брокер и му кажете кога бихте искали да направите оглед.
Резервация на имота
Имотът може да бъде резервиран и свален от продажба със заплащане на депозит, след което се прекратява провеждането на огледи с други купувачи и започва подготовка на документите за сключване на предварителен и окончателен договор. Свържете се с отговорния брокер за този имот за подробна информация относно процедурата на покупка и начините за плащане.
Допълнителни услуги и следпродажбено обслужване
Ние сме реномирана компания и ще бъдем с вас не само по време на покупката, но и след това, осигурявайки ви допълнителни услуги по ваше изискване с цел пълноценно и безпроблемно ползване на новозакупения имот. Услугите, които можем да предложим, включват застраховка на движимо и недвижимо имущество, застраховка живот, медицинско и автомобилно застраховане, строителни и ремонтни дейности, обзавеждане, юридически и счетоводни услуги и др.
									
									
								
																			Продажба
									
									
									
																											
									
									
									
									
									
								
								
								
								
																Къща в строеж до Панчаревското езеро
с. ПанчаревоПрекрасен имот ново строителство с живописна локация
Характеристики на имота
										
											Тип на имота										
										
											Къща										
									
									
										
											Реф. номер										
										
											Sfa 74312										
									
									
										
											Площ										
										
											348.00 м2										
									
																			
											
												Спални											
											
												4											
										
																			
										
											Състояние										
										
											БДС (на шпакловка и замазка)										
									
									
									
										
											
												Брой етажи											
											
												2											
										
																				
											
												Обзавеждане											
											
												Необзаведен											
										
																				
											
												Отопление											
											
												Подово отопление / Слънчеви колектори											
										
																				
											
												Тип строителство											
											
												Стоманобетонна конструкция, Тухла, Ново строителство											
										
																				
											
												Двор											
											
												840 м2											
										
																					
												
													Година на построяване												
												
													2022												
											
																			Местоположение
с. ПанчаревоУдобства в района
- Автобусна спирка "66-ТО ОДЗ ПАНЧАРЕВО" на 433 м. (6 мин.) - Автобус No: 1
- Детска градина "66 ОДЗ Елица" на 517 м. (7 мин.)
- Училище "83 ОУ Елин Пелин" на 856 м. (11 мин.)
- Супермаркет "Kem" на 1.1 км. (14 мин.)
- Аптека "Фея" на 1.1 км. (13 мин.)
- Поща/Куриер "ПТТС София 125–1137" на 882 м. (11 мин.)
- Поща/Куриер "Еконт" на 1.0 км. (13 мин.)
- Ресторант "The Lake" на 854 м. (11 мин.)
- Ресторант "Старецът и Морето" на 953 м. (12 мин.)
- Детска площадка "Пекарна "Оренда"" на 1.1 км. (14 мин.)
- Плувен басейн на 234 м. (3 мин.)
- Спортен терен "Национална гребна база Средец" на 767 м. (10 мин.)
- Театър "Софийска опера и балет" на 955 м. (12 мин.)
- Парк на 481 м. (6 мин.)
- Паркинг на 496 м. (6 мин.)
- Автомивка на 1.2 км. (15 мин.)
- Църква "Св. Димитър" на 1.1 км. (14 мин.)
ТРАНСПОРТ
УЧЕБНИ ЗАВЕДЕНИЯ
ПАЗАРУВАНЕ
УСЛУГИ
ЗАВЕДЕНИЯ
СПОРТ И СВОБОДНО ВРЕМЕ
ПРИРОДА И ЗАБЕЛЕЖИТЕЛНОСТИ
АВТОМОБИЛНИ УСЛУГИ
ОБЩЕСТВЕНИ СГРАДИ И ИНСТИТУЦИИ
Изпратете запитване
680 000 €
(1 329 964,40 лв.)
- €
- $
- £
Дължима комисиона
													
																																												   */ ?>
											
											
													ЗА ПОВЕЧЕ ИНФОРМАЦИЯ
													Реф. номер: Sfa 74312
													
												
											При обаждане, моля цитирайте референтния номер на имота.
 
																							 										 
							 
									 
									 
									 
									 
									 
									 
									 
									 
									 
									 
									 
									 
									 
									 
													 
															 
													