Отличен тристаен апартамент в модерен жилищен комплекс с Акт 16, подземни и приземни гаражи и магазини, с топ локация в район Христо Смирненски - на тихо, но същевременно достъпно и комуникативно място с отлично изградена инфраструктура, в близост до новостроящ се парк, стадион, автобусна спирка.
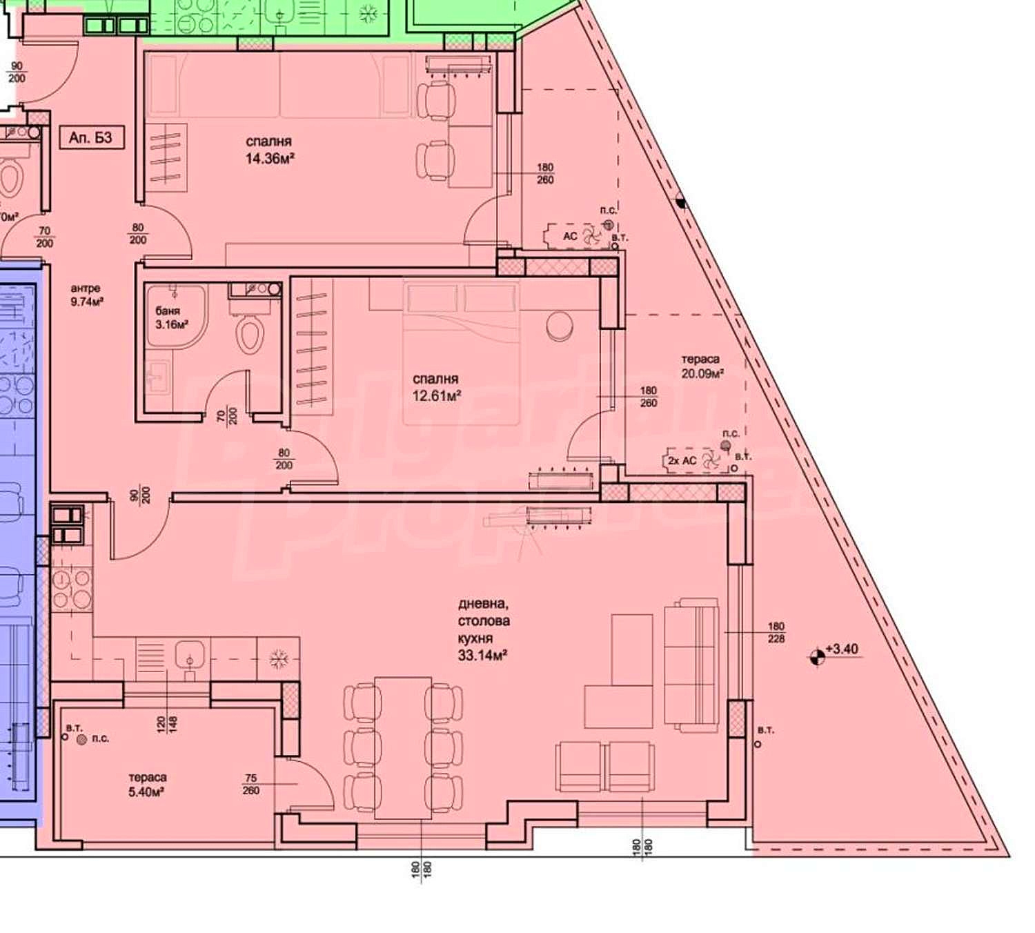
Апартаментът (обща площ от 135.28 м2, чиста площ - 122.79 м2 плюс общи части - 12.49 м2) се намира на втори етаж и се състои от:
• Антре
• Хол с кухненски бокс
• Две спални
• Баня с тоалетна
• Две тераси - от едната спалня и от хола
Жилището се издава в следния вид:
• Стени и тавани – машинна мазилка.
• Подове – циментова замазка.
• Баня и тоалетна – стени и таван – машинна мазилка, под – циментова замазка.
• ВиК – външни връзки, вертикални и хоризонтални щрангове до тапа, водомер за студена вода;
• Ел. инсталация – външна връзка, главно ел. табло, апартаментно ел. табло, вътрешна инсталация с монтирани ключове и контакти, звънчева инсталация и домофона система.
• Дограма – PVC пет камерна в дървесен цвят.
• Входна врата – блиндирана.
Комплексът се състои от две сгради близнаци - А и Б, всяка от които на седем нива - едно подземно с паркоместа и гаражи, партер с магазини, гаражи и жилищни етажи с общо 92 апартамента. На партерния етаж на сграда А е предвидено голямо помещение, което може да бъде превърнато в шоурум или хранителен магазин, тъй като районът е добре застроен и наоколо липсват такива магазини.
Оглед на имота
Можем да организираме оглед на имота в удобно за вас време. За целта, свържете се с отговорния за офертата брокер и му кажете кога бихте искали да направите оглед.
Резервация на имота
Имотът може да бъде резервиран и свален от продажба със заплащане на депозит, след което се прекратява провеждането на огледи с други купувачи и започва подготовка на документите за сключване на предварителен и окончателен договор. Свържете се с отговорния брокер за този имот за подробна информация относно процедурата на покупка и начините за плащане.
Характеристики на имота
Тип на имота
Тристаен апартамент, Гараж, Паркомясто
Реф. номер
Plv 85918
Площ
135.28 м2 (чиста площ: 122.79 м2 плюс общи части: 12.49 м2)
Спални
2
Състояние
БДС (на шпакловка и замазка)
Етаж
2 от 7
Асансьор
да
Обзавеждане
Необзаведен
Отопление
Климатици
Тип строителство
Тухла, Ново строителство
Двор
не
Година на построяване
2024
Изложение:
Изток
Акт 16
да
Още информация за Комфортен тристаен апартамент с Акт 16 в кв. Христо Смирненски:
План на имота
Снимки от въздуха
Общ план
360° изглед
Инфо пакет
Референтен номер: Plv 85918
Местоположение
гр. Пловдив, кв."Христо Смирненски"Удобства в района
- Автобусна спирка ""Коматевско шосе"" на 298 м. (4 мин.) - Автобус No: 1, 20, 27
- Училище "ОУ "Захари Стоянов"" на 1.1 км. (14 мин.)
- Училище на 1.1 км. (14 мин.)
- Болница "Еврохоспитал" на 242 м. (3 мин.)
- Детска площадка "Hliab bakery" на 547 м. (7 мин.)
- Плувен басейн на 751 м. (10 мин.)
- Тенис корт на 918 м. (12 мин.)
- Паркинг на 182 м. (3 мин.)
- Бензиностанция "Ромпетрол" на 1.1 км. (14 мин.)
- Църква "Евангелска Себорна Шепка" на 1.2 км. (15 мин.)
ТРАНСПОРТ
УЧЕБНИ ЗАВЕДЕНИЯ
ЛЕЧЕБНИ ЗАВЕДЕНИЯ
СПОРТ И СВОБОДНО ВРЕМЕ
АВТОМОБИЛНИ УСЛУГИ
ОБЩЕСТВЕНИ СГРАДИ И ИНСТИТУЦИИ
Изпратете запитване
162 336 €
(317 501,62 лв.)
- €
- $
- £
Без комисионна
*/ ?>
ЗА ПОВЕЧЕ ИНФОРМАЦИЯ
Реф. номер: Plv 85918
При обаждане, моля цитирайте референтния номер на имота.

Стефан Моллов
Офис Пловдив Делови център Европа, ул. „Петко Каравелов” 26, ет. 4, офис 20, Пловдив Всички оферти (234)Изпратете запитване
Още имоти в кв. Христо Смирненски

Продажба
ново
За частни лица
Две сгради с отлична локация в кв. Христо Смирненски
гр. Пловдив , кв. "Христо Смирненски"
Последни апартаменти в малки модерни сгради в гр. Пловдив
Две сгради с отлична локация в кв. Христо Смирненски - Последни апартаменти в малки модерни сгради в гр. Пловдив
от 83 500 €(от 163 311,81 лв.)
(643 €/м2 - 1 486 €/м2)(1 257,60 лв./м2 - 2 906,36 лв./м2)Площ: 72.45 - 198.78 м2

Стефан Моллов
Старши брокер, Пловдив

Продажба
ново
За частни лица
Жилищна сграда с модерна архитектура в кв. Христо Смирненски
гр. Пловдив , кв. "Христо Смирненски"
9-етажна сграда с разнообразни по разпределение и изложение двустайни, тристайни и четиристайни апартаменти
Жилищна сграда с модерна архитектура в кв. Христо Смирненски - 9-етажна сграда с разнообразни по разпределение и изложение двустайни, тристайни и четиристайни апартаменти
от 98 500 €(от 192 649,26 лв.)
(1 395 €/м2 - 1 500 €/м2)(2 728,38 лв./м2 - 2 933,75 лв./м2)Площ: 68.89 - 138.25 м2

Стефан Моллов
Старши брокер, Пловдив

Продажба
ново
За частни лица
Нова жилищна сграда в кв. Смирненски близо до Гребната база
гр. Пловдив , кв. "Христо Смирненски"
Апартаменти с Акт 14 на бул. Пещерско шосе
Нова жилищна сграда в кв. Смирненски близо до Гребната база - Апартаменти с Акт 14 на бул. Пещерско шосе
от 120 704 €(от 236 076,50 лв.)
(1 500 €/м2 - 1 650 €/м2)(2 933,75 лв./м2 - 3 227,12 лв./м2)Площ: 75.44 - 208.15 м2

Стефан Моллов
Старши брокер, Пловдив

Продажба
ново
За частни лица
Новопостроен апартамент в луксозна сграда в кв. Христо Смирненски
гр. Пловдив , кв. "Христо Смирненски"
Модерно студио на бул. Пещерско шосе близо до център на Пловдив
Новопостроен апартамент в луксозна сграда в кв. Христо Смирненски - Модерно студио на бул. Пещерско шосе близо до център на Пловдив

Продажба
За частни лица
Лукс
Новопостроен двустаен апартамент с паркомясто до Гребна база
гр. Пловдив , кв. "Христо Смирненски"
Модерно обзаведено жилище в малка бутикова кооперация в предпочитания квартал Смирненски
Новопостроен двустаен апартамент с паркомясто до Гребна база - Модерно обзаведено жилище в малка бутикова кооперация в предпочитания квартал Смирненски

Продажба
Тристаен апартамент с прекрасна гледка в нов комплекс в кв. Христо Смирненски
гр. Пловдив , кв. "Христо Смирненски"
Апартамент с комуникативна локация до новостроящ се парк и стадион
Тристаен апартамент с прекрасна гледка в нов комплекс в кв. Христо Смирненски - Апартамент с комуникативна локация до новостроящ се парк и стадион

Продажба
-8%
За частни лица
Лукс
Тристаен апартамент в кв. Христо Смирненски
гр. Пловдив , кв. "Христо Смирненски"
Обзаведено жилище с 2 спални в луксозна сграда
Тристаен апартамент в кв. Христо Смирненски - Обзаведено жилище с 2 спални в луксозна сграда
245 000 €225 000 €479,18 лв.440 061,75 лв.
(2 320 €/м2)(4 536,72 лв./м2)Площ: 97.00 м2

Стефан Моллов
Старши брокер, Пловдив

Продажба
За частни лица
Студио в нов проект в кв. Христо Смирненски
гр. Пловдив , кв. "Христо Смирненски"
Имот в проект със стилна визия и голям потенциал
Студио в нов проект в кв. Христо Смирненски - Имот в проект със стилна визия и голям потенциал

Продажба
Лукс
Луксозен жилищен комплекс с Акт 16 до Гребната база в Пловдив
гр. Пловдив , кв. "Христо Смирненски"
Избор апартаменти ново строителство в кв. Парк Отдих и Култура
Луксозен жилищен комплекс с Акт 16 до Гребната база в Пловдив - Избор апартаменти ново строителство в кв. Парк Отдих и Култура
от 137 000 €(от 267 948,71 лв.)
(1 651 €/м2 - 2 384 €/м2)(3 229,08 лв./м2 - 4 662,70 лв./м2)Площ: 62.99 - 205.98 м2

Стефан Моллов
Старши брокер, Пловдив

Наем
Съвременен офис с топ локация в кв. Христо Смирненски
гр. Пловдив , кв. "Христо Смирненски"
Етаж от бизнес сграда с два самостоятелни входа срещу Мол Пловдив
Съвременен офис с топ локация в кв. Христо Смирненски - Етаж от бизнес сграда с два самостоятелни входа срещу Мол Пловдив

Наем
Търговски обект под наем в кв. Христо Смирненски
гр. Пловдив , кв. "Христо Смирненски"
Магазин на 2 нива с 30 м лице към улица
Търговски обект под наем в кв. Христо Смирненски - Магазин на 2 нива с 30 м лице към улица

Продажба
Апартамент с 3 спални до Парк отдих и култура и Гребен канал
гр. Пловдив , кв. "Христо Смирненски"
Просторно жилище с Акт 16 в кв. Христо Смирненски
Апартамент с 3 спални до Парк отдих и култура и Гребен канал - Просторно жилище с Акт 16 в кв. Христо Смирненски

Продажба
Уютен триетажен хотел в район Смирненски на град Пловдив
гр. Пловдив , кв. "Христо Смирненски"
Разработен, целогодишен действащ бизнес с дворно място, рецепция, лоби бар и частен паркинг
Уютен триетажен хотел в район Смирненски на град Пловдив - Разработен, целогодишен действащ бизнес с дворно място, рецепция, лоби бар и частен паркинг

Продажба
Оборудвана механа в битов стил в кв. Христо Смирненски
гр. Пловдив , кв. "Христо Смирненски"
Заведение с обособена градина с маси в комуникативен район на гр. Пловидв
Оборудвана механа в битов стил в кв. Христо Смирненски - Заведение с обособена градина с маси в комуникативен район на гр. Пловидв
Още имоти в гр. Пловдив

Продажба
ново
За частни лица
Нов двустаен апартамент в кв. Южен
гр. Пловдив , кв. "Южен"
Функционално разпределено жилище в бързоразвиващ се район на гр. Пловдив
Нов двустаен апартамент в кв. Южен - Функционално разпределено жилище в бързоразвиващ се район на гр. Пловдив

Продажба
ново
За частни лица
Две сгради с отлична локация в кв. Христо Смирненски
гр. Пловдив , кв. "Христо Смирненски"
Последни апартаменти в малки модерни сгради в гр. Пловдив
Две сгради с отлична локация в кв. Христо Смирненски - Последни апартаменти в малки модерни сгради в гр. Пловдив
от 83 500 €(от 163 311,81 лв.)
(643 €/м2 - 1 486 €/м2)(1 257,60 лв./м2 - 2 906,36 лв./м2)Площ: 72.45 - 198.78 м2

Стефан Моллов
Старши брокер, Пловдив

Продажба
ново
За частни лица
Жилищна сграда с модерна архитектура в кв. Христо Смирненски
гр. Пловдив , кв. "Христо Смирненски"
9-етажна сграда с разнообразни по разпределение и изложение двустайни, тристайни и четиристайни апартаменти
Жилищна сграда с модерна архитектура в кв. Христо Смирненски - 9-етажна сграда с разнообразни по разпределение и изложение двустайни, тристайни и четиристайни апартаменти
от 98 500 €(от 192 649,26 лв.)
(1 395 €/м2 - 1 500 €/м2)(2 728,38 лв./м2 - 2 933,75 лв./м2)Площ: 68.89 - 138.25 м2

Стефан Моллов
Старши брокер, Пловдив

Продажба
ново
За частни лица
Нова жилищна сграда в кв. Смирненски близо до Гребната база
гр. Пловдив , кв. "Христо Смирненски"
Апартаменти с Акт 14 на бул. Пещерско шосе
Нова жилищна сграда в кв. Смирненски близо до Гребната база - Апартаменти с Акт 14 на бул. Пещерско шосе
от 120 704 €(от 236 076,50 лв.)
(1 500 €/м2 - 1 650 €/м2)(2 933,75 лв./м2 - 3 227,12 лв./м2)Площ: 75.44 - 208.15 м2

Стефан Моллов
Старши брокер, Пловдив

Продажба
ново
За частни лица
Нови апартаменти с прекрасни гледки в кв. Южен
гр. Пловдив , кв. "Южен"
Студиа, двустайни и тристайни жилища на тихо място, в бързоразвиващ се район на гр. Пловдив
Нови апартаменти с прекрасни гледки в кв. Южен - Студиа, двустайни и тристайни жилища на тихо място, в бързоразвиващ се район на гр. Пловдив
от 78 400 €(от 153 337,07 лв.)
(727 €/м2 - 1 524 €/м2)(1 421,89 лв./м2 - 2 980,68 лв./м2)Площ: 60.58 - 176.05 м2

Стефан Моллов
Старши брокер, Пловдив

Продажба
ново
За частни лица
Лукс
Тристаен апартамент с Акт 16 до Парк-хотел Санкт Петербург
гр. Пловдив , кв. "Кършияка"
Имот ново строителство в кв. Кършияка
Тристаен апартамент с Акт 16 до Парк-хотел Санкт Петербург - Имот ново строителство в кв. Кършияка

Продажба
ново
За частни лица
Двустаен апартамент до Аквапарк Санкт Петербург в кв. Кършияка
гр. Пловдив , кв. "Кършияка"
Функционално разпределено ново жилище висок клас строителство
Двустаен апартамент до Аквапарк Санкт Петербург в кв. Кършияка - Функционално разпределено ново жилище висок клас строителство

Продажба
ново
За частни лица
Нов жилищен комплекс в район Остромила
гр. Пловдив , кв. "Остромила"
Комфортни апартаменти с комуникативна локация в Пловдив
Нов жилищен комплекс в район Остромила - Комфортни апартаменти с комуникативна локация в Пловдив
от 95 273 €(от 186 337,79 лв.)
(1 326 €/м2 - 1 602 €/м2)(2 593,43 лв./м2 - 3 133,24 лв./м2)Площ: 66.25 - 110.55 м2

Стефан Моллов
Старши брокер, Пловдив

Продажба
ново
За частни лица
Двустайни и тристайни апартаменти в зеления кв. Беломорски
гр. Пловдив , кв. "Беломорски"
Четириетажни сгради на тихо място в бързоразвиващ се район с ново, модерно строителство
Двустайни и тристайни апартаменти в зеления кв. Беломорски - Четириетажни сгради на тихо място в бързоразвиващ се район с ново, модерно строителство
от 66 400 €(от 129 867,11 лв.)
(822 €/м2 - 1 359 €/м2)(1 607,69 лв./м2 - 2 657,97 лв./м2)Площ: 67.38 - 113.45 м2

Стефан Моллов
Старши брокер, Пловдив

Продажба
ново
Ексклузивно За частни лица
Южен апартамент в нова сграда с Акт 16
гр. Пловдив , кв. "Южен"
Двустайно жилище с изба в кв. Южен
Южен апартамент в нова сграда с Акт 16 - Двустайно жилище с изба в кв. Южен

Продажба
ново
Поземлен имот с лице на път близо до Асеновградско шосе
гр. Асеновград , Долни Воден
Инвестиционна възможност с достъп от два пътя и потенциал за промяна на предназначението
Поземлен имот с лице на път близо до Асеновградско шосе - Инвестиционна възможност с достъп от два пътя и потенциал за промяна на предназначението

Продажба
ново
Земя близо до Пловдив
с. Брестник
Голям поземлен имот в район с потенциал за инвестиция
Земя близо до Пловдив - Голям поземлен имот в район с потенциал за инвестиция

Продажба
ново
За частни лица
Новопостроен апартамент в луксозна сграда в кв. Христо Смирненски
гр. Пловдив , кв. "Христо Смирненски"
Модерно студио на бул. Пещерско шосе близо до център на Пловдив
Новопостроен апартамент в луксозна сграда в кв. Христо Смирненски - Модерно студио на бул. Пещерско шосе близо до център на Пловдив

Продажба
Просторен търговски обект с офиси и складове в кв. Кършияка
гр. Пловдив , кв. "Кършияка"
Функционален имот разположен на партерно ниво в сграда на главен булевард
Просторен търговски обект с офиси и складове в кв. Кършияка - Функционален имот разположен на партерно ниво в сграда на главен булевард

Продажба
За частни лица
Жилищна сграда с магазини, гаражи и подземен паркинг в кв. Гагарин
гр. Пловдив , кв. "Гагарин"
Модерни апартаменти, съчетаващи удобство и уют, близо до центъра на Пловдив
Жилищна сграда с магазини, гаражи и подземен паркинг в кв. Гагарин - Модерни апартаменти, съчетаващи удобство и уют, близо до центъра на Пловдив
от 109 936 €(от 215 016,13 лв.)
(980 €/м2 - 1 517 €/м2)(1 916,71 лв./м2 - 2 966,99 лв./м2)Площ: 108.16 - 165.74 м2

Стефан Моллов
Старши брокер, Пловдив

Продажба
За частни лица
Нова жилищна сграда с модерна визия и отлична локация в Пловдив
гр. Пловдив , кв. "Тракия"
Апартаменти за всеки стил на живот в кв. Тракия
Нова жилищна сграда с модерна визия и отлична локация в Пловдив - Апартаменти за всеки стил на живот в кв. Тракия
от 77 636 €(от 151 842,82 лв.)
(1 150 €/м2)(2 249,19 лв./м2)Площ: 67.51 - 139.53 м2

Стефан Моллов
Старши брокер, Пловдив

Наем
За частни лица
Двустаен апартамент в кв. Мараша – тиха локация и уютна обстановка
гр. Пловдив , кв. "Мараша"
Обаведено жилище в малка тухлена кооперация в гр. Пловдив
Двустаен апартамент в кв. Мараша – тиха локация и уютна обстановка - Обаведено жилище в малка тухлена кооперация в гр. Пловдив

Продажба
За частни лица
Просторен апартамент с голяма тераса и гледка към Пловдивските тепета
гр. Пловдив , кв. "Остромила"
Жилище с две спални в нова сграда пред Акт 16 в кв. Остромила
Просторен апартамент с голяма тераса и гледка към Пловдивските тепета - Жилище с две спални в нова сграда пред Акт 16 в кв. Остромила

Продажба
За частни лица
Просторен апартамент с отлично разпределение в гр. Пловдив
гр. Пловдив , кв. "Кършияка"
Комфортно жилище с отлична локация в кв. Кършияка
Просторен апартамент с отлично разпределение в гр. Пловдив - Комфортно жилище с отлична локация в кв. Кършияка

Продажба
За частни лица
Втори етаж от къща с гараж в кв. Въстанически
гр. Пловдив , кв. "Въстанически"
Самостоятелен етаж с две спални, сменена дограма и ремонтиран покрив
Втори етаж от къща с гараж в кв. Въстанически - Самостоятелен етаж с две спални, сменена дограма и ремонтиран покрив

Продажба
Ексклузивно За частни лица
Просторен апартамент с две спални и три тераси в центъра на град Пловдив
гр. Пловдив , кв. "Център"
Просторно жилище с гледка към Стария град
Просторен апартамент с две спални и три тераси в центъра на град Пловдив - Просторно жилище с гледка към Стария град

Продажба
Лукс
Стилно обзаведен голям апартамент в Пловдив
гр. Пловдив , кв. "Кършияка"
Просторен имот с възможност за преустройства в кв. Кършияка
Стилно обзаведен голям апартамент в Пловдив - Просторен имот с възможност за преустройства в кв. Кършияка

Продажба
Лукс
Луксозен тристаен мезонет в престижния квартал Мараша
гр. Пловдив , кв. "Мараша"
Новопостроено, модерно обзаведено жилище с панорама и южно изложение
Луксозен тристаен мезонет в престижния квартал Мараша - Новопостроено, модерно обзаведено жилище с панорама и южно изложение

Продажба
За частни лица
Съвременен комплекс с модерен дизайн и отлична локация в кв. Каменица 2
гр. Пловдив , кв. "Каменица 2"
Безкомпромисно строителство, простор, уют и комфорт до Пловдив Плаза Мол
Съвременен комплекс с модерен дизайн и отлична локация в кв. Каменица 2 - Безкомпромисно строителство, простор, уют и комфорт до Пловдив Плаза Мол
от 104 822 €(от 205 014,01 лв.)
(986 €/м2 - 1 600 €/м2)(1 928,45 лв./м2 - 3 129,33 лв./м2)Площ: 67.63 - 329.42 м2

Стефан Моллов
Старши брокер, Пловдив

Продажба
Лукс
Изискан тристаен апартамент в луксозна сграда с централна локация в Пловдив
гр. Пловдив , кв. "Център"
Дизайнерски обзаведен и оборудван апартамент с Акт 16 до възлов булевард и удобства
Изискан тристаен апартамент в луксозна сграда с централна локация в Пловдив - Дизайнерски обзаведен и оборудван апартамент с Акт 16 до възлов булевард и удобства
Вижте още имоти в кв. "Христо Смирненски" в град Пловдив:
- Тристайни апартаменти в кв. "Христо Смирненски"
- Апартаменти (различни типове) в кв. "Христо Смирненски"
- Къщи в кв. "Христо Смирненски"
- Офиси в кв. "Христо Смирненски"
- Магазини в кв. "Христо Смирненски"
- Земи в кв. "Христо Смирненски"
- Всички имоти в кв. "Христо Смирненски"
Вижте още имоти в град Пловдив:
Абонирайте се за нашия канал
