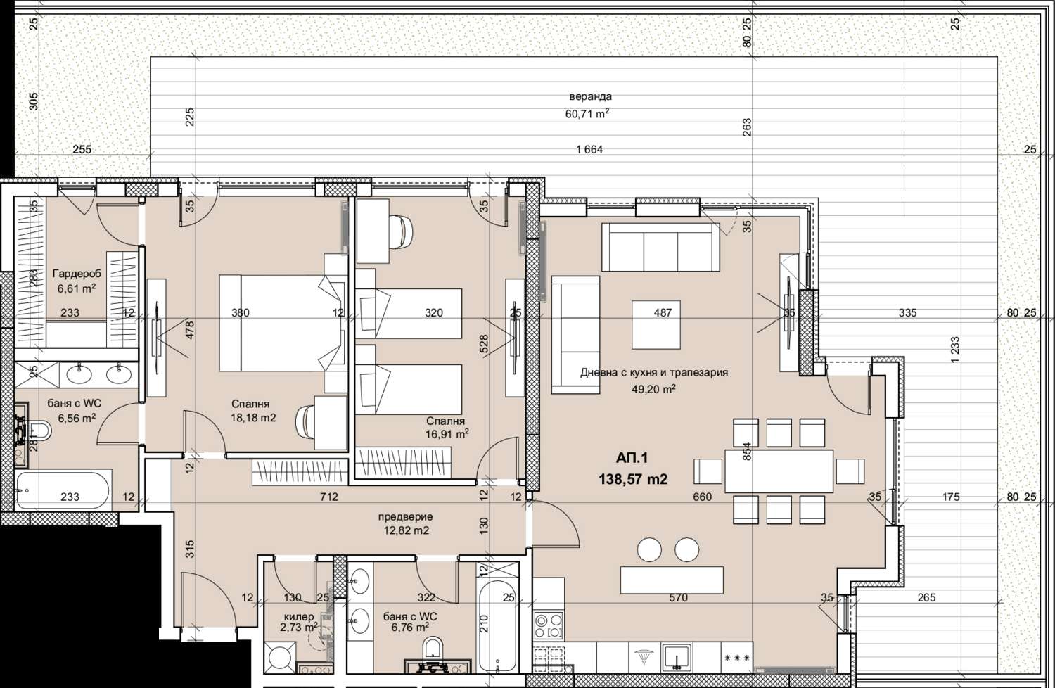
апартамент B1 , обща площ 163.90 кв.м. (нетна площ 138.57 кв.м. + общи части 25.33 кв.м.).
Kомплекс, хармонично вписан в средата, в която е ситуиран, разположен в една от най-съвременните зони на гр. София – район Лозенец. Елегантните, изчистени обеми и естествените материали, дават възможност на всеки да се потопи в атмосферата на комплекса.
В комплекса са проектирани:
• 647 бр. апартамента
• 2 бр. едностайни (ателиета)
• 271 бр. двустайни (с 1 спалня) апартамента
• 350 бр. тристайни (с 2 спални) апартамента
• 24 бр. четиристайни (с 3 спални) апартамента
• Ресторант-градина
• Детски център със занималня
• Фитнес център с уелнес зона
• 18 бр. хранителни и нехранителни търговски обекта
• 9 бр. детски площадки и зони за отдих
• 787 бр. подземни гаражи и паркоместа
Най-добрите, естествени и качествени материали са използвани при строителството, за да се постигне максимална енергийна ефективност.
• фасадите са винтилируеми с минерална вата и немски клинкерни плочи;
• дограмата е алуминиева, от най-висок клас с прекъснат термомост и троен стъклопакет;
• всеки апартамент е с монтирана индивидуална термопомпа, захранваща подово отопление и охлаждане;
• атомобилният поток ще минава по периферията на имотите към две подземни нива, осигурявайки на сградите лукса да „дишат“ спокойно, като предлага просторни и светли пространства;
• луксозни общи площи с безшумни асансьори.
Отлична локация граничеща с:
• Ловен парк - Борисова градина
• Зоологическа градина
• река Драгалевска
• улица Сребърна
Сред предимствата на локацията е и близостта до метростанция Витоша; МОЛ Paradise; Южен парк; множество училища, детски градини и спортни комплекси – тенис клуб „Малееви“, спортен центът „Пулев“, Orange Фитнес; Болници „Токуда“, „Вита“ и „Лозенец“. На 20 м от комплекса е ситуирана спирка на градския транспорт, която осигурява достъп до всеки квартал на София.
Месечна такса поддръжка:
• Апартаменти и изби (с общи площи) - 1.88лв/м2 с ДДС от които:
- 1.70лв/м2 с ДДС такса за заплати персонал
- 0.18лв/м2 с ДДС такса за консумативи (обвързани с основните разходи - ток и вода)
• Гаражи и паркоместа
-9.70лв с ДДС за брой автомясто такса за заплати персонал
-0.18лв/м2 с ДДС такса за консумативи (обвързани с основните разходи - ток и вода).
Защо да закупите апартамент в комплекса?
• Отлично местоположение с удобен достъп дп парк и метро.
• 24-часов контролиран достъп.
• 30 дка красиви, зелени градини, 9 детски площадки и 18 търговски обекта.
• Изключително добре уреден квартал с множество удобства.
• Бърз и удобен достъп до центъра на София и Paradise Center.
• Модерна архитектурна визия и функционално вътрешно разпределение на апартаментите.
• Строителни технологии и материали от последно поколение.
• Луксозно строителство на световно ниво.
• Инвеститор с отлична репутация и реализирани проекти с впечатляващо качество.
Оглед на имота
Можем да организираме оглед на имота в удобно за вас време. За целта, свържете се с отговорния за офертата брокер и му кажете кога бихте искали да направите оглед.
Резервация на имота
Имотът може да бъде резервиран и свален от продажба със заплащане на депозит, след което се прекратява провеждането на огледи с други купувачи и започва подготовка на документите за сключване на предварителен и окончателен договор. Свържете се с отговорния брокер за този имот за подробна информация относно процедурата на покупка и начините за плащане.
Допълнителни услуги и следпродажбено обслужване
Ние сме реномирана компания и ще бъдем с вас не само по време на покупката, но и след това, осигурявайки ви допълнителни услуги по ваше изискване с цел пълноценно и безпроблемно ползване на новозакупения имот. Услугите, които можем да предложим, включват застраховка на движимо и недвижимо имущество, застраховка живот, медицинско и автомобилно застраховане, строителни и ремонтни дейности, обзавеждане, юридически и счетоводни услуги и др.
- Описание
- Характеристики
- Галерия
- Местоположение
- Ценова листа
Характеристики на имота
Тип на имота
Тристаен апартамент
Реф. номер
Sfa 79709
Площ
163.90 м2 (чиста площ: 138.57 м2 плюс общи части: 25.33 м2)
Спални
2
Състояние
БДС (на шпакловка и замазка)
Етаж
1 от 6
Асансьор
да
Обзавеждане
Необзаведен
Отопление
Подово отопление / Термопомпа
Тип строителство
Тухла, Ново строителство
Година на построяване
2024
Такса поддръжка
1.88 лв/кв. м./месец
Още информация за Луксозен комплекс от 13 сгради с 30 дка зелени площи, 9 детски площадки и 18 търговски обекта:
План на имота
Планове
Ценова листа
Техническа спецификация
Качество на въздуха
Характеристика на комплекса
Обзавеждане
План на строителство
План на плащане
Снимки от въздуха
Общ план
360° изглед
Инфо пакет
Референтен номер: Sfa 79709
Местоположение
гр. София, кв."ПЗ Хладилника"Удобства в района
- Метростанция "ВИТОША" на 777 м. (10 мин.) - Линия No: M2
- Автобусна спирка "УЛ. СРЕБЪРНА" на 104 м. (2 мин.) - Автобус No: 64, 98, 88, 68, 83
- Трамвайна спирка "МЕТРОСТАНЦИЯ ВИТОША" на 722 м. (9 мин.) - Трамвай No: 15, 10
- Детска градина "ДГ 175 „Слънчеви лъчи“" на 820 м. (10 мин.)
- Детска градина "№174 Фют" на 824 м. (10 мин.)
- Училище "St. George International School & Preschool" на 699 м. (9 мин.)
- Училище "Международно висше бизнес училище" на 793 м. (10 мин.)
- Болница "Аджибадем Сити Клиник УМБАЛ Токуда" на 536 м. (7 мин.)
- Болница "Болница Вита" на 601 м. (8 мин.)
- Хранителен магазин "Най" на 81 м. (1 мин.)
- Супермаркет "Lidl" на 726 м. (9 мин.)
- Супермаркет "Bio Market" на 906 м. (11 мин.)
- Пазар "Пазар Сребърна" на 635 м. (8 мин.)
- Зоо магазин на 748 м. (10 мин.)
- Мол "Paradise Center" на 952 м. (12 мин.)
- Банка "ОББ" на 736 м. (9 мин.)
- Банка "ОББ" на 793 м. (10 мин.)
- Банкомат "Пощенска банка" на 833 м. (11 мин.)
- Банкомат "Банка ДСК" на 854 м. (11 мин.)
- Аптека "Нове" на 515 м. (7 мин.)
- Поща/Куриер "Speedy" на 604 м. (8 мин.)
- Поща/Куриер "Еконт" на 680 м. (9 мин.)
- Фризьорски салон "Stylette" на 619 м. (8 мин.)
- Химическо чистене "Vik 2007" на 802 м. (10 мин.)
- Салон за красота "Gatsby" на 50 м. (1 мин.)
- Ветеринарен лекар "Ветеринарна клиника" на 175 м. (3 мин.)
- Ресторант "Добревски" на 442 м. (6 мин.)
- Ресторант "Co Cantina" на 470 м. (6 мин.)
- Бар "Feel better bar & snacks" на 665 м. (9 мин.)
- Казино "Monaco" на 726 м. (9 мин.)
- Детска площадка "Queen's" на 748 м. (10 мин.)
- Фитнес зала "Body Atelier" на 56 м. (1 мин.)
- Спортен терен "Тенис клуб Малееви" на 819 м. (10 мин.)
- Тенис корт на 748 м. (10 мин.)
- Театър на 640 м. (8 мин.)
- Театър на 1.1 км. (14 мин.)
- Кино "Cinema City" на 940 м. (12 мин.)
- Парк на 918 м. (12 мин.)
- Градина "Учебно-експериментална база „Драгалевци“" на 561 м. (7 мин.)
- Паркинг на 19 м. (1 мин.)
- Бензиностанция "Петрол" на 263 м. (4 мин.)
- Зарядна станция "WINK" на 681 м. (9 мин.)
- Автомивка "SKL" на 133 м. (2 мин.)
- Посолство "Посолство на Република Корея" на 663 м. (8 мин.)
ТРАНСПОРТ
УЧЕБНИ ЗАВЕДЕНИЯ
ЛЕЧЕБНИ ЗАВЕДЕНИЯ
ПАЗАРУВАНЕ
УСЛУГИ
ЗАВЕДЕНИЯ
СПОРТ И СВОБОДНО ВРЕМЕ
ПРИРОДА И ЗАБЕЛЕЖИТЕЛНОСТИ
АВТОМОБИЛНИ УСЛУГИ
ОБЩЕСТВЕНИ СГРАДИ И ИНСТИТУЦИИ
Изпратете запитване
499 893 €
(977 705,73 лв.)
- €
- $
- £
Завършен с АКТ 16
Дата на завършване: 15.01.2024 г
Без комисионна
Ценова листа
*/ ?>
ЗА ПОВЕЧЕ ИНФОРМАЦИЯ
Реф. номер: Sfa 79709
При обаждане, моля цитирайте референтния номер на имота.


Налични имоти в комплекса
193
имота
57
свободни
136
продадени
0
резервирани
Изпратете запитване
Още имоти в този комплекс

Продажба
Лукс
Тристаен апартамент в Луксозен комплекс от 13 сгради с 30 дка зелени площи, 9 детски площадки и 18 търговски обекта
гр. София , кв. "ПЗ Хладилника"
Модерни градски жилища до Ловен парк, с удобен достъп до метростанция Витоша
420 000 €821 448,60 лв.
(3 195 €/кв.м.) (6 248,88 лв./кв.м.)131.44 кв.м.

Магдалена Цоклинова
Старши брокер, София

Продажба
Лукс
Тристаен апартамент в Луксозен комплекс от 13 сгради с 30 дка зелени площи, 9 детски площадки и 18 търговски обекта
гр. София , кв. "ПЗ Хладилника"
Модерни градски жилища до Ловен парк, с удобен достъп до метростанция Витоша
400 000 €782 332 лв.
(1 737 €/кв.м.) (3 397,28 лв./кв.м.)230.20 кв.м.

Магдалена Цоклинова
Старши брокер, София

Продажба
Лукс
Пентхаус в Луксозен комплекс от 13 сгради с 30 дка зелени площи, 9 детски площадки и 18 търговски обекта
гр. София , кв. "ПЗ Хладилника"
Модерни градски жилища до Ловен парк, с удобен достъп до метростанция Витоша
260 207 €508 920,66 лв.
(1 643 €/кв.м.) (3 213,43 лв./кв.м.)158.33 кв.м.

Магдалена Цоклинова
Старши брокер, София

Продажба
Лукс
Тристаен апартамент в Луксозен комплекс от 13 сгради с 30 дка зелени площи, 9 детски площадки и 18 търговски обекта
гр. София , кв. "ПЗ Хладилника"
Модерни градски жилища до Ловен парк, с удобен достъп до метростанция Витоша
336 846 €658 813,51 лв.
(2 699 €/кв.м.) (5 278,79 лв./кв.м.)124.76 кв.м.

Магдалена Цоклинова
Старши брокер, София

Продажба
Лукс
Заведение в Луксозен комплекс от 13 сгради с 30 дка зелени площи, 9 детски площадки и 18 търговски обекта
гр. София , кв. "ПЗ Хладилника"
Модерни градски жилища до Ловен парк, с удобен достъп до метростанция Витоша
2 384 120 €4 662 933,42 лв.
(2 106 €/кв.м.) (4 118,98 лв./кв.м.)1132.06 кв.м.

Магдалена Цоклинова
Старши брокер, София

Продажба
Лукс
Магазин в Луксозен комплекс от 13 сгради с 30 дка зелени площи, 9 детски площадки и 18 търговски обекта
гр. София , кв. "ПЗ Хладилника"
Модерни градски жилища до Ловен парк, с удобен достъп до метростанция Витоша
401 076 €784 436,47 лв.
(1 694 €/кв.м.) (3 313,18 лв./кв.м.)236.75 кв.м.

Магдалена Цоклинова
Старши брокер, София

Продажба
Лукс
Магазин в Луксозен комплекс от 13 сгради с 30 дка зелени площи, 9 детски площадки и 18 търговски обекта
гр. София , кв. "ПЗ Хладилника"
Модерни градски жилища до Ловен парк, с удобен достъп до метростанция Витоша
758 184 €1 482 879,01 лв.
(3 585 €/кв.м.) (7 011,65 лв./кв.м.)211.46 кв.м.

Магдалена Цоклинова
Старши брокер, София

Продажба
Лукс
Тристаен апартамент в Луксозен комплекс от 13 сгради с 30 дка зелени площи, 9 детски площадки и 18 търговски обекта
гр. София , кв. "ПЗ Хладилника"
Модерни градски жилища до Ловен парк, с удобен достъп до метростанция Витоша
399 000 €780 376,17 лв.
(3 047 €/кв.м.) (5 959,41 лв./кв.м.)130.94 кв.м.

Магдалена Цоклинова
Старши брокер, София

Продажба
Лукс
Тристаен апартамент в Луксозен комплекс от 13 сгради с 30 дка зелени площи, 9 детски площадки и 18 търговски обекта
гр. София , кв. "ПЗ Хладилника"
Модерни градски жилища до Ловен парк, с удобен достъп до метростанция Витоша
499 941 €977 799,61 лв.
(3 049 €/кв.м.) (5 963,33 лв./кв.м.)163.92 кв.м.

Магдалена Цоклинова
Старши брокер, София

Продажба
Лукс
Тристаен апартамент в Луксозен комплекс от 13 сгради с 30 дка зелени площи, 9 детски площадки и 18 търговски обекта
гр. София , кв. "ПЗ Хладилника"
Модерни градски жилища до Ловен парк, с удобен достъп до метростанция Витоша
442 215 €864 897,36 лв.
(3 049 €/кв.м.) (5 963,33 лв./кв.м.)144.99 кв.м.

Магдалена Цоклинова
Старши брокер, София

Продажба
Лукс
Тристаен апартамент в Луксозен комплекс от 13 сгради с 30 дка зелени площи, 9 детски площадки и 18 търговски обекта
гр. София , кв. "ПЗ Хладилника"
Модерни градски жилища до Ловен парк, с удобен достъп до метростанция Витоша
379 980 €743 176,28 лв.
(3 050 €/кв.м.) (5 965,28 лв./кв.м.)124.58 кв.м.

Магдалена Цоклинова
Старши брокер, София

Продажба
Лукс
Тристаен апартамент в Луксозен комплекс от 13 сгради с 30 дка зелени площи, 9 детски площадки и 18 търговски обекта
гр. София , кв. "ПЗ Хладилника"
Модерни градски жилища до Ловен парк, с удобен достъп до метростанция Витоша
451 740 €883 526,64 лв.
(3 050 €/кв.м.) (5 965,28 лв./кв.м.)148.11 кв.м.

Магдалена Цоклинова
Старши брокер, София

Продажба
Лукс
Четиристаен апартамент в Луксозен комплекс от 13 сгради с 30 дка зелени площи, 9 детски площадки и 18 търговски обекта
гр. София , кв. "ПЗ Хладилника"
Модерни градски жилища до Ловен парк, с удобен достъп до метростанция Витоша
528 165 €1 033 000,95 лв.
(2 649 €/кв.м.) (5 180,99 лв./кв.м.)199.31 кв.м.

Магдалена Цоклинова
Старши брокер, София

Продажба
Лукс
Четиристаен апартамент в Луксозен комплекс от 13 сгради с 30 дка зелени площи, 9 детски площадки и 18 търговски обекта
гр. София , кв. "ПЗ Хладилника"
Модерни градски жилища до Ловен парк, с удобен достъп до метростанция Витоша
548 096 €1 071 982,60 лв.
(2 749 €/кв.м.) (5 376,58 лв./кв.м.)199.31 кв.м.

Магдалена Цоклинова
Старши брокер, София

Продажба
Лукс
Двустаен апартамент в Луксозен комплекс от 13 сгради с 30 дка зелени площи, 9 детски площадки и 18 търговски обекта
гр. София , кв. "ПЗ Хладилника"
Модерни градски жилища до Ловен парк, с удобен достъп до метростанция Витоша
213 069 €416 726,74 лв.
(2 799 €/кв.м.) (5 474,37 лв./кв.м.)76.10 кв.м.

Магдалена Цоклинова
Старши брокер, София

Продажба
Лукс
Двустаен апартамент в Луксозен комплекс от 13 сгради с 30 дка зелени площи, 9 детски площадки и 18 търговски обекта
гр. София , кв. "ПЗ Хладилника"
Модерни градски жилища до Ловен парк, с удобен достъп до метростанция Витоша
224 484 €439 052,54 лв.
(2 949 €/кв.м.) (5 767,74 лв./кв.м.)76.10 кв.м.

Магдалена Цоклинова
Старши брокер, София

Продажба
Лукс
Двустаен апартамент в Луксозен комплекс от 13 сгради с 30 дка зелени площи, 9 детски площадки и 18 търговски обекта
гр. София , кв. "ПЗ Хладилника"
Модерни градски жилища до Ловен парк, с удобен достъп до метростанция Витоша
216 874 €424 168,68 лв.
(2 849 €/кв.м.) (5 572,16 лв./кв.м.)76.10 кв.м.

Магдалена Цоклинова
Старши брокер, София

Продажба
Лукс
Четиристаен апартамент в Луксозен комплекс от 13 сгради с 30 дка зелени площи, 9 детски площадки и 18 търговски обекта
гр. София , кв. "ПЗ Хладилника"
Модерни градски жилища до Ловен парк, с удобен достъп до метростанция Витоша
597 923 €1 169 435,74 лв.
(2 999 €/кв.м.) (5 865,53 лв./кв.м.)199.31 кв.м.

Магдалена Цоклинова
Старши брокер, София

Продажба
Лукс
Двустаен апартамент в Луксозен комплекс от 13 сгради с 30 дка зелени площи, 9 детски площадки и 18 търговски обекта
гр. София , кв. "ПЗ Хладилника"
Модерни градски жилища до Ловен парк, с удобен достъп до метростанция Витоша
228 289 €446 494,47 лв.
(2 999 €/кв.м.) (5 865,53 лв./кв.м.)76.10 кв.м.

Магдалена Цоклинова
Старши брокер, София

Продажба
Лукс
Тристаен апартамент в Луксозен комплекс от 13 сгради с 30 дка зелени площи, 9 детски площадки и 18 търговски обекта
гр. София , кв. "ПЗ Хладилника"
Модерни градски жилища до Ловен парк, с удобен достъп до метростанция Витоша
442 172 €864 813,26 лв.
(3 050 €/кв.м.) (5 965,28 лв./кв.м.)144.97 кв.м.

Магдалена Цоклинова
Старши брокер, София

Продажба
Лукс
Тристаен апартамент в Луксозен комплекс от 13 сгради с 30 дка зелени площи, 9 детски площадки и 18 търговски обекта
гр. София , кв. "ПЗ Хладилника"
Модерни градски жилища до Ловен парк, с удобен достъп до метростанция Витоша
379 943 €743 103,92 лв.
(3 050 €/кв.м.) (5 965,28 лв./кв.м.)124.57 кв.м.

Магдалена Цоклинова
Старши брокер, София

Продажба
Лукс
Тристаен апартамент в Луксозен комплекс от 13 сгради с 30 дка зелени площи, 9 детски площадки и 18 търговски обекта
гр. София , кв. "ПЗ Хладилника"
Модерни градски жилища до Ловен парк, с удобен достъп до метростанция Витоша
499 893 €977 705,73 лв.
(3 049 €/кв.м.) (5 963,33 лв./кв.м.)163.90 кв.м.

Магдалена Цоклинова
Старши брокер, София

Продажба
Лукс
Двустаен апартамент в Луксозен комплекс от 13 сгради с 30 дка зелени площи, 9 детски площадки и 18 търговски обекта
гр. София , кв. "ПЗ Хладилника"
Модерни градски жилища до Ловен парк, с удобен достъп до метростанция Витоша
209 244 €409 245,69 лв.
(2 749 €/кв.м.) (5 376,58 лв./кв.м.)76.09 кв.м.

Магдалена Цоклинова
Старши брокер, София

Продажба
Лукс
Двустаен апартамент в Луксозен комплекс от 13 сгради с 30 дка зелени площи, 9 детски площадки и 18 търговски обекта
гр. София , кв. "ПЗ Хладилника"
Модерни градски жилища до Ловен парк, с удобен достъп до метростанция Витоша
213 049 €416 687,63 лв.
(2 799 €/кв.м.) (5 474,37 лв./кв.м.)76.09 кв.м.

Магдалена Цоклинова
Старши брокер, София

Продажба
Лукс
Двустаен апартамент в Луксозен комплекс от 13 сгради с 30 дка зелени площи, 9 детски площадки и 18 търговски обекта
гр. София , кв. "ПЗ Хладилника"
Модерни градски жилища до Ловен парк, с удобен достъп до метростанция Витоша
216 853 €424 127,60 лв.
(2 849 €/кв.м.) (5 572,16 лв./кв.м.)76.09 кв.м.

Магдалена Цоклинова
Старши брокер, София
Още имоти в кв. ПЗ Хладилника

Наем
ново
За частни лица
Лукс
Тристаен апартамент под наем до Ловен парк и болница Токуда
гр. София , кв. "ПЗ Хладилника"
Напълно обзаведен имот с възможност за наем на подземно паркомясто
Тристаен апартамент под наем до Ловен парк и болница Токуда - Напълно обзаведен имот с възможност за наем на подземно паркомясто
Още имоти в гр. София

Продажба
ЕксклузивноХит
Central Park - 7 сгради с 12 дка парк - напредващо строителство!
гр. София , кв. "Банишора"
Уникален комплекс, пресъздаващ стила и атмосферата на едноименния парк в Ню Йорк.
Central Park - 7 сгради с 12 дка парк - напредващо строителство! - Уникален комплекс, пресъздаващ стила и атмосферата на едноименния парк в Ню Йорк.
от 183 725 €(от 359 334,87 лв.)
(1 900 €/кв.м. - 2 600 €/кв.м.)(3 716,08 лв./кв.м. - 5 085,16 лв./кв.м.)Площ: 73.49 - 187.57 кв.м.

инж. Иван Крумов
Старши брокер, София

Продажба
Ексклузивно
Лукс
SYNERA Residence - най-новият комплекс в кв. Манастирски ливади - Изток
гр. София , кв. "Манастирски ливади"
Жилищен проект, създаден за модерен градски живот
SYNERA Residence - най-новият комплекс в кв. Манастирски ливади - Изток - Жилищен проект, създаден за модерен градски живот
от 125 000 €(от 244 478,75 лв.)
(2 396 €/кв.м. - 3 211 €/кв.м.)(4 686,17 лв./кв.м. - 6 280,17 лв./кв.м.)Площ: 52.17 - 208.03 кв.м.

инж. Даниела Тотева
Старши брокер, София

Продажба
ЕксклузивноХит
Vitosha View – емблематичен комплекс в кв. Кръстова вада
гр. София , кв. "Кръстова вада"
Последни налични жилища в най-новите сгради!
Vitosha View – емблематичен комплекс в кв. Кръстова вада - Последни налични жилища в най-новите сгради!
от 459 000 €(от 897 725,97 лв.)
(2 801 €/кв.м.)(5 477,61 лв./кв.м.)Площ: 163.89 - 163.89 кв.м.

Магдалена Тошева
Старши брокер, София

Продажба
ЕксклузивноХит
Нов жилищен проект в кв. Малинова долина с Акт 14
гр. София , кв. "Малинова долина"
Последни апартаменти с удобна локация в нова сграда качествено строителство
Нов жилищен проект в кв. Малинова долина с Акт 14 - Последни апартаменти с удобна локация в нова сграда качествено строителство
от 310 000 €(от 606 307,30 лв.)
(1 863 €/кв.м. - 2 042 €/кв.м.)(3 643,71 лв./кв.м. - 3 993,80 лв./кв.м.)Площ: 151.80 - 191.62 кв.м.

Магдалена Цоклинова
Старши брокер, София

Продажба
ЕксклузивноХит
Нови жилища, модерен дизайн и топ локация близо до НСА
гр. София , кв. "Малинова долина"
Последни двустаен и тристаен в нова сграда с Акт 14 в кв. Малинова долина
Нови жилища, модерен дизайн и топ локация близо до НСА - Последни двустаен и тристаен в нова сграда с Акт 14 в кв. Малинова долина
от 110 000 €(от 215 141,30 лв.)
(1 750 €/кв.м. - 1 953 €/кв.м.)(3 422,70 лв./кв.м. - 3 819,74 лв./кв.м.)Площ: 56.31 - 102.52 кв.м.

Магдалена Цоклинова
Старши брокер, София

Продажба
Имот на седмицата
За частни лица
Жилища с централна локация на бул. Сливница с Акт 14
гр. София , кв. "Център"
Апартаменти с 1, 2 или 3 спални в луксозна 9-етажна сграда
Жилища с централна локация на бул. Сливница с Акт 14 - Апартаменти с 1, 2 или 3 спални в луксозна 9-етажна сграда
от 167 664 €(от 327 922,28 лв.)
(2 350 €/кв.м. - 2 800 €/кв.м.)(4 596,20 лв./кв.м. - 5 476,32 лв./кв.м.)Площ: 59.88 - 170.01 кв.м.

Иванка Стойкова
Старши брокер / Мениджър на офис, Бъкстон

Продажба
За частни лица
Жилищна сграда с две секции до Национална Спортна Академия
гр. София , кв. "Малинова долина"
Нови апартаменти с отлична локация в полите на Витоша
Жилищна сграда с две секции до Национална Спортна Академия - Нови апартаменти с отлична локация в полите на Витоша
от 120 395 €(от 235 472,15 лв.)
(2 350 €/кв.м. - 2 560 €/кв.м.)(4 596,20 лв./кв.м. - 5 006,92 лв./кв.м.)Площ: 49.75 - 160.33 кв.м.

Иванка Стойкова
Старши брокер / Мениджър на офис, Бъкстон

Продажба
За частни лица
Нова сграда със само 16 апартамента в кв. Манастирски ливади – изток
гр. София , кв. "Манастирски ливади"
Апартаменти с 2 или 3 спални в близост до Витоша и с удобни връзки с центъра на столицата
Нова сграда със само 16 апартамента в кв. Манастирски ливади – изток - Апартаменти с 2 или 3 спални в близост до Витоша и с удобни връзки с центъра на столицата
от 234 253 €(от 458 159,04 лв.)
(2 045 €/кв.м.)(3 999,99 лв./кв.м.)Площ: 114.54 - 201.08 кв.м.

Иванка Стойкова
Старши брокер / Мениджър на офис, Бъкстон

Продажба
Лукс
Reina Sofia Residence - висок клас сграда енергиен клас А близо до Зоопарк София и Ловен парк
гр. София , кв. "Кръстова вада"
Последни магазини и апартаменти с 2 спални в комплекс със зелени площи и получен Акт 16
Reina Sofia Residence - висок клас сграда енергиен клас А близо до Зоопарк София и Ловен парк - Последни магазини и апартаменти с 2 спални в комплекс със зелени площи и получен Акт 16
от 320 000 €(от 625 865,60 лв.)
(2 883 €/кв.м. - 3 552 €/кв.м.)(5 638,66 лв./кв.м. - 6 947,11 лв./кв.м.)Площ: 100.99 - 122.45 кв.м.

Магдалена Тошева
Старши брокер, София

Продажба
За частни лица
Малка бутикова сграда в близост до София
с. Владая
Сграда с 12 апартамента сред зеленината и спокойствеито на село Владая
Малка бутикова сграда в близост до София - Сграда с 12 апартамента сред зеленината и спокойствеито на село Владая
от 98 844 €(от 193 322,06 лв.)
(1 600 €/кв.м. - 1 900 €/кв.м.)(3 129,33 лв./кв.м. - 3 716,08 лв./кв.м.)Площ: 53.99 - 92.92 кв.м.

Николай Попов
Старши брокер, София

Продажба
За частни лица
Нови жилища до Бизнес Парк София и метро
гр. София , кв. "Младост 4"
Апартаменти с 1, 2 и 3 спални в нов комплекс с отлична локация в кв. Младост 4
Нови жилища до Бизнес Парк София и метро - Апартаменти с 1, 2 и 3 спални в нов комплекс с отлична локация в кв. Младост 4
от 206 280 €(от 403 448,61 лв.)
(2 250 €/кв.м. - 2 705 €/кв.м.)(4 400,62 лв./кв.м. - 5 290,52 лв./кв.м.)Площ: 87.80 - 202.38 кв.м.

Николай Попов
Старши брокер, София

Наем
ново
Тристаен апартамент на две нива в кв. Овча купел
гр. София , кв. "Овча купел"
Добре поддържано жилище до възлови улици и удобен достъп до НБУ и парк Славия
Тристаен апартамент на две нива в кв. Овча купел - Добре поддържано жилище до възлови улици и удобен достъп до НБУ и парк Славия

Продажба
ново
Външни паркоместа до Amur Residence и магазин КиК в кв. Манастирски ливади
гр. София , кв. "Манастирски ливади"
Паркоместа с отличен достъп до нови сгради в кв. Манастирски ливади
Външни паркоместа до Amur Residence и магазин КиК в кв. Манастирски ливади - Паркоместа с отличен достъп до нови сгради в кв. Манастирски ливади

Наем
ново
Лукс
Двустаен апартамент във Витоша Вю/Vitosha View с бърз достъп до Парадайс център и метро
гр. София , кв. "Кръстова вада"
Модерен дом с висок клас мебели и електроуреди и комуникативна локация в кв. Кръстова вада
Двустаен апартамент във Витоша Вю/Vitosha View с бърз достъп до Парадайс център и метро - Модерен дом с висок клас мебели и електроуреди и комуникативна локация в кв. Кръстова вада

Продажба
ново
За частни лица
Нова жилищна сграда с предпочитана локация в кв. Стрелбище
гр. София , кв. "Стрелбище"
Висок клас апартаменти с просторна жилищна среда до бул. България и Южен парк
Нова жилищна сграда с предпочитана локация в кв. Стрелбище - Висок клас апартаменти с просторна жилищна среда до бул. България и Южен парк
от 192 617 €(от 376 726,11 лв.)
(2 213 €/кв.м. - 2 860 €/кв.м.)(4 328,25 лв./кв.м. - 5 593,67 лв./кв.м.)Площ: 72.59 - 132.66 кв.м.

Иванка Стойкова
Старши брокер / Мениджър на офис, Бъкстон

Продажба
ново
За частни лица
Нов комплекс от две сгради на бул. Президент Линкълн
гр. София , кв. "Овча купел 1"
Жилища с отлични разпределения близо до метростанция, детска градина и всички удобства
Нов комплекс от две сгради на бул. Президент Линкълн - Жилища с отлични разпределения близо до метростанция, детска градина и всички удобства
от 113 235 €(от 221 468,41 лв.)
(1 650 €/кв.м. - 1 815 €/кв.м.)(3 227,12 лв./кв.м. - 3 549,83 лв./кв.м.)Площ: 68.63 - 118.45 кв.м.

Иванка Стойкова
Старши брокер / Мениджър на офис, Бъкстон

Продажба
ново
Търговски обект с отлична локация и голям човекопоток в кв. Хиподрума
гр. София , кв. "Хиподрума"
Имот с отлична инвестиционна стойност, подходящ както за собствен бизнес, така и за отдаване под наем
Търговски обект с отлична локация и голям човекопоток в кв. Хиподрума - Имот с отлична инвестиционна стойност, подходящ както за собствен бизнес, така и за отдаване под наем

Продажба
ново
Ексклузивно
Маломерен тристаен апартамент в район Западен парк
гр. София , кв. "Западен парк"
Комфортно обзаведен апартамент до зеленина, възлов булевард, спирки на редовния градски транспорт
Маломерен тристаен апартамент в район Западен парк - Комфортно обзаведен апартамент до зеленина, възлов булевард, спирки на редовния градски транспорт

Наем
ново
Ексклузивно
Отличен магазин с големи витрини на бул. България
гр. София , кв. "Манастирски ливади"
Перфектен имот под наем, подходящ за шоурум, банка, търговско представителство
Отличен магазин с големи витрини на бул. България - Перфектен имот под наем, подходящ за шоурум, банка, търговско представителство

Наем
ново
Ексклузивно За частни лица
Лукс
Просторен тристаен апартамент до Медицинска академия
гр. София , кв. "Медицинска академия"
Напълно обзаведен апартамент с две спални на входа на Майчин дом, срещу хотел Millennium
Просторен тристаен апартамент до Медицинска академия - Напълно обзаведен апартамент с две спални на входа на Майчин дом, срещу хотел Millennium

Наем
ново
Магазин с отлична видимост в близост до НОИ и метростанция Опълченска
гр. София , кв. "Център"
Търговски имот на две нива с оживена локация в столицата, до възлови булеварди
Магазин с отлична видимост в близост до НОИ и метростанция Опълченска - Търговски имот на две нива с оживена локация в столицата, до възлови булеварди

Продажба
ново
Модерен комплекс от редови къщи във вилната зона на Нови хан
с. Нови хан
Простор, уют и природа само на минути от София
Модерен комплекс от редови къщи във вилната зона на Нови хан - Простор, уют и природа само на минути от София
от 220 000 €(от 430 282,60 лв.)
(885 €/кв.м. - 900 €/кв.м.)(1 730,91 лв./кв.м. - 1 760,25 лв./кв.м.)Площ: 244.43 - 248.50 кв.м.

Стефан Абанозов
Регионален мениджър, Боровец

Продажба
ново
Лукс
Луксозен тристаен апартамент с панорамна гледка към Витоша в нов комплекс в кв. Витоша
гр. София , кв. "Витоша"
Просторен апартамент в отличен комплекс пред Акт 16 на бул. Симеоновско шосе
Луксозен тристаен апартамент с панорамна гледка към Витоша в нов комплекс в кв. Витоша - Просторен апартамент в отличен комплекс пред Акт 16 на бул. Симеоновско шосе

Продажба
ново
За частни лица
Модерен комплекс от две сгради в подножието на Витоша
гр. София , кв. "Малинова долина"
Последни двустайни и тристайни апартаменти с отлична локация в кв. Малинова долина
Модерен комплекс от две сгради в подножието на Витоша - Последни двустайни и тристайни апартаменти с отлична локация в кв. Малинова долина
от 186 000 €(от 363 784,38 лв.)
(1 393 €/кв.м. - 1 654 €/кв.м.)(2 724,47 лв./кв.м. - 3 234,94 лв./кв.м.)Площ: 118.39 - 164.95 кв.м.

Иванка Стойкова
Старши брокер / Мениджър на офис, Бъкстон

Наем
ново
За частни лица
Подземен гараж с комуникативна локация в кв. Манастирски ливади
гр. София , кв. "Манастирски ливади"
Гараж с ролетна врата в затворен комплекс
Подземен гараж с комуникативна локация в кв. Манастирски ливади - Гараж с ролетна врата в затворен комплекс
Вижте още имоти в кв. "ПЗ Хладилника" в град София:
- Апартаменти (различни типове) в кв. "ПЗ Хладилника"
- Къщи в кв. "ПЗ Хладилника"
- Офиси в кв. "ПЗ Хладилника"
- Магазини в кв. "ПЗ Хладилника"
- Земи в кв. "ПЗ Хладилника"
- Всички имоти в кв. "ПЗ Хладилника"
Вижте още имоти в град София:
Абонирайте се за нашия канал
