апартамент C2 (нетна площ + общи части).
Kомплекс, хармонично вписан в средата, в която е ситуиран, разположен в една от най-съвременните зони на гр. София – район Лозенец. Елегантните, изчистени обеми и естествените материали, дават възможност на всеки да се потопи в атмосферата на комплекса.
В комплекса са проектирани:
• 647 бр. апартамента
• 2 бр. едностайни (ателиета)
• 271 бр. двустайни (с 1 спалня) апартамента
• 350 бр. тристайни (с 2 спални) апартамента
• 24 бр. четиристайни (с 3 спални) апартамента
• Ресторант-градина
• Детски център със занималня
• Фитнес център с уелнес зона
• 18 бр. хранителни и нехранителни търговски обекта
• 9 бр. детски площадки и зони за отдих
• 787 бр. подземни гаражи и паркоместа
Най-добрите, естествени и качествени материали са използвани при строителството, за да се постигне максимална енергийна ефективност.
• фасадите са винтилируеми с минерална вата и немски клинкерни плочи;
• дограмата е алуминиева, от най-висок клас с прекъснат термомост и троен стъклопакет;
• всеки апартамент е с монтирана индивидуална термопомпа, захранваща подово отопление и охлаждане;
• атомобилният поток ще минава по периферията на имотите към две подземни нива, осигурявайки на сградите лукса да „дишат“ спокойно, като предлага просторни и светли пространства;
• луксозни общи площи с безшумни асансьори.
Отлична локация граничеща с:
• Ловен парк - Борисова градина
• Зоологическа градина
• река Драгалевска
• улица Сребърна
Сред предимствата на локацията е и близостта до метростанция Витоша; МОЛ Paradise; Южен парк; множество училища, детски градини и спортни комплекси – тенис клуб „Малееви“, спортен центът „Пулев“, Orange Фитнес; Болници „Токуда“, „Вита“ и „Лозенец“. На 20 м от комплекса е ситуирана спирка на градския транспорт, която осигурява достъп до всеки квартал на София.
Месечна такса поддръжка:
• Апартаменти и изби (с общи площи) - 1.88лв/м2 с ДДС от които:
- 1.70лв/м2 с ДДС такса за заплати персонал
- 0.18лв/м2 с ДДС такса за консумативи (обвързани с основните разходи - ток и вода)
• Гаражи и паркоместа
-9.70лв с ДДС за брой автомясто такса за заплати персонал
-0.18лв/м2 с ДДС такса за консумативи (обвързани с основните разходи - ток и вода).
Защо да закупите апартамент в комплекса?
• Отлично местоположение с удобен достъп дп парк и метро.
• 24-часов контролиран достъп.
• 30 дка красиви, зелени градини, 9 детски площадки и 18 търговски обекта.
• Изключително добре уреден квартал с множество удобства.
• Бърз и удобен достъп до центъра на София и Paradise Center.
• Модерна архитектурна визия и функционално вътрешно разпределение на апартаментите.
• Строителни технологии и материали от последно поколение.
• Луксозно строителство на световно ниво.
• Инвеститор с отлична репутация и реализирани проекти с впечатляващо качество.
Оглед на имота
Можем да организираме оглед на имота в удобно за вас време. За целта, свържете се с отговорния за офертата брокер и му кажете кога бихте искали да направите оглед.
Резервация на имота
Имотът може да бъде резервиран и свален от продажба със заплащане на депозит, след което се прекратява провеждането на огледи с други купувачи и започва подготовка на документите за сключване на предварителен и окончателен договор. Свържете се с отговорния брокер за този имот за подробна информация относно процедурата на покупка и начините за плащане.
Допълнителни услуги и следпродажбено обслужване
Ние сме реномирана компания и ще бъдем с вас не само по време на покупката, но и след това, осигурявайки ви допълнителни услуги по ваше изискване с цел пълноценно и безпроблемно ползване на новозакупения имот. Услугите, които можем да предложим, включват застраховка на движимо и недвижимо имущество, застраховка живот, медицинско и автомобилно застраховане, строителни и ремонтни дейности, обзавеждане, юридически и счетоводни услуги и др.
- Описание
- Характеристики
- Галерия
- Местоположение
- Ценова листа
Характеристики на имота
Тип на имота
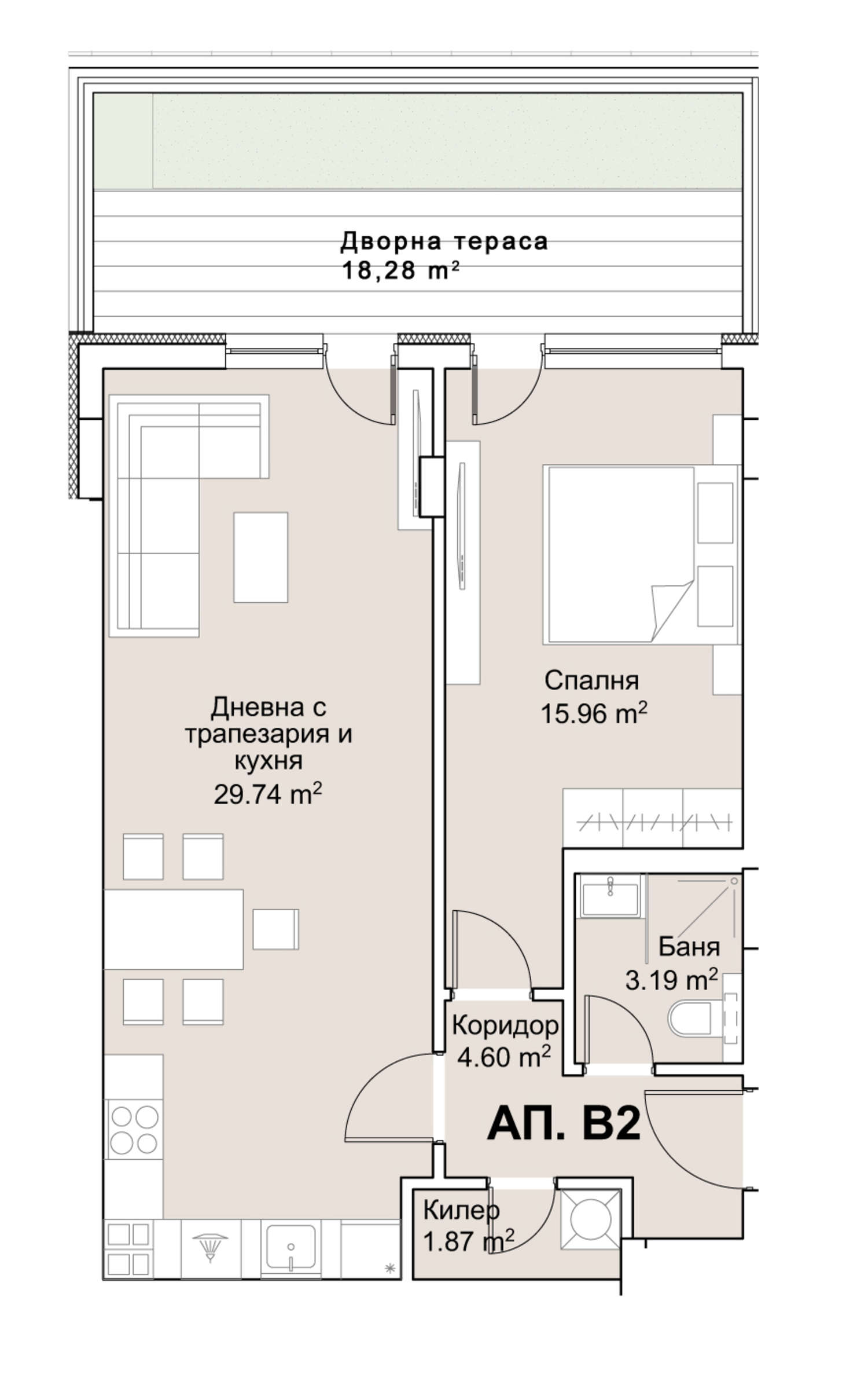
Двустаен апартамент
Реф. номер
Sfa 79709
Площ
77.31 кв.м.
Спални
1
Състояние
БДС (на шпакловка и замазка)
Етаж
1 от 6
Асансьор
да
Обзавеждане
Необзаведен
Отопление
Подово отопление / Термопомпа
Тип строителство
Тухла, Ново строителство
Година на построяване
2024
Такса поддръжка
0.96 евро/1.88 лв/кв.м./месец
Още информация за Луксозен комплекс от 13 сгради с 30 дка зелени площи, 9 детски площадки и 18 търговски обекта:
План на имота
Планове
Ценова листа
Техническа спецификация
Качество на въздуха
Характеристика на комплекса
Обзавеждане
План на строителство
План на плащане
Снимки от въздуха
Общ план
360° изглед
Инфо пакет
Референтен номер: Sfa 79709
Местоположение
гр. София, кв."ПЗ Хладилника"Удобства в района
- Метростанция "ВИТОША" на 777 м. (10 мин.) - Линия No: M2
- Автобусна спирка "УЛ. СРЕБЪРНА" на 104 м. (2 мин.) - Автобус No: 68, 83, 64, 88, 98
- Трамвайна спирка "МЕТРОСТАНЦИЯ ВИТОША" на 722 м. (9 мин.) - Трамвай No: 10, 15
- Детска градина "ДГ 175 „Слънчеви лъчи“" на 820 м. (10 мин.)
- Детска градина "№174 Фют" на 824 м. (10 мин.)
- Училище "St. George International School & Preschool" на 699 м. (9 мин.)
- Училище "Международно висше бизнес училище" на 793 м. (10 мин.)
- Болница "Аджибадем Сити Клиник УМБАЛ Токуда" на 536 м. (7 мин.)
- Болница "Болница Вита" на 601 м. (8 мин.)
- Медицински център "Bah" на 655 м. (8 мин.)
- Хранителен магазин "Най" на 81 м. (1 мин.)
- Супермаркет "Lidl" на 726 м. (9 мин.)
- Супермаркет "Bio Market" на 906 м. (11 мин.)
- Пазар "Пазар Сребърна" на 635 м. (8 мин.)
- Пекарна "Queen's" на 748 м. (10 мин.)
- Зоо магазин на 748 м. (10 мин.)
- Мол "Paradise Center" на 952 м. (12 мин.)
- Банка "ОББ" на 736 м. (9 мин.)
- Банка "ОББ" на 793 м. (10 мин.)
- Аптека "Нове" на 515 м. (7 мин.)
- Поща/Куриер "Еконт" на 680 м. (9 мин.)
- Поща/Куриер "Speedy" на 774 м. (10 мин.)
- Фризьорски салон "Stylette" на 619 м. (8 мин.)
- Химическо чистене "Vik 2007" на 802 м. (10 мин.)
- Салон за красота "Gatsby" на 50 м. (1 мин.)
- Ветеринарен лекар "Ветеринарна клиника" на 175 м. (3 мин.)
- Ресторант "Добревски" на 442 м. (6 мин.)
- Ресторант "Co Cantina" на 470 м. (6 мин.)
- Кафене на 560 м. (7 мин.)
- Бар "Feel better bar & snacks" на 665 м. (9 мин.)
- Казино "Monaco" на 726 м. (9 мин.)
- Фитнес зала "Ka Fit" на 57 м. (1 мин.)
- Спортен терен "Funtopia" на 1.0 км. (13 мин.)
- Тенис корт на 748 м. (10 мин.)
- Театър на 640 м. (8 мин.)
- Театър на 1.1 км. (14 мин.)
- Кино "Cinema City" на 940 м. (12 мин.)
- Парк на 641 м. (8 мин.)
- Градина "Учебно-експериментална база „Драгалевци“" на 561 м. (7 мин.)
- Паркинг на 19 м. (1 мин.)
- Бензиностанция "Петрол" на 263 м. (4 мин.)
- Зарядна станция "Fines - Vita Hospital Parking" на 620 м. (8 мин.)
- Автомивка "SKL" на 133 м. (2 мин.)
- Автосервиз "SKL" на 131 м. (2 мин.)
- Посолство "Посолство на Република Корея" на 675 м. (9 мин.)
ТРАНСПОРТ
УЧЕБНИ ЗАВЕДЕНИЯ
ЛЕЧЕБНИ ЗАВЕДЕНИЯ
ПАЗАРУВАНЕ
УСЛУГИ
ЗАВЕДЕНИЯ
СПОРТ И СВОБОДНО ВРЕМЕ
ПРИРОДА И ЗАБЕЛЕЖИТЕЛНОСТИ
АВТОМОБИЛНИ УСЛУГИ
ОБЩЕСТВЕНИ СГРАДИ И ИНСТИТУЦИИ
Изпратете запитване
280 000 €
(547 632,40 лв.)
- €
- $
- £
Завършен с АКТ 16
Дата на завършване: 15.01.2024 г
Без комисионна
Ценова листа
*/ ?>
ЗА ПОВЕЧЕ ИНФОРМАЦИЯ
Реф. номер: Sfa 79709
При обаждане, моля цитирайте референтния номер на имота.
Налични имоти в комплекса
201
имота
38
свободни
163
продадени
0
резервирани
Изпратете запитване
Още имоти в този комплекс
Продажба
Лукс
Тристаен апартамент в Луксозен комплекс от 13 сгради с 30 дка зелени площи, 9 детски площадки и 18 търговски обекта
гр. София , кв. "ПЗ Хладилника"
Модерни градски жилища до Ловен парк, с удобен достъп до метростанция Витоша
650 000 €1 271 289,50 лв.
(5 865 €/кв.м.) (11 470,94 лв./кв.м.)110.81 кв.м.
Магдалена Цоклинова
Старши брокер, София
Продажба
Лукс
Заведение в Луксозен комплекс от 13 сгради с 30 дка зелени площи, 9 детски площадки и 18 търговски обекта
гр. София , кв. "ПЗ Хладилника"
Модерни градски жилища до Ловен парк, с удобен достъп до метростанция Витоша
2 232 292 €4 365 983,66 лв.
(2 297 €/кв.м.) (4 492,54 лв./кв.м.)971.51 кв.м.
Магдалена Цоклинова
Старши брокер, София
Продажба
Лукс
Тристаен апартамент в Луксозен комплекс от 13 сгради с 30 дка зелени площи, 9 детски площадки и 18 търговски обекта
гр. София , кв. "ПЗ Хладилника"
Модерни градски жилища до Ловен парк, с удобен достъп до метростанция Витоша
549 115 €1 073 975,59 лв.
(3 349 €/кв.м.) (6 550,07 лв./кв.м.)163.92 кв.м.
Магдалена Цоклинова
Старши брокер, София
Продажба
Лукс
Тристаен апартамент в Луксозен комплекс от 13 сгради с 30 дка зелени площи, 9 детски площадки и 18 търговски обекта
гр. София , кв. "ПЗ Хладилника"
Модерни градски жилища до Ловен парк, с удобен достъп до метростанция Витоша
485 712 €949 970,10 лв.
(3 349 €/кв.м.) (6 550,07 лв./кв.м.)144.99 кв.м.
Магдалена Цоклинова
Старши брокер, София
Продажба
Лукс
Тристаен апартамент в Луксозен комплекс от 13 сгради с 30 дка зелени площи, 9 детски площадки и 18 търговски обекта
гр. София , кв. "ПЗ Хладилника"
Модерни градски жилища до Ловен парк, с удобен достъп до метростанция Витоша
496 173 €970 430,04 лв.
(3 350 €/кв.м.) (6 552,03 лв./кв.м.)148.11 кв.м.
Магдалена Цоклинова
Старши брокер, София
Продажба
Лукс
Четиристаен апартамент в Луксозен комплекс от 13 сгради с 30 дка зелени площи, 9 детски площадки и 18 търговски обекта
гр. София , кв. "ПЗ Хладилника"
Модерни градски жилища до Ловен парк, с удобен достъп до метростанция Витоша
587 957 €1 149 943,94 лв.
(2 949 €/кв.м.) (5 767,74 лв./кв.м.)199.31 кв.м.
Магдалена Цоклинова
Старши брокер, София
Продажба
Лукс
Четиристаен апартамент в Луксозен комплекс от 13 сгради с 30 дка зелени площи, 9 детски площадки и 18 търговски обекта
гр. София , кв. "ПЗ Хладилника"
Модерни градски жилища до Ловен парк, с удобен достъп до метростанция Витоша
607 888 €1 188 925,59 лв.
(3 049 €/кв.м.) (5 963,33 лв./кв.м.)199.31 кв.м.
Магдалена Цоклинова
Старши брокер, София
Продажба
Лукс
Тристаен апартамент в Луксозен комплекс от 13 сгради с 30 дка зелени площи, 9 детски площадки и 18 търговски обекта
гр. София , кв. "ПЗ Хладилника"
Модерни градски жилища до Ловен парк, с удобен достъп до метростанция Витоша
485 665 €949 878,18 лв.
(3 350 €/кв.м.) (6 552,03 лв./кв.м.)144.97 кв.м.
Магдалена Цоклинова
Старши брокер, София
Продажба
Лукс
Тристаен апартамент в Луксозен комплекс от 13 сгради с 30 дка зелени площи, 9 детски площадки и 18 търговски обекта
гр. София , кв. "ПЗ Хладилника"
Модерни градски жилища до Ловен парк, с удобен достъп до метростанция Витоша
549 062 €1 073 871,93 лв.
(3 349 €/кв.м.) (6 550,07 лв./кв.м.)163.90 кв.м.
Магдалена Цоклинова
Старши брокер, София
Продажба
Лукс
Тристаен апартамент в Луксозен комплекс от 13 сгради с 30 дка зелени площи, 9 детски площадки и 18 търговски обекта
гр. София , кв. "ПЗ Хладилника"
Модерни градски жилища до Ловен парк, с удобен достъп до метростанция Витоша
480 816 €940 394,36 лв.
(3 250 €/кв.м.) (6 356,45 лв./кв.м.)147.94 кв.м.
Магдалена Цоклинова
Старши брокер, София
Продажба
Лукс
Тристаен апартамент в Луксозен комплекс от 13 сгради с 30 дка зелени площи, 9 детски площадки и 18 търговски обекта
гр. София , кв. "ПЗ Хладилника"
Модерни градски жилища до Ловен парк, с удобен достъп до метростанция Витоша
532 636 €1 041 745,47 лв.
(3 249 €/кв.м.) (6 354,49 лв./кв.м.)163.89 кв.м.
Магдалена Цоклинова
Старши брокер, София
Продажба
Лукс
Тристаен апартамент в Луксозен комплекс от 13 сгради с 30 дка зелени площи, 9 детски площадки и 18 търговски обекта
гр. София , кв. "ПЗ Хладилника"
Модерни градски жилища до Ловен парк, с удобен достъп до метростанция Витоша
471 130 €921 450,19 лв.
(3 250 €/кв.м.) (6 356,45 лв./кв.м.)144.96 кв.м.
Магдалена Цоклинова
Старши брокер, София
Продажба
Лукс
Тристаен апартамент в Луксозен комплекс от 13 сгради с 30 дка зелени площи, 9 детски площадки и 18 търговски обекта
гр. София , кв. "ПЗ Хладилника"
Модерни градски жилища до Ловен парк, с удобен достъп до метростанция Витоша
404 825 €791 768,88 лв.
(3 250 €/кв.м.) (6 356,45 лв./кв.м.)124.56 кв.м.
Магдалена Цоклинова
Старши брокер, София
Продажба
Лукс
Тристаен апартамент в Луксозен комплекс от 13 сгради с 30 дка зелени площи, 9 детски площадки и 18 търговски обекта
гр. София , кв. "ПЗ Хладилника"
Модерни градски жилища до Ловен парк, с удобен достъп до метростанция Витоша
492 481 €963 209,11 лв.
(2 750 €/кв.м.) (5 378,53 лв./кв.м.)179.08 кв.м.
Магдалена Цоклинова
Старши брокер, София
Продажба
Лукс
Тристаен апартамент в Луксозен комплекс от 13 сгради с 30 дка зелени площи, 9 детски площадки и 18 търговски обекта
гр. София , кв. "ПЗ Хладилника"
Модерни градски жилища до Ловен парк, с удобен достъп до метростанция Витоша
537 252 €1 050 773,58 лв.
(3 000 €/кв.м.) (5 867,49 лв./кв.м.)179.08 кв.м.
Магдалена Цоклинова
Старши брокер, София
Продажба
Лукс
Тристаен апартамент в Луксозен комплекс от 13 сгради с 30 дка зелени площи, 9 детски площадки и 18 търговски обекта
гр. София , кв. "ПЗ Хладилника"
Модерни градски жилища до Ловен парк, с удобен достъп до метростанция Витоша
546 206 €1 068 286,08 лв.
(3 050 €/кв.м.) (5 965,28 лв./кв.м.)179.08 кв.м.
Магдалена Цоклинова
Старши брокер, София
Продажба
Лукс
Тристаен апартамент в Луксозен комплекс от 13 сгради с 30 дка зелени площи, 9 детски площадки и 18 търговски обекта
гр. София , кв. "ПЗ Хладилника"
Модерни градски жилища до Ловен парк, с удобен достъп до метростанция Витоша
536 059 €1 048 440,27 лв.
(3 250 €/кв.м.) (6 356,45 лв./кв.м.)164.94 кв.м.
Магдалена Цоклинова
Старши брокер, София
Продажба
Лукс
Тристаен апартамент в Луксозен комплекс от 13 сгради с 30 дка зелени площи, 9 детски площадки и 18 търговски обекта
гр. София , кв. "ПЗ Хладилника"
Модерни градски жилища до Ловен парк, с удобен достъп до метростанция Витоша
404 860 €791 837,33 лв.
(3 250 €/кв.м.) (6 356,45 лв./кв.м.)124.57 кв.м.
Магдалена Цоклинова
Старши брокер, София
Продажба
Лукс
Тристаен апартамент в Луксозен комплекс от 13 сгради с 30 дка зелени площи, 9 детски площадки и 18 търговски обекта
гр. София , кв. "ПЗ Хладилника"
Модерни градски жилища до Ловен парк, с удобен достъп до метростанция Витоша
481 319 €941 378,14 лв.
(3 249 €/кв.м.) (6 354,49 лв./кв.м.)148.10 кв.м.
Магдалена Цоклинова
Старши брокер, София
Продажба
Лукс
Тристаен апартамент в Луксозен комплекс от 13 сгради с 30 дка зелени площи, 9 детски площадки и 18 търговски обекта
гр. София , кв. "ПЗ Хладилника"
Модерни градски жилища до Ловен парк, с удобен достъп до метростанция Витоша
495 385 €968 888,84 лв.
(2 750 €/кв.м.) (5 378,53 лв./кв.м.)180.14 кв.м.
Магдалена Цоклинова
Старши брокер, София
Продажба
Лукс
Тристаен апартамент в Луксозен комплекс от 13 сгради с 30 дка зелени площи, 9 детски площадки и 18 търговски обекта
гр. София , кв. "ПЗ Хладилника"
Модерни градски жилища до Ловен парк, с удобен достъп до метростанция Витоша
513 399 €1 004 121,17 лв.
(2 850 €/кв.м.) (5 574,12 лв./кв.м.)180.14 кв.м.
Магдалена Цоклинова
Старши брокер, София
Продажба
Лукс
Тристаен апартамент в Луксозен комплекс от 13 сгради с 30 дка зелени площи, 9 детски площадки и 18 търговски обекта
гр. София , кв. "ПЗ Хладилника"
Модерни градски жилища до Ловен парк, с удобен достъп до метростанция Витоша
531 413 €1 039 353,49 лв.
(2 950 €/кв.м.) (5 769,70 лв./кв.м.)180.14 кв.м.
Магдалена Цоклинова
Старши брокер, София
Продажба
Лукс
Тристаен апартамент в Луксозен комплекс от 13 сгради с 30 дка зелени площи, 9 детски площадки и 18 търговски обекта
гр. София , кв. "ПЗ Хладилника"
Модерни градски жилища до Ловен парк, с удобен достъп до метростанция Витоша
549 427 €1 074 585,81 лв.
(3 050 €/кв.м.) (5 965,28 лв./кв.м.)180.14 кв.м.
Магдалена Цоклинова
Старши брокер, София
Продажба
Лукс
Пентхаус в Луксозен комплекс от 13 сгради с 30 дка зелени площи, 9 детски площадки и 18 търговски обекта
гр. София , кв. "ПЗ Хладилника"
Модерни градски жилища до Ловен парк, с удобен достъп до метростанция Витоша
919 242 €1 797 881,08 лв.
(4 117 €/кв.м.) (8 052,15 лв./кв.м.)223.27 кв.м.
Магдалена Цоклинова
Старши брокер, София
Продажба
Лукс
Тристаен апартамент в Луксозен комплекс от 13 сгради с 30 дка зелени площи, 9 детски площадки и 18 търговски обекта
гр. София , кв. "ПЗ Хладилника"
Модерни градски жилища до Ловен парк, с удобен достъп до метростанция Витоша
494 547 €967 249,86 лв.
(2 749 €/кв.м.) (5 376,58 лв./кв.м.)179.84 кв.м.
Магдалена Цоклинова
Старши брокер, София
Още имоти в кв. ПЗ Хладилника
Продажба
Лукс
Слънчев мезонет с 3 спални и панорамна гледка към Витоша
гр. София , кв. "ПЗ Хладилника"
Просторен имот без довършителни работи в сграда с Акт 16 на ул. „Филип Кутев“
Слънчев мезонет с 3 спални и панорамна гледка към Витоша - Просторен имот без довършителни работи в сграда с Акт 16 на ул. „Филип Кутев“
619 000 €(1 210 658,77 лв.)
(2 881 €/кв.м.)(5 634,64 лв./кв.м.)Площ: 214.86 кв.м.
Магдалена Тошева
Старши брокер, София
Наем
За частни лица
Лукс
Тристаен апартамент под наем до Ловен парк и болница Токуда
гр. София , кв. "ПЗ Хладилника"
Напълно обзаведен имот с възможност за наем на подземно паркомясто
Тристаен апартамент под наем до Ловен парк и болница Токуда - Напълно обзаведен имот с възможност за наем на подземно паркомясто
Още имоти в гр. София
Продажба
ЕксклузивноХит
Central Park - 7 сгради с 12 дка парк. Сгради А, Б и В са с АКТ 16, а Е и Ж - с АКТ 14!
гр. София , кв. "Банишора"
Уникален комплекс, пресъздаващ стила и атмосферата на едноименния парк в Ню Йорк. Най-продаван комплекс за 2022, 2023, 2024 и 2025 г.!
Central Park - 7 сгради с 12 дка парк. Сгради А, Б и В са с АКТ 16, а Е и Ж - с АКТ 14! - Уникален комплекс, пресъздаващ стила и атмосферата на едноименния парк в Ню Йорк. Най-продаван комплекс за 2022, 2023, 2024 и 2025 г.!
от 185 874 €(от 363 537,95 лв.)
(2 200 €/кв.м. - 2 800 €/кв.м.)(4 302,83 лв./кв.м. - 5 476,32 лв./кв.м.)Площ: 71.49 - 187.57 кв.м.
инж. Иван Крумов
Старши брокер, София
Продажба
ЕксклузивноХит
Лукс
SKY TOWERS by AMur — новият архитектурен символ на София
гр. София , кв. "Манастирски ливади"
Луксозен комплекс с панорамни гледки, топ локация и впечатляващ силует разположен между градската динамика и планината
SKY TOWERS by AMur — новият архитектурен символ на София - Луксозен комплекс с панорамни гледки, топ локация и впечатляващ силует разположен между градската динамика и планината
от 244 894 €(от 478 971,03 лв.)
(3 360 €/кв.м. - 5 688 €/кв.м.)(6 571,59 лв./кв.м. - 11 124,76 лв./кв.м.)Площ: 65.38 - 314.59 кв.м.
Магдалена Тошева
Старши брокер, София
Продажба
Ексклузивно
Лукс
SYNERA Residence - най-новият комплекс в кв. Манастирски ливади - Изток
гр. София , кв. "Манастирски ливади"
Жилищен проект, създаден за модерен градски живот
SYNERA Residence - най-новият комплекс в кв. Манастирски ливади - Изток - Жилищен проект, създаден за модерен градски живот
от 130 000 €(от 254 257,90 лв.)
(2 492 €/кв.м. - 3 382 €/кв.м.)(4 873,93 лв./кв.м. - 6 614,62 лв./кв.м.)Площ: 52.17 - 208.03 кв.м.
инж. Даниела Тотева
Старши брокер, София
Продажба
Ексклузивно
Лукс
Нов ексклузивен жилищен проект в София – Corner Park, кв. Сухата река
гр. София , кв. "Сухата река"
Съвременен дизайн, отлична локация и гъвкави схеми на плащане
Нов ексклузивен жилищен проект в София – Corner Park, кв. Сухата река - Съвременен дизайн, отлична локация и гъвкави схеми на плащане
от 152 820 €(от 298 889,94 лв.)
(1 850 €/кв.м. - 2 500 €/кв.м.)(3 618,29 лв./кв.м. - 4 889,58 лв./кв.м.)Площ: 67.92 - 249.28 кв.м.
Иван Каменов
Старши брокер, София
Продажба
Ексклузивно
Стилен нов проект в Малинова долина – модерно жилище в приятна жилищна зона
гр. София , кв. "Малинова долина"
Съвременен комфорт и инвестиционна сигурност в сърцето на Малинова долина
Стилен нов проект в Малинова долина – модерно жилище в приятна жилищна зона - Съвременен комфорт и инвестиционна сигурност в сърцето на Малинова долина
от 160 872 €(от 314 638,28 лв.)
(2 400 €/кв.м.)(4 693,99 лв./кв.м.)Площ: 67.03 - 143.95 кв.м.
Магдалена Цоклинова
Старши брокер, София
Продажба
ЕксклузивноХит
Апартаменти и надземни гаражи в нова сграда близо до НСА
гр. София , кв. "Малинова долина"
Последни жилища в нова сграда с Акт 15 и топ локация в кв. Малинова долина
Апартаменти и надземни гаражи в нова сграда близо до НСА - Последни жилища в нова сграда с Акт 15 и топ локация в кв. Малинова долина
от 176 400 €(от 345 008,41 лв.)
(1 756 €/кв.м. - 2 500 €/кв.м.)(3 434,44 лв./кв.м. - 4 889,58 лв./кв.м.)Площ: 70.56 - 113.03 кв.м.
Магдалена Цоклинова
Старши брокер, София
Продажба
ново
За частни лица
Жилищна сграда с Акт 15 до Национална Спортна Академия
гр. София , кв. "Малинова долина"
Нови апартаменти с отлична локация в полите на Витоша
Жилищна сграда с Акт 15 до Национална Спортна Академия - Нови апартаменти с отлична локация в полите на Витоша
от 127 858 €(от 250 068,51 лв.)
(2 500 €/кв.м. - 3 000 €/кв.м.)(4 889,58 лв./кв.м. - 5 867,49 лв./кв.м.)Площ: 49.75 - 160.33 кв.м.
Иванка Стойкова
Старши брокер / Мениджър на офис, Бъкстон
Продажба
За частни лица
Жилища с централна локация на бул. Сливница с Акт 14
гр. София , кв. "Център"
Апартаменти с 1, 2 или 3 спални в луксозна 9-етажна сграда
Жилища с централна локация на бул. Сливница с Акт 14 - Апартаменти с 1, 2 или 3 спални в луксозна 9-етажна сграда
от 133 656 €(от 261 408,41 лв.)
(2 550 €/кв.м. - 3 180 €/кв.м.)(4 987,37 лв./кв.м. - 6 219,54 лв./кв.м.)Площ: 42.03 - 170.01 кв.м.
Иванка Стойкова
Старши брокер / Мениджър на офис, Бъкстон
Продажба
За частни лица
Нова сграда със само 16 апартамента в кв. Манастирски ливади – изток
гр. София , кв. "Манастирски ливади"
Апартаменти с 2 или 3 спални в близост до Витоша и с удобни връзки с центъра на столицата
Нова сграда със само 16 апартамента в кв. Манастирски ливади – изток - Апартаменти с 2 или 3 спални в близост до Витоша и с удобни връзки с центъра на столицата
от 302 386 €(от 591 415,61 лв.)
(2 640 €/кв.м.)(5 163,40 лв./кв.м.)Площ: 114.54 - 201.08 кв.м.
Иванка Стойкова
Старши брокер / Мениджър на офис, Бъкстон
Продажба
Ексклузивно За частни лица
Луксозен комплекс от две сгради Green View Apartments в кв. Княжево - с АКТ 16
гр. София , кв. "Княжево"
Двустайни и тристайни апартаменти висококачествено строителство
Луксозен комплекс от две сгради Green View Apartments в кв. Княжево - с АКТ 16 - Двустайни и тристайни апартаменти висококачествено строителство
от 150 000 €(от 293 374,50 лв.)
(1 897 €/кв.м. - 3 400 €/кв.м.)(3 710,21 лв./кв.м. - 6 649,82 лв./кв.м.)Площ: 68.07 - 268.82 кв.м.
Иванка Стойкова
Старши брокер / Мениджър на офис, Бъкстон
Продажба
ЕксклузивноХит
Vitosha View – емблематичен комплекс в кв. Кръстова вада
гр. София , кв. "Кръстова вада"
Последни налични жилища в най-новите сгради!
Vitosha View – емблематичен комплекс в кв. Кръстова вада - Последни налични жилища в най-новите сгради!
от 429 000 €(от 839 051,07 лв.)
(2 618 €/кв.м. - 2 715 €/кв.м.)(5 120,36 лв./кв.м. - 5 310,08 лв./кв.м.)Площ: 163.89 - 163.89 кв.м.
Магдалена Тошева
Старши брокер, София
Продажба
Лукс
Reina Sofia Residence - висок клас сграда енергиен клас А близо до Зоопарк София и Ловен парк
гр. София , кв. "Кръстова вада"
Последни апартаменти в комплекс със зелени площи и получен Акт 16
Reina Sofia Residence - висок клас сграда енергиен клас А близо до Зоопарк София и Ловен парк - Последни апартаменти в комплекс със зелени площи и получен Акт 16
от 261 000 €(от 510 471,63 лв.)
(3 356 €/кв.м. - 4 189 €/кв.м.)(6 563,77 лв./кв.м. - 8 192,97 лв./кв.м.)Площ: 76.31 - 139.88 кв.м.
Магдалена Тошева
Старши брокер, София
Продажба
ЕксклузивноХит
Нов жилищен проект в кв. Малинова долина с Акт 15
гр. София , кв. "Малинова долина"
Последни апартаменти с удобна локация в нова сграда качествено строителство
Нов жилищен проект в кв. Малинова долина с Акт 15 - Последни апартаменти с удобна локация в нова сграда качествено строителство
от 310 000 €(от 606 307,30 лв.)
(1 863 €/кв.м. - 2 042 €/кв.м.)(3 643,71 лв./кв.м. - 3 993,80 лв./кв.м.)Площ: 151.80 - 191.62 кв.м.
Магдалена Цоклинова
Старши брокер, София
Продажба
За частни лица
Нови жилища до Бизнес Парк София и метро
гр. София , кв. "Младост 4"
Апартаменти с 1, 2 и 3 спални в нов комплекс с отлична локация в кв. Младост 4
Нови жилища до Бизнес Парк София и метро - Апартаменти с 1, 2 и 3 спални в нов комплекс с отлична локация в кв. Младост 4
от 219 678 €(от 429 652,82 лв.)
(2 350 €/кв.м. - 2 705 €/кв.м.)(4 596,20 лв./кв.м. - 5 290,52 лв./кв.м.)Площ: 87.80 - 202.38 кв.м.
Николай Попов
Старши брокер, София
Продажба
ново
Лукс
Прекрасна къща на три нива в местност Косанин дол с Акт 15
с. Панчарево
Комфортна редова къща със слънчево южно изложение и самостоятелен двор в район Панчарево
Прекрасна къща на три нива в местност Косанин дол с Акт 15 - Комфортна редова къща със слънчево южно изложение и самостоятелен двор в район Панчарево
Продажба
ново
Ексклузивно
Двустаен апартамент в жк. Люлин 5
гр. София , кв. "Люлин 5"
Слънчево градско жилище до възлови булеварди и удобства
Двустаен апартамент в жк. Люлин 5 - Слънчево градско жилище до възлови булеварди и удобства
Наем
ново
Луксозен офис под наем на ул. Солунска до бул. Витоша
гр. София , кв. "Център"
Модерен офис с емблематична локация близо до Съдебната палата и метростанция Сердика
Луксозен офис под наем на ул. Солунска до бул. Витоша - Модерен офис с емблематична локация близо до Съдебната палата и метростанция Сердика
Продажба
ново
Тристаен апартамент в комплекс Мона 4 в кв. Манастирски ливади
гр. София , кв. "Манастирски ливади"
Нов тристаен апартамент на последен етаж с панорамна гледка
Тристаен апартамент в комплекс Мона 4 в кв. Манастирски ливади - Нов тристаен апартамент на последен етаж с панорамна гледка
Продажба
ново
Лукс
Апартаменти в бутикова сграда с модерна визия в кв. Банишора
гр. София , кв. "Банишора"
Малка сграда, премиум изпълнение с отлична централна локация
Апартаменти в бутикова сграда с модерна визия в кв. Банишора - Малка сграда, премиум изпълнение с отлична централна локация
от 204 526 €(от 400 018,09 лв.)
(2 333 €/кв.м. - 3 592 €/кв.м.)(4 562,95 лв./кв.м. - 7 025,34 лв./кв.м.)Площ: 77.51 - 131.93 кв.м.
Михаил Кръстев
Брокер , София
Продажба
ново
За частни лица
Новострояща се жилищна сграда в кв. Зона Б-19
гр. София , кв. "Зона Б-19"
Модерен градски дом до парк и възлови булеварди
Новострояща се жилищна сграда в кв. Зона Б-19 - Модерен градски дом до парк и възлови булеварди
от 115 198 €(от 225 307,70 лв.)
(2 022 €/кв.м.)(3 954,85 лв./кв.м.)Площ: 56.97 - 133.60 кв.м.
Иванка Стойкова
Старши брокер / Мениджър на офис, Бъкстон
Продажба
ново
Просторен двустаен апартамент с цена без аналог в кв. Малинова долина
гр. София , кв. "Малинова долина"
Функционално жилище с отличен инвестиционен потенциал
Просторен двустаен апартамент с цена без аналог в кв. Малинова долина - Функционално жилище с отличен инвестиционен потенциал
Продажба
ново
За частни лица
Южен голям тристаен апартамент в кв. Манастирски ливади
гр. София , кв. "Манастирски ливади"
Светъл тристаен с две спални и две бани на топ локация
Южен голям тристаен апартамент в кв. Манастирски ливади - Светъл тристаен с две спални и две бани на топ локация
Продажба
ново
Лукс
Мезонет в топ комплекс до Ловен парк в кв. Дианабад
гр. София , кв. "Дианабад"
Луксозен апартамент в сграда с номинация за Сграда на годината 2022 г
Мезонет в топ комплекс до Ловен парк в кв. Дианабад - Луксозен апартамент в сграда с номинация за Сграда на годината 2022 г
Продажба
ново
За частни лица
Модерен жилищен комплекс с Акт 14 в кв. Витоша
гр. София , кв. "Витоша"
Начин на живот с перспектива - енергиен клас А, комфорт, устойчивост и инвестиционен потенциал
Модерен жилищен комплекс с Акт 14 в кв. Витоша - Начин на живот с перспектива - енергиен клас А, комфорт, устойчивост и инвестиционен потенциал
от 109 362 €(от 213 893,48 лв.)
(2 064 €/кв.м. - 5 000 €/кв.м.)(4 036,83 лв./кв.м. - 9 779,15 лв./кв.м.)Площ: 49.71 - 153.15 кв.м.
Иванка Стойкова
Старши брокер / Мениджър на офис, Бъкстон
Наем
ново
Ексклузивно За частни лица
Наземен гараж с паркомясто в кв. Малинова долина
гр. София , кв. "Малинова долина"
Практично решение за паркиране в нова сграда с отлична локация
Наземен гараж с паркомясто в кв. Малинова долина - Практично решение за паркиране в нова сграда с отлична локация
Вижте още имоти в кв. "ПЗ Хладилника" в град София:
- Апартаменти (различни типове) в кв. "ПЗ Хладилника"
- Къщи в кв. "ПЗ Хладилника"
- Офиси в кв. "ПЗ Хладилника"
- Магазини в кв. "ПЗ Хладилника"
- Земи в кв. "ПЗ Хладилника"
- Всички имоти в кв. "ПЗ Хладилника"
Вижте още имоти в град София:
Абонирайте се за нашия канал