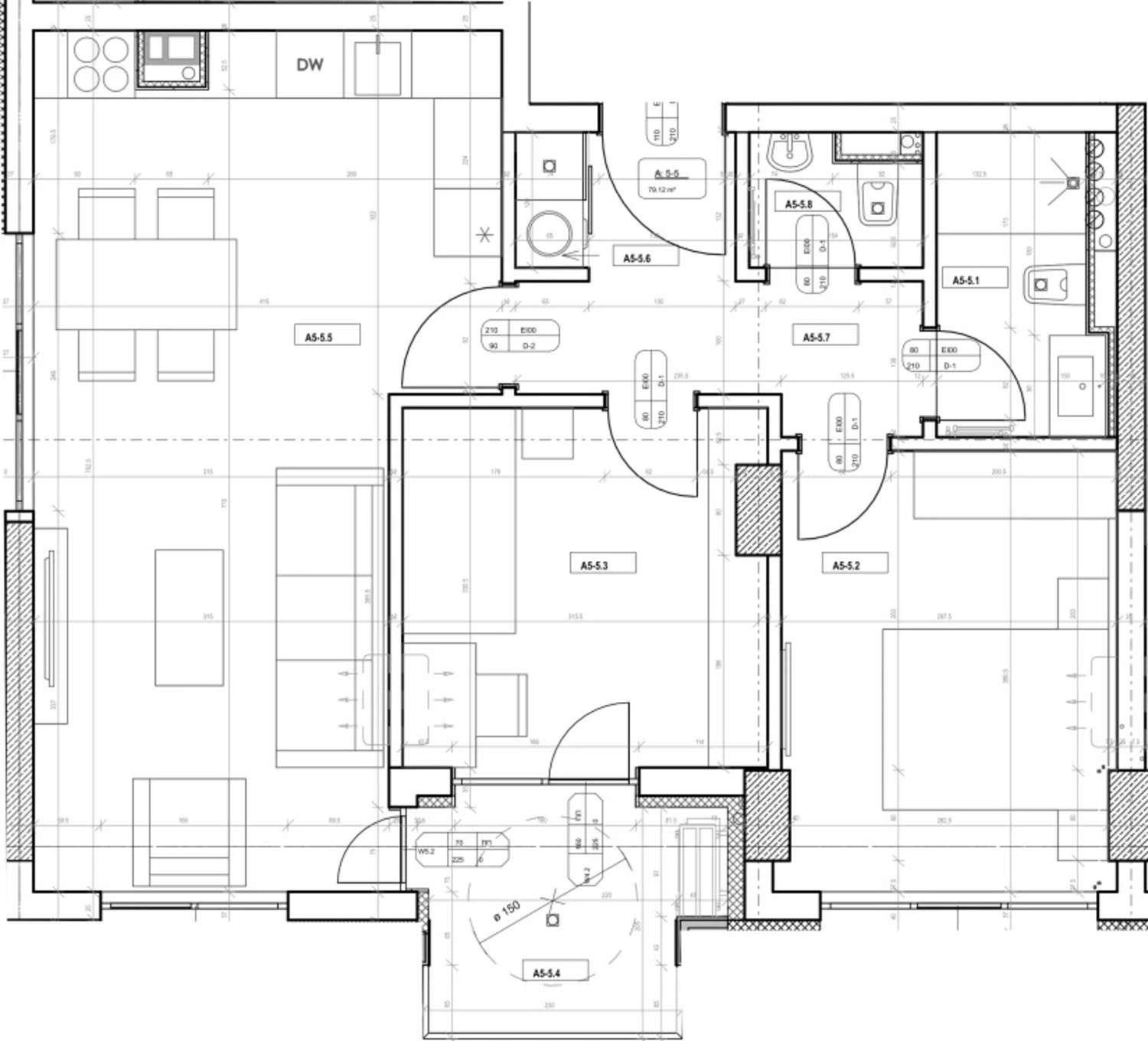
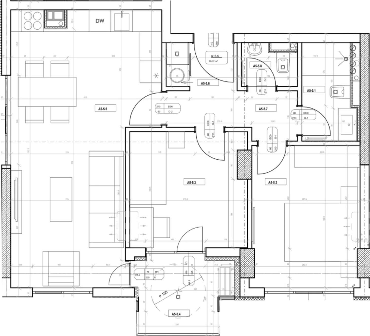
апартамент A305 , обща площ 98.29 кв.м. (нетна площ 79.12 кв.м. + общи части 19.17 кв.м.).
С радост представяме нов предстоящ проект – комплекс със смесено предназначение в гр. Бургас, създаден като съвременна градска среда, която съчетава живот, работа, отдих и инвестиционен потенциал в едно хармонично и функционално пространство.
В комплекса са предвидени:
• Жилищна част
Разнообразие от двустайни, тристайни и четиристайни апартаменти, проектирани с функционални разпределения, добра осветеност и комфорт за съвременен начин на живот. Жилищата са подходящи както за лично ползване, така и за инвестиция.
• Офиси и конферентна зона
Сградата включва офис площи и многофункционална конферентна зала, предназначена за събития, срещи и професионални формати.
• Търговски обекти и кафене
Партерното ниво е проектирано с търговски площи и заведения, които допринасят за активна и оживена градска среда.
• Апарт-хотел
Част от концепцията е включването на апарт-хотел, което допълнително увеличава инвестиционния потенциал на проекта.
• Зелени площи и удобства
Комплексът предлага зони за отдих и озеленени пространства, предназначени за живущите и посетителите. Вътрешният двор осигурява спокойствие, сигурност и комфорт, изолиран от уличната мрежа.
За удобство на обитателите и гостите са предвидени:
• възможност за закупуване на подземни гаражи и надземни паркоместа;
• допълнителни паркоместа за посетители на партерно ниво;
• обособени места за велосипеди.
Проектът се отличава със съвременен архитектурен облик, висока функционалност и внимание към детайла. Архитектурното решение създава вдъхновяваща среда, в която работата и личният живот се допълват естествено.
Комплексът е добре ситуиран, с отлична локация и изградени транспортни връзки. Достъпът е лесен както с автомобил, така и с обществен транспорт, а обкръжаващата инфраструктура гарантира удобство за ежедневието.
Комплекс, който създава нов стандарт за градски живот в Бургас. Този проект обединява архитектура, функционалност и визия за бъдещето, превръщайки се в естествена част от модерната градска среда и предлагаща дългосрочна стойност за своите обитатели и инвеститори.
Оглед на имота
Можем да организираме оглед на имота спрямо нашия график и възможностите за достъп до него. Заявете вашето желание за оглед, като се свържете с отговорния за офертата брокер по имейл или телефон.
Резервация на имота
Имотът може да бъде резервиран и свален от продажба със заплащане на депозит, след което се прекратява провеждането на огледи с други купувачи и започва подготовка на документите за сключване на предварителен и окончателен договор. Свържете се с отговорния брокер за подробна информация относно процедурата на покупка и начините за плащане.
Жилищен кредит
Ние си партнираме с водещите български банки и можем да ви свържем с техните консултанти за информация и кандидатстване за кредит.
- Описание
- Характеристики
- Галерия
- Местоположение
- Ценова листа
Характеристики на имота
Тип на имота
Тристаен апартамент
Реф. номер
BS 88892
Площ
98.29 м2 (чиста площ: 79.12 м2 плюс общи части: 19.17 м2)
Спални
2
Състояние
прочетете текста
Етаж
3 от 16
Асансьор
да
Обзавеждане
Необзаведен
Отопление
Климатици
Тип строителство
Тухла, Ново строителство
Изложение:
Изток, Запад, Север, Юг
Година на построяване
2028
Още информация за Модерен жилищен проект в квартал Мадика на гр. Бургас:
План на имота
Планове
Ценова листа
Качество на въздуха
Обзавеждане
Снимки от въздуха
Общ план
360° изглед
Инфо пакет
Референтен номер: BS 88892
Местоположение
гр. Бургас, кв."Мадика"Удобства в района
- Детска градина "ОДЗ №15 "Моряче"" на 426 м. (6 мин.)
- Детска градина "ЦДГ-28 Детелина" на 466 м. (6 мин.)
- Училище "НБУ Михаил Лъкатник" на 369 м. (5 мин.)
- Училище "НБУ Михаил Лъкатник" на 535 м. (7 мин.)
- Университет "Университет Проф. Д-р Асен Златаров Педагогически факултет" на 406 м. (5 мин.)
- Университет "Бургаски държавен университет „Проф. д-р Асен Златаров“" на 480 м. (6 мин.)
- Болница "МБАЛ "Сърце и мозък"" на 397 м. (5 мин.)
- Медицински център "Медицински център 2" на 407 м. (5 мин.)
- Хранителен магазин "Минимаркет" на 915 м. (12 мин.)
- Супермаркет "Lidl" на 124 м. (2 мин.)
- Супермаркет "Т-Маркет" на 320 м. (4 мин.)
- Мол "Престиж" на 1.1 км. (14 мин.)
- Аптека "Аптека Пулс" на 701 м. (9 мин.)
- Поща/Куриер "Еконт" на 727 м. (9 мин.)
- Поща/Куриер "Еконт" на 749 м. (10 мин.)
- Ветеринарен лекар "Ветеринарномедицинска клиника МобиВет" на 888 м. (11 мин.)
- Ресторант "Шан Хай" на 580 м. (7 мин.)
- Ресторант на 891 м. (11 мин.)
- Кафене на 689 м. (9 мин.)
- Спортен терен на 276 м. (4 мин.)
- Тенис корт на 389 м. (5 мин.)
- Парк на 659 м. (8 мин.)
- Паркинг на 59 м. (1 мин.)
- Бензиностанция "Петрол" на 483 м. (6 мин.)
- Зарядна станция "Fines Charging" на 787 м. (10 мин.)
- Автомивка "OMV Автомивка" на 792 м. (10 мин.)
- Автосервиз "Westauto-M ltd." на 95 м. (2 мин.)
ТРАНСПОРТ
УЧЕБНИ ЗАВЕДЕНИЯ
ЛЕЧЕБНИ ЗАВЕДЕНИЯ
ПАЗАРУВАНЕ
УСЛУГИ
ЗАВЕДЕНИЯ
СПОРТ И СВОБОДНО ВРЕМЕ
ПРИРОДА И ЗАБЕЛЕЖИТЕЛНОСТИ
АВТОМОБИЛНИ УСЛУГИ
Изпратете запитване
146 452 €
(286 435,22 лв.)
- €
- $
- £
В процес на строителство
Планирано завършване: 20.12.2028 г
Без комисионна
Ценова листа
*/ ?>
ЗА ПОВЕЧЕ ИНФОРМАЦИЯ
Реф. номер: BS 88892
При обаждане, моля цитирайте референтния номер на имота.
Налични имоти в комплекса
126
имота
92
свободни
1
продадени
33
резервирани
Изпратете запитване
Още имоти в този комплекс
Продажба
Тристаен апартамент в Модерен жилищен проект в квартал Мадика на гр. Бургас
гр. Бургас , кв. "Мадика"
Сграда със смесено предназначение и отлична локация с изградени транспортни връзки
153 053 €299 345,65 лв.
(1 390 €/кв.м.) (2 718,60 лв./кв.м.)110.11 кв.м.
Георги Иванов
Брокер, Бургас
Продажба
Тристаен апартамент в Модерен жилищен проект в квартал Мадика на гр. Бургас
гр. Бургас , кв. "Мадика"
Сграда със смесено предназначение и отлична локация с изградени транспортни връзки
160 281 €313 482,39 лв.
(1 390 €/кв.м.) (2 718,60 лв./кв.м.)115.31 кв.м.
Георги Иванов
Брокер, Бургас
Продажба
Двустаен апартамент в Модерен жилищен проект в квартал Мадика на гр. Бургас
гр. Бургас , кв. "Мадика"
Сграда със смесено предназначение и отлична локация с изградени транспортни връзки
126 337 €247 093,69 лв.
(1 389 €/кв.м.) (2 716,65 лв./кв.м.)90.89 кв.м.
Георги Иванов
Брокер, Бургас
Продажба
Двустаен апартамент в Модерен жилищен проект в квартал Мадика на гр. Бургас
гр. Бургас , кв. "Мадика"
Сграда със смесено предназначение и отлична локация с изградени транспортни връзки
123 571 €241 683,87 лв.
(1 390 €/кв.м.) (2 718,60 лв./кв.м.)88.90 кв.м.
Георги Иванов
Брокер, Бургас
Продажба
Двустаен апартамент в Модерен жилищен проект в квартал Мадика на гр. Бургас
гр. Бургас , кв. "Мадика"
Сграда със смесено предназначение и отлична локация с изградени транспортни връзки
Продажба
Двустаен апартамент в Модерен жилищен проект в квартал Мадика на гр. Бургас
гр. Бургас , кв. "Мадика"
Сграда със смесено предназначение и отлична локация с изградени транспортни връзки
102 438 €200 351,31 лв.
(1 490 €/кв.м.) (2 914,19 лв./кв.м.)68.75 кв.м.
Георги Иванов
Брокер, Бургас
Продажба
Тристаен апартамент в Модерен жилищен проект в квартал Мадика на гр. Бургас
гр. Бургас , кв. "Мадика"
Сграда със смесено предназначение и отлична локация с изградени транспортни връзки
164 749 €322 221,04 лв.
(1 489 €/кв.м.) (2 912,23 лв./кв.м.)110.57 кв.м.
Георги Иванов
Брокер, Бургас
Продажба
Тристаен апартамент в Модерен жилищен проект в квартал Мадика на гр. Бургас
гр. Бургас , кв. "Мадика"
Сграда със смесено предназначение и отлична локация с изградени транспортни връзки
146 452 €286 435,22 лв.
(1 489 €/кв.м.) (2 912,23 лв./кв.м.)98.29 кв.м.
Георги Иванов
Брокер, Бургас
Продажба
Тристаен апартамент в Модерен жилищен проект в квартал Мадика на гр. Бургас
гр. Бургас , кв. "Мадика"
Сграда със смесено предназначение и отлична локация с изградени транспортни връзки
146 199 €285 940,39 лв.
(1 490 €/кв.м.) (2 914,19 лв./кв.м.)98.12 кв.м.
Георги Иванов
Брокер, Бургас
Продажба
Двустаен апартамент в Модерен жилищен проект в квартал Мадика на гр. Бургас
гр. Бургас , кв. "Мадика"
Сграда със смесено предназначение и отлична локация с изградени транспортни връзки
Продажба
Двустаен апартамент в Модерен жилищен проект в квартал Мадика на гр. Бургас
гр. Бургас , кв. "Мадика"
Сграда със смесено предназначение и отлична локация с изградени транспортни връзки
102 438 €200 351,31 лв.
(1 490 €/кв.м.) (2 914,19 лв./кв.м.)68.75 кв.м.
Георги Иванов
Брокер, Бургас
Продажба
Тристаен апартамент в Модерен жилищен проект в квартал Мадика на гр. Бургас
гр. Бургас , кв. "Мадика"
Сграда със смесено предназначение и отлична локация с изградени транспортни връзки
164 749 €322 221,04 лв.
(1 489 €/кв.м.) (2 912,23 лв./кв.м.)110.57 кв.м.
Георги Иванов
Брокер, Бургас
Продажба
Тристаен апартамент в Модерен жилищен проект в квартал Мадика на гр. Бургас
гр. Бургас , кв. "Мадика"
Сграда със смесено предназначение и отлична локация с изградени транспортни връзки
146 452 €286 435,22 лв.
(1 489 €/кв.м.) (2 912,23 лв./кв.м.)98.29 кв.м.
Георги Иванов
Брокер, Бургас
Продажба
Тристаен апартамент в Модерен жилищен проект в квартал Мадика на гр. Бургас
гр. Бургас , кв. "Мадика"
Сграда със смесено предназначение и отлична локация с изградени транспортни връзки
146 199 €285 940,39 лв.
(1 490 €/кв.м.) (2 914,19 лв./кв.м.)98.12 кв.м.
Георги Иванов
Брокер, Бургас
Продажба
Двустаен апартамент в Модерен жилищен проект в квартал Мадика на гр. Бургас
гр. Бургас , кв. "Мадика"
Сграда със смесено предназначение и отлична локация с изградени транспортни връзки
Продажба
Двустаен апартамент в Модерен жилищен проект в квартал Мадика на гр. Бургас
гр. Бургас , кв. "Мадика"
Сграда със смесено предназначение и отлична локация с изградени транспортни връзки
102 438 €200 351,31 лв.
(1 490 €/кв.м.) (2 914,19 лв./кв.м.)68.75 кв.м.
Георги Иванов
Брокер, Бургас
Продажба
Тристаен апартамент в Модерен жилищен проект в квартал Мадика на гр. Бургас
гр. Бургас , кв. "Мадика"
Сграда със смесено предназначение и отлична локация с изградени транспортни връзки
164 749 €322 221,04 лв.
(1 489 €/кв.м.) (2 912,23 лв./кв.м.)110.57 кв.м.
Георги Иванов
Брокер, Бургас
Продажба
Тристаен апартамент в Модерен жилищен проект в квартал Мадика на гр. Бургас
гр. Бургас , кв. "Мадика"
Сграда със смесено предназначение и отлична локация с изградени транспортни връзки
146 199 €285 940,39 лв.
(1 490 €/кв.м.) (2 914,19 лв./кв.м.)98.12 кв.м.
Георги Иванов
Брокер, Бургас
Продажба
Тристаен апартамент в Модерен жилищен проект в квартал Мадика на гр. Бургас
гр. Бургас , кв. "Мадика"
Сграда със смесено предназначение и отлична локация с изградени транспортни връзки
144 235 €282 099,14 лв.
(1 290 €/кв.м.) (2 523,02 лв./кв.м.)111.81 кв.м.
Георги Иванов
Брокер, Бургас
Продажба
Тристаен апартамент в Модерен жилищен проект в квартал Мадика на гр. Бургас
гр. Бургас , кв. "Мадика"
Сграда със смесено предназначение и отлична локация с изградени транспортни връзки
144 287 €282 200,84 лв.
(1 290 €/кв.м.) (2 523,02 лв./кв.м.)111.85 кв.м.
Георги Иванов
Брокер, Бургас
Продажба
Тристаен апартамент в Модерен жилищен проект в квартал Мадика на гр. Бургас
гр. Бургас , кв. "Мадика"
Сграда със смесено предназначение и отлична локация с изградени транспортни връзки
149 085 €291 584,92 лв.
(1 289 €/кв.м.) (2 521,06 лв./кв.м.)115.57 кв.м.
Георги Иванов
Брокер, Бургас
Продажба
Четиристаен апартамент в Модерен жилищен проект в квартал Мадика на гр. Бургас
гр. Бургас , кв. "Мадика"
Сграда със смесено предназначение и отлична локация с изградени транспортни връзки
191 397 €374 339,99 лв.
(1 289 €/кв.м.) (2 521,06 лв./кв.м.)148.37 кв.м.
Георги Иванов
Брокер, Бургас
Продажба
Тристаен апартамент в Модерен жилищен проект в квартал Мадика на гр. Бургас
гр. Бургас , кв. "Мадика"
Сграда със смесено предназначение и отлична локация с изградени транспортни връзки
195 293 €381 959,91 лв.
(1 289 €/кв.м.) (2 521,06 лв./кв.м.)151.39 кв.м.
Георги Иванов
Брокер, Бургас
Продажба
Тристаен апартамент в Модерен жилищен проект в квартал Мадика на гр. Бургас
гр. Бургас , кв. "Мадика"
Сграда със смесено предназначение и отлична локация с изградени транспортни връзки
144 235 €282 099,14 лв.
(1 290 €/кв.м.) (2 523,02 лв./кв.м.)111.81 кв.м.
Георги Иванов
Брокер, Бургас
Продажба
Тристаен апартамент в Модерен жилищен проект в квартал Мадика на гр. Бургас
гр. Бургас , кв. "Мадика"
Сграда със смесено предназначение и отлична локация с изградени транспортни връзки
138 688 €271 250,15 лв.
(1 290 €/кв.м.) (2 523,02 лв./кв.м.)107.51 кв.м.
Георги Иванов
Брокер, Бургас
Още имоти в кв. Мадика
Продажба
Нов жилищен проект в развиващия се квартал Мадика
гр. Бургас , кв. "Мадика"
Модерна 7-етажна жилищна сграда с отлична локация и условия за комфортен градски живот
Нов жилищен проект в развиващия се квартал Мадика - Модерна 7-етажна жилищна сграда с отлична локация и условия за комфортен градски живот
от 99 782 €(от 195 156,63 лв.)
(1 400 €/кв.м. - 1 500 €/кв.м.)(2 738,16 лв./кв.м. - 2 933,75 лв./кв.м.)Площ: 69.29 - 104.60 кв.м.
Павел Раванов
Старши брокер, Бургас
Продажба
Новопостроен медицински център до болница Сърце и Мозък
гр. Бургас , кв. "Мадика"
Имот със статут на медицински център в кв. Мадика
Новопостроен медицински център до болница Сърце и Мозък - Имот със статут на медицински център в кв. Мадика
Продажба
Просторен парцел земя в местност Мадика в гр. Бургас
гр. Бургас , кв. "Мадика"
Обширна земеделска земя 3-та категория близо до КАТ и промишлени предприятия
Просторен парцел земя в местност Мадика в гр. Бургас - Обширна земеделска земя 3-та категория близо до КАТ и промишлени предприятия
Още имоти в гр. Бургас
Продажба
Лукс
Висок клас жилищен проект с топла връзка с Grand Plaza Mall
гр. Бургас , кв. "Хоризонт"
Жилища в модерен комплекс от затворен тип в кв. Хоризонт
Висок клас жилищен проект с топла връзка с Grand Plaza Mall - Жилища в модерен комплекс от затворен тип в кв. Хоризонт
от 95 002 €(от 185 807,76 лв.)
(1 476 €/кв.м. - 16 540 €/кв.м.)(2 886,81 лв./кв.м. - 32 349,43 лв./кв.м.)Площ: 60.44 - 266.61 кв.м.
Павел Раванов
Старши брокер, Бургас
Продажба
ново
Лукс
Двустаен апартамент в кв. Лазур, на минути от Морската градина
гр. Бургас , кв. "Лазур"
Просторен, напълно обзаведен имот в една от най-желаните локации на гр. Бургас
Двустаен апартамент в кв. Лазур, на минути от Морската градина - Просторен, напълно обзаведен имот в една от най-желаните локации на гр. Бургас
Продажба
ново
Тристаен апартамент с панорамна гледка в комплекс „Перла“
гр. Бургас , кв. "Зорница"
Светъл и напълно обзаведен дом на топ локация в кв. Зорница, Бургас
Тристаен апартамент с панорамна гледка в комплекс „Перла“ - Светъл и напълно обзаведен дом на топ локация в кв. Зорница, Бургас
Продажба
ново
Просторен тристаен апартамент в ж.к. Зорница
гр. Бургас , кв. "Зорница"
Напълно обзаведен rимот в затворен комплекс с басейн и отлична локация в Бургас
Просторен тристаен апартамент в ж.к. Зорница - Напълно обзаведен rимот в затворен комплекс с басейн и отлична локация в Бургас
Продажба
ново
Двустаен апартамент в ж.к. „Възраждане“, до Борисовата градина
гр. Бургас , кв. "Възраждане"
Kомпактен и функционален партерен имот за постоянно живеене, офис/кабинет или инвестиция за отдаване под наем
Двустаен апартамент в ж.к. „Възраждане“, до Борисовата градина - Kомпактен и функционален партерен имот за постоянно живеене, офис/кабинет или инвестиция за отдаване под наем
Продажба
ново
Производствена база с две сгради и готов бизнес – лицензирана и напълно оборудвана
гр. Бургас , кв. "Меден рудник - зона Д"
Имот с одобрение от БАБХ и отличен достъп по асфалтов път
Производствена база с две сгради и готов бизнес – лицензирана и напълно оборудвана - Имот с одобрение от БАБХ и отличен достъп по асфалтов път
Продажба
ново
Инвестиционен УПИ с лице на главен път до Бургас
гр. Бургас , кв. "Промишлена зона - Север"
Парцел със стратегическа локация до JUMBO и отлична видимост
Инвестиционен УПИ с лице на главен път до Бургас - Парцел със стратегическа локация до JUMBO и отлична видимост
2 486 400 €(4 862 975,71 лв.)
(80 €/кв.м.)(155,53 лв./кв.м.)Площ: 31 267.00 кв.м.
Георги Иванов
Брокер, Бургас
Продажба
ново
Двустаен апартамент ново строителство в кв. „Азимут“, Бургас
гр. Бургас , кв. "Хоризонт"
Модерен дом в комплекс с удобства на минути от морето
Двустаен апартамент ново строителство в кв. „Азимут“, Бургас - Модерен дом в комплекс с удобства на минути от морето
Продажба
ново
Лукс
Луксозна дизайнерска къща с басейн в кв. Банево
гр. Бургас , кв. "Банево"
Двуетажен имот с панорамна тераса и озеленен двор
Луксозна дизайнерска къща с басейн в кв. Банево - Двуетажен имот с панорамна тераса и озеленен двор
Продажба
ново
Нов жилищен комплекс на 200 м от морето в кв. Сарафово
гр. Бургас , кв. "Сарафово"
Модерна сграда с разнообразие от апартаменти и отлична локация
Нов жилищен комплекс на 200 м от морето в кв. Сарафово - Модерна сграда с разнообразие от апартаменти и отлична локация
от 63 000 €(от 123 217,29 лв.)
(874 €/кв.м. - 1 501 €/кв.м.)(1 709,40 лв./кв.м. - 2 935,70 лв./кв.м.)Площ: 44.37 - 165.87 кв.м.
Павел Раванов
Старши брокер, Бургас
Продажба
ново
УПИ с панорамна гледка в кв. Банево, Бургас
гр. Бургас , кв. "Банево"
Парцел за еднофамилна къща с всички комуникации
УПИ с панорамна гледка в кв. Банево, Бургас - Парцел за еднофамилна къща с всички комуникации
Продажба
ново
Двустаен апартамент в нова сграда в ж.к. Меден рудник – зона В, Бургас
гр. Бургас , кв. "Меден рудник - зона В"
Жилище с отлична локация до терминала и парка в Бургас, с гледка към зелени пространства
Двустаен апартамент в нова сграда в ж.к. Меден рудник – зона В, Бургас - Жилище с отлична локация до терминала и парка в Бургас, с гледка към зелени пространства
Продажба
ново
Инвестиционен парцел до магазин Джъмбо в Бургас
гр. Бургас , кв. "Ветрен"
Земеделска земя с отлична локация и потенциал за бизнес развитие
Инвестиционен парцел до магазин Джъмбо в Бургас - Земеделска земя с отлична локация и потенциал за бизнес развитие
Продажба
Модерен жилищен проект в ж.к. Славейков, Бургас
гр. Бургас , кв. "Славейков"
Съвременни двустайни и тристайни жилища, и мезонети с отлична локация и висок клас изпълнение
Модерен жилищен проект в ж.к. Славейков, Бургас - Съвременни двустайни и тристайни жилища, и мезонети с отлична локация и висок клас изпълнение
от 129 100 €(от 252 497,65 лв.)
(1 200 €/кв.м. - 2 000 €/кв.м.)(2 347 лв./кв.м. - 3 911,66 лв./кв.м.)Площ: 74.62 - 314.30 кв.м.
Георги Иванов
Брокер, Бургас
Продажба
Новострояща се жилищна сграда в кв. Сарафово
гр. Бургас , кв. "Сарафово"
Последни оставащи апартаменти на 500 м от плажа
Новострояща се жилищна сграда в кв. Сарафово - Последни оставащи апартаменти на 500 м от плажа
от 92 032 €(от 179 998,95 лв.)
(1 250 €/кв.м.)(2 444,64 лв./кв.м.)Площ: 73.63 - 73.63 кв.м.
Павел Раванов
Старши брокер, Бургас
Наем
Офис под наем на минути от Морската градина и центъра на гр. Бургас
гр. Бургас , кв. "Лазур"
Офис с отлично разпределение в бизнес сграда
Офис под наем на минути от Морската градина и центъра на гр. Бургас - Офис с отлично разпределение в бизнес сграда
Продажба
Мезонет в ж.к. Възраждане, Бургас
гр. Бургас , кв. "Възраждане"
Апартамент на две нива в близост до централната градска част
Мезонет в ж.к. Възраждане, Бургас - Апартамент на две нива в близост до централната градска част
Наем
Обзаведен пентхаус с морска панорама в кв. Сарафово
гр. Бургас , кв. "Сарафово"
Просторно жилище с голяма тераса и отлична локация
Обзаведен пентхаус с морска панорама в кв. Сарафово - Просторно жилище с голяма тераса и отлична локация
Продажба
Двустаен апартамент в Сарафово, на пешеходно разстояние от плажа
гр. Бургас , кв. "Сарафово"
Отлично разположение в спокойната и предпочитана зона на Сарафово
Двустаен апартамент в Сарафово, на пешеходно разстояние от плажа - Отлично разположение в спокойната и предпочитана зона на Сарафово
Продажба
Нов жилищен проект в кс. Меден рудник - зона Б
гр. Бургас , кв. "Меден рудник - зона Б"
Новострояща се сграда на главен булевард в град Бургас
Нов жилищен проект в кс. Меден рудник - зона Б - Новострояща се сграда на главен булевард в град Бургас
от 119 000 €(от 232 743,77 лв.)
(1 302 €/кв.м. - 1 396 €/кв.м.)(2 546,49 лв./кв.м. - 2 730,34 лв./кв.м.)Площ: 90.26 - 95.21 кв.м.
Павел Раванов
Старши брокер, Бургас
Продажба
Нов жилищен проект в развиващия се квартал Мадика
гр. Бургас , кв. "Мадика"
Модерна 7-етажна жилищна сграда с отлична локация и условия за комфортен градски живот
Нов жилищен проект в развиващия се квартал Мадика - Модерна 7-етажна жилищна сграда с отлична локация и условия за комфортен градски живот
от 99 782 €(от 195 156,63 лв.)
(1 400 €/кв.м. - 1 500 €/кв.м.)(2 738,16 лв./кв.м. - 2 933,75 лв./кв.м.)Площ: 69.29 - 104.60 кв.м.
Павел Раванов
Старши брокер, Бургас
Продажба
Обзаведено студио с прилежащ двор в кв. Крайморие
гр. Бургас , кв. "Крайморие"
Партерно студио с Акт 16 и самостоятелен вход на 100 метра от плажа
Обзаведено студио с прилежащ двор в кв. Крайморие - Партерно студио с Акт 16 и самостоятелен вход на 100 метра от плажа
Продажба
Нов модерен жилищен проект в предпочитан район на гр. Бургас
гр. Бургас , кв. "Меден рудник - зона Г"
Съвременна сграда с функционални апартаменти, удобна локация и отличен инвестиционен потенциал
Нов модерен жилищен проект в предпочитан район на гр. Бургас - Съвременна сграда с функционални апартаменти, удобна локация и отличен инвестиционен потенциал
от 41 873 €(от 81 896,47 лв.)
(988 €/кв.м. - 1 184 €/кв.м.)(1 932,36 лв./кв.м. - 2 315,70 лв./кв.м.)Площ: 36.41 - 80.58 кв.м.
Павел Раванов
Старши брокер, Бургас
Наем
Двустаен апартамент с отделна кухня до центъра на Бургас
гр. Бургас , кв. "Възраждане"
Обзаведено жилище под наем на ул. „Оборище“ на минути от Морската градина
Двустаен апартамент с отделна кухня до центъра на Бургас - Обзаведено жилище под наем на ул. „Оборище“ на минути от Морската градина
Наем
Помещение под наем с лице към централен булевард в гр. Бургас
гр. Бургас , кв. "Център"
Имот с топ локация в централната част на града
Помещение под наем с лице към централен булевард в гр. Бургас - Имот с топ локация в централната част на града
Вижте още имоти в кв. "Мадика" в град Бургас:
- Апартаменти (различни типове) в кв. "Мадика"
- Къщи в кв. "Мадика"
- Офиси в кв. "Мадика"
- Магазини в кв. "Мадика"
- Земи в кв. "Мадика"
- Всички имоти в кв. "Мадика"
Вижте още имоти в град Бургас:
Абонирайте се за нашия канал