Представяме ви къща на груб строеж с отличен потенциал, разположена в китното село Поповяне – само на 32 км от Боровец и 41 км от София. Имотът съчетава спокойствието на планината, удобството на лесен достъп до града и близостта до едни от най-известните зимни и СПА курорти в страната.
• Застроена площ (ЗП): 116,8 кв.м
• Разгъната застроена площ (РЗП): 235,5 кв.м
• Двор: 557 кв.м
• Конструкция: железобетон и тухла
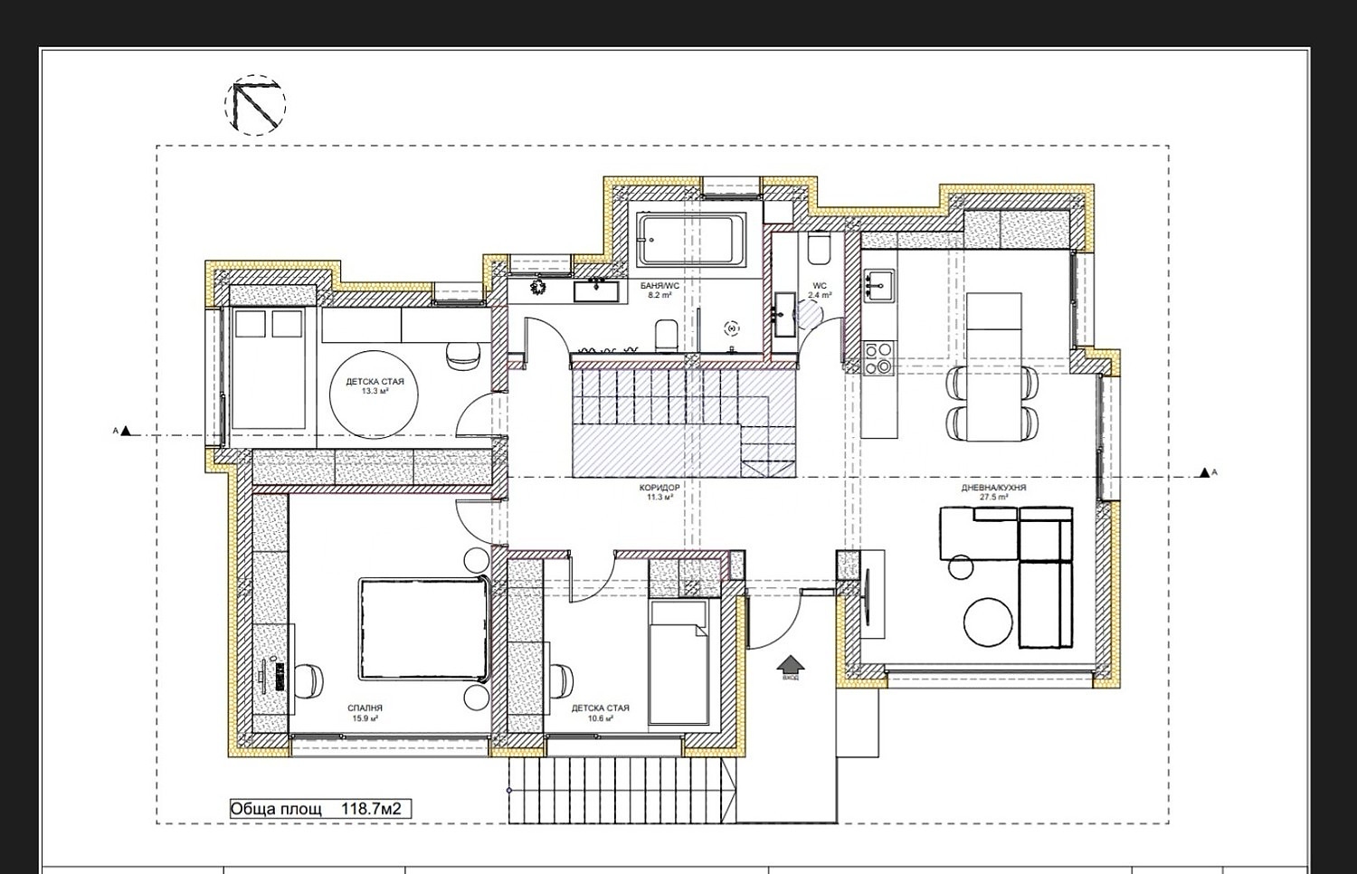
Разпределение по идеен проект:
• Първи етаж: коридор и стълбище, гараж, техническо помещение/работилница, мокро помещение, баня с тоалетна, склад.
• Втори етаж: просторна всекидневна с трапезария и кухненски бокс, три спални, баня с тоалетна, допълнителен санитарен възел.
Предимства на имота:
• лице 20 м към централната улица на селото, само на 120 м от кметството;
• две отделни партиди за трифазен ток;
• действащ кладенец с постоянна вода;
• нов архитектурен проект, включен в офертата;
• водопровод преминава по тротоара пред парцела (готовност за включване).
Село Поповяне е разположено в полите на Плана планина, в долината на река Палакария, с надморска височина от 970 м. От високите части се откриват живописни гледки към Витоша, Рила и Верила. Районът е известен с чистия въздух, природните си красоти и възможностите за отдих на открито.
В селото има конна база с ездитни коне, а само на 7 км е с. Белчин – популярна дестинация със своите минерални извори и комплекса „Цари Мали град“.
Този имот е идеална инвестиция за хора, които търсят къща близо до София и Боровец.
Оглед на имота
Можем да организираме оглед на имота спрямо нашия график и възможностите за достъп до него. Заявете вашето желание за оглед, като се свържете с отговорния за офертата брокер по имейл или телефон.
Резервация на имота
Имотът може да бъде резервиран и свален от продажба със заплащане на депозит, след което се прекратява провеждането на огледи с други купувачи и започва подготовка на документите за сключване на предварителен и окончателен договор. Свържете се с отговорния брокер за подробна информация относно процедурата на покупка и начините за плащане.
Жилищен кредит
Ние си партнираме с водещите български банки и можем да ви свържем с техните консултанти за информация и кандидатстване за кредит.
Продажба
ново
Къща на груб строеж с двор и гараж в живописното село Поповяне, до Боровец
Близо до к.к. БоровецПросторен имот с архитектурен проект, двор 557 кв.м и панорамни гледки към планините
Местоположение
с. Поповяне, Близо до к.к. Боровец- Най-близко разположен град Самоков, около 18 км.
Населеното място разполага с:
- Поща/Куриер
- Автобусна спирка
- Хранителен магазин
- Река
- Язовир
- Район без промишленост
- Кафене
- Манастир
- Кметство
- Най-близкото летище се намира в Sofiya (SOF), на около 45 км.
Удобства в района
- Автобусна спирка "НАЧАЛО С. ПЛАНА" на 7.4 км. - Автобус No: 70
- Детска градина на 12.8 км.
- Детска градина "Детска градина" на 16.2 км.
- Училище на 7.5 км.
- Училище "ОУ Васил Левски" на 7.5 км.
- Болница на 12.3 км.
- Болница "Медицински център" на 17.8 км.
- Медицински център "Bodimed" на 19.3 км.
- Хранителен магазин на 144 м. (2 мин.)
- Супермаркет "Bravo" на 14.5 км.
- Супермаркет "Фреш Маркет" на 16.1 км.
- Пазар на 13.2 км.
- Мол на 19.5 км.
- Банка "International Asset Bank" на 16.6 км.
- Банка на 19.5 км.
- Банкомат "International Asset Bank" на 16.6 км.
- Банкомат на 19.5 км.
- Аптека "Мишел" на 17.1 км.
- Поща/Куриер на 313 м. (4 мин.)
- Поща/Куриер "Пощенска станция" на 7.4 км.
- Фризьорски салон на 19.5 км.
- Салон за красота "Рая" на 18.0 км.
- Ветеринарен лекар на 19.5 км.
- Ресторант "Изворът" на 7.3 км.
- Ресторант "Ресторант "Белчин"" на 7.4 км.
- Кафене на 7.4 км.
- Бар "Елена" на 14.5 км.
- Казино на 19.6 км.
- Детска площадка на 7.8 км.
- Фитнес зала "Olymp gym" на 16.5 км.
- Плувен басейн на 7.3 км.
- Спортен терен "Белчин парк" на 7.7 км.
- Тенис корт на 7.2 км.
- Театър на 19.6 км.
- Театър "Софийска опера и балет" на 19.9 км.
- Музей "Музеен комплекс с. Белчин" на 7.8 км.
- Музей на 8.2 км.
- Риболов "Рибарник" на 6.3 км.
- Голф игрище на 15.5 км.
- Парк на 7.3 км.
- Градина на 272 м. (4 мин.)
- Паркинг на 6.0 км.
- Бензиностанция "Бензиностанция "Petrogas"" на 14.1 км.
- Зарядна станция на 7.3 км.
- Автомивка на 18.6 км.
- Автосервиз "Autocenter Ogi" на 19.1 км.
- Съд "Районен съд Самоков" на 19.8 км.
- Библиотека "Читалище "Просветен лъч 1905"" на 16.6 км.
- Църква "Свети Апостоли Петър и Павел" на 7.6 км.
- Манастир "м-р Св. Георги" на 1.5 км.
ТРАНСПОРТ
УЧЕБНИ ЗАВЕДЕНИЯ
ЛЕЧЕБНИ ЗАВЕДЕНИЯ
ПАЗАРУВАНЕ
УСЛУГИ
ЗАВЕДЕНИЯ
СПОРТ И СВОБОДНО ВРЕМЕ
ПРИРОДА И ЗАБЕЛЕЖИТЕЛНОСТИ
АВТОМОБИЛНИ УСЛУГИ
ОБЩЕСТВЕНИ СГРАДИ И ИНСТИТУЦИИ
Изпратете запитване
60 000 €
(117 349,80 лв.)
- €
- $
- £
Дължима комисиона
*/ ?>
ЗА ПОВЕЧЕ ИНФОРМАЦИЯ
Реф. номер: Bo 88316
При обаждане, моля цитирайте референтния номер на имота.
