Еко селище разположено в средата на България в очарователни, девствени селски райони с богати флора и фауна. Комплексът предлага спираща дъха гледки към величествената Стара планина. Местните пейзажи са недокоснати от съвременния начин на живот и запазването на естествената си красота е ангажимент, който селището е поело. Вековни дървета, римски пътища и стени, скрити дълбоко в гората сладководни извори, са само някои от неоткритите красоти на естествената околна среда в този прекрасен район.
Намира се между градовете Велико Търново и Габрово, близо до гр. Дряново – само на 3–4 км от Дряновския манастир и пещера Бачо Киро, едни от популярните туристически забележителности в региона. Локацията съчетава тишината на природата с близостта до исторически и културни обекти, което прави имотите тук отлична възможност както за лично ползване, така и за инвестиция в къщи за гости. На площ от 67 000 кв. м. са изградени 75 самостоятелни къщи, вписани в естествения релеф и заобикалящата зеленина.
Всички сезони, всички поколения, едно място! Място, чийто потенциал надхвърля граници.
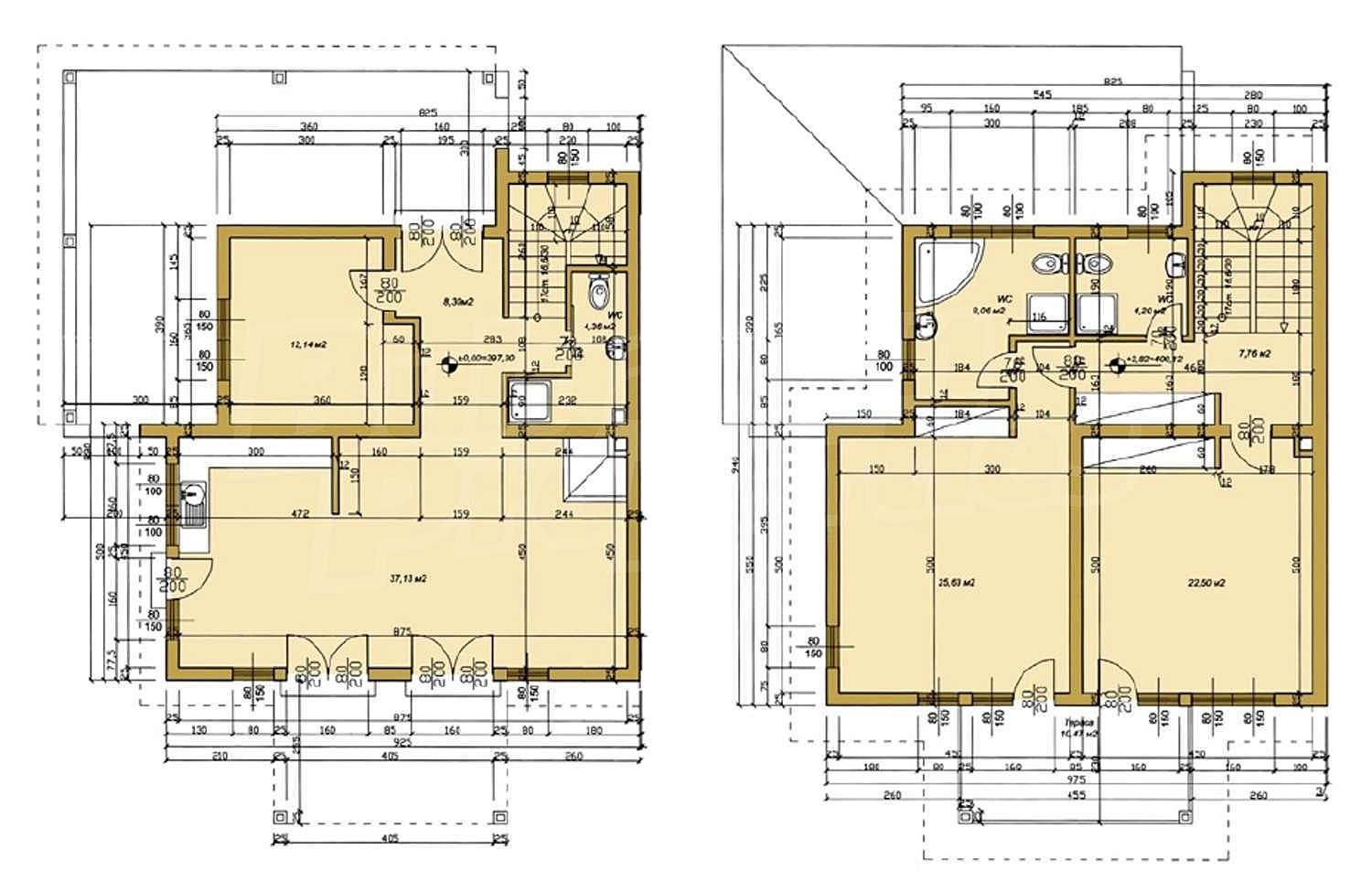
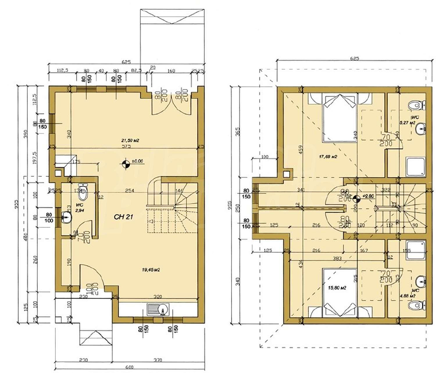
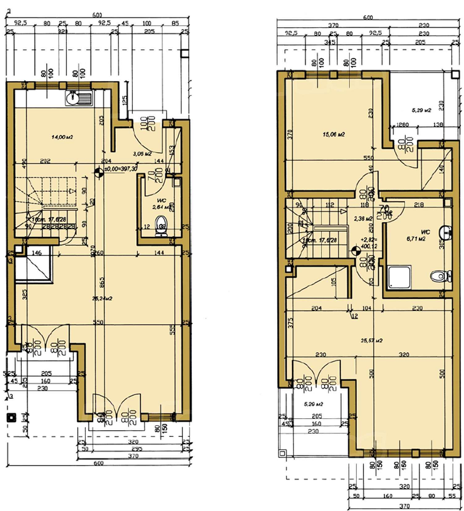
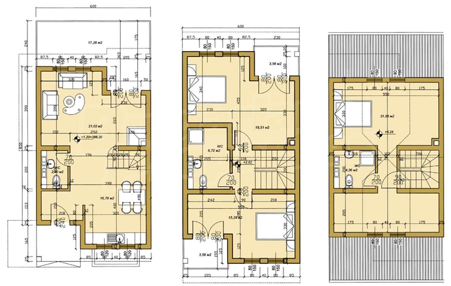
Тук ще откриете 38 налични за продажби къщи с оборудване по избор за кухни, всекидневни, 2, 3 или 4 спални, с площи от 118 кв. м. до 254 кв. м., проектирани в традиционен архитектурен стил и изпълнени с внимание към детайла.
Сградите са монолитни, със стоманобетонова конструкция, тухлени стени с вароциментова мазилка (без гипсокартон), покриви с дървена конструкция и керемиди Bramac. Фасадите са с топлоизолация, минерална мазилка и декоративен щампован бетон.
Къщите се предлагат с 95% завършеност – шпакловани и боядисани стени и тавани, напълно завършени и оборудвани бани със стъклени душ кабини, подове в коридори, дневни и стълбища с плочки, изградени камини, пълно окабеляване за отоплителни/охладителни системи, сигурност и комуникации. Има възможност за цялостно оборудване и обзавеждане по желание на бъдещия собственик.
„Геша Хилс Парк” предлага среда, подходяща както за постоянно живеене, така и за ваканционен отдих – без автомобили в селището, със собствен горски парк от 18 000 кв. м., алеи, зелени площи и зашеметяващи гледки.
Централната сграда „Кортярд” ще бъде многофункционална, съчетаваща всичко необходимо за комфортен и активен живот – заведения за хранене, конферентни зали, офис за споделена работа, фитнес салон, детска занималня, разнообразни търговски обекти и уелнес център.
В живописната паркова среда ще ви очакват открит басейн, детски кът и уютни зони за релакс, където да се насладите на пълноценна почивка и спокойствие.
Оглед на имота
Можем да организираме оглед на имота спрямо нашия график и възможностите за достъп до него. Заявете вашето желание за оглед, като се свържете с отговорния за офертата брокер по имейл или телефон.
Резервация на имота
Имотът може да бъде резервиран и свален от продажба със заплащане на депозит, след което се прекратява провеждането на огледи с други купувачи и започва подготовка на документите за сключване на предварителен и окончателен договор. Свържете се с отговорния брокер за подробна информация относно процедурата на покупка и начините за плащане.
Жилищен кредит
Ние си партнираме с водещите български банки и можем да ви свържем с техните консултанти за информация и кандидатстване за кредит.
Продажба
частни лица
Лукс
Къщи в уникално ваканционно селище в подножието на Стара планина
Близо до гр. ГабровоКъщи монолитно строителство в еко-комплекс в село Геша
Характеристики на имота
Реф. номер
VT 87878
Площ
130.00 м2
Спални
2
Състояние
отлично
Брой етажи
2
Обзавеждане
Обзаведен/необзаведен
Отопление
Електрически уреди / Камина / Климатици / Конвекторни радиатори / Локално парно / Парно на ток / Подово отопление / Термопомпа
Тип строителство
Стоманобетонна конструкция, Тухла, Ново строителство
Двор
50 м2
Климатизация
Климатици инверторни
Такса поддръжка
6 евро/11.73 лв/кв. м./година
Местоположение
с. Геша, Близо до гр. ГабровоУдобства в района
- Детска градина "Детска ясла" на 2.9 км.
- Детска градина "ЦДГ "Детелина"" на 3.3 км.
- Училище "СУ "Максим Райкович"" на 3.1 км.
- Училище "ПГИ "Рачо Стоянов"" на 3.3 км.
- Колеж "Институт "Конфуций"" на 19.5 км.
- Университет на 13.7 км.
- Университет "Технически университет - Габрово - Ректорат (Корпус 3)" на 15.3 км.
- Болница "Детска специализирана болница за белодробни заболявания Царица Йоана" на 13.2 км.
- Болница "Районна болница Д-р Теодоси Витанов" на 13.3 км.
- Хранителен магазин на 3.0 км.
- Супермаркет "Аристон" на 2.1 км.
- Супермаркет "Бурлекс" на 3.2 км.
- Пазар "Пазара на Дряново" на 3.5 км.
- Зоо магазин "Нечовешки магазин" на 17.8 км.
- Мол "Терра Мол - Габрово" на 14.7 км.
- Банка "ОББ" на 3.3 км.
- Банка "Банка ДСК" на 3.3 км.
- Банкомат "ОББ" на 3.3 км.
- Банкомат "Банка ДСК" на 3.3 км.
- Аптека "Оптима" на 3.1 км.
- Поща/Куриер "Пощенска станция 5370" на 3.3 км.
- Поща/Куриер "Speedy" на 3.3 км.
- Фризьорски салон "Галия" на 14.1 км.
- Салон за красота "Bulgarian Rose" на 18.9 км.
- Ветеринарен лекар на 15.2 км.
- Ресторант "Хотел дряново" на 2.4 км.
- Ресторант "Емси" на 3.3 км.
- Бар "MODA BAR" на 15.3 км.
- Нощен клуб "Червения тайфун" на 13.6 км.
- Казино "Spolay" на 15.0 км.
- Детска площадка "Баничарница" на 13.7 км.
- Фитнес зала "фитнес център EPIC GYM" на 13.8 км.
- Плувен басейн на 116 м. (2 мин.)
- Спортен терен "Спортна зала" на 3.2 км.
- Тенис корт на 2.4 км.
- Театър на 3.2 км.
- Театър на 13.5 км.
- Кино "Kinopolis" на 15.8 км.
- Музей "Икономова къща" на 3.2 км.
- Музей "Лафчиева къща" на 3.3 км.
- Парк "Gesha View" на 230 м. (3 мин.)
- Градина на 1.1 км. (14 мин.)
- Паркинг на 1.6 км.
- Бензиностанция "LPG" на 2.0 км.
- Зарядна станция "Fines Charging" на 11.5 км.
- Автомивка на 12.5 км.
- Съд "Съдебна палата" на 3.3 км.
- Библиотека "Народно читалище 1929 Христо Ботев" на 9.2 км.
- Църква на 5.8 км.
- Манастир "Девически манастир "Свети Пантелеймон" на 19.6 км.
ТРАНСПОРТ
УЧЕБНИ ЗАВЕДЕНИЯ
ЛЕЧЕБНИ ЗАВЕДЕНИЯ
ПАЗАРУВАНЕ
УСЛУГИ
ЗАВЕДЕНИЯ
СПОРТ И СВОБОДНО ВРЕМЕ
ПРИРОДА И ЗАБЕЛЕЖИТЕЛНОСТИ
АВТОМОБИЛНИ УСЛУГИ
ОБЩЕСТВЕНИ СГРАДИ И ИНСТИТУЦИИ
Изпратете запитване
105 000 €
(205 362,15 лв.)
- €
- $
- £
За частни лица
Дължима комисиона
*/ ?>
ЗА ПОВЕЧЕ ИНФОРМАЦИЯ
Реф. номер: VT 87878
При обаждане, моля цитирайте референтния номер на имота.