Представяме на вашето внимание нов проект за строеж на жилищна сграда с РЗП 6730 кв.м. и два самостоятелни входа, съответно с осем и единадесет етажа, с един общ подземен етаж, находяща се в един от най-бързоразвиващите се квартали в София – Дружба 1. Районът е предпочитан за бизнес, което гарантира сигурна възвращаемост при покупка с цел инвестиция. Отлично място за живеене, което съчетава лесен достъп до центъра на града, както и бърз изход от София.
Срок за започване на строителството - ноември 2019 год. Срок за завършване на сградата - 24 месеца.
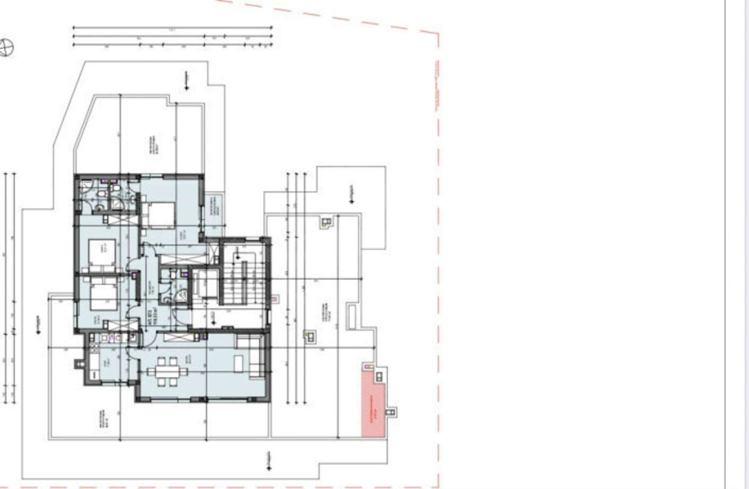
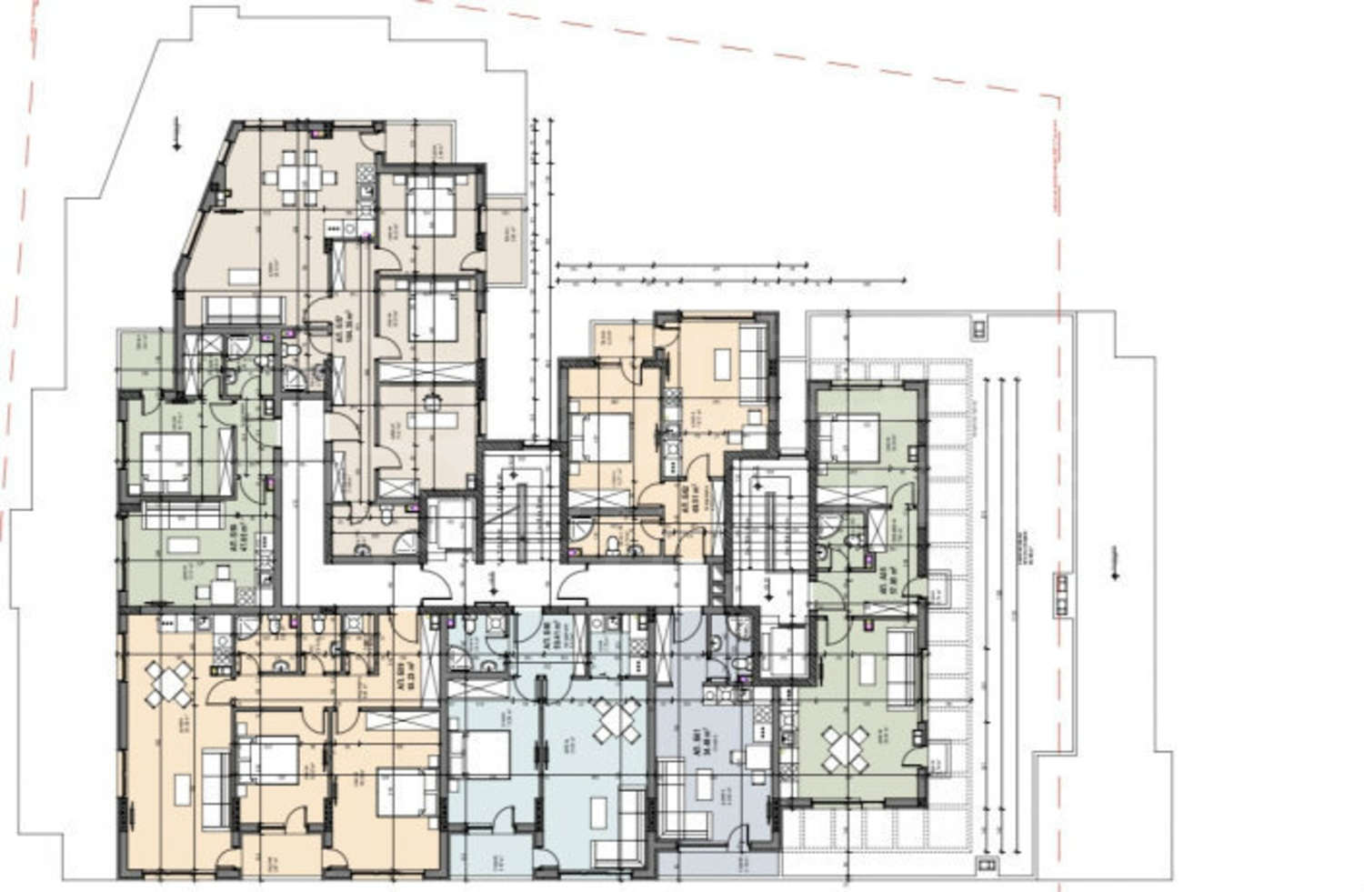
Продават се едностайни, двустайни и тристайни апартаменти, с площ от 34 кв.м. до 118 кв.м. Жилищата се издават на шпакловка и замазка, с ПВЦ дограми, външна изолация, локално парно.
Имотът се характеризира с перфектна локация от гледна точка на градски транспорт – спирки на автобус 404, тролейбуси 4 и 11, както и трамвай 20 и 23. На 5 минути пешеходно разстояние се намира спортната зала “LONSDALE”, както и спортното училище “Ген. Владимир Стойчев”, в непосредствена близост до хипермаркет Кауфланд, заведения за хранене и други магазини за хранителни стоки, Комисия за защита на личните данни, бензиностанция, спортни комплекси. На 10 минути е разположена волейболната зала “Васил Симов” и най-голямото спортно и развлекателно съоръжение у нас зала “Арена Армеец”.
Защо да закупите апартамент в сградата?
• Функционално разпределени едностайни, двустайни и тристайни апартаменти
• Перфектно местоположение от гледна точка на градския транспорт
• Пешеходно разстояния до супермаркет, училища, спортни центрове
• Отлична жилищна среда с лесен достъп до центъра на града, както и с бърз изход от София
• Предпочитан бизнес район, гарантиращ сигурна възвращаемост при покупка с цел инвестиция
Оглед на имота
Можем да организираме оглед на имота в удобно за вас време. За целта, свържете се с отговорния за офертата брокер и му кажете кога бихте искали да направите оглед.
Резервация на имота
Имотът може да бъде резервиран и свален от продажба със заплащане на депозит, след което се прекратява провеждането на огледи с други купувачи и започва подготовка на документите за сключване на предварителен и окончателен договор. Свържете се с отговорния брокер за този имот за подробна информация относно процедурата на покупка и начините за плащане.
Допълнителни услуги и следпродажбено обслужване
Ние сме реномирана компания и ще бъдем с вас не само по време на покупката, но и след това, осигурявайки ви допълнителни услуги по ваше изискване с цел пълноценно и безпроблемно ползване на новозакупения имот. Услугите, които можем да предложим, включват застраховка на движимо и недвижимо имущество, застраховка живот, медицинско и автомобилно застраховане, строителни и ремонтни дейности, обзавеждане, юридически и счетоводни услуги и др.
частни лица
Невалидна оферта
ПРОДАДЕН
Нова жилищна сграда с комуникативна локация кв. Дружба 1
гр. София, кв."Дружба 1"Едностайни, двустайни и тристайни апартаменти до спортни зали, училища и супермаркет
Характеристики на имота
Тип на имота
Апартамент, Едностаен апартамент, Двустаен апартамент, Тристаен апартамент, Гараж
Реф. номер
Sfa 73617
Площ
108.80 м2 (чиста площ: 93.23 м2 плюс общи части: 15.57 м2)
Спални
1,2
Състояние
прочетете текста
Етаж
2,11 от 11
Обзавеждане
Необзаведен
Отопление
Локално парно
Тип строителство
Тухла, Ново строителство
Двор
не
Година на построяване
2021
Местоположение
гр. София, кв."Дружба 1"Удобства в района
- Автобусна спирка "БУЛ. ПРОФ.ЦВ. ЛАЗАРОВ" на 158 м. (2 мин.) - Автобус No: 404
- Тролейбусна спирка "БУЛ. ПРОФ.ЦВ. ЛАЗАРОВ" на 158 м. (2 мин.) - Тролейбус No: 4
- Трамвайна спирка "Ж.К. ГЕО МИЛЕВ" на 848 м. (11 мин.) - Трамвай No: 20
- Детска градина "ЦДГ №54" на 496 м. (6 мин.)
- Детска градина "ЧДГ „Джани РоДари”" на 891 м. (11 мин.)
- Училище "Спортно училище Ген. Вл. Стойчев" на 143 м. (2 мин.)
- Училище "ЧОУ "Образователни технологии"" на 526 м. (7 мин.)
- Университет "Висше транспортно училище Тодор Каблешков" на 637 м. (8 мин.)
- Университет "Университет по библиотекознание и информационни технологии" на 931 м. (12 мин.)
- Болница "ЗФ Свети Георги - ОХХ Груп АД" на 661 м. (8 мин.)
- Болница "Медицински Център Хармония ООД" на 1.2 км. (15 мин.)
- Медицински център "Медицински център Анаста" на 763 м. (10 мин.)
- Хранителен магазин на 455 м. (6 мин.)
- Супермаркет "Kaufland" на 338 м. (5 мин.)
- Супермаркет "Т-Маркет" на 959 м. (12 мин.)
- Пазар "Борса "Къра"" на 392 м. (5 мин.)
- Пекарна "Ни-Кай" на 1.2 км. (15 мин.)
- Мол "Sky City" на 1.2 км. (15 мин.)
- Банка "Обединена Българска Банка" на 989 м. (12 мин.)
- Банка "Райфайзенбанк (България) ЕАД" на 1.0 км. (13 мин.)
- Аптека на 938 м. (12 мин.)
- Поща/Куриер "Econt" на 814 м. (10 мин.)
- Поща/Куриер "Econt" на 1.1 км. (14 мин.)
- Фризьорски салон "Стилисиммо - Слатина" на 985 м. (12 мин.)
- Салон за красота "Венера" на 1.2 км. (15 мин.)
- Ресторант "Da Massimo" на 279 м. (4 мин.)
- Ресторант "Пицария Конти" на 898 м. (11 мин.)
- Кафене "Green Sport" на 420 м. (6 мин.)
- Бар на 957 м. (12 мин.)
- Казино "Mystic" на 1.1 км. (14 мин.)
- Фитнес зала "Фитнес клуб ЦСКА" на 189 м. (3 мин.)
- Плувен басейн на 505 м. (7 мин.)
- Спортен терен "Спортна зала" на 191 м. (3 мин.)
- Тенис корт на 585 м. (8 мин.)
- Музей "TechnoMagicLand" на 957 м. (12 мин.)
- Спа център на 1.2 км. (15 мин.)
- Парк на 458 м. (6 мин.)
- Градина на 1.1 км. (14 мин.)
- Паркинг на 284 м. (4 мин.)
- Бензиностанция "Бензиностанция Круиз" на 98 м. (2 мин.)
- Автомивка на 275 м. (4 мин.)
- Автосервиз "Dunev Motor Sport" на 271 м. (4 мин.)
- Църква "Свети Великомъченик Мина" на 1.2 км. (15 мин.)
ТРАНСПОРТ
УЧЕБНИ ЗАВЕДЕНИЯ
ЛЕЧЕБНИ ЗАВЕДЕНИЯ
ПАЗАРУВАНЕ
УСЛУГИ
ЗАВЕДЕНИЯ
СПОРТ И СВОБОДНО ВРЕМЕ
ПРИРОДА И ЗАБЕЛЕЖИТЕЛНОСТИ
АВТОМОБИЛНИ УСЛУГИ
ОБЩЕСТВЕНИ СГРАДИ И ИНСТИТУЦИИ
Изпратете запитване
Тази оферта е невалидна
Моля свържете се с нас, за да ви предложим други оферти, които отговарят на вашите изисквания.
Тази оферта е невалидна
Моля свържете се с нас, за да ви предложим други оферти, които отговарят на вашите изисквания.
*/ ?>
ЗА ПОВЕЧЕ ИНФОРМАЦИЯ
Реф. номер: Sfa 73617
При обаждане, моля цитирайте референтния номер на имота.

6
имота
0
свободни
6
продадени
0
резервирани
Изпратете запитване
Вижте още имоти в кв. "Дружба 1" в град София:
- Апартаменти (различни типове) в кв. "Дружба 1"
- Къщи в кв. "Дружба 1"
- Офиси в кв. "Дружба 1"
- Магазини в кв. "Дружба 1"
- Земи в кв. "Дружба 1"
- Всички имоти в кв. "Дружба 1"