Отлични жилища в нов проект в гр. Бургас, ж. к. Славейков на тихо и спокойно място, на метри от КАТ Бургас и главната артерия към центъра на града, свързваща го със Северното и Южното Черноморие. В близост централна спирка на градския транспорт, търговски център Галерия и хипермаркет Лидл и Кауфланд.
Районът е най-активно развиващата се зона в момента, обещава да конкурира останалите части на града с ред предимства: бърз и лесен достъп до основните пътни артерии, изцяло нова инфраструктура, висока степен на комфорт на живущите, нови технологии. В близост има училища, детски градини, болница Сърце и Мозък, Учителския Институт, Университет „Проф. д-р Асен Златаров“ и Мол Галерия Бургас.
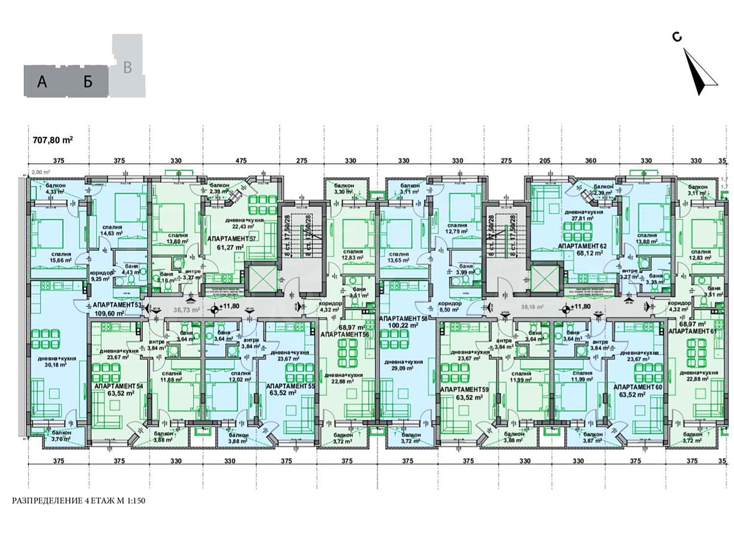
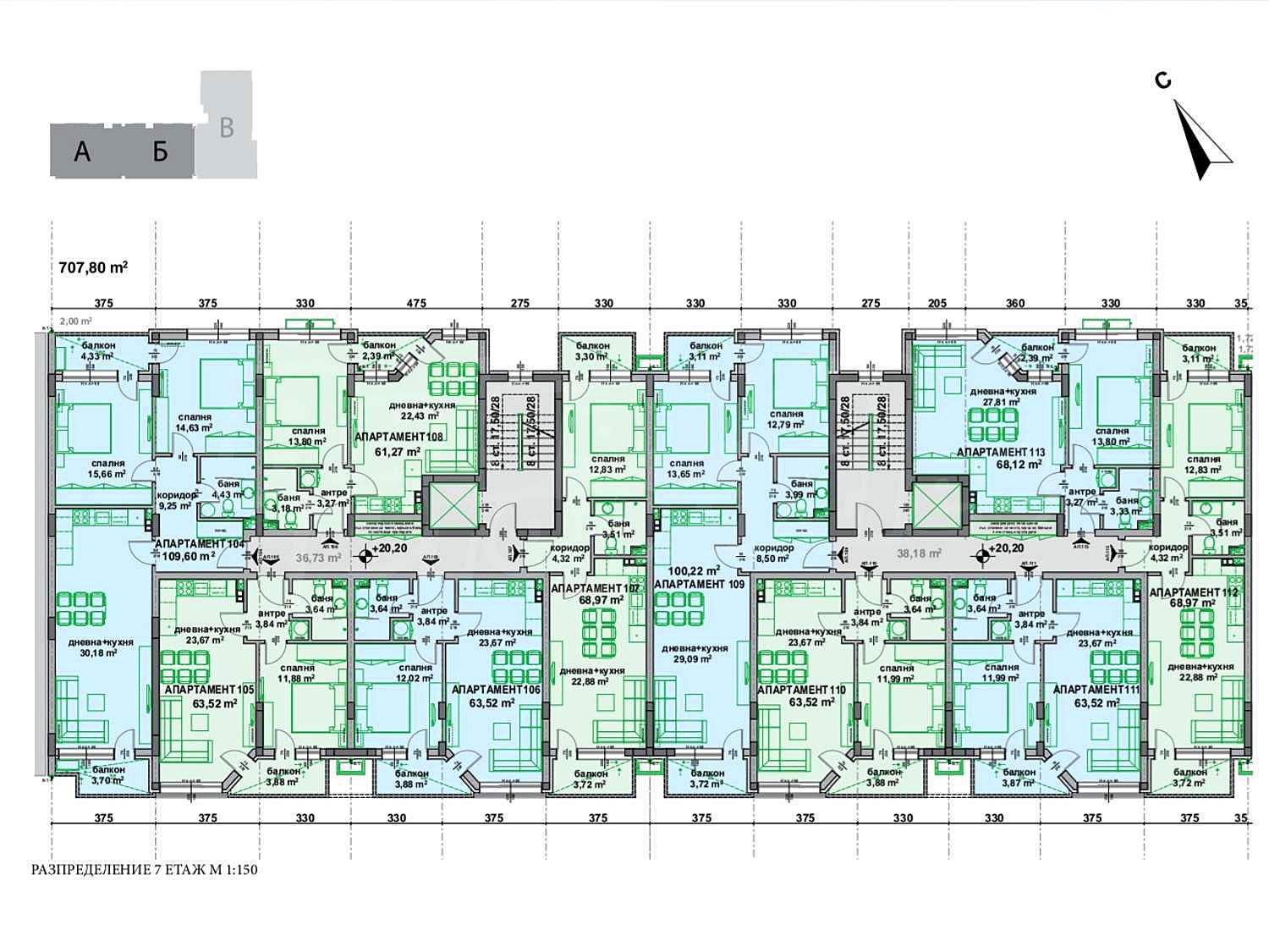
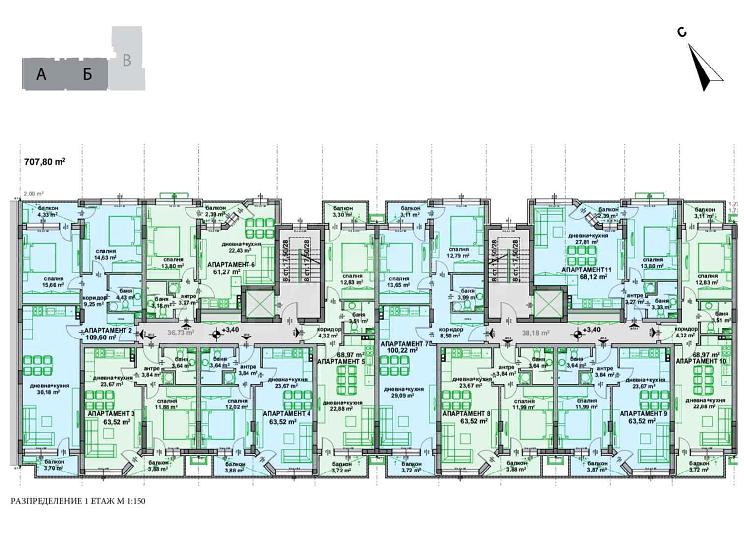
Проектът е разположен върху парцел с площ 2 775 кв.м., със сградна част РЗП 13 450кв.м., като надземната стоманобетонна конструкция е над 11 000кв.м. Обособени са 3бр. жилищни входа, всеки с отделен асансьор, като за целия парцел е предвидена собствена ограда.
Предвидени са 9 бр. Ателиета, 1 бр. Едностаен Апартамент, 118 бр. Двустайни Апартамента, 25 бр. Тристайни Апартамента. Жилищата са проектирани така че изложенията им да са основно юг, изток, запад, което гарантира топлина, уют и светлина. Помещенията са просторни, рационално разпределени за нуждите на собствениците им.
Предвидени са висококачествени материали в изграждането на сградата, отговарящи на съответните евро и БДС стандарти. Степен на завършеност на имотите:
• стени и таван на гипсова мазилка;
• под: циментова замазка;
• ВиК-инсталации завършени на тапа;
• електрическа инсталация;
• PVC дограма;
• блиндирана входна врата.
Сградата се характеризира с прекрасно местоположение в близост до много училища, детски градини, големи хипермаркети и спортен комплекс Славейков, районно полоцейско управление и териториална дирекция на община Бургас. Регионът има чудесна инфраструктура, два парка, плувен комплекс, спортна зала, търговски обекти, хипермаркети, медицински център и пощенски клон.
Оглед на имота
Можем да организираме оглед на имота в удобно за вас време. За целта, свържете се с отговорния за офертата брокер и му кажете кога бихте искали да направите оглед.
Резервация на имота
Имотът може да бъде резервиран и свален от продажба със заплащане на депозит, след което се прекратява провеждането на огледи с други купувачи и започва подготовка на документите за сключване на предварителен и окончателен договор. Свържете се с отговорния брокер за този имот за подробна информация относно процедурата на покупка и начините за плащане.
Допълнителни услуги и следпродажбено обслужване
Ние сме реномирана компания и ще бъдем с вас не само по време на покупката, но и след това, осигурявайки ви допълнителни услуги по ваше изискване с цел пълноценно и безпроблемно ползване на новозакупения имот. Услугите, които можем да предложим, включват застраховка на движимо и недвижимо имущество, застраховка живот, медицинско и автомобилно застраховане, строителни и ремонтни дейности, обзавеждане, юридически и счетоводни услуги и др.
Продажба
-55%
Хит
Невалидна оферта
Сграда с напредващо строителство в новия кв. Мадика
гр. Бургас, кв."Мадика"Нови жилища с топ локация в Бургас
Характеристики на имота
Тип на имота
Апартаменти (различни типове), Едностайни апартаменти, Двустайни апартаменти, Тристайни апартаменти, Офиси, Гаражи
Реф. номер
BS 80172
Площ
27.63 м2 (чиста площ: 23.84 м2 плюс общи части: 3.79 м2)
Спални
0,1,2
Състояние
БДС (на шпакловка и замазка)
Етаж
1-9 от 9
Асансьор
да
Обзавеждане
Необзаведен
Отопление
Електрически уреди / Климатици
Тип строителство
Тухла, Ново строителство
Изложение:
Изток, Запад, Юг
Година на построяване
2024
Местоположение
гр. Бургас, кв."Мадика"Удобства в района
- Детска градина "ОДЗ №15 "Моряче"" на 554 м. (7 мин.)
- Детска градина "ЦДГ-28 Детелина" на 841 м. (11 мин.)
- Училище "НБУ "Михаил Лъкатник"" на 750 м. (10 мин.)
- Училище "НБУ Михаил Лъкатник" на 763 м. (10 мин.)
- Университет "Унив. "Проф. д-р Асен Златаров"" на 786 м. (10 мин.)
- Университет "Университет Проф. Д-р Асен Златаров Педагогически факултет" на 807 м. (10 мин.)
- Медицински център "Медецински център 2" на 489 м. (6 мин.)
- Хранителен магазин "Минимаркет" на 1.1 км. (14 мин.)
- Супермаркет "Лидъл" на 371 м. (5 мин.)
- Супермаркет "Кауфланд" на 1.2 км. (15 мин.)
- Аптека "Аптека Пулс" на 1.0 км. (13 мин.)
- Поща/Куриер "Econt" на 268 м. (4 мин.)
- Поща/Куриер "Econt" на 1.2 км. (15 мин.)
- Ресторант "Шан Хай" на 941 м. (12 мин.)
- Ресторант "Механа Балканска Среща" на 1.1 км. (14 мин.)
- Кафене на 1.0 км. (13 мин.)
- Спортен терен на 619 м. (8 мин.)
- Тенис корт на 712 м. (9 мин.)
- Парк на 271 м. (4 мин.)
- Паркинг на 147 м. (2 мин.)
- Бензиностанция "SNG Газстанция" на 249 м. (3 мин.)
- Автомивка "Ауто Фреш" на 1.1 км. (14 мин.)
- Автосервиз "AutoBOX" на 152 м. (2 мин.)
ТРАНСПОРТ
УЧЕБНИ ЗАВЕДЕНИЯ
ЛЕЧЕБНИ ЗАВЕДЕНИЯ
ПАЗАРУВАНЕ
УСЛУГИ
ЗАВЕДЕНИЯ
СПОРТ И СВОБОДНО ВРЕМЕ
ПРИРОДА И ЗАБЕЛЕЖИТЕЛНОСТИ
АВТОМОБИЛНИ УСЛУГИ
Изпратете запитване
Тази оферта е невалидна
Моля свържете се с нас, за да ви предложим други оферти, които отговарят на вашите изисквания.
Тази оферта е невалидна
Моля свържете се с нас, за да ви предложим други оферти, които отговарят на вашите изисквания.
*/ ?>
ЗА ПОВЕЧЕ ИНФОРМАЦИЯ
Реф. номер: BS 80172
При обаждане, моля цитирайте референтния номер на имота.


Налични имоти в комплекса
142
имота
14
свободни
128
продадени
0
резервирани
Изпратете запитване
Вижте още имоти в кв. "Мадика" в град Бургас:
- Апартаменти (различни типове) в кв. "Мадика"
- Къщи в кв. "Мадика"
- Офиси в кв. "Мадика"
- Магазини в кв. "Мадика"
- Земи в кв. "Мадика"
- Всички имоти в кв. "Мадика"