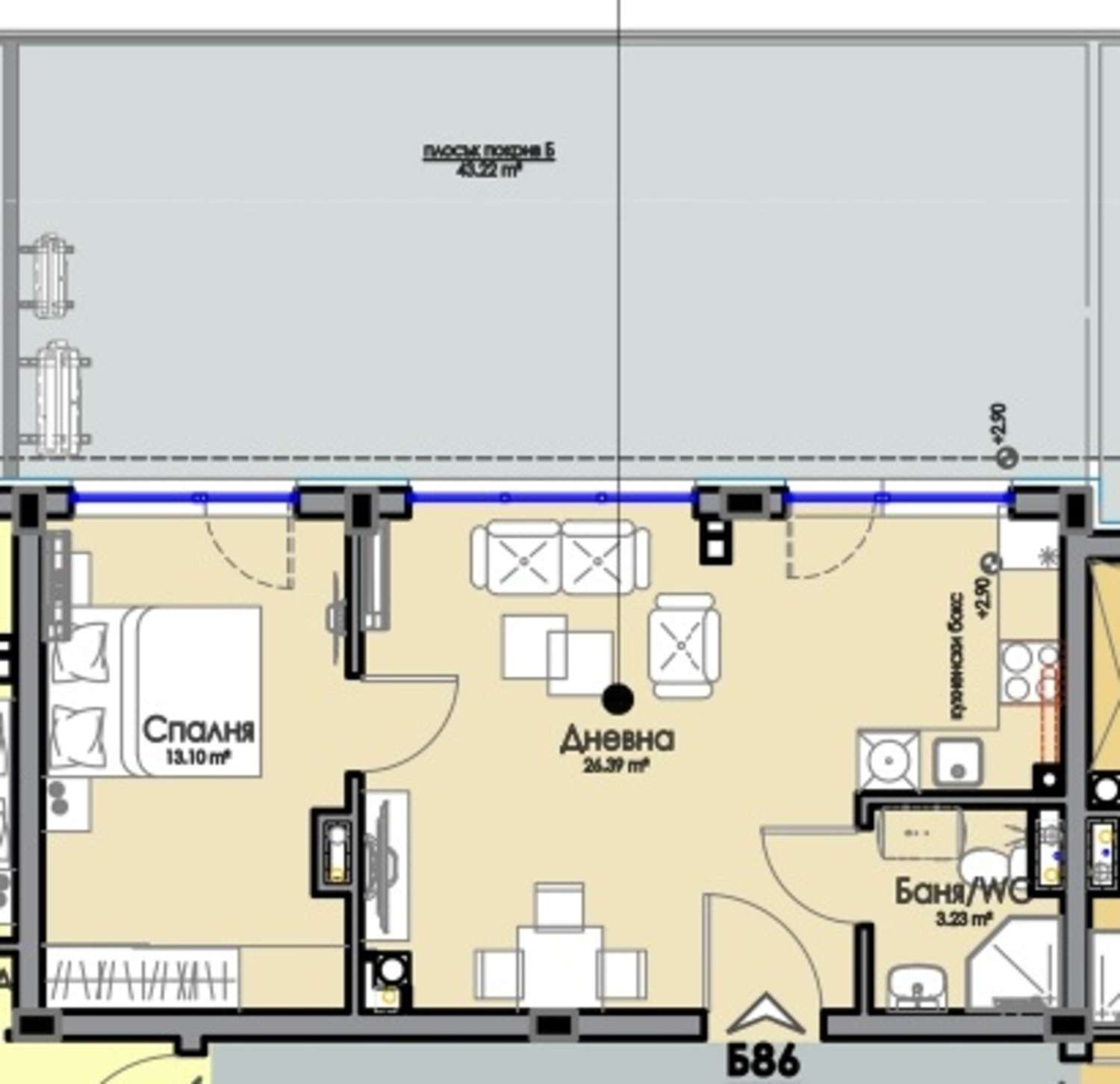
апартамент B86 , гледка към море, обща площ 99.65 кв.м. (нетна площ 50.52 кв.м. + общи части 5.91 кв.м.).
Представяме на вашето внимание нов, уникален по рода си жилищен проект с функционално разпределени апартаменти – едностайни, двустайни и тристайни в гр. Бургас – кв. Хоризонт, в близост до Университет „Проф. д-р Асен Златаров“ и студентския кампус, който се планира да бъде изграден, до cпортна зала, Факултет по природни науки, Факултет по технически науки, Медицински факултет – Бургас, МБАЛ Сърце и мозък, ресторанти и много други градски удобства.
Проектът има за цел да предложи уют, сигурност и стил на живущите. Отличава се с модерна визия, елегантна архитектура, иновативни технологии и комфорт, създаден с мисъл за бъдещето. Строителният процес на сградата стартира м. септември 2025 г. и ще продължи 30 месеца.
Основни характеристики на обекта:
• Два отделни входа с контролиран достъп
• По два асансьора във всеки вход
• Търговски площи и гаражи на етаж 1
• Открити паркоместа и подземни гаражи
• Съвременно строителство с висок клас материали и енергийна ефективност
• Различна и изключително модерна визия
Апартаментиете се издават на шпакловка и замазка, което предоставя на купувачите възможността да персонализират жилищните пространства според своите предпочитания и стил.
В допълнение може да закупите подземен гараж и паркомясто, както и надземен гараж.
Този жилищен комплекс представлява практична възможност за тези, които искат да инвестират в нов дом или в имот с отличен потенциал за последващо отдаване под наем. С разнообразието от типове жилища и фокуса върху основните удобства, той е подходящ за всеки, който търси съвременен и модерен градски дом в Бургас. Ако се интересувате да научите повече за този комплекс, моля, свържете се с нас за подробности.
Оглед на имота
Можем да организираме оглед на имота спрямо нашия график и възможностите за достъп до него. Заявете вашето желание за оглед, като се свържете с отговорния за офертата брокер по имейл или телефон.
Резервация на имота
Имотът може да бъде резервиран и свален от продажба със заплащане на депозит, след което се прекратява провеждането на огледи с други купувачи и започва подготовка на документите за сключване на предварителен и окончателен договор. Свържете се с отговорния брокер за подробна информация относно процедурата на покупка и начините за плащане.
Жилищен кредит
Ние си партнираме с водещите български банки и можем да ви свържем с техните консултанти за информация и кандидатстване за кредит.
- Описание
- Характеристики
- Галерия
- Местоположение
- Ценова листа
Характеристики на имота
Тип на имота
Двустаен апартамент
Реф. номер
BS 87577
Площ
99.65 м2 (чиста площ: 93.74 м2 плюс общи части: 5.91 м2)
Спални
1
Състояние
БДС (на шпакловка и замазка)
Етаж
9 от 9
Асансьор
да
Обзавеждане
Необзаведен
Тип строителство
Тухла, Ново строителство
Изложение:
Изток, Запад, Север, Юг
Година на построяване
2028
Още информация за Двустайни, тристайни и четиристайни морски апартаменти в кв. Хоризонт:
План на имота
Планове
Ценова листа
Качество на въздуха
Обзавеждане
Снимки от въздуха
Общ план
360° изглед
Инфо пакет
Референтен номер: BS 87577
Местоположение
гр. Бургас, кв."Хоризонт"Удобства в района
- Детска градина "ОДЗ № 7 “Райна Княгиня”" на 706 м. (9 мин.)
- Детска градина "ЦДГ-27 Брезичка" на 716 м. (9 мин.)
- Училище "НБУ Михаил Лъкатник" на 780 м. (10 мин.)
- Училище "НБУ Михаил Лъкатник" на 840 м. (11 мин.)
- Университет "Факултет по природни науки" на 50 м. (1 мин.)
- Университет "Факултет по технически науки" на 145 м. (2 мин.)
- Болница "МБАЛ "Сърце и мозък"" на 387 м. (5 мин.)
- Супермаркет "Lidl" на 469 м. (6 мин.)
- Супермаркет "Т-Маркет" на 585 м. (8 мин.)
- Мол "Бургас Плаза" на 721 м. (9 мин.)
- Аптека "Фрамар" на 701 м. (9 мин.)
- Поща/Куриер "Еконт" на 722 м. (9 мин.)
- Ветеринарен лекар "Ветеринарномедицинска клиника МобиВет" на 974 м. (12 мин.)
- Ресторант на 408 м. (5 мин.)
- Ресторант "Юнашка Мръвка" на 641 м. (8 мин.)
- Детска площадка "Ваничарница Топли Закуски" на 1.2 км. (15 мин.)
- Спортен терен на 877 м. (11 мин.)
- Тенис корт на 940 м. (12 мин.)
- Парк "Парк Велека" на 1.2 км. (15 мин.)
- Паркинг на 132 м. (2 мин.)
- Бензиностанция "Лукойл" на 151 м. (2 мин.)
- Автомивка "OMV Автомивка" на 381 м. (5 мин.)
- Библиотека "Читалище Изгрев" на 1.2 км. (14 мин.)
ТРАНСПОРТ
УЧЕБНИ ЗАВЕДЕНИЯ
ЛЕЧЕБНИ ЗАВЕДЕНИЯ
ПАЗАРУВАНЕ
УСЛУГИ
ЗАВЕДЕНИЯ
СПОРТ И СВОБОДНО ВРЕМЕ
ПРИРОДА И ЗАБЕЛЕЖИТЕЛНОСТИ
АВТОМОБИЛНИ УСЛУГИ
ОБЩЕСТВЕНИ СГРАДИ И ИНСТИТУЦИИ
Изпратете запитване
128 552 €
(251 425,86 лв.)
- €
- $
- £
В процес на строителство
Планирано завършване: 30.03.2028 г
Без комисионна
Ценова листа
*/ ?>
ЗА ПОВЕЧЕ ИНФОРМАЦИЯ
Реф. номер: BS 87577
При обаждане, моля цитирайте референтния номер на имота.
Налични имоти в комплекса
39
имота
29
свободни
7
продадени
3
резервирани
Изпратете запитване
Още имоти в този комплекс
Продажба
Хит
Лукс
Двустаен апартамент в Двустайни, тристайни и четиристайни морски апартаменти в кв. Хоризонт
гр. Бургас , кв. "Хоризонт"
Нова жилищна сграда до Университет "Проф. д-р Асен Златаров"
Продажба
Хит
Лукс
Двустаен апартамент в Двустайни, тристайни и четиристайни морски апартаменти в кв. Хоризонт
гр. Бургас , кв. "Хоризонт"
Нова жилищна сграда до Университет "Проф. д-р Асен Златаров"
Продажба
Хит
Лукс
Тристаен апартамент в Двустайни, тристайни и четиристайни морски апартаменти в кв. Хоризонт
гр. Бургас , кв. "Хоризонт"
Нова жилищна сграда до Университет "Проф. д-р Асен Златаров"
137 473 €268 873,82 лв.
(1 400 €/кв.м.) (2 738,16 лв./кв.м.)98.19 кв.м.
Георги Иванов
Брокер, Бургас
Продажба
Хит
Лукс
Двустаен апартамент в Двустайни, тристайни и четиристайни морски апартаменти в кв. Хоризонт
гр. Бургас , кв. "Хоризонт"
Нова жилищна сграда до Университет "Проф. д-р Асен Златаров"
Продажба
Хит
Лукс
Двустаен апартамент в Двустайни, тристайни и четиристайни морски апартаменти в кв. Хоризонт
гр. Бургас , кв. "Хоризонт"
Нова жилищна сграда до Университет "Проф. д-р Асен Златаров"
Продажба
Хит
Лукс
Двустаен апартамент в Двустайни, тристайни и четиристайни морски апартаменти в кв. Хоризонт
гр. Бургас , кв. "Хоризонт"
Нова жилищна сграда до Университет "Проф. д-р Асен Златаров"
Продажба
Хит
Лукс
Двустаен апартамент в Двустайни, тристайни и четиристайни морски апартаменти в кв. Хоризонт
гр. Бургас , кв. "Хоризонт"
Нова жилищна сграда до Университет "Проф. д-р Асен Златаров"
Продажба
Хит
Лукс
Двустаен апартамент в Двустайни, тристайни и четиристайни морски апартаменти в кв. Хоризонт
гр. Бургас , кв. "Хоризонт"
Нова жилищна сграда до Университет "Проф. д-р Асен Златаров"
Продажба
Хит
Лукс
Тристаен апартамент в Двустайни, тристайни и четиристайни морски апартаменти в кв. Хоризонт
гр. Бургас , кв. "Хоризонт"
Нова жилищна сграда до Университет "Проф. д-р Асен Златаров"
135 422 €264 862,41 лв.
(1 300 €/кв.м.) (2 542,58 лв./кв.м.)104.17 кв.м.
Георги Иванов
Брокер, Бургас
Продажба
Хит
Лукс
Двустаен апартамент в Двустайни, тристайни и четиристайни морски апартаменти в кв. Хоризонт
гр. Бургас , кв. "Хоризонт"
Нова жилищна сграда до Университет "Проф. д-р Асен Златаров"
Продажба
Хит
Лукс
Двустаен апартамент в Двустайни, тристайни и четиристайни морски апартаменти в кв. Хоризонт
гр. Бургас , кв. "Хоризонт"
Нова жилищна сграда до Университет "Проф. д-р Асен Златаров"
Продажба
Хит
Лукс
Двустаен апартамент в Двустайни, тристайни и четиристайни морски апартаменти в кв. Хоризонт
гр. Бургас , кв. "Хоризонт"
Нова жилищна сграда до Университет "Проф. д-р Асен Златаров"
Продажба
Хит
Лукс
Двустаен апартамент в Двустайни, тристайни и четиристайни морски апартаменти в кв. Хоризонт
гр. Бургас , кв. "Хоризонт"
Нова жилищна сграда до Университет "Проф. д-р Асен Златаров"
Продажба
Хит
Лукс
Двустаен апартамент в Двустайни, тристайни и четиристайни морски апартаменти в кв. Хоризонт
гр. Бургас , кв. "Хоризонт"
Нова жилищна сграда до Университет "Проф. д-р Асен Златаров"
Продажба
Хит
Лукс
Двустаен апартамент в Двустайни, тристайни и четиристайни морски апартаменти в кв. Хоризонт
гр. Бургас , кв. "Хоризонт"
Нова жилищна сграда до Университет "Проф. д-р Асен Златаров"
Продажба
Хит
Лукс
Тристаен апартамент в Двустайни, тристайни и четиристайни морски апартаменти в кв. Хоризонт
гр. Бургас , кв. "Хоризонт"
Нова жилищна сграда до Университет "Проф. д-р Асен Златаров"
146 168 €285 879,76 лв.
(1 399 €/кв.м.) (2 736,21 лв./кв.м.)104.41 кв.м.
Георги Иванов
Брокер, Бургас
Продажба
Хит
Лукс
Двустаен апартамент в Двустайни, тристайни и четиристайни морски апартаменти в кв. Хоризонт
гр. Бургас , кв. "Хоризонт"
Нова жилищна сграда до Университет "Проф. д-р Асен Златаров"
Продажба
Хит
Лукс
Двустаен апартамент в Двустайни, тристайни и четиристайни морски апартаменти в кв. Хоризонт
гр. Бургас , кв. "Хоризонт"
Нова жилищна сграда до Университет "Проф. д-р Асен Златаров"
Продажба
Хит
Лукс
Двустаен апартамент в Двустайни, тристайни и четиристайни морски апартаменти в кв. Хоризонт
гр. Бургас , кв. "Хоризонт"
Нова жилищна сграда до Университет "Проф. д-р Асен Златаров"
Продажба
Хит
Лукс
Тристаен апартамент в Двустайни, тристайни и четиристайни морски апартаменти в кв. Хоризонт
гр. Бургас , кв. "Хоризонт"
Нова жилищна сграда до Университет "Проф. д-р Асен Златаров"
137 912 €269 732,43 лв.
(1 399 €/кв.м.) (2 736,21 лв./кв.м.)98.51 кв.м.
Георги Иванов
Брокер, Бургас
Продажба
Хит
Лукс
Тристаен апартамент в Двустайни, тристайни и четиристайни морски апартаменти в кв. Хоризонт
гр. Бургас , кв. "Хоризонт"
Нова жилищна сграда до Университет "Проф. д-р Асен Златаров"
137 912 €269 732,43 лв.
(1 399 €/кв.м.) (2 736,21 лв./кв.м.)98.51 кв.м.
Георги Иванов
Брокер, Бургас
Продажба
Хит
Лукс
Тристаен апартамент в Двустайни, тристайни и четиристайни морски апартаменти в кв. Хоризонт
гр. Бургас , кв. "Хоризонт"
Нова жилищна сграда до Университет "Проф. д-р Асен Златаров"
146 168 €285 879,76 лв.
(1 399 €/кв.м.) (2 736,21 лв./кв.м.)104.41 кв.м.
Георги Иванов
Брокер, Бургас
Продажба
Хит
Лукс
Тристаен апартамент в Двустайни, тристайни и четиристайни морски апартаменти в кв. Хоризонт
гр. Бургас , кв. "Хоризонт"
Нова жилищна сграда до Университет "Проф. д-р Асен Златаров"
146 168 €285 879,76 лв.
(1 399 €/кв.м.) (2 736,21 лв./кв.м.)104.41 кв.м.
Георги Иванов
Брокер, Бургас
Продажба
Хит
Лукс
Четиристаен апартамент в Двустайни, тристайни и четиристайни морски апартаменти в кв. Хоризонт
гр. Бургас , кв. "Хоризонт"
Нова жилищна сграда до Университет "Проф. д-р Асен Златаров"
180 499 €353 025,36 лв.
(1 399 €/кв.м.) (2 736,21 лв./кв.м.)128.93 кв.м.
Георги Иванов
Брокер, Бургас
Продажба
Хит
Лукс
Четиристаен апартамент в Двустайни, тристайни и четиристайни морски апартаменти в кв. Хоризонт
гр. Бургас , кв. "Хоризонт"
Нова жилищна сграда до Университет "Проф. д-р Асен Златаров"
179 314 €350 707,70 лв.
(1 400 €/кв.м.) (2 738,16 лв./кв.м.)128.08 кв.м.
Георги Иванов
Брокер, Бургас
Още имоти в кв. Хоризонт
Продажба
Двустаен апартамент ново строителство в кв. Азимут, Бургас
гр. Бургас , кв. "Хоризонт"
Модерен дом в най-бързо развиващата се зона на града на 5 минути от морето
Двустаен апартамент ново строителство в кв. Азимут, Бургас - Модерен дом в най-бързо развиващата се зона на града на 5 минути от морето
Продажба
Двустаен апартамент ново строителство в кв. „Азимут“, Бургас
гр. Бургас , кв. "Хоризонт"
Модерен дом в комплекс с удобства на минути от морето
Двустаен апартамент ново строителство в кв. „Азимут“, Бургас - Модерен дом в комплекс с удобства на минути от морето
Продажба
Двустаен апартамент ново строителство в кв. Азимут, Бургас
гр. Бургас , кв. "Хоризонт"
Модерен имот в най-бързо развиващата се зона на града – на минути от морето
Двустаен апартамент ново строителство в кв. Азимут, Бургас - Модерен имот в най-бързо развиващата се зона на града – на минути от морето
Продажба
Лукс
Новострояща се жилищна сграда в квартал Хоризонт
гр. Бургас , кв. "Хоризонт"
Луксозни жилища в района на Метро Бургас, с бърз достъп до магистралата и градски удобства
Новострояща се жилищна сграда в квартал Хоризонт - Луксозни жилища в района на Метро Бургас, с бърз достъп до магистралата и градски удобства
Продажба
Лукс
Висок клас жилищен проект с топла връзка с Grand Plaza Mall
гр. Бургас , кв. "Хоризонт"
Жилища в модерен комплекс от затворен тип в кв. Хоризонт
Висок клас жилищен проект с топла връзка с Grand Plaza Mall - Жилища в модерен комплекс от затворен тип в кв. Хоризонт
от 53 882 €(от 105 384,03 лв.)
(968 €/кв.м. - 1 521 €/кв.м.)(1 893,24 лв./кв.м. - 2 974,82 лв./кв.м.)Площ: 37.47 - 270.48 кв.м.
Павел Раванов
Старши брокер, Бургас
Продажба
Лукс
Апартамент с две спални във висок клас комплекс до Grand Plaza Mall
гр. Бургас , кв. "Хоризонт"
Тристайно жилище с комплекс с много удобства в Бургас
Апартамент с две спални във висок клас комплекс до Grand Plaza Mall - Тристайно жилище с комплекс с много удобства в Бургас
Продажба
Двустаен апартамент в Гранд Плаза Резиденс Бургас
гр. Бургас , кв. "Хоризонт"
Жилище без довършителни работи с двор в сграда ново строителство
Двустаен апартамент в Гранд Плаза Резиденс Бургас - Жилище без довършителни работи с двор в сграда ново строителство
Продажба
-12%
Сграда ново строителство в луксозен комплекс в квартал Азимут
гр. Бургас , кв. "Хоризонт"
Апартаменти от висок клас на 5 км от морето в Бургас
Сграда ново строителство в луксозен комплекс в квартал Азимут - Апартаменти от висок клас на 5 км от морето в Бургас
от 106 540 €от 94 116 €от 207,32 лв.от 184 074,90 лв.
(1 550 €/кв.м. - 1 829 €/кв.м.)(3 031,54 лв./кв.м. - 3 577,21 лв./кв.м.)Площ: 56.60 - 148.27 кв.м.
Георги Иванов
Брокер, Бургас
Още имоти в гр. Бургас
Продажба
ново
Добре разработен търговски обект в ж.к. Меден рудник – отлична инвестиция с утвърден бизнес
гр. Бургас , кв. "Меден рудник - зона Г"
Магазин на комуникативно място, работещ успешно от години
Добре разработен търговски обект в ж.к. Меден рудник – отлична инвестиция с утвърден бизнес - Магазин на комуникативно място, работещ успешно от години
Продажба
ново
Етаж от къща в централната част на квартал Банево, Бургас
гр. Бургас , кв. "Банево"
Втори етаж от къща с три спални, обзавеждане и дворно място
Етаж от къща в централната част на квартал Банево, Бургас - Втори етаж от къща с три спални, обзавеждане и дворно място
Продажба
Двустаен апартамент ново строителство в кв. Азимут, Бургас
гр. Бургас , кв. "Хоризонт"
Модерен дом в най-бързо развиващата се зона на града на 5 минути от морето
Двустаен апартамент ново строителство в кв. Азимут, Бургас - Модерен дом в най-бързо развиващата се зона на града на 5 минути от морето
Продажба
Лукс
Просторен апартамент с допълнителни помещения и паркоместа в центъра на Бургас
гр. Бургас , кв. "Център"
Обзаведен апартамент на метри от Хотел България
Просторен апартамент с допълнителни помещения и паркоместа в центъра на Бургас - Обзаведен апартамент на метри от Хотел България
Продажба
Двустаен апартамент ново строителство в кв. „Азимут“, Бургас
гр. Бургас , кв. "Хоризонт"
Модерен дом в комплекс с удобства на минути от морето
Двустаен апартамент ново строителство в кв. „Азимут“, Бургас - Модерен дом в комплекс с удобства на минути от морето
Продажба
Двустаен апартамент ново строителство в кв. Азимут, Бургас
гр. Бургас , кв. "Хоризонт"
Модерен имот в най-бързо развиващата се зона на града – на минути от морето
Двустаен апартамент ново строителство в кв. Азимут, Бургас - Модерен имот в най-бързо развиващата се зона на града – на минути от морето
Продажба
ИНВЕСТИЦИОНЕН ПРОЕКТ
Партерен търговски имот в топ центъра на Бургас
гр. Бургас , кв. "Център"
Бизнес помещение със статут на ресторант до Държавна опера и Драматичен театър
Партерен търговски имот в топ центъра на Бургас - Бизнес помещение със статут на ресторант до Държавна опера и Драматичен театър
Продажба
-8%
Офис с проект за преобразуване в тристаен апартамент в кв. Зорница
гр. Бургас , кв. "Зорница"
Просторен имот на партерен етаж в елитния затворен комплекс „Перла“
Офис с проект за преобразуване в тристаен апартамент в кв. Зорница - Просторен имот на партерен етаж в елитния затворен комплекс „Перла“
180 000 €165 000 €352,05 лв.322 711,95 лв.
(1 994 €/кв.м.)(3 899,84 лв./кв.м.)Площ: 82.75 кв.м.
Георги Иванов
Брокер, Бургас
Наем
Двустаен апартамент в близост до плажа в кв. Сарафово
гр. Бургас , кв. "Сарафово"
Напълно обзаведен апартамент с морска гледка и спокойна локация
Двустаен апартамент в близост до плажа в кв. Сарафово - Напълно обзаведен апартамент с морска гледка и спокойна локация
Продажба
Обзаведено студио с прилежащ двор в кв. Крайморие
гр. Бургас , кв. "Крайморие"
Партерно студио с Акт 16 и самостоятелен вход на 100 метра от плажа
Обзаведено студио с прилежащ двор в кв. Крайморие - Партерно студио с Акт 16 и самостоятелен вход на 100 метра от плажа
Продажба
Стилно обзаведен апартамент с двор на 700 м от морето – Равда
с. Равда
Напълно обзаведен апартамент в сграда с Акт 15
Стилно обзаведен апартамент с двор на 700 м от морето – Равда - Напълно обзаведен апартамент в сграда с Акт 15
Продажба
Модерен жилищен проект в квартал Мадика на гр. Бургас
гр. Бургас , кв. "Мадика"
Сграда със смесено предназначение и отлична локация с изградени транспортни връзки
Модерен жилищен проект в квартал Мадика на гр. Бургас - Сграда със смесено предназначение и отлична локация с изградени транспортни връзки
от 80 535 €(от 157 512,77 лв.)
(1 286 €/кв.м. - 14 873 €/кв.м.)(2 515,20 лв./кв.м. - 29 089,06 лв./кв.м.)Площ: 62.43 - 187.01 кв.м.
Георги Иванов
Брокер, Бургас
Продажба
Апартамент на три нива до Морската градина в Бургас
гр. Бургас , кв. "Възраждане"
Жилище с 4 спални, избено помещение и гараж в кв. Възраждане
Апартамент на три нива до Морската градина в Бургас - Жилище с 4 спални, избено помещение и гараж в кв. Възраждане
Продажба
Нов жилищен проект в развиващия се квартал Мадика
гр. Бургас , кв. "Мадика"
Модерна 7-етажна жилищна сграда с отлична локация и условия за комфортен градски живот
Нов жилищен проект в развиващия се квартал Мадика - Модерна 7-етажна жилищна сграда с отлична локация и условия за комфортен градски живот
от 94 691 €(от 185 199,50 лв.)
(500 €/кв.м. - 1 550 €/кв.м.)(977,92 лв./кв.м. - 3 031,54 лв./кв.м.)Площ: 61.09 - 422.61 кв.м.
Павел Раванов
Старши брокер, Бургас
Продажба
Нов жилищен проект в квартал Сарафово, гр. Бургас
гр. Бургас , кв. "Сарафово"
Нова сграда предстоящо строителство в комуникативен и желан район, в близост до морето
Нов жилищен проект в квартал Сарафово, гр. Бургас - Нова сграда предстоящо строителство в комуникативен и желан район, в близост до морето
от 102 833 €(от 201 123,87 лв.)
(1 380 €/кв.м. - 1 700 €/кв.м.)(2 699,05 лв./кв.м. - 3 324,91 лв./кв.м.)Площ: 60.49 - 101.14 кв.м.
Павел Раванов
Старши брокер, Бургас
Продажба
Луксозна еднофамилна двуетажна къща близо до центъра на Бургас
гр. Бургас , кв. "Ветрен"
Просторна къща с дворно място в кв. Ветрен
Луксозна еднофамилна двуетажна къща близо до центъра на Бургас - Просторна къща с дворно място в кв. Ветрен
Продажба
Апартамент с паркомясто в луксозен комплекс в Бургас
гр. Бургас , кв. "Славейков"
Двустаен апартамент в Central Park в кв. Славейков
Апартамент с паркомясто в луксозен комплекс в Бургас - Двустаен апартамент в Central Park в кв. Славейков
Продажба
Четиристаен апартамент в историческа сграда с морска гледка
гр. Бургас , кв. "Център"
Апартамент в сграда обявена за културно наследство
Четиристаен апартамент в историческа сграда с морска гледка - Апартамент в сграда обявена за културно наследство
169 000 €(330 535,27 лв.)
(1 920 €/кв.м.)(3 756,08 лв./кв.м.)Площ: 88.00 кв.м.
Георги Иванов
Брокер, Бургас
Продажба
Новопостроени сгради с Акт 16 в кв. Сарафово
гр. Бургас , кв. "Сарафово"
Двустайни и тристайни апартаменти без такса поддръжка на 150 м от плажа
Новопостроени сгради с Акт 16 в кв. Сарафово - Двустайни и тристайни апартаменти без такса поддръжка на 150 м от плажа
от 94 000 €(от 183 848,02 лв.)
(1 403 €/кв.м. - 2 132 €/кв.м.)(2 744,03 лв./кв.м. - 4 169,83 лв./кв.м.)Площ: 54.00 - 107.00 кв.м.
Павел Раванов
Старши брокер, Бургас
Продажба
Бизнес помещение в центъра на града до Съдебната палата
гр. Бургас , кв. "Център"
Офис с отлична локация в Бургас
Бизнес помещение в центъра на града до Съдебната палата - Офис с отлична локация в Бургас
Продажба
Реновирана двуетажна къща с двор в с. Светлина
с. Светлина
Имот на 8 км от гр. Средец
Реновирана двуетажна къща с двор в с. Светлина - Имот на 8 км от гр. Средец
Продажба
Оборудван фитнес център в затворен комплекс Перла
гр. Бургас , кв. "Зорница"
Успешно функциониращ бизнес с редовна клиентска база и модерни съоръжения
Оборудван фитнес център в затворен комплекс Перла - Успешно функциониращ бизнес с редовна клиентска база и модерни съоръжения
Продажба
Новопостроена жилищна сграда в Ахтопол
гр. Ахтопол
Жилища на 50 метра от плажовете на Ахтопол
Новопостроена жилищна сграда в Ахтопол - Жилища на 50 метра от плажовете на Ахтопол
от 85 055 €(от 166 353,12 лв.)
(1 900 €/кв.м. - 3 706 €/кв.м.)(3 716,08 лв./кв.м. - 7 248,31 лв./кв.м.)Площ: 39.39 - 103.31 кв.м.
Павел Раванов
Старши брокер, Бургас
Продажба
ВТОРА ЛИНИЯ
Нов жилищен комплекс на ул. Манастирска в кв. Сарафово
гр. Бургас , кв. "Сарафово"
Разнообразие от апартаменти в процес на строителство на втора линия от плажа
Нов жилищен комплекс на ул. Манастирска в кв. Сарафово - Разнообразие от апартаменти в процес на строителство на втора линия от плажа
от 52 500 €(от 102 681,08 лв.)
(1 500 €/кв.м.)(2 933,75 лв./кв.м.)Площ: 35.00 - 128.99 кв.м.
Павел Раванов
Старши брокер, Бургас
Продажба
Действащ, напълно оборудван ресторант – утвърден бизнес с отлична репутация
гр. Бургас , кв. "Зорница"
Заведение с модерен интериор в комплекс в град Бургас
Действащ, напълно оборудван ресторант – утвърден бизнес с отлична репутация - Заведение с модерен интериор в комплекс в град Бургас
Вижте още имоти в кв. "Хоризонт" в град Бургас:
- Апартаменти (различни типове) в кв. "Хоризонт"
- Къщи в кв. "Хоризонт"
- Офиси в кв. "Хоризонт"
- Магазини в кв. "Хоризонт"
- Земи в кв. "Хоризонт"
- Всички имоти в кв. "Хоризонт"
Вижте още имоти в град Бургас:
Абонирайте се за нашия канал