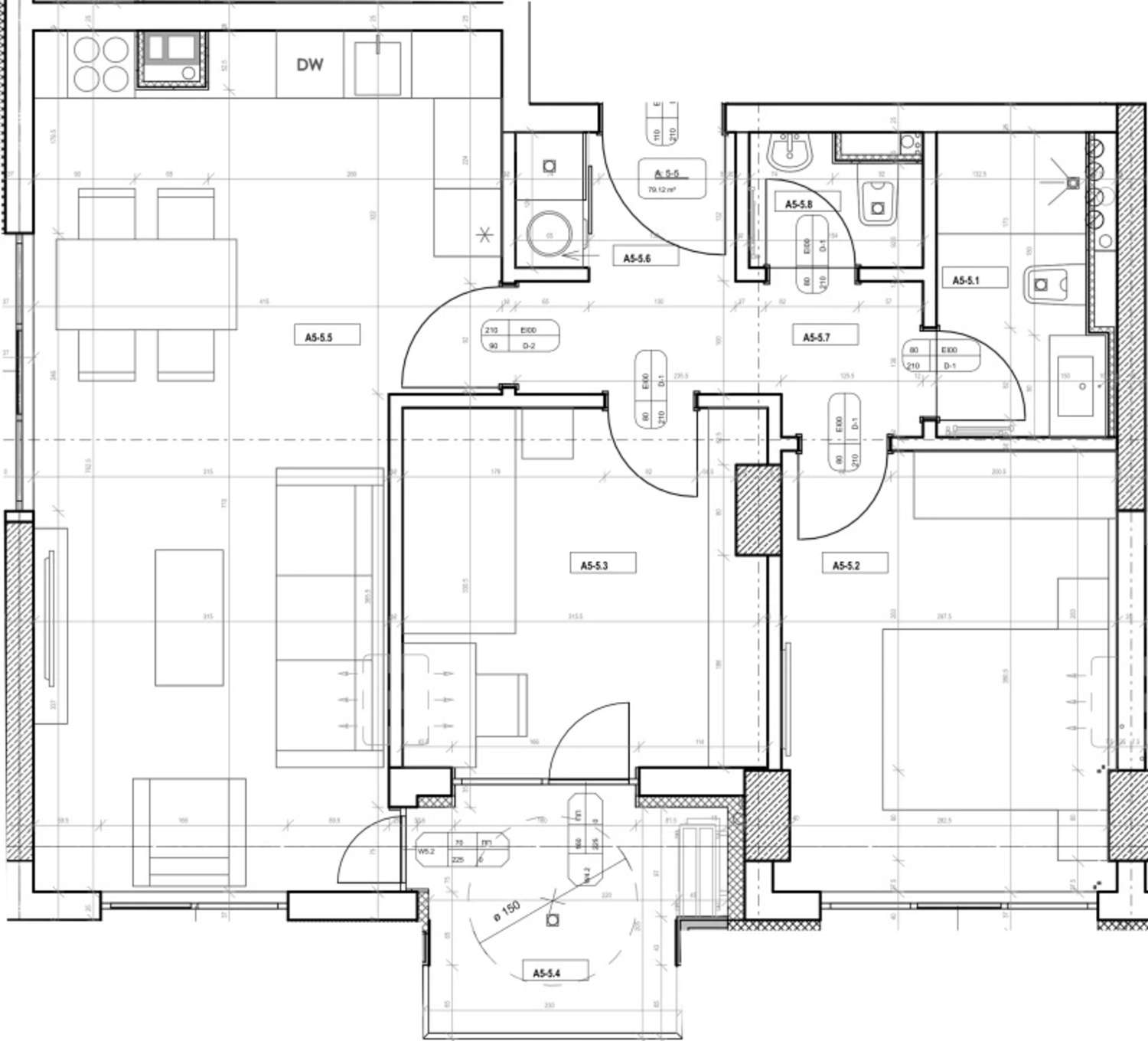
апартамент A405 , обща площ 98.29 кв.м. (нетна площ 79.12 кв.м. + общи части 19.17 кв.м.).
С радост представяме нов предстоящ проект – комплекс със смесено предназначение в гр. Бургас, създаден като съвременна градска среда, която съчетава живот, работа, отдих и инвестиционен потенциал в едно хармонично и функционално пространство.
В комплекса са предвидени:
• Жилищна част
Разнообразие от двустайни, тристайни и четиристайни апартаменти, проектирани с функционални разпределения, добра осветеност и комфорт за съвременен начин на живот. Жилищата са подходящи както за лично ползване, така и за инвестиция.
• Офиси и конферентна зона
Сградата включва офис площи и многофункционална конферентна зала, предназначена за събития, срещи и професионални формати.
• Търговски обекти и кафене
Партерното ниво е проектирано с търговски площи и заведения, които допринасят за активна и оживена градска среда.
• Апарт-хотел
Част от концепцията е включването на апарт-хотел, което допълнително увеличава инвестиционния потенциал на проекта.
• Зелени площи и удобства
Комплексът предлага зони за отдих и озеленени пространства, предназначени за живущите и посетителите. Вътрешният двор осигурява спокойствие, сигурност и комфорт, изолиран от уличната мрежа.
За удобство на обитателите и гостите са предвидени:
• възможност за закупуване на подземни гаражи и надземни паркоместа;
• допълнителни паркоместа за посетители на партерно ниво;
• обособени места за велосипеди.
Проектът се отличава със съвременен архитектурен облик, висока функционалност и внимание към детайла. Архитектурното решение създава вдъхновяваща среда, в която работата и личният живот се допълват естествено.
Комплексът е добре ситуиран, с отлична локация и изградени транспортни връзки. Достъпът е лесен както с автомобил, така и с обществен транспорт, а обкръжаващата инфраструктура гарантира удобство за ежедневието.
Комплекс, който създава нов стандарт за градски живот в Бургас. Този проект обединява архитектура, функционалност и визия за бъдещето, превръщайки се в естествена част от модерната градска среда и предлагаща дългосрочна стойност за своите обитатели и инвеститори.
Оглед на имота
Можем да организираме оглед на имота спрямо нашия график и възможностите за достъп до него. Заявете вашето желание за оглед, като се свържете с отговорния за офертата брокер по имейл или телефон.
Резервация на имота
Имотът може да бъде резервиран и свален от продажба със заплащане на депозит, след което се прекратява провеждането на огледи с други купувачи и започва подготовка на документите за сключване на предварителен и окончателен договор. Свържете се с отговорния брокер за подробна информация относно процедурата на покупка и начините за плащане.
Жилищен кредит
Ние си партнираме с водещите български банки и можем да ви свържем с техните консултанти за информация и кандидатстване за кредит.
- Описание
- Характеристики
- Галерия
- Местоположение
- Ценова листа
Характеристики на имота
Тип на имота
Тристаен апартамент
Реф. номер
BS 88892
Площ
98.29 м2 (чиста площ: 79.12 м2 плюс общи части: 19.17 м2)
Спални
2
Състояние
прочетете текста
Етаж
4 от 16
Асансьор
да
Обзавеждане
Необзаведен
Отопление
Климатици
Тип строителство
Тухла, Ново строителство
Изложение:
Изток, Запад, Север, Юг
Година на построяване
2028
Още информация за Модерен жилищен проект в квартал Мадика на гр. Бургас:
План на имота
Планове
Ценова листа
Качество на въздуха
Обзавеждане
Снимки от въздуха
Общ план
360° изглед
Инфо пакет
Референтен номер: BS 88892
Местоположение
гр. Бургас, кв."Мадика"Удобства в района
- Университет "Университет Проф. Д-р Асен Златаров Педагогически факултет" на 406 м. (5 мин.)
- Университет "Бургаски държавен университет „Проф. д-р Асен Златаров“" на 480 м. (6 мин.)
- Поща/Куриер "Еконт" на 727 м. (9 мин.)
- Поща/Куриер "Еконт" на 749 м. (10 мин.)
- Ресторант "Шан Хай" на 580 м. (7 мин.)
- Ресторант на 891 м. (11 мин.)
ТРАНСПОРТ
УЧЕБНИ ЗАВЕДЕНИЯ
УСЛУГИ
ЗАВЕДЕНИЯ
Изпратете запитване
146 452 €
(286 435,22 лв.)
- €
- $
- £
В процес на строителство
Планирано завършване: 20.12.2028 г
Без комисионна
Ценова листа
*/ ?>
ЗА ПОВЕЧЕ ИНФОРМАЦИЯ
Реф. номер: BS 88892
При обаждане, моля цитирайте референтния номер на имота.
Налични имоти в комплекса
124
имота
124
свободни
0
продадени
0
резервирани
Изпратете запитване
Още имоти в този комплекс
Продажба
Тристаен апартамент в Модерен жилищен проект в квартал Мадика на гр. Бургас
гр. Бургас , кв. "Мадика"
Сграда със смесено предназначение и отлична локация с изградени транспортни връзки
153 053 €299 345,65 лв.
(1 390 €/кв.м.) (2 718,60 лв./кв.м.)110.11 кв.м.
Георги Иванов
Брокер, Бургас
Продажба
Тристаен апартамент в Модерен жилищен проект в квартал Мадика на гр. Бургас
гр. Бургас , кв. "Мадика"
Сграда със смесено предназначение и отлична локация с изградени транспортни връзки
160 281 €313 482,39 лв.
(1 390 €/кв.м.) (2 718,60 лв./кв.м.)115.31 кв.м.
Георги Иванов
Брокер, Бургас
Продажба
Двустаен апартамент в Модерен жилищен проект в квартал Мадика на гр. Бургас
гр. Бургас , кв. "Мадика"
Сграда със смесено предназначение и отлична локация с изградени транспортни връзки
126 337 €247 093,69 лв.
(1 389 €/кв.м.) (2 716,65 лв./кв.м.)90.89 кв.м.
Георги Иванов
Брокер, Бургас
Продажба
Двустаен апартамент в Модерен жилищен проект в квартал Мадика на гр. Бургас
гр. Бургас , кв. "Мадика"
Сграда със смесено предназначение и отлична локация с изградени транспортни връзки
123 571 €241 683,87 лв.
(1 390 €/кв.м.) (2 718,60 лв./кв.м.)88.90 кв.м.
Георги Иванов
Брокер, Бургас
Продажба
Двустаен апартамент в Модерен жилищен проект в квартал Мадика на гр. Бургас
гр. Бургас , кв. "Мадика"
Сграда със смесено предназначение и отлична локация с изградени транспортни връзки
Продажба
Двустаен апартамент в Модерен жилищен проект в квартал Мадика на гр. Бургас
гр. Бургас , кв. "Мадика"
Сграда със смесено предназначение и отлична локация с изградени транспортни връзки
100 375 €196 316,44 лв.
(1 460 €/кв.м.) (2 855,51 лв./кв.м.)68.75 кв.м.
Георги Иванов
Брокер, Бургас
Продажба
Тристаен апартамент в Модерен жилищен проект в квартал Мадика на гр. Бургас
гр. Бургас , кв. "Мадика"
Сграда със смесено предназначение и отлична локация с изградени транспортни връзки
164 749 €322 221,04 лв.
(1 489 €/кв.м.) (2 912,23 лв./кв.м.)110.57 кв.м.
Георги Иванов
Брокер, Бургас
Продажба
Двустаен апартамент в Модерен жилищен проект в квартал Мадика на гр. Бургас
гр. Бургас , кв. "Мадика"
Сграда със смесено предназначение и отлична локация с изградени транспортни връзки
100 203 €195 980,03 лв.
(1 490 €/кв.м.) (2 914,19 лв./кв.м.)67.25 кв.м.
Георги Иванов
Брокер, Бургас
Продажба
Тристаен апартамент в Модерен жилищен проект в квартал Мадика на гр. Бургас
гр. Бургас , кв. "Мадика"
Сграда със смесено предназначение и отлична локация с изградени транспортни връзки
146 452 €286 435,22 лв.
(1 489 €/кв.м.) (2 912,23 лв./кв.м.)98.29 кв.м.
Георги Иванов
Брокер, Бургас
Продажба
Тристаен апартамент в Модерен жилищен проект в квартал Мадика на гр. Бургас
гр. Бургас , кв. "Мадика"
Сграда със смесено предназначение и отлична локация с изградени транспортни връзки
146 199 €285 940,39 лв.
(1 490 €/кв.м.) (2 914,19 лв./кв.м.)98.12 кв.м.
Георги Иванов
Брокер, Бургас
Продажба
Двустаен апартамент в Модерен жилищен проект в квартал Мадика на гр. Бургас
гр. Бургас , кв. "Мадика"
Сграда със смесено предназначение и отлична локация с изградени транспортни връзки
100 992 €197 523,18 лв.
(1 489 €/кв.м.) (2 912,23 лв./кв.м.)67.78 кв.м.
Георги Иванов
Брокер, Бургас
Продажба
Двустаен апартамент в Модерен жилищен проект в квартал Мадика на гр. Бургас
гр. Бургас , кв. "Мадика"
Сграда със смесено предназначение и отлична локация с изградени транспортни връзки
100 375 €196 316,44 лв.
(1 460 €/кв.м.) (2 855,51 лв./кв.м.)68.75 кв.м.
Георги Иванов
Брокер, Бургас
Продажба
Тристаен апартамент в Модерен жилищен проект в квартал Мадика на гр. Бургас
гр. Бургас , кв. "Мадика"
Сграда със смесено предназначение и отлична локация с изградени транспортни връзки
164 749 €322 221,04 лв.
(1 489 €/кв.м.) (2 912,23 лв./кв.м.)110.57 кв.м.
Георги Иванов
Брокер, Бургас
Продажба
Двустаен апартамент в Модерен жилищен проект в квартал Мадика на гр. Бургас
гр. Бургас , кв. "Мадика"
Сграда със смесено предназначение и отлична локация с изградени транспортни връзки
106 928 €209 132,99 лв.
(1 590 €/кв.м.) (3 109,77 лв./кв.м.)67.25 кв.м.
Георги Иванов
Брокер, Бургас
Продажба
Тристаен апартамент в Модерен жилищен проект в квартал Мадика на гр. Бургас
гр. Бургас , кв. "Мадика"
Сграда със смесено предназначение и отлична локация с изградени транспортни връзки
146 452 €286 435,22 лв.
(1 489 €/кв.м.) (2 912,23 лв./кв.м.)98.29 кв.м.
Георги Иванов
Брокер, Бургас
Продажба
Тристаен апартамент в Модерен жилищен проект в квартал Мадика на гр. Бургас
гр. Бургас , кв. "Мадика"
Сграда със смесено предназначение и отлична локация с изградени транспортни връзки
146 199 €285 940,39 лв.
(1 490 €/кв.м.) (2 914,19 лв./кв.м.)98.12 кв.м.
Георги Иванов
Брокер, Бургас
Продажба
Двустаен апартамент в Модерен жилищен проект в квартал Мадика на гр. Бургас
гр. Бургас , кв. "Мадика"
Сграда със смесено предназначение и отлична локация с изградени транспортни връзки
Продажба
Двустаен апартамент в Модерен жилищен проект в квартал Мадика на гр. Бургас
гр. Бургас , кв. "Мадика"
Сграда със смесено предназначение и отлична локация с изградени транспортни връзки
100 375 €196 316,44 лв.
(1 460 €/кв.м.) (2 855,51 лв./кв.м.)68.75 кв.м.
Георги Иванов
Брокер, Бургас
Продажба
Тристаен апартамент в Модерен жилищен проект в квартал Мадика на гр. Бургас
гр. Бургас , кв. "Мадика"
Сграда със смесено предназначение и отлична локация с изградени транспортни връзки
164 749 €322 221,04 лв.
(1 489 €/кв.м.) (2 912,23 лв./кв.м.)110.57 кв.м.
Георги Иванов
Брокер, Бургас
Продажба
Двустаен апартамент в Модерен жилищен проект в квартал Мадика на гр. Бургас
гр. Бургас , кв. "Мадика"
Сграда със смесено предназначение и отлична локация с изградени транспортни връзки
100 203 €195 980,03 лв.
(1 490 €/кв.м.) (2 914,19 лв./кв.м.)67.25 кв.м.
Георги Иванов
Брокер, Бургас
Продажба
Тристаен апартамент в Модерен жилищен проект в квартал Мадика на гр. Бургас
гр. Бургас , кв. "Мадика"
Сграда със смесено предназначение и отлична локация с изградени транспортни връзки
146 452 €286 435,22 лв.
(1 489 €/кв.м.) (2 912,23 лв./кв.м.)98.29 кв.м.
Георги Иванов
Брокер, Бургас
Продажба
Тристаен апартамент в Модерен жилищен проект в квартал Мадика на гр. Бургас
гр. Бургас , кв. "Мадика"
Сграда със смесено предназначение и отлична локация с изградени транспортни връзки
146 199 €285 940,39 лв.
(1 490 €/кв.м.) (2 914,19 лв./кв.м.)98.12 кв.м.
Георги Иванов
Брокер, Бургас
Продажба
Тристаен апартамент в Модерен жилищен проект в квартал Мадика на гр. Бургас
гр. Бургас , кв. "Мадика"
Сграда със смесено предназначение и отлична локация с изградени транспортни връзки
163 243 €319 275,56 лв.
(1 460 €/кв.м.) (2 855,51 лв./кв.м.)111.81 кв.м.
Георги Иванов
Брокер, Бургас
Продажба
Тристаен апартамент в Модерен жилищен проект в квартал Мадика на гр. Бургас
гр. Бургас , кв. "Мадика"
Сграда със смесено предназначение и отлична локация с изградени транспортни връзки
144 287 €282 200,84 лв.
(1 290 €/кв.м.) (2 523,02 лв./кв.м.)111.85 кв.м.
Георги Иванов
Брокер, Бургас
Продажба
Тристаен апартамент в Модерен жилищен проект в квартал Мадика на гр. Бургас
гр. Бургас , кв. "Мадика"
Сграда със смесено предназначение и отлична локация с изградени транспортни връзки
149 085 €291 584,92 лв.
(1 289 €/кв.м.) (2 521,06 лв./кв.м.)115.57 кв.м.
Георги Иванов
Брокер, Бургас
Още имоти в кв. Мадика
Продажба
Нов жилищен проект в развиващия се квартал Мадика
гр. Бургас , кв. "Мадика"
Модерна 7-етажна жилищна сграда с отлична локация и условия за комфортен градски живот
Нов жилищен проект в развиващия се квартал Мадика - Модерна 7-етажна жилищна сграда с отлична локация и условия за комфортен градски живот
от 94 691 €(от 185 199,50 лв.)
(500 €/кв.м. - 1 550 €/кв.м.)(977,92 лв./кв.м. - 3 031,54 лв./кв.м.)Площ: 61.09 - 422.61 кв.м.
Павел Раванов
Старши брокер, Бургас
Продажба
Нов жилищен комплекс в бързо развиващия се кв. Мадика
гр. Бургас , кв. "Мадика"
Просторни жилища, офиси, паркоместа и гаражи до многопрофилната болница „Сърце и мозък“
Нов жилищен комплекс в бързо развиващия се кв. Мадика - Просторни жилища, офиси, паркоместа и гаражи до многопрофилната болница „Сърце и мозък“
от 84 108 €(от 164 500,95 лв.)
(1 200 €/кв.м. - 1 300 €/кв.м.)(2 347 лв./кв.м. - 2 542,58 лв./кв.м.)Площ: 70.09 - 148.18 кв.м.
Павел Раванов
Старши брокер, Бургас
Продажба
Новопостроен медицински център до болница Сърце и Мозък
гр. Бургас , кв. "Мадика"
Имот със статут на медицински център в кв. Мадика
Новопостроен медицински център до болница Сърце и Мозък - Имот със статут на медицински център в кв. Мадика
Продажба
Просторен парцел земя в местност Мадика в гр. Бургас
гр. Бургас , кв. "Мадика"
Обширна земеделска земя 3-та категория близо до КАТ и промишлени предприятия
Просторен парцел земя в местност Мадика в гр. Бургас - Обширна земеделска земя 3-та категория близо до КАТ и промишлени предприятия
Още имоти в гр. Бургас
Продажба
Лукс
Висок клас жилищен проект с топла връзка с Grand Plaza Mall
гр. Бургас , кв. "Хоризонт"
Жилища в модерен комплекс от затворен тип в кв. Хоризонт
Висок клас жилищен проект с топла връзка с Grand Plaza Mall - Жилища в модерен комплекс от затворен тип в кв. Хоризонт
от 59 382 €(от 116 141,10 лв.)
(968 €/кв.м. - 1 521 €/кв.м.)(1 893,24 лв./кв.м. - 2 974,82 лв./кв.м.)Площ: 43.25 - 270.48 кв.м.
Павел Раванов
Старши брокер, Бургас
Продажба
ново
Новостроящ се жилищен комплекс в кв. Сарафово
гр. Бургас , кв. "Сарафово"
Последни просторни апартаменти висок клас строителство без такса поддръжка
Новостроящ се жилищен комплекс в кв. Сарафово - Последни просторни апартаменти висок клас строителство без такса поддръжка
от 94 380 €(от 184 591,24 лв.)
(1 200 €/кв.м. - 1 250 €/кв.м.)(2 347 лв./кв.м. - 2 444,79 лв./кв.м.)Площ: 78.65 - 103.29 кв.м.
Павел Раванов
Старши брокер, Бургас
Продажба
ново
Нова сграда без такса поддръжка в жк. Меден Рудник
гр. Бургас , кв. "Меден рудник - зона Д"
Просторни нови апартаменти в комплекс от затворен тип до супермаркет, училище и детска градина
Нова сграда без такса поддръжка в жк. Меден Рудник - Просторни нови апартаменти в комплекс от затворен тип до супермаркет, училище и детска градина
от 68 000 €(от 132 996,44 лв.)
(970 €/кв.м. - 1 129 €/кв.м.)(1 897,16 лв./кв.м. - 2 208,13 лв./кв.м.)Площ: 62.46 - 101.01 кв.м.
Павел Раванов
Старши брокер, Бургас
Продажба
ново
Новострояща се сграда в жилищен комплекс Меден Рудник
гр. Бургас , кв. "Меден рудник - зона Г"
Последни тристайни апартаменти с доказано качество, надеждност, сигурна и спокойна жилищна среда
Новострояща се сграда в жилищен комплекс Меден Рудник - Последни тристайни апартаменти с доказано качество, надеждност, сигурна и спокойна жилищна среда
от 79 398 €(от 155 288,99 лв.)
(900 €/кв.м.)(1 760,25 лв./кв.м.)Площ: 88.22 - 89.94 кв.м.
Павел Раванов
Старши брокер, Бургас
Продажба
ново
Двустаен апартамент в Гранд Плаза Резиденс Бургас
гр. Бургас , кв. "Хоризонт"
Жилище без довършителни работи с двор в сграда ново строителство
Двустаен апартамент в Гранд Плаза Резиденс Бургас - Жилище без довършителни работи с двор в сграда ново строителство
Продажба
ново
За частни лица
Двустаен апартамент с Акт 14 в новострояща се сграда
гр. Бургас , кв. "Меден рудник - зона Г"
Светъл имот с функционално разпределение в кв. Меден рудник – зона Г
Двустаен апартамент с Акт 14 в новострояща се сграда - Светъл имот с функционално разпределение в кв. Меден рудник – зона Г
Продажба
ново
Партерно помещение в топ центъра на Бургас
гр. Бургас , кв. "Център"
Компактен имот с отличен бизнес потенциал
Партерно помещение в топ центъра на Бургас - Компактен имот с отличен бизнес потенциал
Продажба
ново
Тристаен апартамент с морска гледка в кв. Лазур
гр. Бургас , кв. "Лазур"
Напълно реновирано панорамно жилище на метри от морския бряг
Тристаен апартамент с морска гледка в кв. Лазур - Напълно реновирано панорамно жилище на метри от морския бряг
Наем
ново
За частни лица
Лукс
Модерно обзаведен тристаен апартамент под наем в ж.к. Изгрев
гр. Бургас , кв. "Изгрев"
Комфортно жилище в добре уреден и предпочитан район на град Бургас
Модерно обзаведен тристаен апартамент под наем в ж.к. Изгрев - Комфортно жилище в добре уреден и предпочитан район на град Бургас
Продажба
ново
Лукс
Новострояща се жилищна сграда в квартал Хоризонт
гр. Бургас , кв. "Хоризонт"
Луксозни жилища в района на Метро Бургас, с бърз достъп до магистралата и градски удобства
Новострояща се жилищна сграда в квартал Хоризонт - Луксозни жилища в района на Метро Бургас, с бърз достъп до магистралата и градски удобства
Продажба
ново
Новострояща се жилищна сграда в кв. Сарафово
гр. Бургас , кв. "Сарафово"
Различен тип модерни апартаменти на 500 м от плажа
Новострояща се жилищна сграда в кв. Сарафово - Различен тип модерни апартаменти на 500 м от плажа
от 92 032 €(от 179 998,95 лв.)
(660 €/кв.м. - 1 250 €/кв.м.)(1 290,85 лв./кв.м. - 2 444,79 лв./кв.м.)Площ: 73.63 - 197.85 кв.м.
Павел Раванов
Старши брокер, Бургас
Продажба
ново
Лукс
ВТОРА ЛИНИЯ
Страхотен тристаен апартамент с гледка море в Бургас
гр. Бургас , кв. "Сарафово"
Обзаведено жилище в стилна жилищна сграда в престижния квартал Сарафово
Страхотен тристаен апартамент с гледка море в Бургас - Обзаведено жилище в стилна жилищна сграда в престижния квартал Сарафово
Продажба
ново
Сграда без такса поддръжка в кв. Славейков
гр. Бургас , кв. "Славейков"
Дувстайни, тристайни апартаменти, офиси и магазини на бул. Янко Комитов
Сграда без такса поддръжка в кв. Славейков - Дувстайни, тристайни апартаменти, офиси и магазини на бул. Янко Комитов
от 94 833 €(от 185 477,23 лв.)
(1 750 €/кв.м. - 2 100 €/кв.м.)(3 422,70 лв./кв.м. - 4 107,24 лв./кв.м.)Площ: 54.19 - 194.95 кв.м.
Павел Раванов
Старши брокер, Бургас
Продажба
ново
ВТОРА ЛИНИЯ
Нов жилищен комплекс на ул. Манастирска в кв. Сарафово
гр. Бургас , кв. "Сарафово"
Разнообразие от апартаменти в процес на строителство на втора линия от плажа
Нов жилищен комплекс на ул. Манастирска в кв. Сарафово - Разнообразие от апартаменти в процес на строителство на втора линия от плажа
от 52 500 €(от 102 681,08 лв.)
(1 500 €/кв.м.)(2 933,75 лв./кв.м.)Площ: 35.00 - 128.99 кв.м.
Павел Раванов
Старши брокер, Бургас
Продажба
ново
Новoстрояща се жилищна сграда в ж.к. Зорница, Бургас
гр. Бургас , кв. "Зорница"
Двустайни и тристайни апартаменти без такса поддръжка на 600 м от морето
Новoстрояща се жилищна сграда в ж.к. Зорница, Бургас - Двустайни и тристайни апартаменти без такса поддръжка на 600 м от морето
от 220 638 €(от 431 530,42 лв.)
(1 800 €/кв.м. - 1 930 €/кв.м.)(3 520,49 лв./кв.м. - 3 774,75 лв./кв.м.)Площ: 114.32 - 134.22 кв.м.
Павел Раванов
Старши брокер, Бургас
Продажба
ново
Модерна жилищна сграда в ж.к Зорница
гр. Бургас , кв. "Зорница"
Двустайни и тристайни апартаменти със спокойна жилищна среда в район с отлична инфраструктура
Модерна жилищна сграда в ж.к Зорница - Двустайни и тристайни апартаменти със спокойна жилищна среда в район с отлична инфраструктура
от 141 592 €(от 276 929,88 лв.)
(800 €/кв.м. - 2 300 €/кв.м.)(1 564,66 лв./кв.м. - 4 498,41 лв./кв.м.)Площ: 61.56 - 323.51 кв.м.
Георги Иванов
Брокер, Бургас
Продажба
За частни лица
Студио на главен път в Равда
с. Равда
Функционален имот, подходящ за живеене или инвестиция
Студио на главен път в Равда - Функционален имот, подходящ за живеене или инвестиция
Продажба
За частни лица
Двустаен апартамент с отлична локация и потенциал в район Възраждане
гр. Бургас , кв. "Възраждане"
Двустаен апартамент на комуникативно място в Бургас
Двустаен апартамент с отлична локация и потенциал в район Възраждане - Двустаен апартамент на комуникативно място в Бургас
Продажба
Лукс
Азимут Ринг – новият модерен жилищен квартал на Бургас
гр. Бургас , кв. "Хоризонт"
Мащабен градски проект с визия за бъдещето
Азимут Ринг – новият модерен жилищен квартал на Бургас - Мащабен градски проект с визия за бъдещето
от 61 167 €(от 119 632,25 лв.)
(1 450 €/кв.м. - 1 670 €/кв.м.)(2 835,95 лв./кв.м. - 3 266,24 лв./кв.м.)Площ: 38.47 - 127.50 кв.м.
Георги Иванов
Брокер, Бургас
Продажба
Новопостроена сграда в кв. Сарафово
гр. Бургас , кв. "Сарафово"
Двустайни и тристайни апартаменти на 300 метра от плажа и в близост до комплекс „Атлантис“
Новопостроена сграда в кв. Сарафово - Двустайни и тристайни апартаменти на 300 метра от плажа и в близост до комплекс „Атлантис“
от 88 000 €(от 172 113,04 лв.)
(1 239 €/кв.м. - 1 295 €/кв.м.)(2 423,27 лв./кв.м. - 2 532,80 лв./кв.м.)Площ: 70.93 - 88.77 кв.м.
Павел Раванов
Старши брокер, Бургас
Продажба
Панорамен двустаен апартамент в предпочитана сграда с Акт 16
гр. Бургас , кв. "Изгрев"
Светъл и просторен имот с отлична локация и прекрасна гледка
Панорамен двустаен апартамент в предпочитана сграда с Акт 16 - Светъл и просторен имот с отлична локация и прекрасна гледка
Продажба
Тристаен апартамент с потенциал в ж.к. Изгрев, гр. Бургас
гр. Бургас , кв. "Изгрев"
Жилище с две спални в близост до автобусна спирка, магазини, училище и детска градина
Тристаен апартамент с потенциал в ж.к. Изгрев, гр. Бургас - Жилище с две спални в близост до автобусна спирка, магазини, училище и детска градина
Продажба
Едностаен апартамент в затворен комплекс в кв. Сарафово, гр. Бургас
гр. Бургас , кв. "Сарафово"
Готов за живеене или отдаване под наем имот в близост до морето
Едностаен апартамент в затворен комплекс в кв. Сарафово, гр. Бургас - Готов за живеене или отдаване под наем имот в близост до морето
Наем
Обзаведен пентхаус с морска панорама в кв. Сарафово
гр. Бургас , кв. "Сарафово"
Просторно жилище с голяма тераса и отлична локация
Обзаведен пентхаус с морска панорама в кв. Сарафово - Просторно жилище с голяма тераса и отлична локация
Продажба
Добре разработен търговски обект в ж.к. Меден рудник – отлична инвестиция с утвърден бизнес
гр. Бургас , кв. "Меден рудник - зона Г"
Магазин на комуникативно място, работещ успешно от години
Добре разработен търговски обект в ж.к. Меден рудник – отлична инвестиция с утвърден бизнес - Магазин на комуникативно място, работещ успешно от години
Вижте още имоти в кв. "Мадика" в град Бургас:
- Апартаменти (различни типове) в кв. "Мадика"
- Къщи в кв. "Мадика"
- Офиси в кв. "Мадика"
- Магазини в кв. "Мадика"
- Земи в кв. "Мадика"
- Всички имоти в кв. "Мадика"
Вижте още имоти в град Бургас:
Абонирайте се за нашия канал