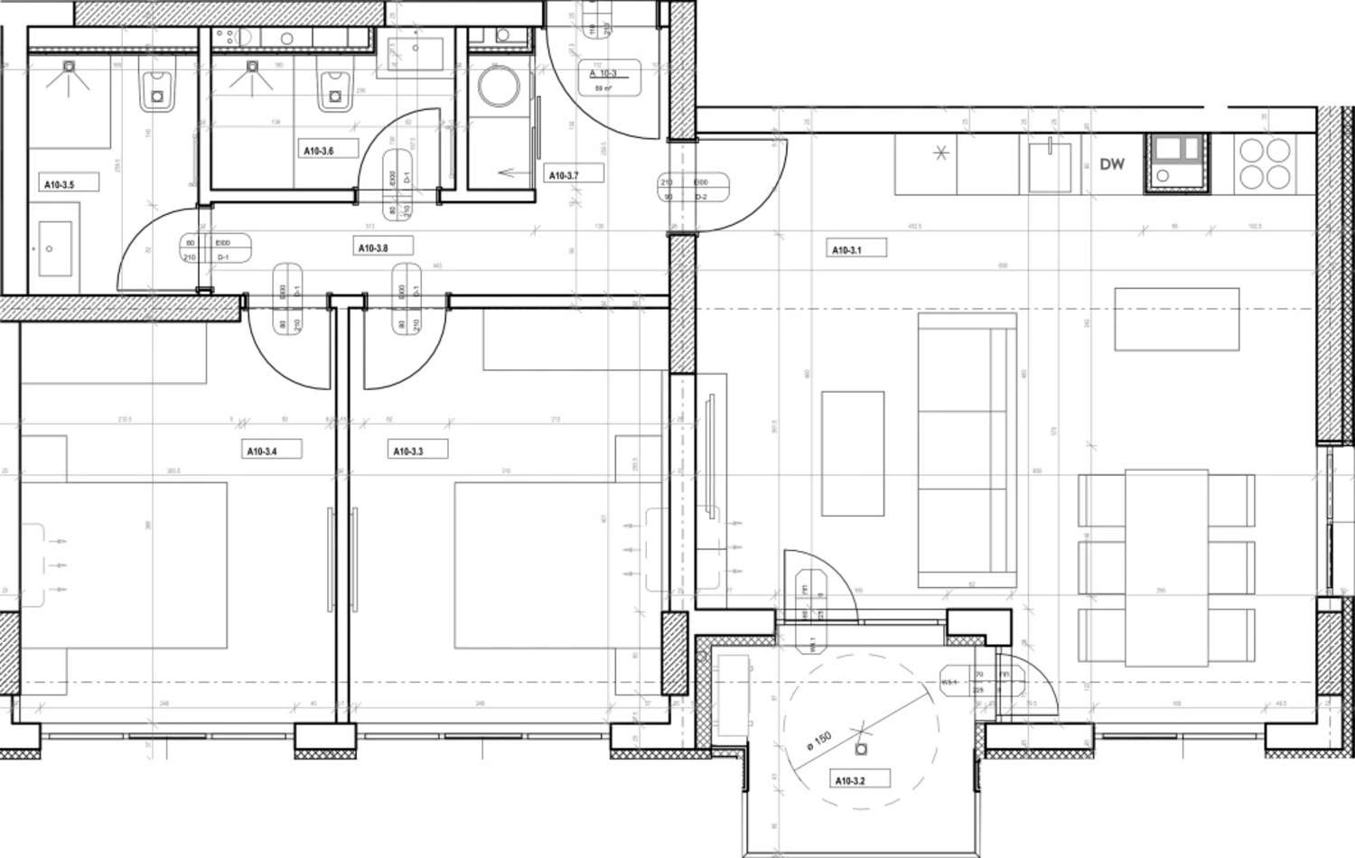
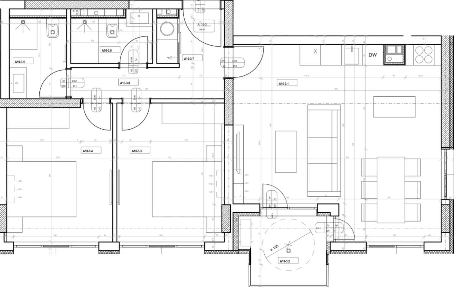
апартамент A1303 , обща площ 110.57 кв.м. (нетна площ 89.00 кв.м. + общи части 21.57 кв.м.).
С радост представяме нов предстоящ проект – комплекс със смесено предназначение в гр. Бургас, създаден като съвременна градска среда, която съчетава живот, работа, отдих и инвестиционен потенциал в едно хармонично и функционално пространство.
В комплекса са предвидени:
• Жилищна част
Разнообразие от двустайни, тристайни и четиристайни апартаменти, проектирани с функционални разпределения, добра осветеност и комфорт за съвременен начин на живот. Жилищата са подходящи както за лично ползване, така и за инвестиция.
• Офиси и конферентна зона
Сградата включва офис площи и многофункционална конферентна зала, предназначена за събития, срещи и професионални формати.
• Търговски обекти и кафене
Партерното ниво е проектирано с търговски площи и заведения, които допринасят за активна и оживена градска среда.
• Апарт-хотел
Част от концепцията е включването на апарт-хотел, което допълнително увеличава инвестиционния потенциал на проекта.
• Зелени площи и удобства
Комплексът предлага зони за отдих и озеленени пространства, предназначени за живущите и посетителите. Вътрешният двор осигурява спокойствие, сигурност и комфорт, изолиран от уличната мрежа.
За удобство на обитателите и гостите са предвидени:
• възможност за закупуване на подземни гаражи и надземни паркоместа;
• допълнителни паркоместа за посетители на партерно ниво;
• обособени места за велосипеди.
Проектът се отличава със съвременен архитектурен облик, висока функционалност и внимание към детайла. Архитектурното решение създава вдъхновяваща среда, в която работата и личният живот се допълват естествено.
Комплексът е добре ситуиран, с отлична локация и изградени транспортни връзки. Достъпът е лесен както с автомобил, така и с обществен транспорт, а обкръжаващата инфраструктура гарантира удобство за ежедневието.
Комплекс, който създава нов стандарт за градски живот в Бургас. Този проект обединява архитектура, функционалност и визия за бъдещето, превръщайки се в естествена част от модерната градска среда и предлагаща дългосрочна стойност за своите обитатели и инвеститори.
Оглед на имота
Можем да организираме оглед на имота спрямо нашия график и възможностите за достъп до него. Заявете вашето желание за оглед, като се свържете с отговорния за офертата брокер по имейл или телефон.
Резервация на имота
Имотът може да бъде резервиран и свален от продажба със заплащане на депозит, след което се прекратява провеждането на огледи с други купувачи и започва подготовка на документите за сключване на предварителен и окончателен договор. Свържете се с отговорния брокер за подробна информация относно процедурата на покупка и начините за плащане.
Жилищен кредит
Ние си партнираме с водещите български банки и можем да ви свържем с техните консултанти за информация и кандидатстване за кредит.
- Описание
- Характеристики
- Галерия
- Местоположение
- Ценова листа
Характеристики на имота
Тип на имота
Тристаен апартамент
Реф. номер
BS 88892
Площ
110.57 м2 (чиста площ: 89 м2 плюс общи части: 21.57 м2)
Спални
2
Състояние
прочетете текста
Етаж
13 от 16
Асансьор
да
Обзавеждане
Необзаведен
Отопление
Климатици
Тип строителство
Тухла, Ново строителство
Изложение:
Изток, Запад, Север, Юг
Година на построяване
2028
Още информация за Модерен жилищен проект в квартал Мадика на гр. Бургас:
План на имота
Планове
Ценова листа
Качество на въздуха
Обзавеждане
Снимки от въздуха
Общ план
360° изглед
Инфо пакет
Референтен номер: BS 88892
Местоположение
гр. Бургас, кв."Мадика"Удобства в района
- Детска градина "ОДЗ №15 "Моряче"" на 426 м. (6 мин.)
- Детска градина "ЦДГ-28 Детелина" на 466 м. (6 мин.)
- Училище "НБУ Михаил Лъкатник" на 369 м. (5 мин.)
- Училище "НБУ Михаил Лъкатник" на 535 м. (7 мин.)
- Университет "Университет Проф. Д-р Асен Златаров Педагогически факултет" на 406 м. (5 мин.)
- Университет "Бургаски държавен университет „Проф. д-р Асен Златаров“" на 480 м. (6 мин.)
- Болница "МБАЛ "Сърце и мозък"" на 397 м. (5 мин.)
- Медицински център "Медицински център 2" на 407 м. (5 мин.)
- Хранителен магазин "Минимаркет" на 915 м. (12 мин.)
- Супермаркет "Lidl" на 124 м. (2 мин.)
- Супермаркет "Т-Маркет" на 320 м. (4 мин.)
- Мол "Престиж" на 1.1 км. (14 мин.)
- Аптека "Аптека Пулс" на 701 м. (9 мин.)
- Поща/Куриер "Еконт" на 727 м. (9 мин.)
- Поща/Куриер "Еконт" на 749 м. (10 мин.)
- Ветеринарен лекар "Ветеринарномедицинска клиника МобиВет" на 888 м. (11 мин.)
- Ресторант "Шан Хай" на 580 м. (7 мин.)
- Ресторант на 891 м. (11 мин.)
- Кафене на 689 м. (9 мин.)
- Спортен терен на 276 м. (4 мин.)
- Тенис корт на 389 м. (5 мин.)
- Парк на 659 м. (8 мин.)
- Паркинг на 59 м. (1 мин.)
- Бензиностанция "Петрол" на 483 м. (6 мин.)
- Зарядна станция "Fines Charging" на 787 м. (10 мин.)
- Автомивка "OMV Автомивка" на 792 м. (10 мин.)
- Автосервиз "Westauto-M ltd." на 95 м. (2 мин.)
ТРАНСПОРТ
УЧЕБНИ ЗАВЕДЕНИЯ
ЛЕЧЕБНИ ЗАВЕДЕНИЯ
ПАЗАРУВАНЕ
УСЛУГИ
ЗАВЕДЕНИЯ
СПОРТ И СВОБОДНО ВРЕМЕ
ПРИРОДА И ЗАБЕЛЕЖИТЕЛНОСТИ
АВТОМОБИЛНИ УСЛУГИ
Изпратете запитване
175 806 €
(343 846,65 лв.)
- €
- $
- £
В процес на строителство
Планирано завършване: 20.12.2028 г
Без комисионна
Ценова листа
*/ ?>
ЗА ПОВЕЧЕ ИНФОРМАЦИЯ
Реф. номер: BS 88892
При обаждане, моля цитирайте референтния номер на имота.
Налични имоти в комплекса
124
имота
124
свободни
0
продадени
0
резервирани
Изпратете запитване
Още имоти в този комплекс
Продажба
Тристаен апартамент в Модерен жилищен проект в квартал Мадика на гр. Бургас
гр. Бургас , кв. "Мадика"
Сграда със смесено предназначение и отлична локация с изградени транспортни връзки
153 053 €299 345,65 лв.
(1 390 €/кв.м.) (2 718,60 лв./кв.м.)110.11 кв.м.
Георги Иванов
Брокер, Бургас
Продажба
Тристаен апартамент в Модерен жилищен проект в квартал Мадика на гр. Бургас
гр. Бургас , кв. "Мадика"
Сграда със смесено предназначение и отлична локация с изградени транспортни връзки
160 281 €313 482,39 лв.
(1 390 €/кв.м.) (2 718,60 лв./кв.м.)115.31 кв.м.
Георги Иванов
Брокер, Бургас
Продажба
Двустаен апартамент в Модерен жилищен проект в квартал Мадика на гр. Бургас
гр. Бургас , кв. "Мадика"
Сграда със смесено предназначение и отлична локация с изградени транспортни връзки
126 337 €247 093,69 лв.
(1 389 €/кв.м.) (2 716,65 лв./кв.м.)90.89 кв.м.
Георги Иванов
Брокер, Бургас
Продажба
Двустаен апартамент в Модерен жилищен проект в квартал Мадика на гр. Бургас
гр. Бургас , кв. "Мадика"
Сграда със смесено предназначение и отлична локация с изградени транспортни връзки
123 571 €241 683,87 лв.
(1 390 €/кв.м.) (2 718,60 лв./кв.м.)88.90 кв.м.
Георги Иванов
Брокер, Бургас
Продажба
Двустаен апартамент в Модерен жилищен проект в квартал Мадика на гр. Бургас
гр. Бургас , кв. "Мадика"
Сграда със смесено предназначение и отлична локация с изградени транспортни връзки
Продажба
Двустаен апартамент в Модерен жилищен проект в квартал Мадика на гр. Бургас
гр. Бургас , кв. "Мадика"
Сграда със смесено предназначение и отлична локация с изградени транспортни връзки
100 375 €196 316,44 лв.
(1 460 €/кв.м.) (2 855,51 лв./кв.м.)68.75 кв.м.
Георги Иванов
Брокер, Бургас
Продажба
Тристаен апартамент в Модерен жилищен проект в квартал Мадика на гр. Бургас
гр. Бургас , кв. "Мадика"
Сграда със смесено предназначение и отлична локация с изградени транспортни връзки
164 749 €322 221,04 лв.
(1 489 €/кв.м.) (2 912,23 лв./кв.м.)110.57 кв.м.
Георги Иванов
Брокер, Бургас
Продажба
Двустаен апартамент в Модерен жилищен проект в квартал Мадика на гр. Бургас
гр. Бургас , кв. "Мадика"
Сграда със смесено предназначение и отлична локация с изградени транспортни връзки
100 203 €195 980,03 лв.
(1 490 €/кв.м.) (2 914,19 лв./кв.м.)67.25 кв.м.
Георги Иванов
Брокер, Бургас
Продажба
Тристаен апартамент в Модерен жилищен проект в квартал Мадика на гр. Бургас
гр. Бургас , кв. "Мадика"
Сграда със смесено предназначение и отлична локация с изградени транспортни връзки
146 452 €286 435,22 лв.
(1 489 €/кв.м.) (2 912,23 лв./кв.м.)98.29 кв.м.
Георги Иванов
Брокер, Бургас
Продажба
Тристаен апартамент в Модерен жилищен проект в квартал Мадика на гр. Бургас
гр. Бургас , кв. "Мадика"
Сграда със смесено предназначение и отлична локация с изградени транспортни връзки
146 199 €285 940,39 лв.
(1 490 €/кв.м.) (2 914,19 лв./кв.м.)98.12 кв.м.
Георги Иванов
Брокер, Бургас
Продажба
Двустаен апартамент в Модерен жилищен проект в квартал Мадика на гр. Бургас
гр. Бургас , кв. "Мадика"
Сграда със смесено предназначение и отлична локация с изградени транспортни връзки
100 992 €197 523,18 лв.
(1 489 €/кв.м.) (2 912,23 лв./кв.м.)67.78 кв.м.
Георги Иванов
Брокер, Бургас
Продажба
Двустаен апартамент в Модерен жилищен проект в квартал Мадика на гр. Бургас
гр. Бургас , кв. "Мадика"
Сграда със смесено предназначение и отлична локация с изградени транспортни връзки
100 375 €196 316,44 лв.
(1 460 €/кв.м.) (2 855,51 лв./кв.м.)68.75 кв.м.
Георги Иванов
Брокер, Бургас
Продажба
Тристаен апартамент в Модерен жилищен проект в квартал Мадика на гр. Бургас
гр. Бургас , кв. "Мадика"
Сграда със смесено предназначение и отлична локация с изградени транспортни връзки
164 749 €322 221,04 лв.
(1 489 €/кв.м.) (2 912,23 лв./кв.м.)110.57 кв.м.
Георги Иванов
Брокер, Бургас
Продажба
Двустаен апартамент в Модерен жилищен проект в квартал Мадика на гр. Бургас
гр. Бургас , кв. "Мадика"
Сграда със смесено предназначение и отлична локация с изградени транспортни връзки
106 928 €209 132,99 лв.
(1 590 €/кв.м.) (3 109,77 лв./кв.м.)67.25 кв.м.
Георги Иванов
Брокер, Бургас
Продажба
Тристаен апартамент в Модерен жилищен проект в квартал Мадика на гр. Бургас
гр. Бургас , кв. "Мадика"
Сграда със смесено предназначение и отлична локация с изградени транспортни връзки
146 452 €286 435,22 лв.
(1 489 €/кв.м.) (2 912,23 лв./кв.м.)98.29 кв.м.
Георги Иванов
Брокер, Бургас
Продажба
Тристаен апартамент в Модерен жилищен проект в квартал Мадика на гр. Бургас
гр. Бургас , кв. "Мадика"
Сграда със смесено предназначение и отлична локация с изградени транспортни връзки
146 199 €285 940,39 лв.
(1 490 €/кв.м.) (2 914,19 лв./кв.м.)98.12 кв.м.
Георги Иванов
Брокер, Бургас
Продажба
Двустаен апартамент в Модерен жилищен проект в квартал Мадика на гр. Бургас
гр. Бургас , кв. "Мадика"
Сграда със смесено предназначение и отлична локация с изградени транспортни връзки
Продажба
Двустаен апартамент в Модерен жилищен проект в квартал Мадика на гр. Бургас
гр. Бургас , кв. "Мадика"
Сграда със смесено предназначение и отлична локация с изградени транспортни връзки
100 375 €196 316,44 лв.
(1 460 €/кв.м.) (2 855,51 лв./кв.м.)68.75 кв.м.
Георги Иванов
Брокер, Бургас
Продажба
Тристаен апартамент в Модерен жилищен проект в квартал Мадика на гр. Бургас
гр. Бургас , кв. "Мадика"
Сграда със смесено предназначение и отлична локация с изградени транспортни връзки
164 749 €322 221,04 лв.
(1 489 €/кв.м.) (2 912,23 лв./кв.м.)110.57 кв.м.
Георги Иванов
Брокер, Бургас
Продажба
Двустаен апартамент в Модерен жилищен проект в квартал Мадика на гр. Бургас
гр. Бургас , кв. "Мадика"
Сграда със смесено предназначение и отлична локация с изградени транспортни връзки
100 203 €195 980,03 лв.
(1 490 €/кв.м.) (2 914,19 лв./кв.м.)67.25 кв.м.
Георги Иванов
Брокер, Бургас
Продажба
Тристаен апартамент в Модерен жилищен проект в квартал Мадика на гр. Бургас
гр. Бургас , кв. "Мадика"
Сграда със смесено предназначение и отлична локация с изградени транспортни връзки
146 452 €286 435,22 лв.
(1 489 €/кв.м.) (2 912,23 лв./кв.м.)98.29 кв.м.
Георги Иванов
Брокер, Бургас
Продажба
Тристаен апартамент в Модерен жилищен проект в квартал Мадика на гр. Бургас
гр. Бургас , кв. "Мадика"
Сграда със смесено предназначение и отлична локация с изградени транспортни връзки
146 199 €285 940,39 лв.
(1 490 €/кв.м.) (2 914,19 лв./кв.м.)98.12 кв.м.
Георги Иванов
Брокер, Бургас
Продажба
Тристаен апартамент в Модерен жилищен проект в квартал Мадика на гр. Бургас
гр. Бургас , кв. "Мадика"
Сграда със смесено предназначение и отлична локация с изградени транспортни връзки
163 243 €319 275,56 лв.
(1 460 €/кв.м.) (2 855,51 лв./кв.м.)111.81 кв.м.
Георги Иванов
Брокер, Бургас
Продажба
Тристаен апартамент в Модерен жилищен проект в квартал Мадика на гр. Бургас
гр. Бургас , кв. "Мадика"
Сграда със смесено предназначение и отлична локация с изградени транспортни връзки
144 287 €282 200,84 лв.
(1 290 €/кв.м.) (2 523,02 лв./кв.м.)111.85 кв.м.
Георги Иванов
Брокер, Бургас
Продажба
Тристаен апартамент в Модерен жилищен проект в квартал Мадика на гр. Бургас
гр. Бургас , кв. "Мадика"
Сграда със смесено предназначение и отлична локация с изградени транспортни връзки
149 085 €291 584,92 лв.
(1 289 €/кв.м.) (2 521,06 лв./кв.м.)115.57 кв.м.
Георги Иванов
Брокер, Бургас
Още имоти в кв. Мадика
Продажба
Нов жилищен проект в развиващия се квартал Мадика
гр. Бургас , кв. "Мадика"
Модерна 7-етажна жилищна сграда с отлична локация и условия за комфортен градски живот
Нов жилищен проект в развиващия се квартал Мадика - Модерна 7-етажна жилищна сграда с отлична локация и условия за комфортен градски живот
от 94 691 €(от 185 199,50 лв.)
(500 €/кв.м. - 1 550 €/кв.м.)(977,92 лв./кв.м. - 3 031,54 лв./кв.м.)Площ: 61.09 - 422.61 кв.м.
Павел Раванов
Старши брокер, Бургас
Продажба
Нов жилищен комплекс в бързо развиващия се кв. Мадика
гр. Бургас , кв. "Мадика"
Просторни жилища, офиси, паркоместа и гаражи до многопрофилната болница „Сърце и мозък“
Нов жилищен комплекс в бързо развиващия се кв. Мадика - Просторни жилища, офиси, паркоместа и гаражи до многопрофилната болница „Сърце и мозък“
от 84 108 €(от 164 500,95 лв.)
(1 200 €/кв.м. - 1 300 €/кв.м.)(2 347 лв./кв.м. - 2 542,58 лв./кв.м.)Площ: 70.09 - 148.18 кв.м.
Павел Раванов
Старши брокер, Бургас
Продажба
Новопостроен медицински център до болница Сърце и Мозък
гр. Бургас , кв. "Мадика"
Имот със статут на медицински център в кв. Мадика
Новопостроен медицински център до болница Сърце и Мозък - Имот със статут на медицински център в кв. Мадика
Продажба
Просторен парцел земя в местност Мадика в гр. Бургас
гр. Бургас , кв. "Мадика"
Обширна земеделска земя 3-та категория близо до КАТ и промишлени предприятия
Просторен парцел земя в местност Мадика в гр. Бургас - Обширна земеделска земя 3-та категория близо до КАТ и промишлени предприятия
Още имоти в гр. Бургас
Продажба
Лукс
Висок клас жилищен проект с топла връзка с Grand Plaza Mall
гр. Бургас , кв. "Хоризонт"
Жилища в модерен комплекс от затворен тип в кв. Хоризонт
Висок клас жилищен проект с топла връзка с Grand Plaza Mall - Жилища в модерен комплекс от затворен тип в кв. Хоризонт
от 87 956 €(от 172 026,98 лв.)
(1 002 €/кв.м. - 1 571 €/кв.м.)(1 959,74 лв./кв.м. - 3 072,61 лв./кв.м.)Площ: 61.81 - 270.48 кв.м.
Павел Раванов
Старши брокер, Бургас
Продажба
ново
Четиристаен апартамент с топ локация в центъра на Бургас
гр. Бургас , кв. "Център"
Комфортно обзаведено просторно жилище до площад Тройката
Четиристаен апартамент с топ локация в центъра на Бургас - Комфортно обзаведено просторно жилище до площад Тройката
288 400 €(564 061,37 лв.)
(3 240 €/кв.м.)(6 337,77 лв./кв.м.)Площ: 89.00 кв.м.
Георги Иванов
Брокер, Бургас
Продажба
Триетажна къща с двор в ж.к. Меден Рудник
гр. Бургас , кв. "Меден рудник - зона А"
Голяма къща за спокойно съжителство на до три семейства близо до училище и възлов булевард
Триетажна къща с двор в ж.к. Меден Рудник - Голяма къща за спокойно съжителство на до три семейства близо до училище и възлов булевард
Наем
Лукс
Двустаен апартамент на първа линия с морска панорама в Сарафово
гр. Бургас , кв. "Сарафово"
Бутиков имот под наем в нова луксозна сграда с директен достъп до плажа
Двустаен апартамент на първа линия с морска панорама в Сарафово - Бутиков имот под наем в нова луксозна сграда с директен достъп до плажа
Продажба
Просторен и напълно обзаведен апартамент на ул. Александровска в центъра на Бургас
гр. Бургас , кв. "Център"
Отлична инвестиция с удобен достъп до всички важни точки на града
Просторен и напълно обзаведен апартамент на ул. Александровска в центъра на Бургас - Отлична инвестиция с удобен достъп до всички важни точки на града
Продажба
Лукс
ПЪРВА ЛИНИЯ
Kafka – Първокласен морски комплекс от ново поколение на първа линия в Крайморие
гр. Бургас , кв. "Крайморие"
Мащабен жилищен проект между три плажа – самостоятелни къщи със собствен дво, модерни апартаменти, цялостна инфраструктура и целогодишен комфорт
Kafka – Първокласен морски комплекс от ново поколение на първа линия в Крайморие - Мащабен жилищен проект между три плажа – самостоятелни къщи със собствен дво, модерни апартаменти, цялостна инфраструктура и целогодишен комфорт
от 216 000 €(от 422 459,28 лв.)
(1 233 €/кв.м. - 2 331 €/кв.м.)(2 411,54 лв./кв.м. - 4 559,04 лв./кв.м.)Площ: 131.17 - 271.50 кв.м.
Георги Иванов
Брокер, Бургас
Продажба
Лукс
Луксозен просторен пентхаус в кв. Възраждане, Бургас
гр. Бургас , кв. "Възраждане"
Самостоятелен етаж от сграда в централната част на града
Луксозен просторен пентхаус в кв. Възраждане, Бургас - Самостоятелен етаж от сграда в централната част на града
249 000 €(487 001,67 лв.)
(1 915 €/кв.м.)(3 746,17 лв./кв.м.)Площ: 130.00 кв.м.
Георги Иванов
Брокер, Бургас
Продажба
Двуетажна къща с двор в местност Лахана
гр. Бургас , кв. "Сарафово"
Чудесна къща в затворен комплекс в кв. Сарафово
Двуетажна къща с двор в местност Лахана - Чудесна къща в затворен комплекс в кв. Сарафово
Наем
Двустаен апартамент в близост до плажа в кв. Сарафово
гр. Бургас , кв. "Сарафово"
Напълно обзаведен апартамент с морска гледка, спокойна локация и 6 месеца предплатена телевизия и интернет
Двустаен апартамент в близост до плажа в кв. Сарафово - Напълно обзаведен апартамент с морска гледка, спокойна локация и 6 месеца предплатена телевизия и интернет
Продажба
Инвестиционен парцел с лице към главен път
гр. Бургас , кв. "Банево"
Земя между Ветрен и Банево в района на Минерални бани – Бургас
Инвестиционен парцел с лице към главен път - Земя между Ветрен и Банево в района на Минерални бани – Бургас
Продажба
Двустаен апартамент с панорамна гледка в кв. "Меден рудник - зона В"
гр. Бургас , кв. "Меден рудник - зона В"
Просторен апартамент с югоизточно изложение и красива панорама
Двустаен апартамент с панорамна гледка в кв. "Меден рудник - зона В" - Просторен апартамент с югоизточно изложение и красива панорама
Продажба
Лукс
Луксозен жилищен проект в кв. Хоризонт
гр. Бургас , кв. "Хоризонт"
Модерни жилища до новия студентски кампус в гр. Бургас
Луксозен жилищен проект в кв. Хоризонт - Модерни жилища до новия студентски кампус в гр. Бургас
от 67 930 €(от 132 859,53 лв.)
(1 377 €/кв.м. - 1 620 €/кв.м.)(2 693,18 лв./кв.м. - 3 168,44 лв./кв.м.)Площ: 41.93 - 101.38 кв.м.
Георги Иванов
Брокер, Бургас
Продажба
Новострояща се сграда в кв. Долно Езерово
гр. Бургас , кв. "Долно Езерово"
Aпартаменти с 1, 2 или 3 спални в новострояща се сграда в Бургас
Новострояща се сграда в кв. Долно Езерово - Aпартаменти с 1, 2 или 3 спални в новострояща се сграда в Бургас
от 74 822 €(от 146 339,11 лв.)
(1 200 €/кв.м. - 1 450 €/кв.м.)(2 347 лв./кв.м. - 2 835,95 лв./кв.м.)Площ: 60.34 - 119.99 кв.м.
Павел Раванов
Старши брокер, Бургас
Продажба
За частни лица
Двустаен апартамент с отлична локация и потенциал в район Възраждане
гр. Бургас , кв. "Възраждане"
Двустаен апартамент на комуникативно място в Бургас
Двустаен апартамент с отлична локация и потенциал в район Възраждане - Двустаен апартамент на комуникативно място в Бургас
Продажба
Хит
Лукс
Двустайни, тристайни и четиристайни морски апартаменти в кв. Хоризонт
гр. Бургас , кв. "Хоризонт"
Нова жилищна сграда до Университет "Проф. д-р Асен Златаров"
Двустайни, тристайни и четиристайни морски апартаменти в кв. Хоризонт - Нова жилищна сграда до Университет "Проф. д-р Асен Златаров"
от 87 693 €(от 171 512,60 лв.)
(500 €/кв.м. - 1 420 €/кв.м.)(977,92 лв./кв.м. - 2 777,28 лв./кв.м.)Площ: 61.76 - 402.76 кв.м.
Георги Иванов
Брокер, Бургас
Продажба
Двустаен апартамент ново строителство в кв. Азимут, Бургас
гр. Бургас , кв. "Хоризонт"
Модерен дом в най-бързо развиващата се зона на града на 5 минути от морето
Двустаен апартамент ново строителство в кв. Азимут, Бургас - Модерен дом в най-бързо развиващата се зона на града на 5 минути от морето
Продажба
Двустаен апартамент в ж.к Славейков в близост до парка
гр. Бургас , кв. "Славейков"
Топло жилище с частично обзавеждане в поддържан вход
Двустаен апартамент в ж.к Славейков в близост до парка - Топло жилище с частично обзавеждане в поддържан вход
Продажба
Тристаен апартамент с обзавеждане в ж.к. Възраждане
гр. Бургас , кв. "Възраждане"
Просторно жилище в един от най-предпочитаните централни квартали на Бургас
Тристаен апартамент с обзавеждане в ж.к. Възраждане - Просторно жилище в един от най-предпочитаните централни квартали на Бургас
Продажба
Тристаен апартамент с гледка море
гр. Бургас , кв. "Сарафово"
Имот в сграда с акт 16 и гледка море в квартал Сарафово
Тристаен апартамент с гледка море - Имот в сграда с акт 16 и гледка море в квартал Сарафово
Продажба
Нов жилищен комплекс в ж.к. Изгрев, Бургас
гр. Бургас , кв. "Изгрев"
Апартаменти с гледка към парк и отлична градска локация
Нов жилищен комплекс в ж.к. Изгрев, Бургас - Апартаменти с гледка към парк и отлична градска локация
от 138 790 €(от 271 449,65 лв.)
(1 830 €/кв.м. - 2 013 €/кв.м.)(3 579,17 лв./кв.м. - 3 937,09 лв./кв.м.)Площ: 0.00 - 137.43 кв.м.
Георги Иванов
Брокер, Бургас
Продажба
Земеделска земя в близост до регулация в с. Лозенец
с. Лозенец
Парцел с отлична локация в м. Хаджияне – близо до главен път и комуникации
Земеделска земя в близост до регулация в с. Лозенец - Парцел с отлична локация в м. Хаджияне – близо до главен път и комуникации
Продажба
Земеделска земя - нива, категория 9
гр. Бургас , кв. "Черно море"
Перспективен имот в район с благоприятен климат и възможност за обединяване на съседни парцели
Земеделска земя - нива, категория 9 - Перспективен имот в район с благоприятен климат и възможност за обединяване на съседни парцели
35 100 €28 080 €68,45 лв.54 919,71 лв.
(4 €/кв.м.)(7,82 лв./кв.м.)Площ: 7 020.00 кв.м.
Павел Раванов
Старши брокер, Бургас
Продажба
Лукс
Апартамент с две спални във висок клас комплекс до Grand Plaza Mall
гр. Бургас , кв. "Хоризонт"
Тристайно жилище с комплекс с много удобства в Бургас
Апартамент с две спални във висок клас комплекс до Grand Plaza Mall - Тристайно жилище с комплекс с много удобства в Бургас
Продажба
Къща с хубав двор и басейн край Бургас
с. Брястовец
Двуетажна къща с панорамна гледка – тишина, зеленина и уют
Къща с хубав двор и басейн край Бургас - Двуетажна къща с панорамна гледка – тишина, зеленина и уют
Продажба
Земеделска земя за промишлено застрояване, индустриални и логистични проекти
гр. Бургас , кв. "Долно Езерово"
Парцел до Лукойл Нефтохим и железопътна инфраструктура в кв. Долно Езерово, Бургас
Земеделска земя за промишлено застрояване, индустриални и логистични проекти - Парцел до Лукойл Нефтохим и железопътна инфраструктура в кв. Долно Езерово, Бургас
810 000 €(1 584 222,30 лв.)
(8,80 €/кв.м.)(17,22 лв./кв.м.)Площ: 92 000.00 кв.м.
Георги Иванов
Брокер, Бургас
Вижте още имоти в кв. "Мадика" в град Бургас:
- Апартаменти (различни типове) в кв. "Мадика"
- Къщи в кв. "Мадика"
- Офиси в кв. "Мадика"
- Магазини в кв. "Мадика"
- Земи в кв. "Мадика"
- Всички имоти в кв. "Мадика"
Вижте още имоти в град Бургас:
Абонирайте се за нашия канал