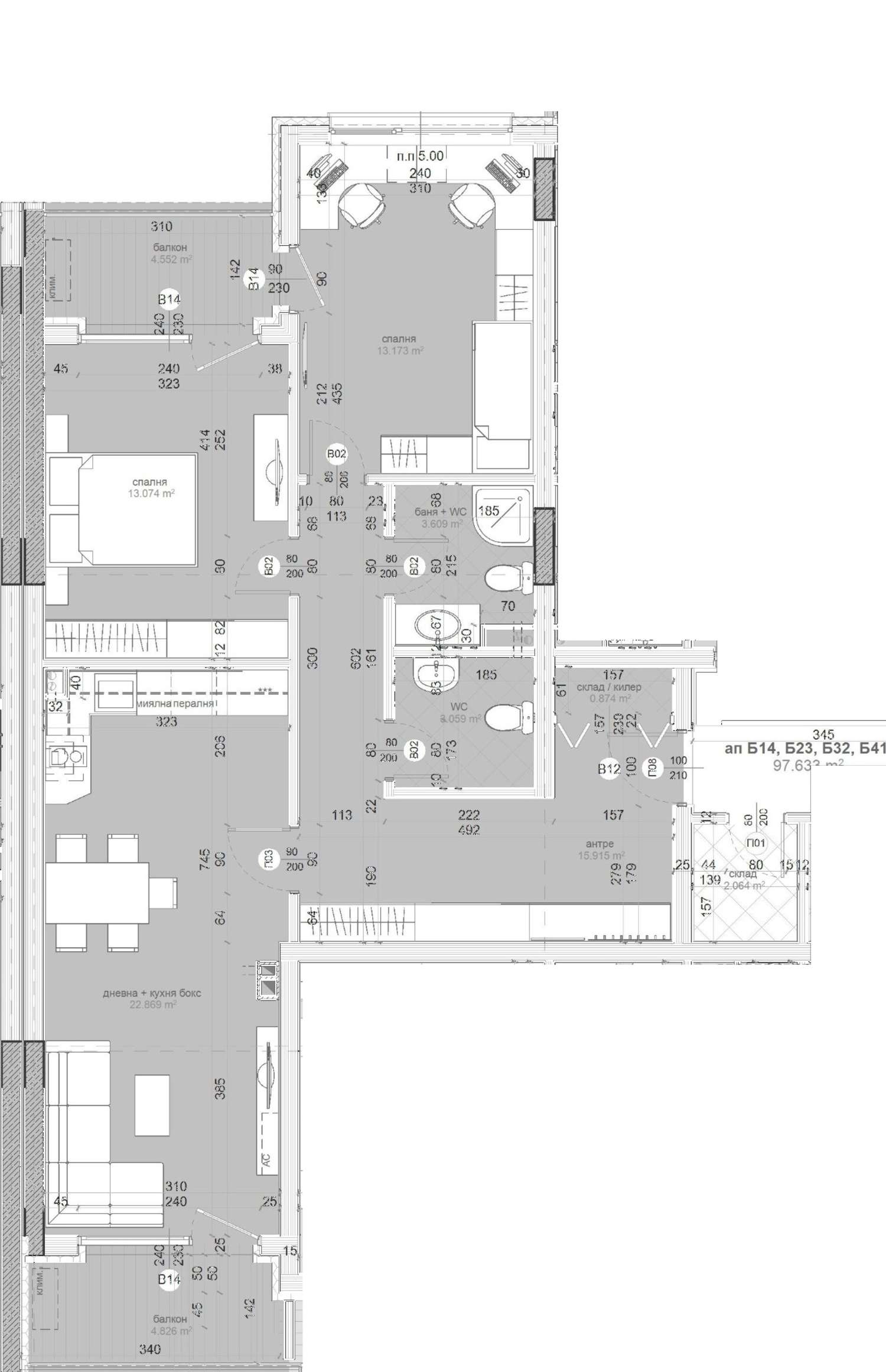
апартамент B32 , обща площ 114.85 кв.м. (нетна площ 95.17 кв.м. + общи части 17.62 кв.м.), плюс мазе от 2.06 кв.м. - .
Представяме Ви нов жилищен проект, разположен в динамично развиващия се ж.к. Меден рудник в Бургас, в района на бившия битак. Локацията е изключително комуникативна, с директен достъп до основни транспортни артерии и удобства от първа необходимост.
Проектът се намира на централен булевард, в непосредствена близост до терминал на градския транспорт, хипермаркет, училище и детска градина – всичко необходимо за комфортен и практичен начин на живот.
Сградата е проектирана на девет етажа с два входа и съчетава жилищни и търговски функции, създавайки модерна градска среда.
Удобства в комплекса
• Партерни магазини
• Възможност за закупуване на подземни и надземни гаражи и паркоместа
• Функционални двустайни и тристайни апартаменти
• Отлична локация с лесен достъп
Жилищата се предлагат по БДС стандарт (на тапа), което позволява на бъдещите собственици да реализират интериора според своя вкус и стил.
Планиран старт на строителството - 01.06.2026. Срокът за изпълнение на проекта е 36 месеца от старта на строителството.
Схема на плащане
• 10% при подписване на предварителен договор
• 30% при достигнато строително ниво и линия
• 30% при изпълнена плоча на съответния етаж
• 20% при издаване на Акт 14
• 5% при издаване на Акт 15
• 5% при издаване на Акт 16
Предимства на имота
• Отлична градска локация
• Разнообразие от апартаменти
• Подходящ както за живеене, така и за инвестиция
• Гъвкава схема на плащане
• Възможност за покупка на гараж или паркомясто
Този проект е отличен избор за клиенти, които търсят ново строителство с добра локация, функционални жилища и сигурна инвестиция в един от най-развитите райони на Бургас.
Оглед на имота
Можем да организираме оглед на имота спрямо нашия график и възможностите за достъп до него. Заявете вашето желание за оглед, като се свържете с отговорния за офертата брокер по имейл или телефон.
Резервация на имота
Имотът може да бъде резервиран и свален от продажба със заплащане на депозит, след което се прекратява провеждането на огледи с други купувачи и започва подготовка на документите за сключване на предварителен и окончателен договор. Свържете се с отговорния брокер за подробна информация относно процедурата на покупка и начините за плащане.
Жилищен кредит
Ние си партнираме с водещите български банки и можем да ви свържем с техните консултанти за информация и кандидатстване за кредит.
- Описание
- Характеристики
- Галерия
- Местоположение
- Ценова листа
Характеристики на имота
Тип на имота
Тристаен апартамент
Реф. номер
BS 89903
Площ
114.85 м2 (чиста площ: 97.23 м2 плюс общи части: 17.62 м2)
Спални
2
Състояние
БДС (на шпакловка и замазка)
Етаж
4 от 8
Асансьор
да
Обзавеждане
Напълно обзаведен
Отопление
Климатици
Тип строителство
Стоманобетонна конструкция, Тухла, Ново строителство
Изложение:
Изток, Запад, Север, Юг
Година на построяване
2029
Такса поддръжка
не
Още информация за Нов жилищен комплекс в жк Меден Рудник :
План на имота
Планове
Ценова листа
Обзавеждане
Снимки от въздуха
Общ план
360° изглед
Инфо пакет
Референтен номер: BS 89903
Местоположение
гр. Бургас, кв."Меден рудник - зона В"Удобства в района
- Детска градина "ОДЗ 13 Надежда" на 488 м. (6 мин.)
- Детска градина "ОДЗ №1 "Морска звезда"" на 492 м. (6 мин.)
- Училище "СУ „Константин Петканов“" на 506 м. (7 мин.)
- Училище "ОУ "Елин Пелин"" на 819 м. (10 мин.)
- Болница "МБАЛ Бургасмед" на 1.2 км. (15 мин.)
- Медицински център "Поликлиника" на 732 м. (9 мин.)
- Хранителен магазин "Анет" на 254 м. (4 мин.)
- Супермаркет "АНЕТ 4" на 296 м. (4 мин.)
- Супермаркет "АНЕТ 4 SWEET" на 554 м. (7 мин.)
- Пекарна "Hm" на 416 м. (6 мин.)
- Банка "ОББ" на 1.1 км. (14 мин.)
- Аптека "Лавър 2" на 1.1 км. (14 мин.)
- Поща/Куриер "Еконт" на 119 м. (2 мин.)
- Поща/Куриер "Speedy" на 201 м. (3 мин.)
- Ресторант на 1.1 км. (14 мин.)
- Ресторант "Криго" на 1.1 км. (14 мин.)
- Спортен терен "Fit City Gym" на 653 м. (8 мин.)
- Тенис корт на 252 м. (4 мин.)
- Парк на 338 м. (5 мин.)
- Паркинг на 153 м. (2 мин.)
- Бензиностанция "Милениум Газ" на 220 м. (3 мин.)
- Автосервиз "СГ Кар" на 726 м. (9 мин.)
- Библиотека на 969 м. (12 мин.)
ТРАНСПОРТ
УЧЕБНИ ЗАВЕДЕНИЯ
ЛЕЧЕБНИ ЗАВЕДЕНИЯ
ПАЗАРУВАНЕ
УСЛУГИ
ЗАВЕДЕНИЯ
СПОРТ И СВОБОДНО ВРЕМЕ
ПРИРОДА И ЗАБЕЛЕЖИТЕЛНОСТИ
АВТОМОБИЛНИ УСЛУГИ
ОБЩЕСТВЕНИ СГРАДИ И ИНСТИТУЦИИ
Изпратете запитване
114 850 €
(224 627,08 лв.)
- €
- $
- £
Предварителни Продажби
Старт на строителството: 01.06.2026 гСрок на завършване: 01.06.2029 г.
Без комисионна
Ценова листа
*/ ?>
ЗА ПОВЕЧЕ ИНФОРМАЦИЯ
Реф. номер: BS 89903
При обаждане, моля цитирайте референтния номер на имота.
Налични имоти в комплекса
41
имота
41
свободни
0
продадени
0
резервирани
Изпратете запитване
Още имоти в този комплекс
Продажба
ново
Тристаен апартамент в Нов жилищен комплекс в жк Меден Рудник
гр. Бургас , кв. "Меден рудник - зона В"
Модерни апартаменти с отлична локация и инвестиционен потенциал в района на бившия битак
117 274 €229 368,01 лв.
(1 000 €/кв.м.) (1 955,83 лв./кв.м.)117.27 кв.м.
Павел Раванов
Старши брокер, Бургас
Продажба
ново
Тристаен апартамент в Нов жилищен комплекс в жк Меден Рудник
гр. Бургас , кв. "Меден рудник - зона В"
Модерни апартаменти с отлична локация и инвестиционен потенциал в района на бившия битак
117 818 €230 431,98 лв.
(999 €/кв.м.) (1 953,87 лв./кв.м.)117.82 кв.м.
Павел Раванов
Старши брокер, Бургас
Продажба
ново
Тристаен апартамент в Нов жилищен комплекс в жк Меден Рудник
гр. Бургас , кв. "Меден рудник - зона В"
Модерни апартаменти с отлична локация и инвестиционен потенциал в района на бившия битак
117 818 €230 431,98 лв.
(999 €/кв.м.) (1 953,87 лв./кв.м.)117.82 кв.м.
Павел Раванов
Старши брокер, Бургас
Продажба
ново
Двустаен апартамент в Нов жилищен комплекс в жк Меден Рудник
гр. Бургас , кв. "Меден рудник - зона В"
Модерни апартаменти с отлична локация и инвестиционен потенциал в района на бившия битак
117 818 €230 431,98 лв.
(999 €/кв.м.) (1 953,87 лв./кв.м.)117.82 кв.м.
Павел Раванов
Старши брокер, Бургас
Продажба
ново
Тристаен апартамент в Нов жилищен комплекс в жк Меден Рудник
гр. Бургас , кв. "Меден рудник - зона В"
Модерни апартаменти с отлична локация и инвестиционен потенциал в района на бившия битак
117 818 €230 431,98 лв.
(999 €/кв.м.) (1 953,87 лв./кв.м.)117.82 кв.м.
Павел Раванов
Старши брокер, Бургас
Продажба
ново
Тристаен апартамент в Нов жилищен комплекс в жк Меден Рудник
гр. Бургас , кв. "Меден рудник - зона В"
Модерни апартаменти с отлична локация и инвестиционен потенциал в района на бившия битак
106 490 €208 276,34 лв.
(1 000 €/кв.м.) (1 955,83 лв./кв.м.)106.49 кв.м.
Павел Раванов
Старши брокер, Бургас
Продажба
ново
Тристаен апартамент в Нов жилищен комплекс в жк Меден Рудник
гр. Бургас , кв. "Меден рудник - зона В"
Модерни апартаменти с отлична локация и инвестиционен потенциал в района на бившия битак
117 818 €230 431,98 лв.
(999 €/кв.м.) (1 953,87 лв./кв.м.)117.82 кв.м.
Павел Раванов
Старши брокер, Бургас
Продажба
ново
Тристаен апартамент в Нов жилищен комплекс в жк Меден Рудник
гр. Бургас , кв. "Меден рудник - зона В"
Модерни апартаменти с отлична локация и инвестиционен потенциал в района на бившия битак
103 830 €203 073,83 лв.
(1 000 €/кв.м.) (1 955,83 лв./кв.м.)103.83 кв.м.
Павел Раванов
Старши брокер, Бургас
Продажба
ново
Тристаен апартамент в Нов жилищен комплекс в жк Меден Рудник
гр. Бургас , кв. "Меден рудник - зона В"
Модерни апартаменти с отлична локация и инвестиционен потенциал в района на бившия битак
117 818 €230 431,98 лв.
(999 €/кв.м.) (1 953,87 лв./кв.м.)117.82 кв.м.
Павел Раванов
Старши брокер, Бургас
Продажба
ново
Двустаен апартамент в Нов жилищен комплекс в жк Меден Рудник
гр. Бургас , кв. "Меден рудник - зона В"
Модерни апартаменти с отлична локация и инвестиционен потенциал в района на бившия битак
64 930 €126 992,04 лв.
(999 €/кв.м.) (1 953,87 лв./кв.м.)64.93 кв.м.
Павел Раванов
Старши брокер, Бургас
Продажба
ново
Двустаен апартамент в Нов жилищен комплекс в жк Меден Рудник
гр. Бургас , кв. "Меден рудник - зона В"
Модерни апартаменти с отлична локация и инвестиционен потенциал в района на бившия битак
66 218 €129 511,15 лв.
(999 €/кв.м.) (1 953,87 лв./кв.м.)66.22 кв.м.
Павел Раванов
Старши брокер, Бургас
Продажба
ново
Тристаен апартамент в Нов жилищен комплекс в жк Меден Рудник
гр. Бургас , кв. "Меден рудник - зона В"
Модерни апартаменти с отлична локация и инвестиционен потенциал в района на бившия битак
102 090 €199 670,68 лв.
(1 000 €/кв.м.) (1 955,83 лв./кв.м.)102.09 кв.м.
Павел Раванов
Старши брокер, Бургас
Продажба
ново
Двустаен апартамент в Нов жилищен комплекс в жк Меден Рудник
гр. Бургас , кв. "Меден рудник - зона В"
Модерни апартаменти с отлична локация и инвестиционен потенциал в района на бившия битак
67 648 €132 307,99 лв.
(999 €/кв.м.) (1 953,87 лв./кв.м.)67.65 кв.м.
Павел Раванов
Старши брокер, Бургас
Продажба
ново
Двустаен апартамент в Нов жилищен комплекс в жк Меден Рудник
гр. Бургас , кв. "Меден рудник - зона В"
Модерни апартаменти с отлична локация и инвестиционен потенциал в района на бившия битак
65 730 €128 556,71 лв.
(999 €/кв.м.) (1 953,87 лв./кв.м.)65.73 кв.м.
Павел Раванов
Старши брокер, Бургас
Продажба
ново
Тристаен апартамент в Нов жилищен комплекс в жк Меден Рудник
гр. Бургас , кв. "Меден рудник - зона В"
Модерни апартаменти с отлична локация и инвестиционен потенциал в района на бившия битак
116 440 €227 736,85 лв.
(1 000 €/кв.м.) (1 955,83 лв./кв.м.)116.44 кв.м.
Павел Раванов
Старши брокер, Бургас
Продажба
ново
Двустаен апартамент в Нов жилищен комплекс в жк Меден Рудник
гр. Бургас , кв. "Меден рудник - зона В"
Модерни апартаменти с отлична локация и инвестиционен потенциал в района на бившия битак
64 454 €126 061,07 лв.
(1 000 €/кв.м.) (1 955,83 лв./кв.м.)64.45 кв.м.
Павел Раванов
Старши брокер, Бургас
Продажба
ново
Двустаен апартамент в Нов жилищен комплекс в жк Меден Рудник
гр. Бургас , кв. "Меден рудник - зона В"
Модерни апартаменти с отлична локация и инвестиционен потенциал в района на бившия битак
64 810 €126 757,34 лв.
(1 000 €/кв.м.) (1 955,83 лв./кв.м.)64.81 кв.м.
Павел Раванов
Старши брокер, Бургас
Продажба
ново
Тристаен апартамент в Нов жилищен комплекс в жк Меден Рудник
гр. Бургас , кв. "Меден рудник - зона В"
Модерни апартаменти с отлична локация и инвестиционен потенциал в района на бившия битак
127 798 €249 951,16 лв.
(720 €/кв.м.) (1 408,20 лв./кв.м.)177.36 кв.м.
Павел Раванов
Старши брокер, Бургас
Продажба
ново
Тристаен апартамент в Нов жилищен комплекс в жк Меден Рудник
гр. Бургас , кв. "Меден рудник - зона В"
Модерни апартаменти с отлична локация и инвестиционен потенциал в района на бившия битак
116 708 €228 261,01 лв.
(999 €/кв.м.) (1 953,87 лв./кв.м.)116.71 кв.м.
Павел Раванов
Старши брокер, Бургас
Продажба
ново
Тристаен апартамент в Нов жилищен комплекс в жк Меден Рудник
гр. Бургас , кв. "Меден рудник - зона В"
Модерни апартаменти с отлична локация и инвестиционен потенциал в района на бившия битак
117 240 €229 301,51 лв.
(1 000 €/кв.м.) (1 955,83 лв./кв.м.)117.24 кв.м.
Павел Раванов
Старши брокер, Бургас
Продажба
ново
Тристаен апартамент в Нов жилищен комплекс в жк Меден Рудник
гр. Бургас , кв. "Меден рудник - зона В"
Модерни апартаменти с отлична локация и инвестиционен потенциал в района на бившия битак
114 850 €224 627,08 лв.
(1 000 €/кв.м.) (1 955,83 лв./кв.м.)114.85 кв.м.
Павел Раванов
Старши брокер, Бургас
Продажба
ново
Тристаен апартамент в Нов жилищен комплекс в жк Меден Рудник
гр. Бургас , кв. "Меден рудник - зона В"
Модерни апартаменти с отлична локация и инвестиционен потенциал в района на бившия битак
117 240 €229 301,51 лв.
(1 000 €/кв.м.) (1 955,83 лв./кв.м.)117.24 кв.м.
Павел Раванов
Старши брокер, Бургас
Продажба
ново
Тристаен апартамент в Нов жилищен комплекс в жк Меден Рудник
гр. Бургас , кв. "Меден рудник - зона В"
Модерни апартаменти с отлична локация и инвестиционен потенциал в района на бившия битак
114 850 €224 627,08 лв.
(1 000 €/кв.м.) (1 955,83 лв./кв.м.)114.85 кв.м.
Павел Раванов
Старши брокер, Бургас
Продажба
ново
Тристаен апартамент в Нов жилищен комплекс в жк Меден Рудник
гр. Бургас , кв. "Меден рудник - зона В"
Модерни апартаменти с отлична локация и инвестиционен потенциал в района на бившия битак
117 240 €229 301,51 лв.
(1 000 €/кв.м.) (1 955,83 лв./кв.м.)117.24 кв.м.
Павел Раванов
Старши брокер, Бургас
Продажба
ново
Тристаен апартамент в Нов жилищен комплекс в жк Меден Рудник
гр. Бургас , кв. "Меден рудник - зона В"
Модерни апартаменти с отлична локация и инвестиционен потенциал в района на бившия битак
114 850 €224 627,08 лв.
(1 000 €/кв.м.) (1 955,83 лв./кв.м.)114.85 кв.м.
Павел Раванов
Старши брокер, Бургас
Още имоти в кв. Меден рудник - зона В
Продажба
ново
Търговско помещение за продажба в ж.к. Меден рудник – зона В
гр. Бургас , кв. "Меден рудник - зона В"
Готов бизнес имот с оборудване и отлична функционалност в гр. Бургас
Търговско помещение за продажба в ж.к. Меден рудник – зона В - Готов бизнес имот с оборудване и отлична функционалност в гр. Бургас
Продажба
ново
Нов жилищен проект в ж.к. Меден рудник – зона В, гр. Бургас
гр. Бургас , кв. "Меден рудник - зона В"
Модерна сграда с отлични разпределения, до нов спортен комплекс и с бърз достъп до центъра и морето
Нов жилищен проект в ж.к. Меден рудник – зона В, гр. Бургас - Модерна сграда с отлични разпределения, до нов спортен комплекс и с бърз достъп до центъра и морето
от 52 000 €(от 101 703,16 лв.)
(1 031 €/кв.м. - 1 169 €/кв.м.)(2 016,46 лв./кв.м. - 2 286,37 лв./кв.м.)Площ: 44.50 - 96.00 кв.м.
Георги Иванов
Брокер, Бургас
Продажба
Двустаен апартамент с панорамна гледка в кв. "Меден рудник - зона В"
гр. Бургас , кв. "Меден рудник - зона В"
Просторен апартамент с югоизточно изложение и красива панорама
Двустаен апартамент с панорамна гледка в кв. "Меден рудник - зона В" - Просторен апартамент с югоизточно изложение и красива панорама
Продажба
Новострояща се жилищна сграда в ж.к. Меден рудник, зона В
гр. Бургас , кв. "Меден рудник - зона В"
Функционални жилища, съвременна архитектура и отлична градска локация
Новострояща се жилищна сграда в ж.к. Меден рудник, зона В - Функционални жилища, съвременна архитектура и отлична градска локация
от 66 643 €(от 130 342,38 лв.)
(1 100 €/кв.м. - 1 150 €/кв.м.)(2 151,41 лв./кв.м. - 2 249,20 лв./кв.м.)Площ: 57.95 - 120.02 кв.м.
Павел Раванов
Старши брокер, Бургас
Продажба
Сграда с модерна визия и отлична архитектура
гр. Бургас , кв. "Меден рудник - зона В"
Последни двустайни апартаменти в сграда намираща се в най-бързоразвиващия се комплекс в град Бургас
Сграда с модерна визия и отлична архитектура - Последни двустайни апартаменти в сграда намираща се в най-бързоразвиващия се комплекс в град Бургас
от 82 000 €(от 160 378,06 лв.)
(1 262 €/кв.м. - 1 371 €/кв.м.)(2 468,26 лв./кв.м. - 2 681,44 лв./кв.м.)Площ: 62.00 - 65.00 кв.м.
Павел Раванов
Старши брокер, Бургас
Продажба
Новострояща се жилищна сграда в ж.к. Меден Рудник
гр. Бургас , кв. "Меден рудник - зона В"
Апартаменти в нов проект в Бургас
Новострояща се жилищна сграда в ж.к. Меден Рудник - Апартаменти в нов проект в Бургас
от 117 189 €(от 229 201,76 лв.)
(856 €/кв.м.)(1 674,96 лв./кв.м.)Площ: 136.84 - 136.84 кв.м.
Павел Раванов
Старши брокер, Бургас
Още имоти в гр. Бургас
Продажба
Лукс
Висок клас жилищен проект с топла връзка с Grand Plaza Mall
гр. Бургас , кв. "Хоризонт"
Жилища в модерен комплекс от затворен тип в кв. Хоризонт
Висок клас жилищен проект с топла връзка с Grand Plaza Mall - Жилища в модерен комплекс от затворен тип в кв. Хоризонт
от 87 956 €(от 172 026,98 лв.)
(1 002 €/кв.м. - 1 571 €/кв.м.)(1 959,74 лв./кв.м. - 3 072,61 лв./кв.м.)Площ: 61.81 - 270.48 кв.м.
Павел Раванов
Старши брокер, Бургас
Продажба
ново
изгодно
Комплекс „Диаманд“ – нов стандарт за градски живот в Бургас
гр. Бургас , кв. "Братя Миладинови"
Модерна сграда с впечатляваща архитектура и отлична локация на границата между кв. Възраждане и кв. Братя Миладинови
Комплекс „Диаманд“ – нов стандарт за градски живот в Бургас - Модерна сграда с впечатляваща архитектура и отлична локация на границата между кв. Възраждане и кв. Братя Миладинови
от 105 065 €(от 205 489,28 лв.)
(1 800 €/кв.м. - 2 430 €/кв.м.)(3 520,49 лв./кв.м. - 4 752,67 лв./кв.м.)Площ: 43.24 - 113.48 кв.м.
Мариян Димитров
Брокер, Бургас
Продажба
ново
Търговско помещение за продажба в ж.к. Меден рудник – зона В
гр. Бургас , кв. "Меден рудник - зона В"
Готов бизнес имот с оборудване и отлична функционалност в гр. Бургас
Търговско помещение за продажба в ж.к. Меден рудник – зона В - Готов бизнес имот с оборудване и отлична функционалност в гр. Бургас
Наем
ново
Многофукционално промишлено помещение в района на Пети километър
гр. Бургас , кв. "Пети километър"
Имот, подходящ за склад, производство, автосервиз близо до изхода към Северен обходен път
Многофукционално промишлено помещение в района на Пети километър - Имот, подходящ за склад, производство, автосервиз близо до изхода към Северен обходен път
Продажба
ново
Парцел с лице на главен път в Северна промишлена зона
гр. Бургас , кв. "Промишлена зона - Север"
Инвестиционен имот с потенциал за развитие в Бургас
Парцел с лице на главен път в Северна промишлена зона - Инвестиционен имот с потенциал за развитие в Бургас
Продажба
ново
Нова жилищна сграда в кв. Меден Рудник
гр. Бургас , кв. "Меден рудник - зона Б"
Просторни апартаменти с функционални разпределения, качествено строителство
Нова жилищна сграда в кв. Меден Рудник - Просторни апартаменти с функционални разпределения, качествено строителство
от 41 535 €(от 81 235,40 лв.)
(900 €/кв.м. - 944 €/кв.м.)(1 760,25 лв./кв.м. - 1 846,30 лв./кв.м.)Площ: 46.15 - 92.98 кв.м.
Павел Раванов
Старши брокер, Бургас
Продажба
ново
Лукс
Сграда с топ локация в Бургас, доходоносен актив в центъра
гр. Бургас , кв. "Център"
Четириетажна сграда със стабилен наемен поток
Сграда с топ локация в Бургас, доходоносен актив в центъра - Четириетажна сграда със стабилен наемен поток
Продажба
-4%
ново
За частни лица
Двустаен апартамент в кв. Братя Миладинови
гр. Бургас , кв. "Братя Миладинови"
Жилище с остъклена тераса, асансьор и бърз достъп до ключови точки в града
Двустаен апартамент в кв. Братя Миладинови - Жилище с остъклена тераса, асансьор и бърз достъп до ключови точки в града
103 000 €99 000 €201,45 лв.193 627,17 лв.
(2 498 €/кв.м.)(4 885,87 лв./кв.м.)Площ: 39.63 кв.м.
Георги Иванов
Брокер, Бургас
Продажба
-7%
ново
Обзаведено студио на бул. Алеко Богориди в Бургас
гр. Бургас , кв. "Център"
Едностаен апартамент с отделна кухня в топ центъра на града и на 200 м от плажа
Обзаведено студио на бул. Алеко Богориди в Бургас - Едностаен апартамент с отделна кухня в топ центъра на града и на 200 м от плажа
129 000 €120 000 €252,30 лв.234 699,60 лв.
(3 333 €/кв.м.)(6 519,43 лв./кв.м.)Площ: 36.00 кв.м.
Павел Раванов
Старши брокер, Бургас
Продажба
ново
изгодно
Функционални апартаменти в кв. Меден рудник-зона А
гр. Бургас , кв. "Меден рудник - зона А"
Модерна жилищна сграда с магазини, подземен паркинг, иновативна детска площадка, дъбова горичка
Функционални апартаменти в кв. Меден рудник-зона А - Модерна жилищна сграда с магазини, подземен паркинг, иновативна детска площадка, дъбова горичка
от 46 350 €(от 90 652,72 лв.)
(1 053 €/кв.м. - 1 073 €/кв.м.)(2 059,49 лв./кв.м. - 2 098,61 лв./кв.м.)Площ: 43.18 - 102.00 кв.м.
Павел Раванов
Старши брокер, Бургас
Продажба
ново
Многостаен апартамент в к-с Възраждане в гр. Бургас
гр. Бургас , кв. "Възраждане"
Многостаен апартамент на пешеходно разстояние от ул. Александровска
Многостаен апартамент в к-с Възраждане в гр. Бургас - Многостаен апартамент на пешеходно разстояние от ул. Александровска
230 000 €(449 840,90 лв.)
(2 300 €/кв.м.)(4 498,41 лв./кв.м.)Площ: 100.00 кв.м.
Павел Раванов
Старши брокер, Бургас
Продажба
ново
Нов жилищен проект в к-с Меден рудник, зона Д
гр. Бургас , кв. "Меден рудник - зона Д"
Модерен комплекс с отличен инвестиционен потенциал до бул. „Захари Стоянов“
Нов жилищен проект в к-с Меден рудник, зона Д - Модерен комплекс с отличен инвестиционен потенциал до бул. „Захари Стоянов“
от 53 800 €(от 105 223,65 лв.)
(720 €/кв.м. - 1 163 €/кв.м.)(1 408,20 лв./кв.м. - 2 274,63 лв./кв.м.)Площ: 47.76 - 205.69 кв.м.
Павел Раванов
Старши брокер, Бургас
Продажба
ново
Лукс
Функциониращ апарт-хотел в сърцето на град Бургас
гр. Бургас , кв. "Център"
Модерен хотел с представителни общи части, вътрешен двор и открит басейн за летния сезон
Функциониращ апарт-хотел в сърцето на град Бургас - Модерен хотел с представителни общи части, вътрешен двор и открит басейн за летния сезон
Продажба
ново
Нов жилищен проект в ж.к. Меден рудник – зона В, гр. Бургас
гр. Бургас , кв. "Меден рудник - зона В"
Модерна сграда с отлични разпределения, до нов спортен комплекс и с бърз достъп до центъра и морето
Нов жилищен проект в ж.к. Меден рудник – зона В, гр. Бургас - Модерна сграда с отлични разпределения, до нов спортен комплекс и с бърз достъп до центъра и морето
от 52 000 €(от 101 703,16 лв.)
(1 031 €/кв.м. - 1 169 €/кв.м.)(2 016,46 лв./кв.м. - 2 286,37 лв./кв.м.)Площ: 44.50 - 96.00 кв.м.
Георги Иванов
Брокер, Бургас
Продажба
ново
Урегулиран парцел до сервиз „Ситроен“, район Пети километър – Бургас
гр. Бургас , кв. "Пети километър"
Парцел на първа линия с одобрен ПУП, отлична видимост и стратегическа локация до Северния обход
Урегулиран парцел до сервиз „Ситроен“, район Пети километър – Бургас - Парцел на първа линия с одобрен ПУП, отлична видимост и стратегическа локация до Северния обход
Продажба
ново
Етаж от къща с двор в кв. Банево, Бургас
гр. Бургас , кв. "Банево"
Просторен имот с добро изложение, полусутерен и потенциал за модерен дом по ваш вкус
Етаж от къща с двор в кв. Банево, Бургас - Просторен имот с добро изложение, полусутерен и потенциал за модерен дом по ваш вкус
Продажба
ново
Лукс
Луксозен двустаен апартамент в комплекс Централ Парк, Бургас
гр. Бургас , кв. "Славейков"
Модерно обзаведен, чисто нов апартамент с Акт 16
Луксозен двустаен апартамент в комплекс Централ Парк, Бургас - Модерно обзаведен, чисто нов апартамент с Акт 16
Продажба
ново
изгодно
Партерно търговско помещение в центъра на Бургас
гр. Бургас , кв. "Възраждане"
Просторен бизнес имот с 15 м витрина, отлична видимост и потенциал за развитие до Стария съд
Партерно търговско помещение в центъра на Бургас - Просторен бизнес имот с 15 м витрина, отлична видимост и потенциал за развитие до Стария съд
Продажба
ново
Лукс
Стилно обзаведен двустаен апартамент с гараж в жк Лазур
гр. Бургас , кв. "Лазур"
Луксозно жилище с предпочитана локация близо до Морската градина
Стилно обзаведен двустаен апартамент с гараж в жк Лазур - Луксозно жилище с предпочитана локация близо до Морската градина
Продажба
ново
Лукс
Тристаен апартамент до Борисовата градина в кв. Възраждане
гр. Бургас , кв. "Възраждане"
Светъл и просторен апартамент в широкия център на гр. Бургас
Тристаен апартамент до Борисовата градина в кв. Възраждане - Светъл и просторен апартамент в широкия център на гр. Бургас
Продажба
ново
Лукс
Двустаен апартамент в предпочитан комплекс в Бургас
гр. Бургас , кв. "Славейков"
Луксозен имот до ключ с готова баня в кв. Славейков
Двустаен апартамент в предпочитан комплекс в Бургас - Луксозен имот до ключ с готова баня в кв. Славейков
Наем
ново
Промишлено помещение под наем в Бургас – 5-ти километър
гр. Бургас , кв. "Пети километър"
Просторен обект с височина 5 м, офис, трифазен ток и отличен достъп до северния обходен път
Промишлено помещение под наем в Бургас – 5-ти километър - Просторен обект с височина 5 м, офис, трифазен ток и отличен достъп до северния обходен път
Продажба
ново
Трапезица Резидънс - нов жилищен комплекс с прекрасни гледки в Бургас
гр. Бургас , кв. "Братя Миладинови"
Студиа, жилища с 1, 2 или 3 спални с лесен достъп до централните части на Бургас
Трапезица Резидънс - нов жилищен комплекс с прекрасни гледки в Бургас - Студиа, жилища с 1, 2 или 3 спални с лесен достъп до централните части на Бургас
от 76 653 €(от 149 920,24 лв.)
(1 600 €/кв.м. - 2 100 €/кв.м.)(3 129,33 лв./кв.м. - 4 107,24 лв./кв.м.)Площ: 45.09 - 234.48 кв.м.
Павел Раванов
Старши брокер, Бургас
Продажба
ново
Лукс
Piccadilly Residence — Новото лице на градския лукс и модерен живот
гр. Бургас , кв. "Зорница"
Топ проект с впечатляваща визия, високо качество и стратегическа локация
Piccadilly Residence — Новото лице на градския лукс и модерен живот - Топ проект с впечатляваща визия, високо качество и стратегическа локация
от 126 900 €(от 248 194,83 лв.)
(1 799 €/кв.м. - 16 344 €/кв.м.)(3 518,54 лв./кв.м. - 31 966,09 лв./кв.м.)Площ: 15.48 - 225.56 кв.м.
Георги Иванов
Брокер, Бургас
Продажба
ново
Лукс
Двустаен апартамент в топ центъра на Бургас, площад „Тройката“
гр. Бургас , кв. "Център"
Просторен и слънчев апартамент в луксозна сграда в сърцето на града
Двустаен апартамент в топ центъра на Бургас, площад „Тройката“ - Просторен и слънчев апартамент в луксозна сграда в сърцето на града
Вижте още имоти в кв. "Меден рудник - зона В" в град Бургас:
- Апартаменти (различни типове) в кв. "Меден рудник - зона В"
- Къщи в кв. "Меден рудник - зона В"
- Офиси в кв. "Меден рудник - зона В"
- Магазини в кв. "Меден рудник - зона В"
- Земи в кв. "Меден рудник - зона В"
- Всички имоти в кв. "Меден рудник - зона В"
Вижте още имоти в град Бургас:
Абонирайте се за нашия канал