Партерен имот (85.1 кв. м.) до ключ в реновирана сграда - паметник на културата, подходящ за магазин, салон за красота, банка, офис, шоурум, представителство с красива гледка към площад Батенберг, фонатаните, общината. Намира се в топ центъра на Пловдив, с отлична видимост и постоянен човекопоток, в близост до Радиото и Телевизията, площад Стефан Стамболов, Фонтаните, централна община, Градската Градина.
Разполага с VRV система за отопление и охлаждане, окабеляване за всички комуникации, включително СОТ.
Цената е с ДДС.
Оглед на имота
Можем да организираме оглед на имота в удобно за вас време. За целта, свържете се с отговорния за офертата брокер и му кажете кога бихте искали да направите оглед.
Наемане на имота
Ако харесате имота и решите да го наемете, ще имаме ангажимент да организираме среща с наемодателя, на която ще подготвим и ще предоставим за одобрение и подпис от двете страни на договор за наем и приемо-предавателен протокол за имота. Обичайната практика е да се предплати един наем за първия месец и да се остави гаранционен депозит при наемодателя в размер на един наем. Свържете се с отговорния брокер за този имот за по-подробна информация относно процедурата за наемане на имот.
Допълнителни услуги
С нас можете не само да наемете имот, но и да се възползвате от редица допълнителни услуги. Можем да предложим застраховка на движимо и недвижимо имущество, застраховка живот, медицинско и автомобилно застраховане, строителни и ремонтни дейности, обзавеждане, юридически и счетоводни услуги и др.
Характеристики на имота
Тип на имота
Офис, Магазин, Спа и уелнес център, Салон за красота
Реф. номер
Plv 76818
Площ
85.10 м2
Състояние
отлично
Етаж
Партер
Обзавеждане
Необзаведен
Тип строителство
Реставрирана сграда, Тухла
Двор
не
Климатизация
Климатизация
Още информация за Партерен магазин до ключ в топ центъра на Пловдив:
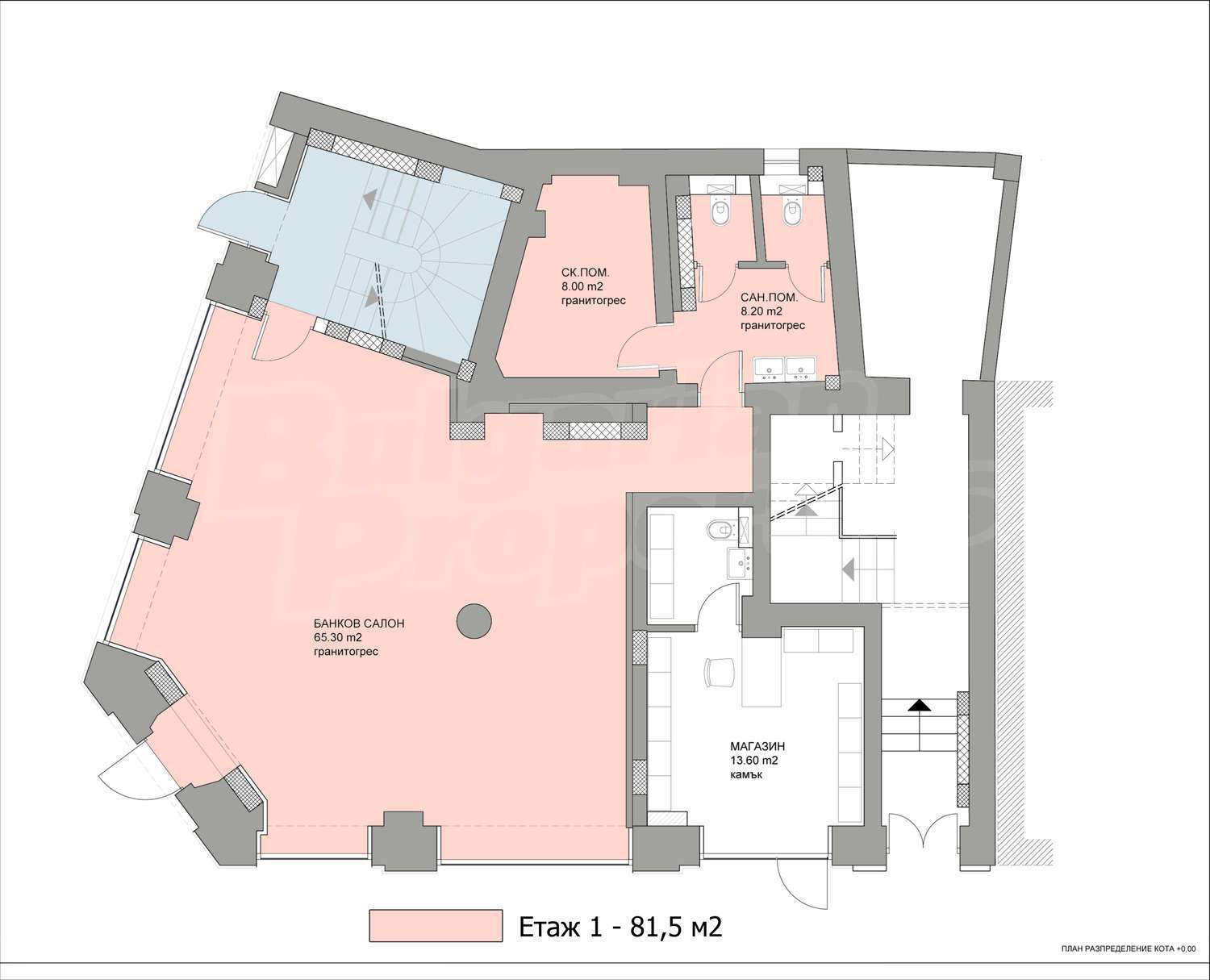
Планове
Снимки от въздуха
Общ план
360° изглед
Инфо пакет
Референтен номер: Plv 76818
Местоположение
гр. Пловдив, "Център"Удобства в района
- Автобусна спирка "Тунела "ЮГ" - запад" на 150 м. (2 мин.) - Автобус No: 1, 4, 7, 9, 11, 20, 26, 27, 37, 44, 93, 99
- Детска градина "Слънчевата къща" на 456 м. (6 мин.)
- Детска градина "Марина Бг" на 502 м. (7 мин.)
- Училище "Детска занималня Ян Бибиян" на 283 м. (4 мин.)
- Училище "Музикална академия" на 338 м. (5 мин.)
- Колеж "Делта" на 904 м. (11 мин.)
- Университет "Биологически факултет на ПУ" на 286 м. (4 мин.)
- Университет "Академия за Музикално и танцово изкуство" на 378 м. (5 мин.)
- Болница "4D Medical Д-р Троянчев Фетална морфология" на 479 м. (6 мин.)
- Болница "Д-р Юрий Асенов - Пластичен Хирург" на 839 м. (11 мин.)
- Медицински център "МБАЛ "Тримонцуим"" на 525 м. (7 мин.)
- Хранителен магазин на 90 м. (2 мин.)
- Супермаркет "Витекс" на 181 м. (3 мин.)
- Супермаркет "Lilly" на 243 м. (3 мин.)
- Пазар "Понеделник пазар" на 332 м. (4 мин.)
- Пекарна "Mr. Pan" на 85 м. (2 мин.)
- Зоо магазин на 312 м. (4 мин.)
- Мол "Хали" на 471 м. (6 мин.)
- Банка "Pireus Bank" на 52 м. (1 мин.)
- Банка "SG Expressbank" на 81 м. (1 мин.)
- Аптека на 63 м. (1 мин.)
- Поща/Куриер "Speedy" на 414 м. (5 мин.)
- Поща/Куриер на 633 м. (8 мин.)
- Химическо чистене на 956 м. (12 мин.)
- Фризьорски салон на 207 м. (3 мин.)
- Салон за красота на 300 м. (4 мин.)
- Ресторант "Хепи" на 35 м. (1 мин.)
- Ресторант "Густо" на 59 м. (1 мин.)
- Кафене "Канела" на 92 м. (2 мин.)
- Бар "Грамофон" на 59 м. (1 мин.)
- Нощен клуб "Rock Bar Download" на 316 м. (4 мин.)
- Казино "Casino Efbet" на 16 м. (1 мин.)
- Фитнес зала "Intense" на 970 м. (12 мин.)
- Плувен басейн на 445 м. (6 мин.)
- Спортен терен "клуб Масъл Арт" на 618 м. (8 мин.)
- Тенис корт на 882 м. (11 мин.)
- Театър "Драматичен театър Пловдив" на 63 м. (1 мин.)
- Театър "Драматичен театър" на 83 м. (1 мин.)
- Кино "Кино Космос" на 533 м. (7 мин.)
- Музей "къща Андрей Георгиади" на 294 м. (4 мин.)
- Музей "къща Хр. Г. Данов" на 329 м. (4 мин.)
- Спа център на 672 м. (9 мин.)
- Парк "Сахат тепе" на 252 м. (4 мин.)
- Градина на 89 м. (2 мин.)
- Паркинг на 83 м. (1 мин.)
- Бензиностанция на 267 м. (4 мин.)
- Автосервиз на 319 м. (4 мин.)
- Посолство на 423 м. (6 мин.)
- Съд "Административен съд" на 547 м. (7 мин.)
- Библиотека "Педагогическа библиотека" на 447 м. (6 мин.)
- Църква "Света Марина" на 178 м. (3 мин.)
ТРАНСПОРТ
УЧЕБНИ ЗАВЕДЕНИЯ
ЛЕЧЕБНИ ЗАВЕДЕНИЯ
ПАЗАРУВАНЕ
УСЛУГИ
ЗАВЕДЕНИЯ
СПОРТ И СВОБОДНО ВРЕМЕ
ПРИРОДА И ЗАБЕЛЕЖИТЕЛНОСТИ
АВТОМОБИЛНИ УСЛУГИ
ОБЩЕСТВЕНИ СГРАДИ И ИНСТИТУЦИИ
Изпратете запитване
Тази оферта е невалидна
Моля свържете се с нас, за да ви предложим други оферти, които отговарят на вашите изисквания.
Тази оферта е невалидна
Моля свържете се с нас, за да ви предложим други оферти, които отговарят на вашите изисквания.
*/ ?>
ЗА ПОВЕЧЕ ИНФОРМАЦИЯ
Реф. номер: Plv 76818
При обаждане, моля цитирайте референтния номер на имота.

Румяна Ласкова
Офис Пловдив Делови център Пловдив, Ул. „Хан Кубрат” 1, ет. 4, офис 408, Пловдив Всички оферти (0)Изпратете запитване
Още имоти в кв. Център

Продажба
Ексклузивно За частни лица
Просторен апартамент с две спални и три тераси в центъра на град Пловдив
гр. Пловдив , кв. "Център"
Просторно жилище с гледка към Стария град
Просторен апартамент с две спални и три тераси в центъра на град Пловдив - Просторно жилище с гледка към Стария град

Продажба
Лукс
Изискан тристаен апартамент в луксозна сграда с централна локация в Пловдив
гр. Пловдив , кв. "Център"
Дизайнерски обзаведен и оборудван апартамент с Акт 16 до възлов булевард и удобства
Изискан тристаен апартамент в луксозна сграда с централна локация в Пловдив - Дизайнерски обзаведен и оборудван апартамент с Акт 16 до възлов булевард и удобства

Продажба
Лукс
Луксозен имот в центъра на Пловдив
гр. Пловдив , кв. "Център"
Обзаведена 4-етажна къща със зимна градина в Бунарджика
Луксозен имот в центъра на Пловдив - Обзаведена 4-етажна къща със зимна градина в Бунарджика

Наем
За частни лица
Просторен тристаен апартамент под наем в центъра на Пловдив
гр. Пловдив , кв. "Център"
Светъл и уютен апартамент с 2 спални и отлична локация в сърцето на Пловдив
Просторен тристаен апартамент под наем в центъра на Пловдив - Светъл и уютен апартамент с 2 спални и отлична локация в сърцето на Пловдив

Наем
За частни лица
Просторен офис под наем до Главната улица, Капана и Античния театър
гр. Пловдив , кв. "Център"
Идеално бизнес пространство с 5 светли стаи, две тераси и вдъхновяващи гледки към Стария град
Просторен офис под наем до Главната улица, Капана и Античния театър - Идеално бизнес пространство с 5 светли стаи, две тераси и вдъхновяващи гледки към Стария град

Наем
Офис в бизнес център клас А в центъра на Пловдив
гр. Пловдив , кв. "Център"
Бизнес имот под наем до Паметника на Съединението
Офис в бизнес център клас А в центъра на Пловдив - Бизнес имот под наем до Паметника на Съединението

Продажба
За частни лица
Лукс
Просторни апартаменти с Акт 16 в центъра на Пловдив
гр. Пловдив , кв. "Център"
Последни жилища с 2 спални в новопостроена сграда в центъра на Пловдив
Просторни апартаменти с Акт 16 в центъра на Пловдив - Последни жилища с 2 спални в новопостроена сграда в центъра на Пловдив
от 235 280 €(от 460 167,68 лв.)
(1 410 €/м2)(2 757,97 лв./м2)Площ: 166.85 - 166.85 м2

Стефан Моллов
Старши брокер, Пловдив

Продажба
Лукс
Висок клас строителство в центъра на гр. Пловдив
гр. Пловдив , кв. "Център"
16-етажна сграда с модерна архитектура и просторни апартаменти
Висок клас строителство в центъра на гр. Пловдив - 16-етажна сграда с модерна архитектура и просторни апартаменти
от 192 455 €(от 376 409,26 лв.)
(2 160 €/м2 - 2 220 €/м2)(4 224,59 лв./м2 - 4 341,94 лв./м2)Площ: 89.10 - 132.83 м2

Стефан Моллов
Старши брокер, Пловдив

Продажба
Едноетажна къща с двор до Медицински университет-Пловдив
гр. Пловдив , кв. "Център"
Компактен градски имот с централна локация в района на Младежки хълм
Едноетажна къща с двор до Медицински университет-Пловдив - Компактен градски имот с централна локация в района на Младежки хълм

Продажба
За частни лица
Етаж от къща с потенциал в Пловдив
гр. Пловдив , кв. "Център"
Имот в топ центъра на града до Цар Симеонова градина
Етаж от къща с потенциал в Пловдив - Имот в топ центъра на града до Цар Симеонова градина

Наем
Лукс
Луксозни офиси под наем в центъра на Пловдив
гр. Пловдив , кв. "Център"
Модерни офиси в офис сграда в идеалния център на Пловдив
Луксозни офиси под наем в центъра на Пловдив - Модерни офиси в офис сграда в идеалния център на Пловдив

Наем
Офиси в бизнес център клас А до Паметника на Съединението
гр. Пловдив , кв. "Център"
Комуникативни бизнес имоти под наем в модерна сграда в центъра на Пловдив
Офиси в бизнес център клас А до Паметника на Съединението - Комуникативни бизнес имоти под наем в модерна сграда в центъра на Пловдив
от 610 €(от 1 193,06 лв.)
(7 €/м2 - 11 €/м2)(13,69 лв./м2 - 21,51 лв./м2)Площ: 68.63 - 343.40 м2

Стефан Моллов
Старши брокер, Пловдив

Продажба
Магазин на оживен булевард в центъра на гр. Пловдив
гр. Пловдив , кв. "Център"
Помещение с потенциал за магазин, офис, фитнес, шоурум
Магазин на оживен булевард в центъра на гр. Пловдив - Помещение с потенциал за магазин, офис, фитнес, шоурум

Наем
За частни лица
Лукс
Дентален кабинет в луксозна бизнес сграда в Пловдив
гр. Пловдив , кв. "Център"
Оборудван център под наем с топ локация
Дентален кабинет в луксозна бизнес сграда в Пловдив - Оборудван център под наем с топ локация

Наем
-5%
За частни лица
Лукс
Луксозен офис на партерен етаж в голям бизнес център в центъра на Пловдив
гр. Пловдив , кв. "Център"
Отличен офис под наем в бизнес сграда от административен тип клас „А“
Луксозен офис на партерен етаж в голям бизнес център в центъра на Пловдив - Отличен офис под наем в бизнес сграда от административен тип клас „А“

Наем
Магазин под наем в топ центъра на Пловдив
гр. Пловдив , кв. "Център"
Помещение за офис, фитнес, шоурум на централен и оживен булевард с добра видимост
Магазин под наем в топ центъра на Пловдив - Помещение за офис, фитнес, шоурум на централен и оживен булевард с добра видимост

Продажба
Комуникативен магазин в район Младежки хълм
гр. Пловдив , кв. "Център"
Търговски имот на две нива със склад и два входа в центъра на Пловдив
Комуникативен магазин в район Младежки хълм - Търговски имот на две нива със склад и два входа в центъра на Пловдив
Още имоти в гр. Пловдив

Продажба
ново
За частни лица
Нов двустаен апартамент в кв. Южен
гр. Пловдив , кв. "Южен"
Функционално разпределено жилище в бързоразвиващ се район на гр. Пловдив
Нов двустаен апартамент в кв. Южен - Функционално разпределено жилище в бързоразвиващ се район на гр. Пловдив

Продажба
ново
За частни лица
Две сгради с отлична локация в кв. Христо Смирненски
гр. Пловдив , кв. "Христо Смирненски"
Последни апартаменти в малки модерни сгради в гр. Пловдив
Две сгради с отлична локация в кв. Христо Смирненски - Последни апартаменти в малки модерни сгради в гр. Пловдив
от 83 500 €(от 163 311,81 лв.)
(643 €/м2 - 1 486 €/м2)(1 257,60 лв./м2 - 2 906,36 лв./м2)Площ: 72.45 - 198.78 м2

Стефан Моллов
Старши брокер, Пловдив

Продажба
ново
За частни лица
Жилищна сграда с модерна архитектура в кв. Христо Смирненски
гр. Пловдив , кв. "Христо Смирненски"
9-етажна сграда с разнообразни по разпределение и изложение двустайни, тристайни и четиристайни апартаменти
Жилищна сграда с модерна архитектура в кв. Христо Смирненски - 9-етажна сграда с разнообразни по разпределение и изложение двустайни, тристайни и четиристайни апартаменти
от 98 500 €(от 192 649,26 лв.)
(1 395 €/м2 - 1 500 €/м2)(2 728,38 лв./м2 - 2 933,75 лв./м2)Площ: 68.89 - 138.25 м2

Стефан Моллов
Старши брокер, Пловдив

Продажба
ново
За частни лица
Нова жилищна сграда в кв. Смирненски близо до Гребната база
гр. Пловдив , кв. "Христо Смирненски"
Апартаменти с Акт 14 на бул. Пещерско шосе
Нова жилищна сграда в кв. Смирненски близо до Гребната база - Апартаменти с Акт 14 на бул. Пещерско шосе
от 120 704 €(от 236 076,50 лв.)
(1 500 €/м2 - 1 650 €/м2)(2 933,75 лв./м2 - 3 227,12 лв./м2)Площ: 75.44 - 208.15 м2

Стефан Моллов
Старши брокер, Пловдив

Продажба
ново
За частни лица
Нови апартаменти с прекрасни гледки в кв. Южен
гр. Пловдив , кв. "Южен"
Студиа, двустайни и тристайни жилища на тихо място, в бързоразвиващ се район на гр. Пловдив
Нови апартаменти с прекрасни гледки в кв. Южен - Студиа, двустайни и тристайни жилища на тихо място, в бързоразвиващ се район на гр. Пловдив
от 78 400 €(от 153 337,07 лв.)
(727 €/м2 - 1 524 €/м2)(1 421,89 лв./м2 - 2 980,68 лв./м2)Площ: 60.58 - 176.05 м2

Стефан Моллов
Старши брокер, Пловдив

Продажба
ново
За частни лица
Лукс
Тристаен апартамент с Акт 16 до Парк-хотел Санкт Петербург
гр. Пловдив , кв. "Кършияка"
Имот ново строителство в кв. Кършияка
Тристаен апартамент с Акт 16 до Парк-хотел Санкт Петербург - Имот ново строителство в кв. Кършияка

Продажба
ново
За частни лица
Двустаен апартамент до Аквапарк Санкт Петербург в кв. Кършияка
гр. Пловдив , кв. "Кършияка"
Функционално разпределено ново жилище висок клас строителство
Двустаен апартамент до Аквапарк Санкт Петербург в кв. Кършияка - Функционално разпределено ново жилище висок клас строителство

Продажба
ново
За частни лица
Нов жилищен комплекс в район Остромила
гр. Пловдив , кв. "Остромила"
Комфортни апартаменти с комуникативна локация в Пловдив
Нов жилищен комплекс в район Остромила - Комфортни апартаменти с комуникативна локация в Пловдив
от 95 273 €(от 186 337,79 лв.)
(1 326 €/м2 - 1 602 €/м2)(2 593,43 лв./м2 - 3 133,24 лв./м2)Площ: 66.25 - 110.55 м2

Стефан Моллов
Старши брокер, Пловдив

Продажба
ново
За частни лица
Двустайни и тристайни апартаменти в зеления кв. Беломорски
гр. Пловдив , кв. "Беломорски"
Четириетажни сгради на тихо място в бързоразвиващ се район с ново, модерно строителство
Двустайни и тристайни апартаменти в зеления кв. Беломорски - Четириетажни сгради на тихо място в бързоразвиващ се район с ново, модерно строителство
от 66 400 €(от 129 867,11 лв.)
(822 €/м2 - 1 359 €/м2)(1 607,69 лв./м2 - 2 657,97 лв./м2)Площ: 67.38 - 113.45 м2

Стефан Моллов
Старши брокер, Пловдив

Продажба
ново
Ексклузивно За частни лица
Южен апартамент в нова сграда с Акт 16
гр. Пловдив , кв. "Южен"
Двустайно жилище с изба в кв. Южен
Южен апартамент в нова сграда с Акт 16 - Двустайно жилище с изба в кв. Южен

Продажба
ново
Поземлен имот с лице на път близо до Асеновградско шосе
гр. Асеновград , Долни Воден
Инвестиционна възможност с достъп от два пътя и потенциал за промяна на предназначението
Поземлен имот с лице на път близо до Асеновградско шосе - Инвестиционна възможност с достъп от два пътя и потенциал за промяна на предназначението

Продажба
Земя близо до Пловдив
с. Брестник
Голям поземлен имот в район с потенциал за инвестиция
Земя близо до Пловдив - Голям поземлен имот в район с потенциал за инвестиция

Продажба
За частни лица
Новопостроен апартамент в луксозна сграда в кв. Христо Смирненски
гр. Пловдив , кв. "Христо Смирненски"
Модерно студио на бул. Пещерско шосе близо до център на Пловдив
Новопостроен апартамент в луксозна сграда в кв. Христо Смирненски - Модерно студио на бул. Пещерско шосе близо до център на Пловдив

Продажба
Просторен търговски обект с офиси и складове в кв. Кършияка
гр. Пловдив , кв. "Кършияка"
Функционален имот разположен на партерно ниво в сграда на главен булевард
Просторен търговски обект с офиси и складове в кв. Кършияка - Функционален имот разположен на партерно ниво в сграда на главен булевард

Продажба
За частни лица
Жилищна сграда с магазини, гаражи и подземен паркинг в кв. Гагарин
гр. Пловдив , кв. "Гагарин"
Модерни апартаменти, съчетаващи удобство и уют, близо до центъра на Пловдив
Жилищна сграда с магазини, гаражи и подземен паркинг в кв. Гагарин - Модерни апартаменти, съчетаващи удобство и уют, близо до центъра на Пловдив
от 109 936 €(от 215 016,13 лв.)
(980 €/м2 - 1 517 €/м2)(1 916,71 лв./м2 - 2 966,99 лв./м2)Площ: 108.16 - 165.74 м2

Стефан Моллов
Старши брокер, Пловдив

Продажба
За частни лица
Нова жилищна сграда с модерна визия и отлична локация в Пловдив
гр. Пловдив , кв. "Тракия"
Апартаменти за всеки стил на живот в кв. Тракия
Нова жилищна сграда с модерна визия и отлична локация в Пловдив - Апартаменти за всеки стил на живот в кв. Тракия
от 77 636 €(от 151 842,82 лв.)
(1 150 €/м2)(2 249,19 лв./м2)Площ: 67.51 - 139.53 м2

Стефан Моллов
Старши брокер, Пловдив

Наем
За частни лица
Двустаен апартамент в кв. Мараша – тиха локация и уютна обстановка
гр. Пловдив , кв. "Мараша"
Обаведено жилище в малка тухлена кооперация в гр. Пловдив
Двустаен апартамент в кв. Мараша – тиха локация и уютна обстановка - Обаведено жилище в малка тухлена кооперация в гр. Пловдив

Продажба
За частни лица
Просторен апартамент с голяма тераса и гледка към Пловдивските тепета
гр. Пловдив , кв. "Остромила"
Жилище с две спални в нова сграда пред Акт 16 в кв. Остромила
Просторен апартамент с голяма тераса и гледка към Пловдивските тепета - Жилище с две спални в нова сграда пред Акт 16 в кв. Остромила

Продажба
За частни лица
Просторен апартамент с отлично разпределение в гр. Пловдив
гр. Пловдив , кв. "Кършияка"
Комфортно жилище с отлична локация в кв. Кършияка
Просторен апартамент с отлично разпределение в гр. Пловдив - Комфортно жилище с отлична локация в кв. Кършияка

Продажба
За частни лица
Втори етаж от къща с гараж в кв. Въстанически
гр. Пловдив , кв. "Въстанически"
Самостоятелен етаж с две спални, сменена дограма и ремонтиран покрив
Втори етаж от къща с гараж в кв. Въстанически - Самостоятелен етаж с две спални, сменена дограма и ремонтиран покрив

Продажба
Ексклузивно За частни лица
Просторен апартамент с две спални и три тераси в центъра на град Пловдив
гр. Пловдив , кв. "Център"
Просторно жилище с гледка към Стария град
Просторен апартамент с две спални и три тераси в центъра на град Пловдив - Просторно жилище с гледка към Стария град

Продажба
Лукс
Стилно обзаведен голям апартамент в Пловдив
гр. Пловдив , кв. "Кършияка"
Просторен имот с възможност за преустройства в кв. Кършияка
Стилно обзаведен голям апартамент в Пловдив - Просторен имот с възможност за преустройства в кв. Кършияка

Продажба
Лукс
Луксозен тристаен мезонет в престижния квартал Мараша
гр. Пловдив , кв. "Мараша"
Новопостроено, модерно обзаведено жилище с панорама и южно изложение
Луксозен тристаен мезонет в престижния квартал Мараша - Новопостроено, модерно обзаведено жилище с панорама и южно изложение

Продажба
За частни лица
Съвременен комплекс с модерен дизайн и отлична локация в кв. Каменица 2
гр. Пловдив , кв. "Каменица 2"
Безкомпромисно строителство, простор, уют и комфорт до Пловдив Плаза Мол
Съвременен комплекс с модерен дизайн и отлична локация в кв. Каменица 2 - Безкомпромисно строителство, простор, уют и комфорт до Пловдив Плаза Мол
от 104 822 €(от 205 014,01 лв.)
(986 €/м2 - 1 600 €/м2)(1 928,45 лв./м2 - 3 129,33 лв./м2)Площ: 67.63 - 329.42 м2

Стефан Моллов
Старши брокер, Пловдив

Продажба
Лукс
Изискан тристаен апартамент в луксозна сграда с централна локация в Пловдив
гр. Пловдив , кв. "Център"
Дизайнерски обзаведен и оборудван апартамент с Акт 16 до възлов булевард и удобства
Изискан тристаен апартамент в луксозна сграда с централна локация в Пловдив - Дизайнерски обзаведен и оборудван апартамент с Акт 16 до възлов булевард и удобства
Вижте още имоти на ул. Патриарх Евтимий:
- Магазини на ул. Патриарх Евтимий
- Апартаменти (различни типове) на ул. Патриарх Евтимий
- Къщи на ул. Патриарх Евтимий
- Офиси на ул. Патриарх Евтимий
- Земи на ул. Патриарх Евтимий
- Всички имоти на ул. Патриарх Евтимий
Вижте още имоти в Центърa на град Пловдив:
- Магазини в Центърa
- Апартаменти (различни типове) в Центърa
- Къщи в Центърa
- Офиси в Центърa
- Земи в Центърa
- Всички имоти в Центърa
Вижте още имоти в град Пловдив:
Абонирайте се за нашия канал
