Офис в сграда с перфектна видимост и удобна бизнес локация на бул. Цариградско шосе. Качествено строителство, енергиен клас А и стилна архитектура.
Имотът се намира на 8 етаж с площ 725 кв.м.
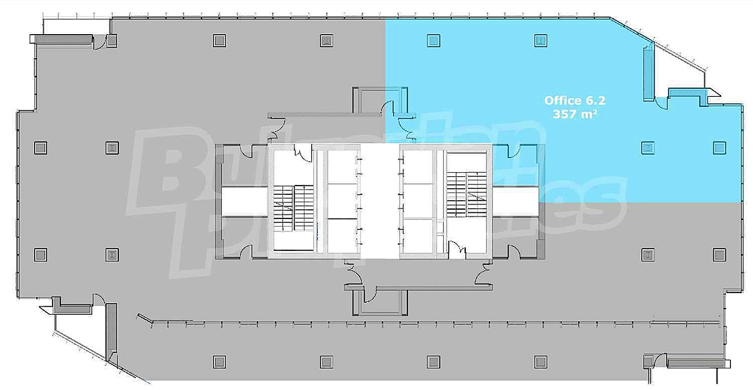
Предлагаме и други офиси в сградата както тип отворено пространство, така и
индивидуално разпределени. За повече информация, моля свържете се с отговорния брокер.
София Офис Център е пример за BREEAM офис сграда, която притежава всички характеристики, необходими за постигане на отличен резултат за екологично и отговорно реализирана инвестиция с грижа за околната среда и бъдещите си ползватели.
Сградата разполага със:
• Приземна приемна, ресторант, кафене и заседателна зала.
• 13 офисни нива с типичен размер на етажа от 1430 кв. м. Всеки етаж може да се използва от един наемател или да се раздели на 4 отделни офиса с тоалетна, кухненски бокс и обслужващо помещение.
• 24/7 охрана и видеонаблюдение на общите части.
• 199 паркоместа.
• 2 независими източника на електрозахранване, осигуряващи резерва в случай на прекъсване.
• Повдигнат под с вградено окабеляване (CAT6A).
• VRF системата дава възможност на различните офис зони да регулират предпочитаната от тях температура.
• Вентилационна система и отварящи се прозорци за подаване на свеж въздух.
• 6 асансьора със система за самодиагностика за непрекъсната работа в случай на прекъсване на електрозахранването.
Оглед на имота
Можем да организираме оглед на имота в удобно за вас време. За целта, свържете се с отговорния за офертата брокер и му кажете кога бихте искали да направите оглед.
Наемане на имота
Ако харесате имота и решите да го наемете, ще имаме ангажимент да организираме среща с наемодателя, на която ще подготвим и ще предоставим за одобрение и подпис от двете страни на договор за наем и приемо-предавателен протокол за имота. Обичайната практика е да се предплати един наем за първия месец и да се остави гаранционен депозит при наемодателя в размер на един наем. Свържете се с отговорния брокер за този имот за по-подробна информация относно процедурата за наемане на имот.
Допълнителни услуги
С нас можете не само да наемете имот, но и да се възползвате от редица допълнителни услуги. Можем да предложим застраховка на движимо и недвижимо имущество, застраховка живот, медицинско и автомобилно застраховане, строителни и ремонтни дейности, обзавеждане, юридически и счетоводни услуги и др.
Наем
Офис с топ локация на бул. Цариградско шосе
гр. София, кв."7-ми 11-ти километър"Офис в бизнес сграда клас А
Характеристики на имота
Тип на имота
Офис
Реф. номер
Sfa 83255
Площ
725.00 м2
Състояние
отлично
Етаж
8 от 13
Обзавеждане
Обзаведен/необзаведен
Тип строителство
Стоманобетонна конструкция, Ново строителство
Двор
не
Климатизация
Централна климатизация
Изложение:
Изток, Запад, Север, Юг
Мин. срок:
2 години
Енергиен клас
A
Местоположение
гр. София, кв."7-ми 11-ти километър"Удобства в района
- Метростанция "ЦАРИГРАДСКО ШОСЕ" на 189 м. (3 мин.) - Линия No: M4
- Автобусна спирка "МЕТРОСТАНЦИЯ ЦАРИГРАДСКО ШОСЕ" на 116 м. (2 мин.) - Автобус No: 6, 1, 5, 3
- Тролейбусна спирка "БЛ. 206 Ж.К. ДРУЖБА-2" на 613 м. (8 мин.) - Тролейбус No: 4
- Трамвайна спирка "УЛ. ОБИКОЛНА" на 806 м. (10 мин.) - Трамвай No: 23
- Детска градина "77 ОДЗ "Ханс Кристиан Андерсен"" на 421 м. (6 мин.)
- Детска градина "75 ОДЗ "Сърчице"" на 873 м. (11 мин.)
- Училище "185 ОДЗ Звездичка" на 447 м. (6 мин.)
- Училище "68 СОУ "Акад. Н.Обрешков"" на 700 м. (9 мин.)
- Колеж "International University College" на 375 м. (5 мин.)
- Болница "ДКЦ “Д-р Грийнберг”" на 834 м. (11 мин.)
- Болница "Аджибадем Сити Клиник УМБАЛ Младост" на 893 м. (11 мин.)
- Хранителен магазин "Вкусът от село" на 593 м. (8 мин.)
- Супермаркет "CBA" на 407 м. (5 мин.)
- Супермаркет "Виа Тракия Фууд" на 638 м. (8 мин.)
- Пазар "Пазар Дружба 2" на 546 м. (7 мин.)
- Зоо магазин "Зоомагазин" на 1.2 км. (15 мин.)
- Мол "Sofia Outlet Center" на 655 м. (8 мин.)
- Банка "БАКБ" на 514 м. (7 мин.)
- Банка "ОББ" на 597 м. (8 мин.)
- Банкомат "ОББ" на 597 м. (8 мин.)
- Банкомат "Централна Кооперативна Банка" на 620 м. (8 мин.)
- Аптека "Ceiba" на 457 м. (6 мин.)
- Поща/Куриер "Еконт" на 711 м. (9 мин.)
- Поща/Куриер "Speedy" на 834 м. (11 мин.)
- Фризьорски салон "Ники стайл" на 504 м. (7 мин.)
- Химическо чистене "Химическо чистене" на 992 м. (12 мин.)
- Салон за красота "Фрея" на 1.0 км. (13 мин.)
- Ветеринарен лекар "Виа Вет Медика" на 604 м. (8 мин.)
- Ресторант "Yami Yami" на 49 м. (1 мин.)
- Ресторант на 141 м. (2 мин.)
- Казино "Luxor" на 490 м. (6 мин.)
- Детска площадка "Fornetti" на 203 м. (3 мин.)
- Фитнес зала "Classix" на 736 м. (9 мин.)
- Плувен басейн на 772 м. (10 мин.)
- Спортен терен "Fireball" на 702 м. (9 мин.)
- Тенис корт на 935 м. (12 мин.)
- Парк на 605 м. (8 мин.)
- Градина на 291 м. (4 мин.)
- Паркинг на 13 м. (1 мин.)
- Бензиностанция на 664 м. (8 мин.)
- Зарядна станция "Зарядна екостанция за електромобили" на 178 м. (3 мин.)
- Автомивка "K" на 412 м. (5 мин.)
- Църква "Св. пророк Илия" на 593 м. (8 мин.)
ТРАНСПОРТ
УЧЕБНИ ЗАВЕДЕНИЯ
ЛЕЧЕБНИ ЗАВЕДЕНИЯ
ПАЗАРУВАНЕ
УСЛУГИ
ЗАВЕДЕНИЯ
СПОРТ И СВОБОДНО ВРЕМЕ
ПРИРОДА И ЗАБЕЛЕЖИТЕЛНОСТИ
АВТОМОБИЛНИ УСЛУГИ
ОБЩЕСТВЕНИ СГРАДИ И ИНСТИТУЦИИ
Изпратете запитване
7 925 €/месец
(15 499,95 лв./месец)
- €
- $
- £
Дължима комисиона
*/ ?>
ЗА ПОВЕЧЕ ИНФОРМАЦИЯ
Реф. номер: Sfa 83255
При обаждане, моля цитирайте референтния номер на имота.

Изпратете запитване
Вижте още имоти на бул. Цариградско шосе:
- Офиси на бул. Цариградско шосе
- Апартаменти (различни типове) на бул. Цариградско шосе
- Къщи на бул. Цариградско шосе
- Магазини на бул. Цариградско шосе
- Земи на бул. Цариградско шосе
- Всички имоти на бул. Цариградско шосе
Вижте още имоти в кв. "7-ми 11-ти километър" в град София:
- Офиси в кв. "7-ми 11-ти километър"
- Апартаменти (различни типове) в кв. "7-ми 11-ти километър"
- Къщи в кв. "7-ми 11-ти километър"
- Магазини в кв. "7-ми 11-ти километър"
- Земи в кв. "7-ми 11-ти километър"
- Всички имоти в кв. "7-ми 11-ти километър"