Имаме удоволствието да предложим за продажба тристаен апартамент с безплатно паркомясто в нов комплекс в Сарафово - най-луксозния и бързо развиващ се квартал на Бургас. Разположен е на втора линия, на метри от плажа и предлага прекрасна морска гледка. На пешеходно разстояние ще откриете ресторанти, магазини, автобусна спирка, аптека, училище, детска градина и всички видове развлекателни съоръжения. Центърът на Бургас е само на 15 минути път с кола. Сградата е завършена с луксозни общи части, с издадено разрешение за ползване, но без такса поддръжка.
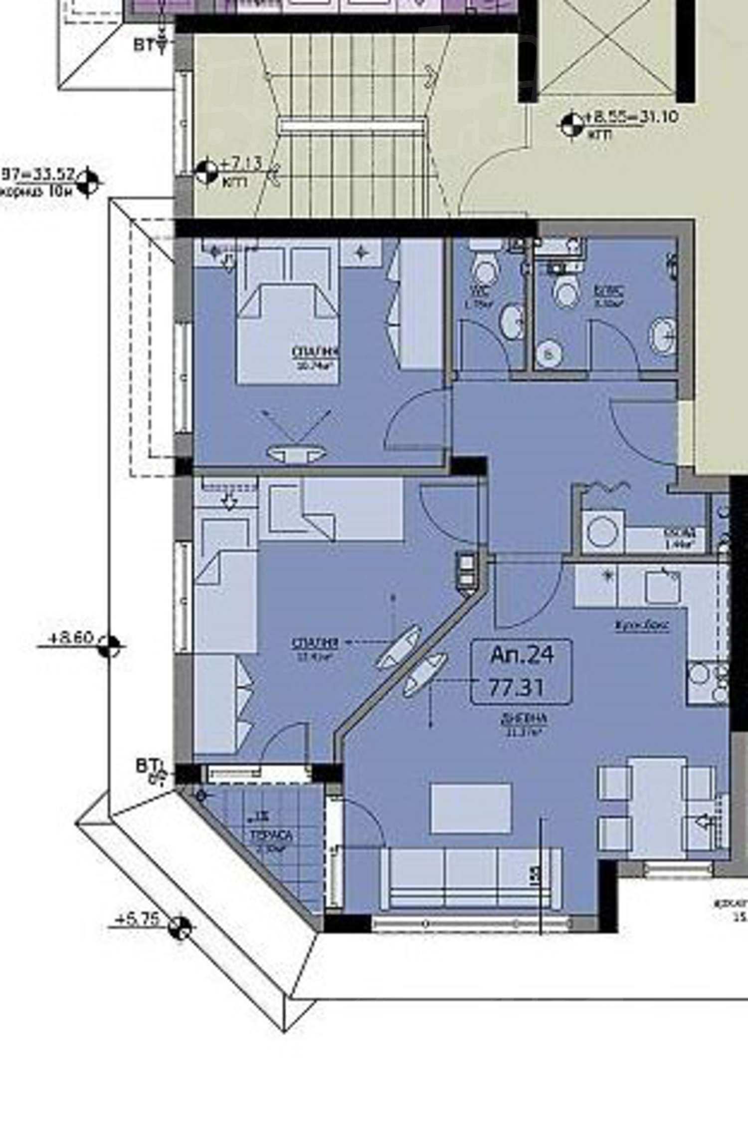
Описваното жилище има площ 77 кв.м., югоизточно изложение и следното разпределение:
• Хол с кухненски бокс
• Две спални
• Баня с тоалетна
• Отделна тоалетна
• Килер
• Балкон с изход от хола и едната спалня
Комплексът предлага обособени индивидуални паркоместа, красиво озеленяване, детски кът и барбекю зона.
Архитектурата на комплекса е в средиземноморски стил и умело допълва визията на вече построените в съседство комплекси. С фасада в топли бежови тонове, частична каменна облицовка и декоративни елементи, комплексът съчетава домашния уют и най-новите тенденции в строителството. Сградите се отличават с високо качество на използваните материали и изпълнението, съобразени с морския климат и особеностите на района.
Оглед на имота
Можем да организираме оглед на имота в удобно за вас време. За целта, свържете се с отговорния за офертата брокер и му кажете кога бихте искали да направите оглед.
Резервация на имота
Имотът може да бъде резервиран и свален от продажба със заплащане на депозит, след което се прекратява провеждането на огледи с други купувачи и започва подготовка на документите за сключване на предварителен и окончателен договор. Свържете се с отговорния брокер за този имот за подробна информация относно процедурата на покупка и начините за плащане.
Допълнителни услуги и следпродажбено обслужване
Ние сме реномирана компания и ще бъдем с вас не само по време на покупката, но и след това, осигурявайки ви допълнителни услуги по ваше изискване с цел пълноценно и безпроблемно ползване на новозакупения имот. Услугите, които можем да предложим, включват застраховка на движимо и недвижимо имущество, застраховка живот, медицинско и автомобилно застраховане, строителни и ремонтни дейности, обзавеждане, юридически и счетоводни услуги и др.
Характеристики на имота
Тип на имота
Тристаен апартамент
Реф. номер
BS 74927
Площ
77.00 м2
Спални
2
Състояние
БДС (на шпакловка и замазка)
Етаж
3
Асансьор
да
Обзавеждане
Необзаведен
Отопление
Климатици
Тип строителство
Стоманобетонна конструкция, Тухла, Ново строителство
Двор
не
Година на построяване
2019
Изложение:
Югоизток
Още информация за Тристаен апартамент с паркомясто в кв. Сарафово:
План на имота
Качество на въздуха
Характеристика на комплекса
Снимки от въздуха
Общ план
360° изглед
Инфо пакет
Референтен номер: BS 74927
Местоположение
гр. Бургас, кв."Сарафово"Удобства в района
- Детска градина "ЦДГ N19 “Ален мак”" на 1.0 км. (13 мин.)
- Училище "ОУ "Христо Ботев"" на 683 м. (9 мин.)
- Хранителен магазин "Атлантис" на 128 м. (2 мин.)
- Супермаркет "Dextyr" на 751 м. (10 мин.)
- Супермаркет "?" на 900 м. (11 мин.)
- Банка "D Commerce Bank" на 878 м. (11 мин.)
- Аптека на 761 м. (10 мин.)
- Ресторант "Кедъра" на 839 м. (11 мин.)
- Кафене "Cotta" на 864 м. (11 мин.)
- Плувен басейн на 95 м. (2 мин.)
- Музей "Авиационнен музей" на 1.1 км. (14 мин.)
- Парк на 89 м. (2 мин.)
- Паркинг на 993 м. (12 мин.)
ТРАНСПОРТ
УЧЕБНИ ЗАВЕДЕНИЯ
ПАЗАРУВАНЕ
УСЛУГИ
ЗАВЕДЕНИЯ
СПОРТ И СВОБОДНО ВРЕМЕ
ПРИРОДА И ЗАБЕЛЕЖИТЕЛНОСТИ
АВТОМОБИЛНИ УСЛУГИ
Изпратете запитване
Тази оферта е невалидна
Моля свържете се с нас, за да ви предложим други оферти, които отговарят на вашите изисквания.
Тази оферта е невалидна
Моля свържете се с нас, за да ви предложим други оферти, които отговарят на вашите изисквания.
*/ ?>
ЗА ПОВЕЧЕ ИНФОРМАЦИЯ
Реф. номер: BS 74927
При обаждане, моля цитирайте референтния номер на имота.

Изпратете запитване
Още имоти в кв. Сарафово

Наем
Лукс
Двустаен апартамент на първа линия с морска панорама в Сарафово
гр. Бургас , кв. "Сарафово"
Бутиков имот под наем в нова луксозна сграда с директен достъп до плажа
Двустаен апартамент на първа линия с морска панорама в Сарафово - Бутиков имот под наем в нова луксозна сграда с директен достъп до плажа

Продажба
Новострояща се жилищна сграда в кв. Сарафово
гр. Бургас , кв. "Сарафово"
Различен тип модерни апартаменти на 500 м от плажа
Новострояща се жилищна сграда в кв. Сарафово - Различен тип модерни апартаменти на 500 м от плажа
от 55 761 €(от 109 059,04 лв.)
(660 €/м2 - 1 300 €/м2)(1 290,85 лв./м2 - 2 542,58 лв./м2)Площ: 42.89 - 197.85 м2

Павел Раванов
Старши брокер, Бургас

Продажба
Висок клас жилищна сграда с магазини и детска площадка в кв. Сарафово
гр. Бургас , кв. "Сарафово"
Студиа, двустайни и тристайни апартаменти в сграда без такса поддръжка!
Висок клас жилищна сграда с магазини и детска площадка в кв. Сарафово - Студиа, двустайни и тристайни апартаменти в сграда без такса поддръжка!
от 48 000 €(от 93 879,84 лв.)
(1 378 €/м2 - 1 552 €/м2)(2 695,13 лв./м2 - 3 035,45 лв./м2)Площ: 31.41 - 103.08 м2

Георги Иванов
Брокер, Бургас

Продажба
Нов жилищен проект с модерна архитектура и отлична локация край морето
гр. Бургас , кв. "Сарафово"
Отлични жилища в нова сграда в кв. Сарафово
Нов жилищен проект с модерна архитектура и отлична локация край морето - Отлични жилища в нова сграда в кв. Сарафово
от 100 128 €(от 195 833,35 лв.)
(690 €/м2 - 1 400 €/м2)(1 349,52 лв./м2 - 2 738,16 лв./м2)Площ: 71.52 - 185.76 м2

Павел Раванов
Старши брокер, Бургас

Продажба
Тристаен апартамент с гледка море
гр. Бургас , кв. "Сарафово"
Имот в сграда с акт 16 и гледка море в квартал Сарафово
Тристаен апартамент с гледка море - Имот в сграда с акт 16 и гледка море в квартал Сарафово

Продажба
Новопостроени сгради с Акт 16 в кв. Сарафово
гр. Бургас , кв. "Сарафово"
Двустайни и тристайни апартаменти без такса поддръжка на 150 м от плажа
Новопостроени сгради с Акт 16 в кв. Сарафово - Двустайни и тристайни апартаменти без такса поддръжка на 150 м от плажа
от 90 000 €(от 176 024,70 лв.)
(1 403 €/м2 - 2 132 €/м2)(2 744,03 лв./м2 - 4 169,83 лв./м2)Площ: 51.00 - 107.00 м2

Павел Раванов
Старши брокер, Бургас

Продажба
Новостроящ се жилищен комплекс в кв. Сарафово
гр. Бургас , кв. "Сарафово"
Последни просторни апартаменти висок клас строителство без такса поддръжка
Новостроящ се жилищен комплекс в кв. Сарафово - Последни просторни апартаменти висок клас строителство без такса поддръжка
от 75 648 €(от 147 954,63 лв.)
(1 150 €/м2 - 1 200 €/м2)(2 249,20 лв./м2 - 2 347 лв./м2)Площ: 63.04 - 131.38 м2

Павел Раванов
Старши брокер, Бургас

Продажба
Двуетажна къща с двор в местност Лахана
гр. Бургас , кв. "Сарафово"
Чудесна къща в затворен комплекс в кв. Сарафово
Двуетажна къща с двор в местност Лахана - Чудесна къща в затворен комплекс в кв. Сарафово

Продажба
Елегантна двуетажна къща в затворен комплекс в местност „Лахана“
гр. Бургас , кв. "Сарафово"
Чудесна къща на два етажа между Бургас и Поморие
Елегантна двуетажна къща в затворен комплекс в местност „Лахана“ - Чудесна къща на два етажа между Бургас и Поморие

Продажба
Лукс
ВТОРА ЛИНИЯ
Страхотен тристаен апартамент с гледка море в Бургас
гр. Бургас , кв. "Сарафово"
Обзаведено жилище в стилна жилищна сграда в престижния квартал Сарафово
Страхотен тристаен апартамент с гледка море в Бургас - Обзаведено жилище в стилна жилищна сграда в престижния квартал Сарафово

Продажба
Новострояща се сграда в кв. Сарафово
гр. Бургас , кв. "Сарафово"
Двустайни и тристайни апартаменти на 300 метра от плажа и в близост до комплекс „Атлантис“
Новострояща се сграда в кв. Сарафово - Двустайни и тристайни апартаменти на 300 метра от плажа и в близост до комплекс „Атлантис“
от 86 246 €(от 168 682,51 лв.)
(1 200 €/м2 - 1 400 €/м2)(2 347 лв./м2 - 2 738,16 лв./м2)Площ: 63.96 - 106.78 м2

Павел Раванов
Старши брокер, Бургас

Продажба
Нови къщи с Акт 16 и предпочитана локация в местност Лахана
гр. Бургас , кв. "Сарафово"
Самостоятелни двуетажни къщи със собствен двор на 300 м от плажа
Нови къщи с Акт 16 и предпочитана локация в местност Лахана - Самостоятелни двуетажни къщи със собствен двор на 300 м от плажа
от 300 000 €(от 586 749 лв.)
(1 531 €/м2 - 1 684 €/м2)(2 994,38 лв./м2 - 3 293,62 лв./м2)Площ: 196.00 - 196.00 м2

Павел Раванов
Старши брокер, Бургас

Продажба
Нов жилищен проект в кв. Сарафово
гр. Бургас , кв. "Сарафово"
Просторни жилища с предпочитана локация близо до плаж
Нов жилищен проект в кв. Сарафово - Просторни жилища с предпочитана локация близо до плаж
от 65 796 €(от 128 685,79 лв.)
(1 250 €/м2 - 1 600 €/м2)(2 444,79 лв./м2 - 3 129,33 лв./м2)Площ: 52.64 - 99.43 м2

Павел Раванов
Старши брокер, Бургас

Продажба
ПЪРВА ЛИНИЯ
Просторен нов тристаен апартамент в кв. Сарафово
гр. Бургас , кв. "Сарафово"
Апартамент с възможност за преустройство в четиристаен с надземна градина на 200 м от плажа
Просторен нов тристаен апартамент в кв. Сарафово - Апартамент с възможност за преустройство в четиристаен с надземна градина на 200 м от плажа

Продажба
Лукс
Новостроящи се къщи в комплекс Лахана Сарафово
гр. Бургас , кв. "Сарафово"
Къщи в живописна местност на 500 м от плажа
Новостроящи се къщи в комплекс Лахана Сарафово - Къщи в живописна местност на 500 м от плажа
от 339 815 €(от 664 620,37 лв.)
(950 €/м2 - 2 572 €/м2)(1 858,04 лв./м2 - 5 030,39 лв./м2)Площ: 357.70 - 369.70 м2

Павел Раванов
Старши брокер, Бургас

Продажба
Оборудван хранителен магазин в Сарафово
гр. Бургас , кв. "Сарафово"
Хранителен магази с пъб
Оборудван хранителен магазин в Сарафово - Хранителен магази с пъб

Продажба
Нова четириетажна сграда в кв. Сарафово
гр. Бургас , кв. "Сарафово"
Ограничен брой апартаменти на 400 м до плажа, близо до магазини, училище, парк, спирка
Нова четириетажна сграда в кв. Сарафово - Ограничен брой апартаменти на 400 м до плажа, близо до магазини, училище, парк, спирка
от 90 326 €(от 176 662,30 лв.)
(1 270 €/м2 - 1 400 €/м2)(2 483,90 лв./м2 - 2 738,16 лв./м2)Площ: 64.52 - 102.83 м2

Павел Раванов
Старши брокер, Бургас
Още имоти в гр. Бургас

Продажба
Лукс
Висок клас жилищен проект с топла връзка с Grand Plaza Mall
гр. Бургас , кв. "Хоризонт"
Жилища в модерен комплекс от затворен тип в кв. Хоризонт
Висок клас жилищен проект с топла връзка с Grand Plaza Mall - Жилища в модерен комплекс от затворен тип в кв. Хоризонт
от 95 934 €(от 187 630,60 лв.)
(1 307 €/м2 - 1 358 €/м2)(2 556,27 лв./м2 - 2 656,02 лв./м2)Площ: 73.40 - 161.49 м2

Павел Раванов
Старши брокер, Бургас

Продажба
ново
Нов жилищен проект в кв. Крайморие
гр. Бургас , кв. "Крайморие"
Комфортни двустайни апартаменти за целогодишно живеене на 400 м от плажа
Нов жилищен проект в кв. Крайморие - Комфортни двустайни апартаменти за целогодишно живеене на 400 м от плажа
от 93 315 €(от 182 508,28 лв.)
(1 500 €/м2)(2 933,75 лв./м2)Площ: 62.21 - 71.35 м2

Павел Раванов
Старши брокер, Бургас

Продажба
ново
Последен тристаен апартамент в сграда без такса поддръжка в ж.к. Славейков
гр. Бургас , кв. "Славейков"
Тристаен апартамент във висок клас сграда с отличителна архитектура пред Акт 15
Последен тристаен апартамент в сграда без такса поддръжка в ж.к. Славейков - Тристаен апартамент във висок клас сграда с отличителна архитектура пред Акт 15
от 135 000 €(от 264 037,05 лв.)
(1 651 €/м2)(3 228,23 лв./м2)Площ: 81.79 - 81.79 м2

Павел Раванов
Старши брокер, Бургас

Продажба
ново
Модерни еднофамилни къщи с Акт 14 и предпочитана локация в Бургас
гр. Бургас , кв. "Крайморие"
Новостроящ се жилищен комплекс от къщи с двор и две паркоместа в кв. Крайморие, на 500 м от плажа
Модерни еднофамилни къщи с Акт 14 и предпочитана локация в Бургас - Новостроящ се жилищен комплекс от къщи с двор и две паркоместа в кв. Крайморие, на 500 м от плажа
от 275 000 €(от 537 853,25 лв.)
(1 389 €/м2 - 1 439 €/м2)(2 716,65 лв./м2 - 2 814,44 лв./м2)Площ: 198.00 - 198.00 м2

Павел Раванов
Старши брокер, Бургас

Продажба
ново
Нова модерна сграда в сърцето на Бургас – район Трапезица
гр. Бургас , кв. "Братя Миладинови"
Съвременен жилищен проект с функционален дизайн и отлично местоположение
Нова модерна сграда в сърцето на Бургас – район Трапезица - Съвременен жилищен проект с функционален дизайн и отлично местоположение
от 98 798 €(от 193 232,09 лв.)
(1 400 €/м2 - 1 950 €/м2)(2 738,16 лв./м2 - 3 813,87 лв./м2)Площ: 69.58 - 81.04 м2

Павел Раванов
Старши брокер, Бургас

Наем
Лукс
Двустаен апартамент на първа линия с морска панорама в Сарафово
гр. Бургас , кв. "Сарафово"
Бутиков имот под наем в нова луксозна сграда с директен достъп до плажа
Двустаен апартамент на първа линия с морска панорама в Сарафово - Бутиков имот под наем в нова луксозна сграда с директен достъп до плажа

Продажба
Трапезица Резиденс - нов жилищен комплекс с прекрасни гледки в Бургас
гр. Бургас , кв. "Братя Миладинови"
Студиа, жилища с 1, 2 или 3 спални с лесен достъп до централните части на Бургас
Трапезица Резиденс - нов жилищен комплекс с прекрасни гледки в Бургас - Студиа, жилища с 1, 2 или 3 спални с лесен достъп до централните части на Бургас
от 81 160 €(от 158 735,16 лв.)
(1 799 €/м2 - 2 662 €/м2)(3 518,54 лв./м2 - 5 206,42 лв./м2)Площ: 45.09 - 234.48 м2

Павел Раванов
Старши брокер, Бургас

Продажба
Лукс
Модерен жилищен комплекс в сърцето на града – комфорт, сигурност и стил без компромиси
гр. Бургас , кв. "Братя Миладинови"
Светли и просторни апартаменти с 1, 2 или 3 спални на комуникативно място в Бургас
Модерен жилищен комплекс в сърцето на града – комфорт, сигурност и стил без компромиси - Светли и просторни апартаменти с 1, 2 или 3 спални на комуникативно място в Бургас
от 119 280 €(от 233 291,40 лв.)
(1 700 €/м2 - 2 839 €/м2)(3 324,91 лв./м2 - 5 552,60 лв./м2)Площ: 68.01 - 134.81 м2

Павел Раванов
Старши брокер, Бургас

Продажба
Сграда с модерна визия и отлична архитектура
гр. Бургас , кв. "Меден рудник - зона В"
Последни двустайни апартаменти в сграда намираща се в най-бързоразвиващия се комплекс в град Бургас
Сграда с модерна визия и отлична архитектура - Последни двустайни апартаменти в сграда намираща се в най-бързоразвиващия се комплекс в град Бургас
от 82 000 €(от 160 378,06 лв.)
(1 262 €/м2 - 1 371 €/м2)(2 468,26 лв./м2 - 2 681,44 лв./м2)Площ: 62.00 - 65.00 м2

Павел Раванов
Старши брокер, Бургас

Продажба
Четиристаен апартамент в кв. Меден Рудник зона А
гр. Бургас , кв. "Меден рудник - зона А"
Голям апартамент с панорамна гледка на висок етаж
Четиристаен апартамент в кв. Меден Рудник зона А - Голям апартамент с панорамна гледка на висок етаж

Продажба
Новoстрояща се жилищна сграда в ж.к. Зорница, Бургас
гр. Бургас , кв. "Зорница"
Двустайни и тристайни апартаменти без такса поддръжка на 600 м от морето
Новoстрояща се жилищна сграда в ж.к. Зорница, Бургас - Двустайни и тристайни апартаменти без такса поддръжка на 600 м от морето
от 211 487 €(от 413 632,62 лв.)
(1 800 €/м2 - 1 850 €/м2)(3 520,49 лв./м2 - 3 618,29 лв./м2)Площ: 114.32 - 134.22 м2

Павел Раванов
Старши брокер, Бургас

Продажба
Апартамент на три нива до Морската градина в Бургас
гр. Бургас , кв. "Възраждане"
Жилище с 4 спални, избено помещение и гараж в кв. Възраждане
Апартамент на три нива до Морската градина в Бургас - Жилище с 4 спални, избено помещение и гараж в кв. Възраждане

Продажба
Модерна жилищна сграда в ж.к Зорница
гр. Бургас , кв. "Зорница"
Двустайни и тристайни апартаменти със спокойна жилищна среда в район с отлична инфраструктура
Модерна жилищна сграда в ж.к Зорница - Двустайни и тристайни апартаменти със спокойна жилищна среда в район с отлична инфраструктура
от 141 592 €(от 276 929,88 лв.)
(800 €/м2 - 2 300 €/м2)(1 564,66 лв./м2 - 4 498,41 лв./м2)Площ: 61.56 - 323.51 м2

Георги Иванов
Брокер, Бургас

Продажба
Новострояща се жилищна сграда в кв. Сарафово
гр. Бургас , кв. "Сарафово"
Различен тип модерни апартаменти на 500 м от плажа
Новострояща се жилищна сграда в кв. Сарафово - Различен тип модерни апартаменти на 500 м от плажа
от 55 761 €(от 109 059,04 лв.)
(660 €/м2 - 1 300 €/м2)(1 290,85 лв./м2 - 2 542,58 лв./м2)Площ: 42.89 - 197.85 м2

Павел Раванов
Старши брокер, Бургас

Продажба
Нов проект за жилищна сграда в гр. Бургас, ж.к. "Меден рудник"
гр. Бургас , кв. "Меден рудник - зона Д"
Новострояща се сграда до Кауфланд Меден рудник зона Д
Нов проект за жилищна сграда в гр. Бургас, ж.к. "Меден рудник" - Новострояща се сграда до Кауфланд Меден рудник зона Д
50 950 €(99 649,54 лв.)
(890 €/м2 - 950 €/м2)(1 740,69 лв./м2 - 1 858,04 лв./м2)Площ: 36.91 м2

Павел Раванов
Старши брокер, Бургас

Продажба
Лукс
Тристаен апартамент на 350 метра от Централната Улица
гр. Приморско
Обзаведен апартамент с огромна тераса сред зеленина в Приморско
Тристаен апартамент на 350 метра от Централната Улица - Обзаведен апартамент с огромна тераса сред зеленина в Приморско

Продажба
Инвестиционен парцел с лице към главен път
гр. Бургас , кв. "Банево"
Земя между Ветрен и Банево в района на Минерални бани – Бургас
Инвестиционен парцел с лице към главен път - Земя между Ветрен и Банево в района на Минерални бани – Бургас

Продажба
Лукс
Луксозен просторен пентхаус в кв. Възраждане, Бургас
гр. Бургас , кв. "Възраждане"
Самостоятелен етаж от сграда в централната част на града
Луксозен просторен пентхаус в кв. Възраждане, Бургас - Самостоятелен етаж от сграда в централната част на града

Продажба
Висок клас жилищна сграда с магазини и детска площадка в кв. Сарафово
гр. Бургас , кв. "Сарафово"
Студиа, двустайни и тристайни апартаменти в сграда без такса поддръжка!
Висок клас жилищна сграда с магазини и детска площадка в кв. Сарафово - Студиа, двустайни и тристайни апартаменти в сграда без такса поддръжка!
от 48 000 €(от 93 879,84 лв.)
(1 378 €/м2 - 1 552 €/м2)(2 695,13 лв./м2 - 3 035,45 лв./м2)Площ: 31.41 - 103.08 м2

Георги Иванов
Брокер, Бургас

Продажба
Нов жилищен проект с модерна архитектура и отлична локация край морето
гр. Бургас , кв. "Сарафово"
Отлични жилища в нова сграда в кв. Сарафово
Нов жилищен проект с модерна архитектура и отлична локация край морето - Отлични жилища в нова сграда в кв. Сарафово
от 100 128 €(от 195 833,35 лв.)
(690 €/м2 - 1 400 €/м2)(1 349,52 лв./м2 - 2 738,16 лв./м2)Площ: 71.52 - 185.76 м2

Павел Раванов
Старши брокер, Бургас

Наем
Офис в центъра на града до Съдебната палата
гр. Бургас , кв. "Център"
Офис с отлична локация в Бургас
Офис в центъра на града до Съдебната палата - Офис с отлична локация в Бургас

Продажба
Урбанизиран парцел до Vineyards SPA Resort
гр. Каблешково
Имот с потенциал за изграждане на ваканционен комплекс край Каблешково
Урбанизиран парцел до Vineyards SPA Resort - Имот с потенциал за изграждане на ваканционен комплекс край Каблешково

Продажба
Атрактивен парцел в регулация в Бургас
гр. Бургас , кв. "Промишлена зона - Север"
Парцел със стратегическа локация и 40 метра лице на главния път Бургас – София
Атрактивен парцел в регулация в Бургас - Парцел със стратегическа локация и 40 метра лице на главния път Бургас – София

Продажба
Два големи парцела земеделска земя в съседство с „Лукойл Нефтохим Бургас“
гр. Бургас , кв. "Долно Езерово"
Поземлени имота със статут на земеделска земя до Нефтохимическия комбинат
Два големи парцела земеделска земя в съседство с „Лукойл Нефтохим Бургас“ - Поземлени имота със статут на земеделска земя до Нефтохимическия комбинат

Продажба
Лукс
Просторен апартамент с допълнителни помещения и паркоместа в центъра на Бургас
гр. Бургас , кв. "Център"
Обзаведен апартамент на метри от Хотел България
Просторен апартамент с допълнителни помещения и паркоместа в центъра на Бургас - Обзаведен апартамент на метри от Хотел България
Вижте още имоти в кв. "Сарафово" в град Бургас:
- Тристайни апартаменти в кв. "Сарафово"
- Апартаменти (различни типове) в кв. "Сарафово"
- Къщи в кв. "Сарафово"
- Офиси в кв. "Сарафово"
- Магазини в кв. "Сарафово"
- Земи в кв. "Сарафово"
- Всички имоти в кв. "Сарафово"
Вижте още имоти в град Бургас:
Абонирайте се за нашия канал
