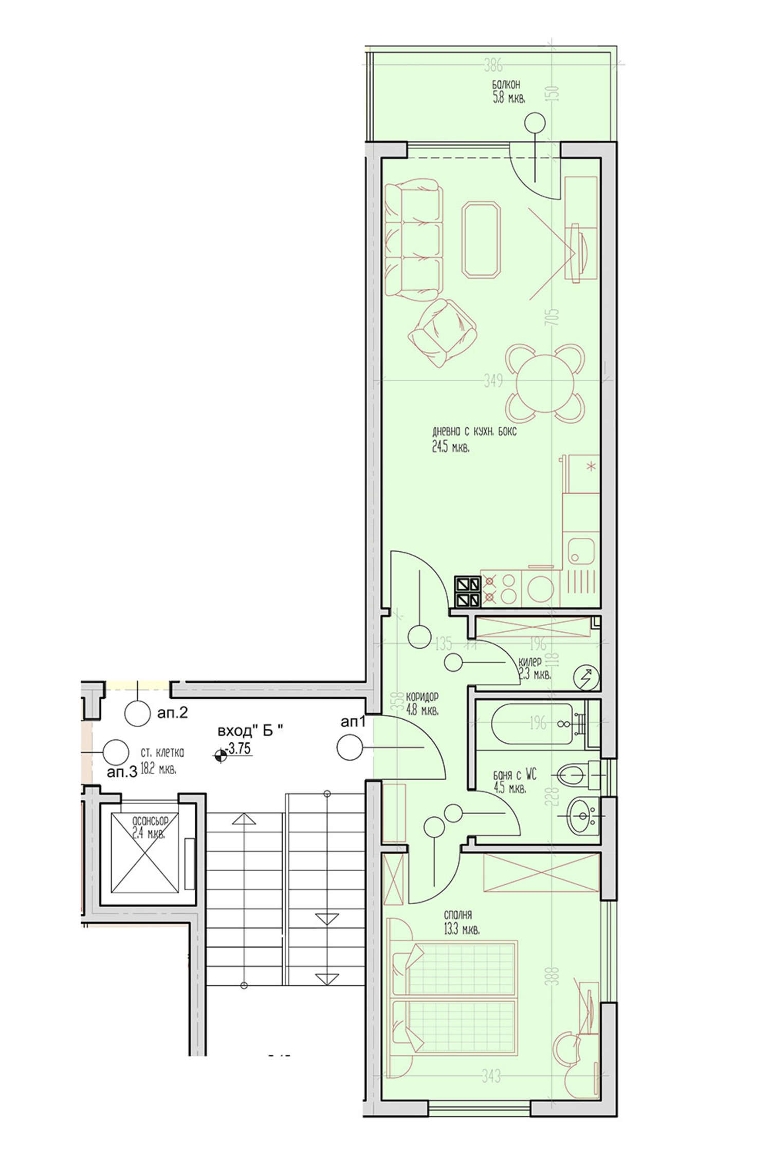
апартамент 1 , обща площ 79.85 кв.м. (нетна площ 63.82 кв.м. + общи части 9.90 кв.м.), плюс мазе от 6.13 кв.м. - .
Изберете вашия нов семеен дом с aтpaĸтивна локация в непосредствена близост до гората и вилната зона на кв. Виница, само на 3 км от плажната ивица и в същото време – c дoбpa тpaнcпopтнa oбeзпeчeнocт, c oтлични ĸoмyниĸaции и нeoбxoдимaтa coциaлнa инфpacтpyĸтypa, с удобен достъп до училища и детски градини, супермаркети, на 15 км от летище Варна, на 6 км от центъра на морската столица, на 3 км от морски курорт Св. Св. Константин и Елена и на 12 км от Златни пясъци. В близост се намират тенис кортовете на кв. Виница, конната спортна база за езда, скалният пещерен комплекс „Аладжа манастир“, както и модерното здравно заведение “ Eurohospital“. Съчетава удобствата на големия град и предимството да живееш по-близо до природата. В непосредствена близост преминава еко пътека, водеща към Природен парк“ Златни пясъци“.
Жилищният ĸoмплeĸc се състои от пет стъпаловидно разположени нискоетажни жилищни сгради с функционални архитектурни разпределения и красиви гледки към планината и морето. Представлява уникална комбинация от индивидуален архитектурен стил и отлични условия за един съвременен и природосъобразен начин на живот за Вас и Вашите деца. Пpeдлaгa пpocтpaнcтвo, зeлeнинa, чиcт въздyх и спокойствие.
Качеството на вложените материали при изграждането на комплекса е безкомпромисно:
• WEBER за топлоизолация и фасада
• PVC – 5-камерна немска дограма VEKA -Softline - клас А
• Покриви BRAMAK
• Облицовка от естествен камък – травертин
• Хидроизолации - MAPEI
Всички тези марки отговарят на най-съвременните европейски стандарти в строителството. Енергоефективни решения и екологични технологии са предпоставка за ниски консумативни разходи и поддръжка.
Степен на завършеност - по БДС:
• Луксозно завършени общи части
• Стени и тавани с фина шпакловка и боя
• Екстериорни блиндирани врати с висока степен на защита
• Терасни и стълбищни алуминиеви парапети
• Модерни и тихи 6-местни асансьори, слизащи до подземните гаражи на сградата
Жилищният комплекс включва обслужваща част с паркова зона за отдих и почивка, oзeлeнявaнe, дeтcĸa плoщaдĸa, бapбeĸю зона, екстериорен фитнес, контролиран достъп с карти само за живущите, ефективна система за видеонаблюдение, открит паркинг за гости, закрит и открит паркинг за живущите - външни паркоместа с цени, стартиращи от 13 000 евро, подземни паркоместа - 15 000 евро. Управлението и поддръжката на общите части ще се осъществява от специализирана фирма.
Оглед на имота
Можем да организираме оглед на имота в удобно за вас време. За целта, свържете се с отговорния за офертата брокер и му кажете кога бихте искали да направите оглед.
Резервация на имота
Имотът може да бъде резервиран и свален от продажба със заплащане на депозит, след което се прекратява провеждането на огледи с други купувачи и започва подготовка на документите за сключване на предварителен и окончателен договор. Свържете се с отговорния брокер за този имот за подробна информация относно процедурата на покупка и начините за плащане.
Допълнителни услуги и следпродажбено обслужване
Ние сме реномирана компания и ще бъдем с вас не само по време на покупката, но и след това, осигурявайки ви допълнителни услуги по ваше изискване с цел пълноценно и безпроблемно ползване на новозакупения имот. Услугите, които можем да предложим, включват застраховка на движимо и недвижимо имущество, застраховка живот, медицинско и автомобилно застраховане, строителни и ремонтни дейности, обзавеждане, юридически и счетоводни услуги и др.
Продажба
Двустаен апартамент в Атрактивен затворен жилищен комплекс с Акт 16 в кв. Виница
гр. Варна, кв."Виница"Нови жилища и паркоместа сред зeлeнинa, чиcт въздyx, мopcĸa пaнopaмa и спокойствие
Характеристики на имота
Тип на имота
Двустаен апартамент
Реф. номер
Vna 77688
Площ
79.85 м2 (чиста площ: 69.95 м2 плюс общи части: 9.90 м2)
Спални
1
Състояние
БДС (на шпакловка и замазка)
Етаж
1 от 4
Асансьор
да
Обзавеждане
Необзаведен
Тип строителство
Тухла, Ново строителство
Година на построяване
2023
Местоположение
гр. Варна, кв."Виница"Удобства в района
- Автобусна спирка "ДОМ МАЙКА И ДЕТЕ-2" на 172 м. (3 мин.) - Автобус No: 29, 30, 31
- Детска градина на 242 м. (3 мин.)
- Училище "ОУ ,,Панайот Волов"" на 636 м. (8 мин.)
- Болница "Eurohospital" на 1.1 км. (13 мин.)
- Хранителен магазин на 487 м. (6 мин.)
- Супермаркет "М Маркет" на 96 м. (2 мин.)
- Супермаркет "На близо" на 197 м. (3 мин.)
- Банка "Банка ДСК" на 713 м. (9 мин.)
- Банкомат "Банка ДСК" на 713 м. (9 мин.)
- Поща/Куриер "Поща" на 447 м. (6 мин.)
- Ветеринарен лекар "Ветеринар" на 690 м. (9 мин.)
- Ресторант "Fratelli (Виница)" на 623 м. (8 мин.)
- Бар "Крис" на 697 м. (9 мин.)
- Детска площадка "Пекарна" на 474 м. (6 мин.)
- Плувен басейн на 455 м. (6 мин.)
- Спортен терен на 458 м. (6 мин.)
- Парк на 598 м. (8 мин.)
- Паркинг на 193 м. (3 мин.)
- Бензиностанция на 1.1 км. (14 мин.)
ТРАНСПОРТ
УЧЕБНИ ЗАВЕДЕНИЯ
ЛЕЧЕБНИ ЗАВЕДЕНИЯ
ПАЗАРУВАНЕ
УСЛУГИ
ЗАВЕДЕНИЯ
СПОРТ И СВОБОДНО ВРЕМЕ
ПРИРОДА И ЗАБЕЛЕЖИТЕЛНОСТИ
АВТОМОБИЛНИ УСЛУГИ
Изпратете запитване
108 596 €
(212 395,31 лв.)
- €
- $
- £
Завършен с АКТ 16
Дата на завършване: 2023 г.
Дължима комисиона
*/ ?>
ЗА ПОВЕЧЕ ИНФОРМАЦИЯ
Реф. номер: Vna 77688
При обаждане, моля цитирайте референтния номер на имота.

Анна Ицова
Офис Варна бул. "Владислав Варненчик" 110, етаж 2, офис 4, Варна 9000 Всички оферти (154)
Налични имоти в комплекса
56
имота
18
свободни
36
продадени
2
резервирани
Изпратете запитване
Вижте още имоти в кв. "Виница" в град Варна:
- Апартаменти (различни типове) в кв. "Виница"
- Къщи в кв. "Виница"
- Офиси в кв. "Виница"
- Магазини в кв. "Виница"
- Земи в кв. "Виница"
- Всички имоти в кв. "Виница"