Локация с потенциал – на територията на столицата, с директен достъп и възможност за застрояване!
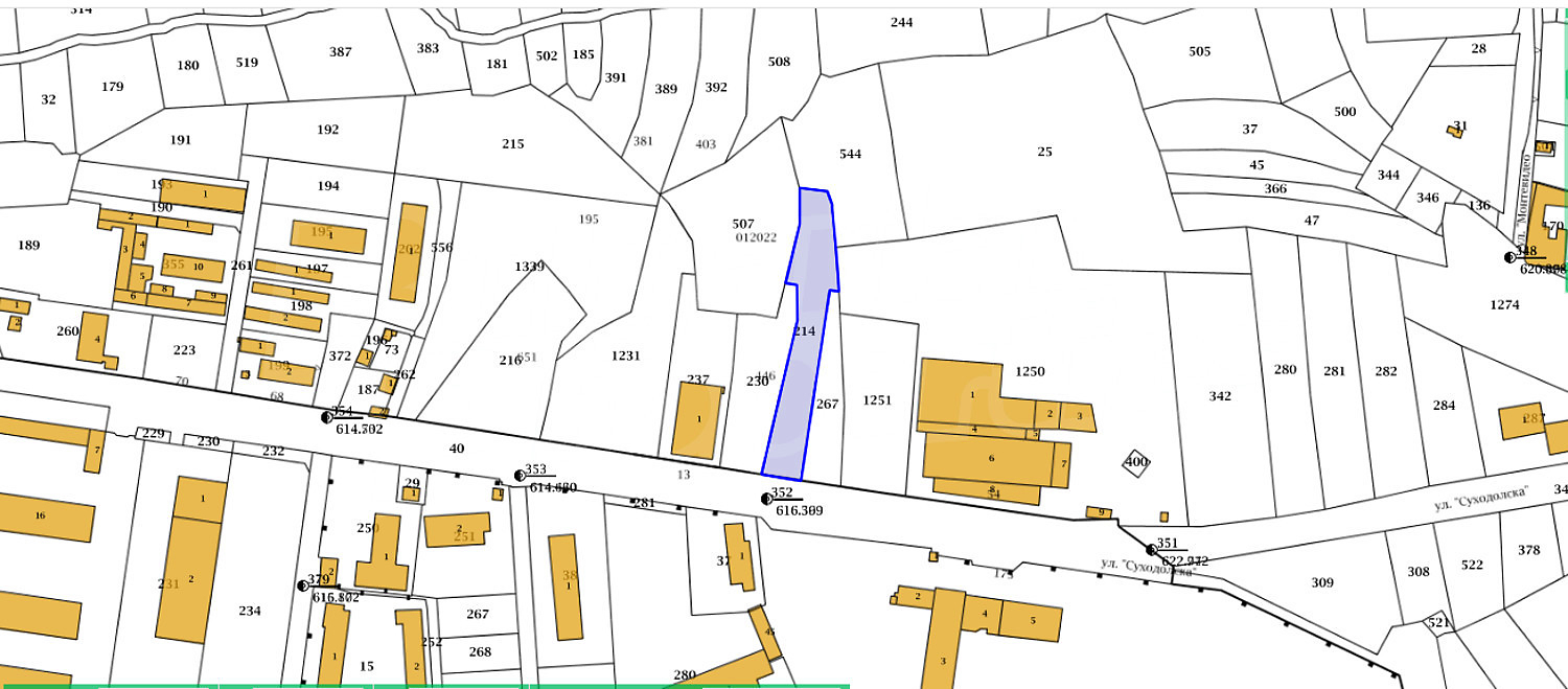
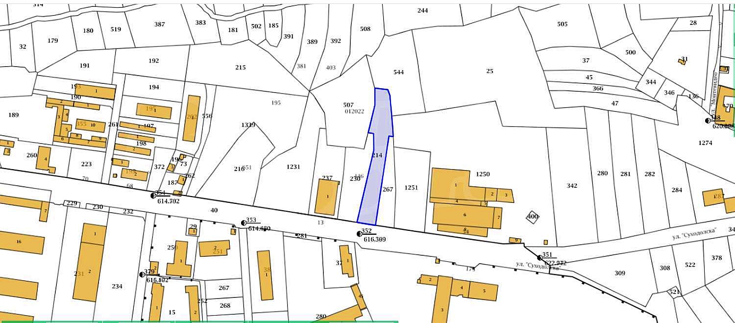
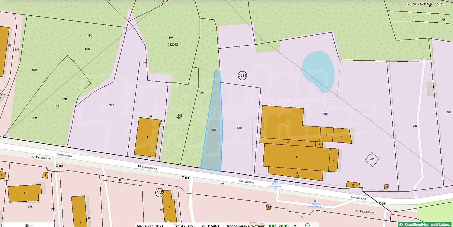
Представяме ви атрактивен промишлен парцел с площ от 5 935 кв. м., разположен в квартал Красна поляна 1, в рамките на гр. София. Имотът има 60 метра лице на ул. Суходолска, срещу ВСУ „Любен Каравелов“, в непосредствена близост до функциониращи предприятия и производствени бази. Това прави терена изключително подходящ за развитие на бизнес, логистичен център, индустриален обект или смесено предназначение.
Предимства на имота:
• Стратегическа локация в рамките на София, лесен достъп до центъра и Околовръстен път.
• Широко лице на асфалтова улица – 60 метра.
• Ток и вода – в близост до имота.
• Зона V според устройственото зониране Архитектура и градоустройство СО – предимно производствена.
• Равен терен, лесен за проектиране и застрояване.
Подходящ за изграждане на производствена база, склад, логистичен парк или инвестиционен проект.
Строителни показатели:
• Плътност на застрояване - 30%
• Коефициент на интензивност (КИНТ) - 1.2
• Мин. озеленяване - 40%
• Перфектна достъпност
Имотът е леснодостъпен с автомобил, включително и тежкотоварен транспорт, благодарение на широката улица и близостта до основни пътни артерии. Районът се развива динамично, с растящ интерес от страна на инвеститори, предприемачи и логистични компании.
Защо да инвестирате тук?
• Голям, равен парцел в град София с такава площ и достъп.
• Утвърден индустриален и смесен район с развита инфраструктура.
• Потенциал за разнообразно застрояване.
• Разположен между активни бизнеси и с отлична видимост.
Оглед на имота
Можем да организираме оглед на имота спрямо нашия график и възможностите за достъп до него. Заявете вашето желание за оглед, като се свържете с отговорния за офертата брокер по имейл или телефон.
Резервация на имота
Имотът може да бъде резервиран и свален от продажба със заплащане на депозит, след което се прекратява провеждането на огледи с други купувачи и започва подготовка на документите за сключване на предварителен и окончателен договор. Свържете се с отговорния брокер за подробна информация относно процедурата на покупка и начините за плащане.
Жилищен кредит
Ние си партнираме с водещите български банки и можем да ви свържем с техните консултанти за информация и кандидатстване за кредит.
Характеристики на имота
Тип на имота
Промишлен парцел, Парцел за инвестиция
Реф. номер
Sfa 87751
Площ
5935.00 м2
Състояние
отлично
Двор
не
Още информация за Просторен инвестиционен парцел с лице на улица в кв. Суходол:
План на имота
Качество на въздуха
Снимки от въздуха
Общ план
360° изглед
Инфо пакет
Референтен номер: Sfa 87751
Местоположение
гр. София, кв."Суходол"Удобства в района
- Автобусна спирка "ОКОЛОВРЪСТЕН ПЪТ" на 24 м. (1 мин.) - Автобус No: 56
- Детска градина "9 ЦДГ Пламъче" на 471 м. (6 мин.)
- Училище "72 ОУ Христо Ботев" на 527 м. (7 мин.)
- Супермаркет "Фамоза" на 222 м. (3 мин.)
- Поща/Куриер "ПТТС София 62-1362" на 283 м. (4 мин.)
- Ветеринарен лекар на 146 м. (2 мин.)
- Ресторант "Чорбаджийска среща" на 451 м. (6 мин.)
- Ресторант "Златна скара" на 804 м. (10 мин.)
- Бар "Club 303" на 1.2 км. (15 мин.)
- Плувен басейн на 811 м. (10 мин.)
- Парк на 621 м. (8 мин.)
- Паркинг на 1.1 км. (13 мин.)
- Бензиностанция "Pegas" на 498 м. (6 мин.)
- Зарядна станция "Електромобили Вг" на 127 м. (2 мин.)
- Църква "Св. Георги" на 683 м. (9 мин.)
ТРАНСПОРТ
УЧЕБНИ ЗАВЕДЕНИЯ
ПАЗАРУВАНЕ
УСЛУГИ
ЗАВЕДЕНИЯ
СПОРТ И СВОБОДНО ВРЕМЕ
ПРИРОДА И ЗАБЕЛЕЖИТЕЛНОСТИ
АВТОМОБИЛНИ УСЛУГИ
ОБЩЕСТВЕНИ СГРАДИ И ИНСТИТУЦИИ
Изпратете запитване
474 960 €
(928 941,02 лв.)
- €
- $
- £
За частни лица
Дължима комисиона
*/ ?>
ЗА ПОВЕЧЕ ИНФОРМАЦИЯ
Реф. номер: Sfa 87751
При обаждане, моля цитирайте референтния номер на имота.
Изпратете запитване
Още имоти в кв. Суходол
Продажба
ново
Парцел за инвестиция в месност Манилов дол-Суходол
гр. София , кв. "Суходол"
Земя с одобрен ПУП, подходяща за строеж на хотел и ресторант
Парцел за инвестиция в месност Манилов дол-Суходол - Земя с одобрен ПУП, подходяща за строеж на хотел и ресторант
Продажба
Функционален етаж от къща с двор и гараж в кв. Суходол
гр. София , кв. "Суходол"
Частично обзаведен имот с удобен излаз на ул. Околовръстен път
Функционален етаж от къща с двор и гараж в кв. Суходол - Частично обзаведен имот с удобен излаз на ул. Околовръстен път
Продажба
За частни лица
Парцел с възможност за обединение със съседни имоти в строителните граници на София
гр. София , кв. "Суходол"
Парцел на ул. Суходолска с потенциал за строителство и лице на асфалтов път до действащи предприятия
Парцел с възможност за обединение със съседни имоти в строителните граници на София - Парцел на ул. Суходолска с потенциал за строителство и лице на асфалтов път до действащи предприятия
Продажба
Парцел с лице на магистрала Струма
гр. София , кв. "Суходол"
Голям парцел в местността „Шаварна бара“
Парцел с лице на магистрала Струма - Голям парцел в местността „Шаварна бара“
Още имоти в гр. София
Продажба
ЕксклузивноХит
Central Park - 7 сгради с 12 дка парк. Сгради А, Б и В получиха АКТ 16!
гр. София , кв. "Банишора"
Уникален комплекс, пресъздаващ стила и атмосферата на едноименния парк в Ню Йорк. Най-продаван комплекс за 2022, 2023, 2024 и 2025 г.!
Central Park - 7 сгради с 12 дка парк. Сгради А, Б и В получиха АКТ 16! - Уникален комплекс, пресъздаващ стила и атмосферата на едноименния парк в Ню Йорк. Най-продаван комплекс за 2022, 2023, 2024 и 2025 г.!
от 185 874 €(от 363 537,95 лв.)
(2 200 €/м2 - 2 800 €/м2)(4 302,83 лв./м2 - 5 476,32 лв./м2)Площ: 71.49 - 187.57 м2
инж. Иван Крумов
Старши брокер, София
Продажба
Ексклузивно
Имот на седмицата
Лукс
SKY TOWERS by AMur — новият архитектурен символ на София
гр. София , кв. "Манастирски ливади"
Луксозен комплекс с панорамни гледки, топ локация и впечатляващ силует разположен между градската динамика и планината
SKY TOWERS by AMur — новият архитектурен символ на София - Луксозен комплекс с панорамни гледки, топ локация и впечатляващ силует разположен между градската динамика и планината
от 223 992 €(от 438 090,27 лв.)
(3 252 €/м2 - 5 688 €/м2)(6 360,36 лв./м2 - 11 124,76 лв./м2)Площ: 62.22 - 365.76 м2
Магдалена Тошева
Старши брокер, София
Продажба
Ексклузивно
Лукс
219 DONDUKOV – премиум сграда в тих квартал на метри от идеалния център на София
гр. София , кв. "Хаджи Димитър"
Апартаменти в сграда с отлично качество, енергийна независимост и модерна архитектура с мисъл за пълноценното използане на пространствата
219 DONDUKOV – премиум сграда в тих квартал на метри от идеалния център на София - Апартаменти в сграда с отлично качество, енергийна независимост и модерна архитектура с мисъл за пълноценното използане на пространствата
от 167 932 €(от 328 446,44 лв.)
(2 580 €/м2 - 2 760 €/м2)(5 046,04 лв./м2 - 5 398,09 лв./м2)Площ: 65.09 - 148.19 м2
Николай Попов
Старши брокер, София
Продажба
Ексклузивно
Лукс
SYNERA Residence - най-новият комплекс в кв. Манастирски ливади - Изток
гр. София , кв. "Манастирски ливади"
Жилищен проект, създаден за модерен градски живот
SYNERA Residence - най-новият комплекс в кв. Манастирски ливади - Изток - Жилищен проект, създаден за модерен градски живот
от 125 000 €(от 244 478,75 лв.)
(2 396 €/м2 - 3 211 €/м2)(4 686,17 лв./м2 - 6 280,17 лв./м2)Площ: 52.17 - 208.03 м2
инж. Даниела Тотева
Старши брокер, София
Продажба
Ексклузивно
Лукс
Нов ексклузивен жилищен проект в София – Corner Park, кв. Сухата река
гр. София , кв. "Сухата река"
Съвременен дизайн, отлична локация и гъвкави схеми на плащане
Нов ексклузивен жилищен проект в София – Corner Park, кв. Сухата река - Съвременен дизайн, отлична локация и гъвкави схеми на плащане
от 98 538 €(от 192 723,58 лв.)
(1 850 €/м2 - 2 500 €/м2)(3 618,29 лв./м2 - 4 889,58 лв./м2)Площ: 44.79 - 249.28 м2
Иван Каменов
Брокер, София
Продажба
Ексклузивно
Стилен нов проект в Малинова долина – модерно жилище в приятна жилищна зона
гр. София , кв. "Малинова долина"
Съвременен комфорт и инвестиционна сигурност в сърцето на Малинова долина
Стилен нов проект в Малинова долина – модерно жилище в приятна жилищна зона - Съвременен комфорт и инвестиционна сигурност в сърцето на Малинова долина
от 134 500 €(от 263 059,14 лв.)
(1 683 €/м2 - 2 200 €/м2)(3 291,66 лв./м2 - 4 302,83 лв./м2)Площ: 67.03 - 143.95 м2
Магдалена Цоклинова
Старши брокер, София
Продажба
ЕксклузивноХит
Надземни гаражи в нова сграда топ локация близо до НСА
гр. София , кв. "Малинова долина"
Последни гаражи в нова сграда с Акт 14 в кв. Малинова долина
Надземни гаражи в нова сграда топ локация близо до НСА - Последни гаражи в нова сграда с Акт 14 в кв. Малинова долина
Продажба
За частни лица
Малка бутикова сграда в близост до София
с. Владая
Сграда с 12 апартамента сред зеленината и спокойствеито на село Владая
Малка бутикова сграда в близост до София - Сграда с 12 апартамента сред зеленината и спокойствеито на село Владая
от 102 573 €(от 200 615,35 лв.)
(1 750 €/м2 - 1 900 €/м2)(3 422,70 лв./м2 - 3 716,08 лв./м2)Площ: 53.99 - 92.92 м2
Николай Попов
Старши брокер, София
Продажба
Ексклузивно За частни лица
Луксозен комплекс от две сгради Green View Apartments в кв. Княжево - пред АКТ 16
гр. София , кв. "Княжево"
Двустайни и тристайни апартаменти висококачествено строителство
Луксозен комплекс от две сгради Green View Apartments в кв. Княжево - пред АКТ 16 - Двустайни и тристайни апартаменти висококачествено строителство
от 174 000 €(от 340 314,42 лв.)
(2 098 €/м2 - 3 248 €/м2)(4 103,33 лв./м2 - 6 352,54 лв./м2)Площ: 68.07 - 268.82 м2
Иванка Стойкова
Старши брокер / Мениджър на офис, Бъкстон
Продажба
За частни лица
Жилища с централна локация на бул. Сливница с Акт 14
гр. София , кв. "Център"
Апартаменти с 1, 2 или 3 спални в луксозна 9-етажна сграда
Жилища с централна локация на бул. Сливница с Акт 14 - Апартаменти с 1, 2 или 3 спални в луксозна 9-етажна сграда
от 167 664 €(от 327 922,28 лв.)
(2 450 €/м2 - 2 800 €/м2)(4 791,78 лв./м2 - 5 476,32 лв./м2)Площ: 59.88 - 170.01 м2
Иванка Стойкова
Старши брокер / Мениджър на офис, Бъкстон
Продажба
Лукс
Reina Sofia Residence - висок клас сграда енергиен клас А близо до Зоопарк София и Ловен парк
гр. София , кв. "Кръстова вада"
Последни магазини и апартаменти с 2 спални в комплекс със зелени площи и получен Акт 16
Reina Sofia Residence - висок клас сграда енергиен клас А близо до Зоопарк София и Ловен парк - Последни магазини и апартаменти с 2 спални в комплекс със зелени площи и получен Акт 16
от 341 000 €(от 666 938,03 лв.)
(2 883 €/м2 - 3 552 €/м2)(5 638,66 лв./м2 - 6 947,11 лв./м2)Площ: 118.26 - 122.45 м2
Магдалена Тошева
Старши брокер, София
Продажба
За частни лица
Нова сграда със само 16 апартамента в кв. Манастирски ливади – изток
гр. София , кв. "Манастирски ливади"
Апартаменти с 2 или 3 спални в близост до Витоша и с удобни връзки с центъра на столицата
Нова сграда със само 16 апартамента в кв. Манастирски ливади – изток - Апартаменти с 2 или 3 спални в близост до Витоша и с удобни връзки с центъра на столицата
от 234 253 €(от 458 159,04 лв.)
(2 045 €/м2)(3 999,99 лв./м2)Площ: 114.54 - 201.08 м2
Иванка Стойкова
Старши брокер / Мениджър на офис, Бъкстон
Продажба
За частни лица
Жилищна сграда с две секции до Национална Спортна Академия
гр. София , кв. "Малинова долина"
Нови апартаменти с отлична локация в полите на Витоша
Жилищна сграда с две секции до Национална Спортна Академия - Нови апартаменти с отлична локация в полите на Витоша
от 120 395 €(от 235 472,15 лв.)
(2 350 €/м2 - 2 560 €/м2)(4 596,20 лв./м2 - 5 006,92 лв./м2)Площ: 49.75 - 160.33 м2
Иванка Стойкова
Старши брокер / Мениджър на офис, Бъкстон
Продажба
ЕксклузивноХит
Нов жилищен проект в кв. Малинова долина с Акт 14
гр. София , кв. "Малинова долина"
Последни апартаменти с удобна локация в нова сграда качествено строителство
Нов жилищен проект в кв. Малинова долина с Акт 14 - Последни апартаменти с удобна локация в нова сграда качествено строителство
от 310 000 €(от 606 307,30 лв.)
(1 863 €/м2 - 2 042 €/м2)(3 643,71 лв./м2 - 3 993,80 лв./м2)Площ: 151.80 - 191.62 м2
Магдалена Цоклинова
Старши брокер, София
Продажба
ЕксклузивноХит
Vitosha View – емблематичен комплекс в кв. Кръстова вада
гр. София , кв. "Кръстова вада"
Последни налични жилища в най-новите сгради!
Vitosha View – емблематичен комплекс в кв. Кръстова вада - Последни налични жилища в най-новите сгради!
от 429 000 €(от 839 051,07 лв.)
(2 618 €/м2)(5 119,60 лв./м2)Площ: 163.89 - 163.89 м2
Магдалена Тошева
Старши брокер, София
Продажба
За частни лица
Нови жилища до Бизнес Парк София и метро
гр. София , кв. "Младост 4"
Апартаменти с 1, 2 и 3 спални в нов комплекс с отлична локация в кв. Младост 4
Нови жилища до Бизнес Парк София и метро - Апартаменти с 1, 2 и 3 спални в нов комплекс с отлична локация в кв. Младост 4
от 210 330 €(от 411 369,72 лв.)
(2 250 €/м2 - 2 705 €/м2)(4 400,62 лв./м2 - 5 290,52 лв./м2)Площ: 87.80 - 202.38 м2
Николай Попов
Старши брокер, София
Наем
ново
Покрито външно паркомясто под наем до Garitage Park и Coca-Cola
гр. София , кв. "Младост 4"
Отлична локация, удобно и сигурно място за вашия автомобил
Покрито външно паркомясто под наем до Garitage Park и Coca-Cola - Отлична локация, удобно и сигурно място за вашия автомобил
Продажба
ново
За частни лица
Лукс
Тристаен апартамент с изложение Изток–Запад и огромен хол
гр. София , кв. "Малинова долина"
Апартамент с 2 спални, 2 бани, 2 балкона и голям хол
Тристаен апартамент с изложение Изток–Запад и огромен хол - Апартамент с 2 спални, 2 бани, 2 балкона и голям хол
Продажба
ново
Нова сграда в близост до парк и езеро в кв. Дружба 1
гр. София , кв. "Дружба 1"
Комфортни жилища с пешеходен достъп до метростанция, болница, училище
Нова сграда в близост до парк и езеро в кв. Дружба 1 - Комфортни жилища с пешеходен достъп до метростанция, болница, училище
от 216 552 €(от 423 538,90 лв.)
(1 878 €/м2 - 1 980 €/м2)(3 673,05 лв./м2 - 3 872,54 лв./м2)Площ: 109.37 - 172.57 м2
Николай Попов
Старши брокер, София
Наем
ново
Готов за нанасяне двустаен апартамент в кв. Хладилника
гр. София , кв. "Хладилника"
Апартамент под наем на минути пеша от метростанция Витоша, парк и търговски център
Готов за нанасяне двустаен апартамент в кв. Хладилника - Апартамент под наем на минути пеша от метростанция Витоша, парк и търговски център
Продажба
ново
Парцел с модулна къща и бърз достъп до АМ „Тракия“
с. Нови хан
Парцел с одобрен проект за модулна къща до Нови Хан
Парцел с модулна къща и бърз достъп до АМ „Тракия“ - Парцел с одобрен проект за модулна къща до Нови Хан
Продажба
ново
За частни лица
Новострояща се сграда в тихата част на кв. Овча купел
гр. София , кв. "Овча купел"
Просторни жилища близо до Нов Български университет, метростанция, ул. Монтевидео и Околовръстен път
Новострояща се сграда в тихата част на кв. Овча купел - Просторни жилища близо до Нов Български университет, метростанция, ул. Монтевидео и Околовръстен път
от 142 640 €(от 278 979,59 лв.)
(2 013 €/м2 - 2 031 €/м2)(3 937,09 лв./м2 - 3 972,29 лв./м2)Площ: 70.46 - 140.34 м2
Николай Попов
Старши брокер, София
Наем
ново
изгодно
За частни лица
Студио под наем в кв. Витоша
гр. София , кв. "Витоша"
Модерно обзаведен едностаен апартамент в затворен комплекс
Студио под наем в кв. Витоша - Модерно обзаведен едностаен апартамент в затворен комплекс
Продажба
ново
За частни лица
Новострояща се жилищна сграда в кв. Зона Б-19
гр. София , кв. "Зона Б-19"
Модерен градски дом до парк и възлови булеварди
Новострояща се жилищна сграда в кв. Зона Б-19 - Модерен градски дом до парк и възлови булеварди
от 115 198 €(от 225 307,70 лв.)
(2 022 €/м2)(3 954,85 лв./м2)Площ: 56.97 - 133.60 м2
Иванка Стойкова
Старши брокер / Мениджър на офис, Бъкстон
Продажба
ново
За частни лица
Пететажна жилищна сграда на 500 м от Нов Български Университет
гр. София , кв. "Овча купел"
Нови апартаменти със спокойна и сигурна жилищна среда близо до парк, детски градини, училища, магазини
Пететажна жилищна сграда на 500 м от Нов Български Университет - Нови апартаменти със спокойна и сигурна жилищна среда близо до парк, детски градини, училища, магазини
от 270 000 €(от 528 074,10 лв.)
(2 037 €/м2)(3 984,26 лв./м2)Площ: 132.54 - 132.54 м2
Николай Попов
Старши брокер, София
Вижте още имоти на ул. Суходолска:
- Промишлени парцели на ул. Суходолска
- Апартаменти (различни типове) на ул. Суходолска
- Къщи на ул. Суходолска
- Офиси на ул. Суходолска
- Магазини на ул. Суходолска
- Земи на ул. Суходолска
- Всички имоти на ул. Суходолска
Вижте още имоти в кв. "Суходол" в град София:
- Промишлени парцели в кв. "Суходол"
- Апартаменти (различни типове) в кв. "Суходол"
- Къщи в кв. "Суходол"
- Офиси в кв. "Суходол"
- Магазини в кв. "Суходол"
- Земи в кв. "Суходол"
- Всички имоти в кв. "Суходол"
Вижте още имоти в град София:
Абонирайте се за нашия канал