Просторна къща с дворно място и гараж в полите на Витоша. Имотът е част от затворен комплекс с редови къщи, разположен на удобна и предпочитана за живеене локация в полите на Витоша в близост до ул. „Панорамен път“, като умело съчетава характеристиките на градската къща и хармоничния начин на живот сред природа, чист въздух и спокойствие.
Къщата е ситуирана в югозападната част на имота, проектирана с южен двор, 2 надземни жилищни етажа и 1 сутеренно ниво с гараж за паркиране на 2 автомобила и техническо помещение.
Очакван Акт 16 през декември 2023 г.
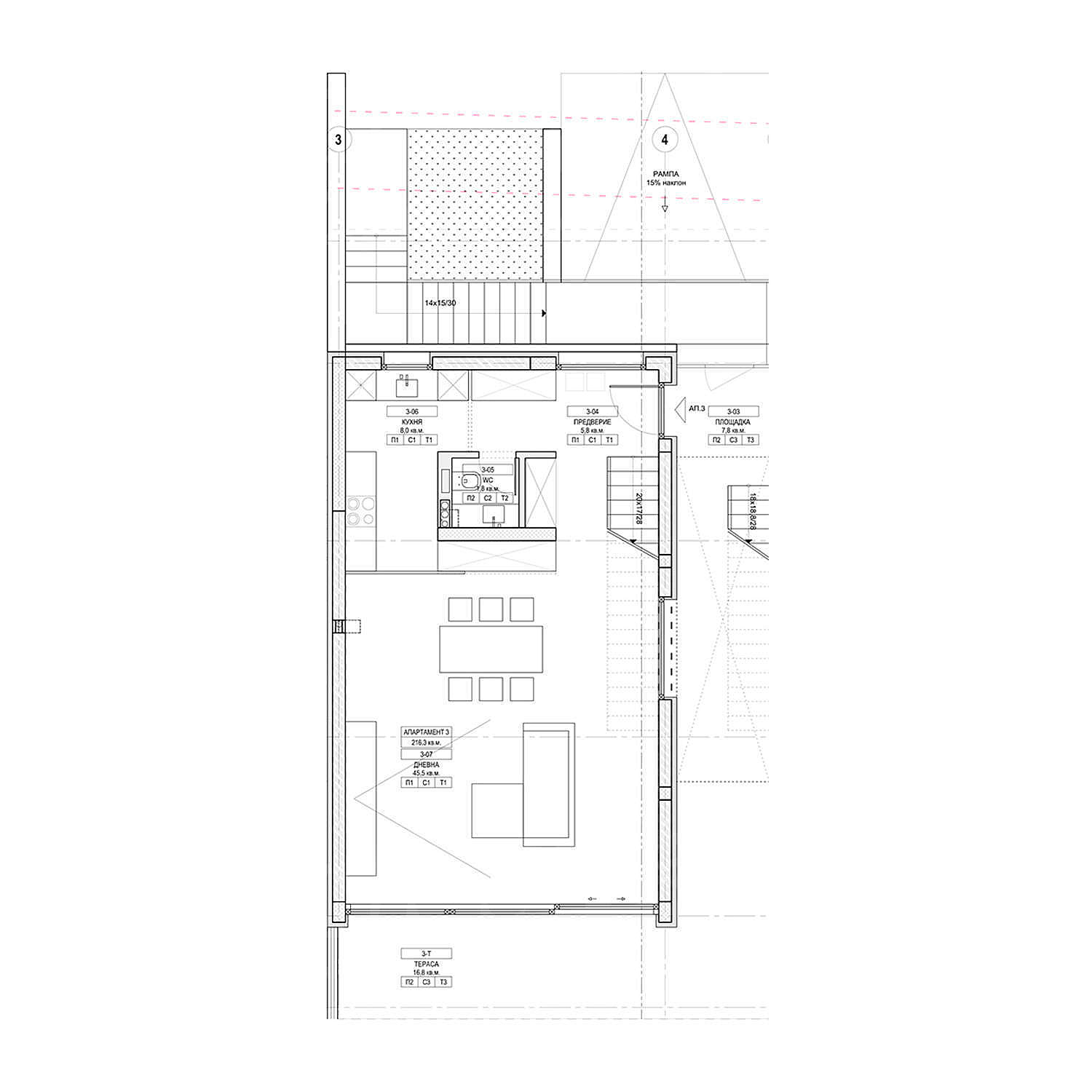
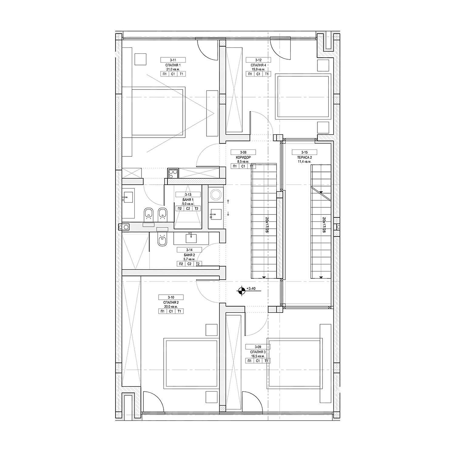
Къща 3 е редовата къща, ситуирана в югозападната част на имота. Къщата е проектирана с южен двор, 2 надземни жилищни етажа и 1 сутеренно ниво с гараж за паркиране на 2 автомобила и техническо помещение.
Разпределение:
• СУТЕРЕН със светла височина 2.50 м. е разположен гараж за 2 автомобила и техническо помещение с обща застроена площ 96.3 кв.м.
• ЕТАЖ 1 с височина от 3.10 м. между котата на готовия под и тавана са разположени преддверие, просторна дневна с трапезария, кухня със сервизно помещение и санитарен възел. Застроена площ на първо ниво е 84.6 кв. м. Всички стъклени конструкции са тип френски прозорци, които обхващат пространството от пода до тавана. Верандата с площ 16.8 кв. м. е ситуирана от юг и изток пред дневната с директен излаз към прилежащ двор с площ от 39.4 кв. м.
• ЕТАЖ 2 Вътрешно стълбище отвежда към второто ниво на къщата. На второ ниво височина между котата на готовия под и таван е 2.90 м. и са разположени 4 спални, сервизно помещение, помощно помещение за съхранение и 2 отделни бани със санитарен възел. Застроена площ на това ниво е 131.7 кв.м. И на това ниво всички стъклени конструкции са френски прозорци, които обхващат пространството от пода до тавана.
• ПОКРИВНА ТЕРАСА - Предвидена е допълнителна вертикалната комуникация в къщата по външно стълбище с излаз на покривна тераса. Покривът е от плосък тип с площ от 131.7 кв. м., завършен с висок клас топло- и хидроизолационни материали, с възможност за завършване като покривна тераса с дек или плочи върху конструкция и разкриващ прекрасни панорамни гледки.
За допълнително уединение на обитателите на къщата е предвиден и втори външен достъп до верандата и дворното пространство посредством успореден на къщата проход.
Предимства на имота:
• Впечатляваща модерна архитектура.
• Красиви панорамни гледки към града и планината.
• Просторна трапезария с веранда и дворно пространство.
• Функционални разпределения.
• Гараж за 2 автомобила или 2 паркоместа към всяка къща.
• Предпочитана локация до ул. Панорамен път.
• Бърз достъп до центъра на града.
• 700 м. надморска височина с чист планински въздух.
• Стратегическа локация - до големи хипермаркети, търговски център, детски градини, училища, главни пътни артерии, туристически маршрути и забележителности, ресторанти, банкови институции, болници, спортни и развлекателни центрове и др.
Оглед на имота
Можем да организираме оглед на имота в удобно за вас време. За целта, свържете се с отговорния за офертата брокер и му кажете кога бихте искали да направите оглед.
Резервация на имота
Имотът може да бъде резервиран и свален от продажба със заплащане на депозит, след което се прекратява провеждането на огледи с други купувачи и започва подготовка на документите за сключване на предварителен и окончателен договор. Свържете се с отговорния брокер за този имот за подробна информация относно процедурата на покупка и начините за плащане.
Допълнителни услуги и следпродажбено обслужване
Ние сме реномирана компания и ще бъдем с вас не само по време на покупката, но и след това, осигурявайки ви допълнителни услуги по ваше изискване с цел пълноценно и безпроблемно ползване на новозакупения имот. Услугите, които можем да предложим, включват застраховка на движимо и недвижимо имущество, застраховка живот, медицинско и автомобилно застраховане, строителни и ремонтни дейности, обзавеждане, юридически и счетоводни услуги и др.
Характеристики на имота
Тип на имота
Къща, Редова къща
Реф. номер
Sfa 82636
Площ
312.60 м2
Спални
4
Състояние
БДС (на шпакловка и замазка)
Брой етажи
3
Обзавеждане
Необзаведен
Отопление
Електрически уреди / Парно на газ / Термопомпа
Тип строителство
Стоманобетонна конструкция, Тухла
Двор
60 м2
Година на построяване
2023
Изложение:
Север, Юг
Още информация за Просторна къща в затворен комплекс в полите на Витоша:
План на имота
Планове
Качество на въздуха
Характеристика на комплекса
Свалете брошура
Снимки от въздуха
Общ план
360° изглед
Инфо пакет
Референтен номер: Sfa 82636
Местоположение
гр. София, кв."Бояна"Удобства в района
- Автобусна спирка "В.З. БЕЛОВОДСКИ ПЪТ - ПО ЖЕЛАНИЕ" на 651 м. (8 мин.) - Автобус No: 63
- Трамвайна спирка "УЛ. РАЙСКА ГРАДИНА" на 557 м. (7 мин.) - Трамвай No: 5, 11
- Детска градина "ЧДГ Камелини Монтесори" на 400 м. (5 мин.)
- Детска градина "Uvekind" на 731 м. (9 мин.)
- Училище "Частно Основно Училище "Света София"" на 256 м. (4 мин.)
- Училище "Проф. Димитър Кацаров" на 578 м. (7 мин.)
- Университет "ХТМУ Технологичен колеж" на 1.2 км. (15 мин.)
- Болница "Детско-юношеска психиатрична клиника" на 662 м. (8 мин.)
- Медицински център "Детско-юношеска психиатрична клиника" на 775 м. (10 мин.)
- Хранителен магазин на 688 м. (9 мин.)
- Супермаркет "Billa" на 573 м. (7 мин.)
- Супермаркет "Lidl" на 703 м. (9 мин.)
- Зоо магазин "Zoo Center" на 614 м. (8 мин.)
- Банка "Централна Кооперативна Банка" на 651 м. (8 мин.)
- Аптека на 662 м. (8 мин.)
- Поща/Куриер "ПТТС София 19-1619" на 569 м. (7 мин.)
- Поща/Куриер "Еконт" на 616 м. (8 мин.)
- Фризьорски салон "Aladdin" на 728 м. (9 мин.)
- Ветеринарен лекар "Ветеринарен център Бояна" на 804 м. (10 мин.)
- Ресторант "Ресторант-градина Княжево" на 590 м. (8 мин.)
- Ресторант "Capella Play" на 615 м. (8 мин.)
- Кафене "Julie's" на 1.1 км. (14 мин.)
- Детска площадка "Баницатъ" на 724 м. (9 мин.)
- Фитнес зала "Next Level" на 600 м. (8 мин.)
- Плувен басейн на 497 м. (6 мин.)
- Тенис корт на 595 м. (8 мин.)
- Парк "Райска градина" на 541 м. (7 мин.)
- Паркинг на 571 м. (7 мин.)
- Автомивка на 1.2 км. (14 мин.)
- Автосервиз "Тони 2014" на 544 м. (7 мин.)
- Църква "Св. Пророк Илия" на 622 м. (8 мин.)
ТРАНСПОРТ
УЧЕБНИ ЗАВЕДЕНИЯ
ЛЕЧЕБНИ ЗАВЕДЕНИЯ
ПАЗАРУВАНЕ
УСЛУГИ
ЗАВЕДЕНИЯ
СПОРТ И СВОБОДНО ВРЕМЕ
ПРИРОДА И ЗАБЕЛЕЖИТЕЛНОСТИ
АВТОМОБИЛНИ УСЛУГИ
ОБЩЕСТВЕНИ СГРАДИ И ИНСТИТУЦИИ
Изпратете запитване
Тази оферта е невалидна
Моля свържете се с нас, за да ви предложим други оферти, които отговарят на вашите изисквания.
Тази оферта е невалидна
Моля свържете се с нас, за да ви предложим други оферти, които отговарят на вашите изисквания.
*/ ?>
ЗА ПОВЕЧЕ ИНФОРМАЦИЯ
Реф. номер: Sfa 82636
При обаждане, моля цитирайте референтния номер на имота.
Изпратете запитване
Още имоти в кв. Бояна
Наем
ново
Лукс
Луксозен двустаен апартамент в Бояна с впечатляваща панорамна гледка към Витоша
гр. София , кв. "Бояна"
Простор, стил и тишина – дом, който ще ви накара да се влюбите още от първия поглед
Луксозен двустаен апартамент в Бояна с впечатляваща панорамна гледка към Витоша - Простор, стил и тишина – дом, който ще ви накара да се влюбите още от първия поглед
Наем
ново
Стилен и светъл двустаен апартамент под наем с южно изложение в кв. Бояна
гр. София , кв. "Бояна"
Напълно обзаведен и оборудван апартамент в един от най престижните квартали на София
Стилен и светъл двустаен апартамент под наем с южно изложение в кв. Бояна - Напълно обзаведен и оборудван апартамент в един от най престижните квартали на София
Наем
ново
Лукс
Елегантен двустаен апартамент в Бояна с джакузи и вътрешен двор
гр. София , кв. "Бояна"
Модерен, уютен и изключително комфортен дом в престижна и тиха среда
Елегантен двустаен апартамент в Бояна с джакузи и вътрешен двор - Модерен, уютен и изключително комфортен дом в престижна и тиха среда
Продажба
ново
За частни лица
Тристаен апартамент с паркомясто в нова сграда с Акт 14 в кв. Бояна
гр. София , кв. "Бояна"
Жилище с две спални и четири тераси в малка бутикова сграда
Тристаен апартамент с паркомясто в нова сграда с Акт 14 в кв. Бояна - Жилище с две спални и четири тераси в малка бутикова сграда
Продажба
Лукс
Четиристаен апартамент в нова луксозна сграда в кв. Бояна
гр. София , кв. "Бояна"
Просторен апартамент с гледки към София и Витоша
Четиристаен апартамент в нова луксозна сграда в кв. Бояна - Просторен апартамент с гледки към София и Витоша
Продажба
изгодно
За частни лица
Просторен петстаен апартамент с двор и паркомясто в кв. Бояна
гр. София , кв. "Бояна"
Ново жилище с три спални, кабинет и югозападно изложение в малка бутикова сграда
Просторен петстаен апартамент с двор и паркомясто в кв. Бояна - Ново жилище с три спални, кабинет и югозападно изложение в малка бутикова сграда
Продажба
Лукс
Бутикова жилищна сграда в полите на Витоша – елегантност, светлина и високи стандарти
гр. София , кв. "Бояна"
Луксозно жилищно пространство сред природа, тишина и престиж
Бутикова жилищна сграда в полите на Витоша – елегантност, светлина и високи стандарти - Луксозно жилищно пространство сред природа, тишина и престиж
от 276 140 €(от 540 082,90 лв.)
(2 972 €/м2 - 3 713 €/м2)(5 812,73 лв./м2 - 7 262 лв./м2)Площ: 74.38 - 245.29 м2
инж. Даниела Тотева
Старши брокер, София
Продажба
Лукс
Двуетажна еко къща с двор в кв. Бояна
гр. София , кв. "Бояна"
Изключителен имот с гараж, паркоместа и луксозни мебели и оборудване
Двуетажна еко къща с двор в кв. Бояна - Изключителен имот с гараж, паркоместа и луксозни мебели и оборудване
Продажба
За частни лица
Жилище в затворен комплекс близо до Резиденция „Бояна“
гр. София , кв. "Бояна"
Последен апартамент с три спални пред Акт 15 в предпочитан район в полите на Витоша
Жилище в затворен комплекс близо до Резиденция „Бояна“ - Последен апартамент с три спални пред Акт 15 в предпочитан район в полите на Витоша
от 524 700 €(от 1 026 224 лв.)
(3 364 €/м2)(6 580,05 лв./м2)Площ: 155.96 - 155.96 м2
Иванка Стойкова
Старши брокер / Мениджър на офис, Бъкстон
Още имоти в гр. София
Продажба
ЕксклузивноХит
Central Park - 7 сгради с 12 дка парк. Сгради А, Б и В са с АКТ 16, а Е и Ж - с АКТ 14!
гр. София , кв. "Банишора"
Уникален комплекс, пресъздаващ стила и атмосферата на едноименния парк в Ню Йорк. Най-продаван комплекс за 2022, 2023, 2024 и 2025 г.!
Central Park - 7 сгради с 12 дка парк. Сгради А, Б и В са с АКТ 16, а Е и Ж - с АКТ 14! - Уникален комплекс, пресъздаващ стила и атмосферата на едноименния парк в Ню Йорк. Най-продаван комплекс за 2022, 2023, 2024 и 2025 г.!
от 185 874 €(от 363 537,95 лв.)
(2 200 €/м2 - 2 800 €/м2)(4 302,83 лв./м2 - 5 476,32 лв./м2)Площ: 71.49 - 187.57 м2
инж. Иван Крумов
Старши брокер, София
Продажба
ЕксклузивноХит
Лукс
SKY TOWERS by AMur — новият архитектурен символ на София
гр. София , кв. "Манастирски ливади"
Луксозен комплекс с панорамни гледки, топ локация и впечатляващ силует разположен между градската динамика и планината
SKY TOWERS by AMur — новият архитектурен символ на София - Луксозен комплекс с панорамни гледки, топ локация и впечатляващ силует разположен между градската динамика и планината
от 244 894 €(от 478 971,03 лв.)
(3 360 €/м2 - 5 688 €/м2)(6 571,59 лв./м2 - 11 124,76 лв./м2)Площ: 65.38 - 314.59 м2
Магдалена Тошева
Старши брокер, София
Продажба
Ексклузивно
Имот на седмицата
Лукс
SYNERA Residence - най-новият комплекс в кв. Манастирски ливади - Изток
гр. София , кв. "Манастирски ливади"
Жилищен проект, създаден за модерен градски живот
SYNERA Residence - най-новият комплекс в кв. Манастирски ливади - Изток - Жилищен проект, създаден за модерен градски живот
от 130 000 €(от 254 257,90 лв.)
(2 492 €/м2 - 3 382 €/м2)(4 873,93 лв./м2 - 6 614,62 лв./м2)Площ: 52.17 - 152.08 м2
инж. Даниела Тотева
Старши брокер, София
Продажба
Ексклузивно
Нов ексклузивен жилищен проект в София – Corner Park, кв. Сухата река
гр. София , кв. "Сухата река"
Съвременен дизайн, отлична локация и гъвкави схеми на плащане
Нов ексклузивен жилищен проект в София – Corner Park, кв. Сухата река - Съвременен дизайн, отлична локация и гъвкави схеми на плащане
от 152 820 €(от 298 889,94 лв.)
(1 850 €/м2 - 2 500 €/м2)(3 618,29 лв./м2 - 4 889,58 лв./м2)Площ: 67.92 - 249.28 м2
Иван Каменов
Старши брокер, София
Продажба
Ексклузивно
Стилен нов проект в Малинова долина – модерно жилище в приятна жилищна зона
гр. София , кв. "Малинова долина"
Съвременен комфорт и инвестиционна сигурност в сърцето на Малинова долина
Стилен нов проект в Малинова долина – модерно жилище в приятна жилищна зона - Съвременен комфорт и инвестиционна сигурност в сърцето на Малинова долина
от 160 872 €(от 314 638,28 лв.)
(2 400 €/м2)(4 693,99 лв./м2)Площ: 67.03 - 143.95 м2
Магдалена Цоклинова
Старши брокер, София
Продажба
ЕксклузивноХит
Апартаменти и надземни гаражи в нова сграда близо до НСА
гр. София , кв. "Малинова долина"
Последни жилища в нова сграда с Акт 15 и топ локация в кв. Малинова долина
Апартаменти и надземни гаражи в нова сграда близо до НСА - Последни жилища в нова сграда с Акт 15 и топ локация в кв. Малинова долина
от 176 400 €(от 345 008,41 лв.)
(1 756 €/м2 - 2 500 €/м2)(3 434,44 лв./м2 - 4 889,58 лв./м2)Площ: 70.56 - 113.03 м2
Магдалена Цоклинова
Старши брокер, София
Продажба
За частни лица
Жилищна сграда с Акт 15 до Национална Спортна Академия
гр. София , кв. "Малинова долина"
Нови апартаменти с отлична локация в полите на Витоша
Жилищна сграда с Акт 15 до Национална Спортна Академия - Нови апартаменти с отлична локация в полите на Витоша
от 134 461 €(от 262 982,86 лв.)
(2 500 €/м2 - 3 000 €/м2)(4 889,58 лв./м2 - 5 867,49 лв./м2)Площ: 50.74 - 160.33 м2
Иванка Стойкова
Старши брокер / Мениджър на офис, Бъкстон
Продажба
За частни лица
Жилища с централна локация на бул. Сливница с Акт 14
гр. София , кв. "Център"
Апартаменти с 1, 2 или 3 спални в луксозна 9-етажна сграда
Жилища с централна локация на бул. Сливница с Акт 14 - Апартаменти с 1, 2 или 3 спални в луксозна 9-етажна сграда
от 133 656 €(от 261 408,41 лв.)
(2 550 €/м2 - 3 180 €/м2)(4 987,37 лв./м2 - 6 219,54 лв./м2)Площ: 42.03 - 170.01 м2
Иванка Стойкова
Старши брокер / Мениджър на офис, Бъкстон
Продажба
За частни лица
Нова сграда със само 16 апартамента в кв. Манастирски ливади – изток
гр. София , кв. "Манастирски ливади"
Апартаменти с 2 или 3 спални в близост до Витоша и с удобни връзки с центъра на столицата
Нова сграда със само 16 апартамента в кв. Манастирски ливади – изток - Апартаменти с 2 или 3 спални в близост до Витоша и с удобни връзки с центъра на столицата
от 302 386 €(от 591 415,61 лв.)
(2 640 €/м2)(5 163,40 лв./м2)Площ: 114.54 - 201.08 м2
Иванка Стойкова
Старши брокер / Мениджър на офис, Бъкстон
Продажба
Ексклузивно За частни лица
Луксозен комплекс от две сгради Green View Apartments в кв. Княжево - с АКТ 16
гр. София , кв. "Княжево"
Двустайни и тристайни апартаменти висококачествено строителство
Луксозен комплекс от две сгради Green View Apartments в кв. Княжево - с АКТ 16 - Двустайни и тристайни апартаменти висококачествено строителство
от 150 000 €(от 293 374,50 лв.)
(1 897 €/м2 - 3 400 €/м2)(3 710,21 лв./м2 - 6 649,82 лв./м2)Площ: 68.07 - 268.82 м2
Иванка Стойкова
Старши брокер / Мениджър на офис, Бъкстон
Продажба
ЕксклузивноХит
Vitosha View – емблематичен комплекс в кв. Кръстова вада
гр. София , кв. "Кръстова вада"
Последни налични жилища в най-новите сгради!
Vitosha View – емблематичен комплекс в кв. Кръстова вада - Последни налични жилища в най-новите сгради!
от 429 000 €(от 839 051,07 лв.)
(2 618 €/м2 - 2 715 €/м2)(5 120,36 лв./м2 - 5 310,08 лв./м2)Площ: 163.89 - 163.89 м2
Магдалена Тошева
Старши брокер, София
Продажба
Лукс
Reina Sofia Residence - висок клас сграда енергиен клас А близо до Зоопарк София и Ловен парк
гр. София , кв. "Кръстова вада"
Последни апартаменти в комплекс със зелени площи и получен Акт 16
Reina Sofia Residence - висок клас сграда енергиен клас А близо до Зоопарк София и Ловен парк - Последни апартаменти в комплекс със зелени площи и получен Акт 16
от 261 000 €(от 510 471,63 лв.)
(3 356 €/м2 - 4 189 €/м2)(6 563,77 лв./м2 - 8 192,97 лв./м2)Площ: 76.31 - 139.88 м2
Магдалена Тошева
Старши брокер, София
Продажба
ЕксклузивноХит
Нов жилищен проект в кв. Малинова долина с Акт 15
гр. София , кв. "Малинова долина"
Последни апартаменти с удобна локация в нова сграда качествено строителство
Нов жилищен проект в кв. Малинова долина с Акт 15 - Последни апартаменти с удобна локация в нова сграда качествено строителство
от 310 000 €(от 606 307,30 лв.)
(1 863 €/м2 - 2 042 €/м2)(3 643,71 лв./м2 - 3 993,80 лв./м2)Площ: 151.80 - 191.62 м2
Магдалена Цоклинова
Старши брокер, София
Продажба
За частни лица
Нови жилища до Бизнес Парк София и метро
гр. София , кв. "Младост 4"
Апартаменти с 1, 2 и 3 спални в нов комплекс с отлична локация в кв. Младост 4
Нови жилища до Бизнес Парк София и метро - Апартаменти с 1, 2 и 3 спални в нов комплекс с отлична локация в кв. Младост 4
от 219 678 €(от 429 652,82 лв.)
(2 350 €/м2 - 2 705 €/м2)(4 596,20 лв./м2 - 5 290,52 лв./м2)Площ: 87.80 - 202.38 м2
Николай Попов
Старши брокер, София
Продажба
ново
Просторен тристаен апартамент в кв. „Красна поляна 1“
гр. София , кв. "Красна поляна 1"
Обзаведен имот с отлична локация и функционално разпределение
Просторен тристаен апартамент в кв. „Красна поляна 1“ - Обзаведен имот с отлична локация и функционално разпределение
Продажба
ново
Ексклузивно
Жилищна сграда с Акт 14 и удобен достъп до парк „Света Троица” и метростанция „Константин Величков“
гр. София , кв. "Зона Б-5"
Последни апартаменти и офис, качество и комуникативна локация в столицата
Жилищна сграда с Акт 14 и удобен достъп до парк „Света Троица” и метростанция „Константин Величков“ - Последни апартаменти и офис, качество и комуникативна локация в столицата
от 183 000 €(от 357 916,89 лв.)
(2 134 €/м2 - 2 601 €/м2)(4 173,74 лв./м2 - 5 087,11 лв./м2)Площ: 70.35 - 176.29 м2
Даниел Тонев
Старши брокер, София
Продажба
ново
Лукс
Двустаен апартамент с Акт 16 на бул. Черни връх в кв. Кръстова вада
гр. София , кв. "Кръстова вада"
Модерно градско жилище в луксозния комплекс РУхаус II/ RUHouse II
Двустаен апартамент с Акт 16 на бул. Черни връх в кв. Кръстова вада - Модерно градско жилище в луксозния комплекс РУхаус II/ RUHouse II
Наем
ново
Лукс
Луксозен двустаен апартамент в Бояна с впечатляваща панорамна гледка към Витоша
гр. София , кв. "Бояна"
Простор, стил и тишина – дом, който ще ви накара да се влюбите още от първия поглед
Луксозен двустаен апартамент в Бояна с впечатляваща панорамна гледка към Витоша - Простор, стил и тишина – дом, който ще ви накара да се влюбите още от първия поглед
Продажба
ново
Тристаен апартамент в новострояща се сграда с Акт 14
гр. София , кв. "Зона Б-5"
Жилище в комуникативен централен район, в близост до метростанция „Константин Величков“ и парк „Света Троица“
Тристаен апартамент в новострояща се сграда с Акт 14 - Жилище в комуникативен централен район, в близост до метростанция „Константин Величков“ и парк „Света Троица“
Продажба
ново
Ексклузивно
Работещ бизнес имот с външен басейн
гр. Златица
Прекрасен имот с огромна площ, гарантиран доход
Работещ бизнес имот с външен басейн - Прекрасен имот с огромна площ, гарантиран доход
Наем
ново
Стилен и светъл двустаен апартамент под наем с южно изложение в кв. Бояна
гр. София , кв. "Бояна"
Напълно обзаведен и оборудван апартамент в един от най престижните квартали на София
Стилен и светъл двустаен апартамент под наем с южно изложение в кв. Бояна - Напълно обзаведен и оборудван апартамент в един от най престижните квартали на София
Продажба
ново
Югоизточен апартамент с една спалня в жк. Лагера
гр. София , кв. "Лагера"
Напълно обзаведен двустаен апартамент близо до метростанция Красно село и бул. Цар Борис III
Югоизточен апартамент с една спалня в жк. Лагера - Напълно обзаведен двустаен апартамент близо до метростанция Красно село и бул. Цар Борис III
Продажба
ново
Лукс
Слънчев мезонет с 3 спални и панорамна гледка към Витоша
гр. София , кв. "ПЗ Хладилника"
Просторен имот без довършителни работи в сграда с Акт 16 на ул. „Филип Кутев“
Слънчев мезонет с 3 спални и панорамна гледка към Витоша - Просторен имот без довършителни работи в сграда с Акт 16 на ул. „Филип Кутев“
Наем
ново
Лукс
Елегантен двустаен апартамент в Бояна с джакузи и вътрешен двор
гр. София , кв. "Бояна"
Модерен, уютен и изключително комфортен дом в престижна и тиха среда
Елегантен двустаен апартамент в Бояна с джакузи и вътрешен двор - Модерен, уютен и изключително комфортен дом в престижна и тиха среда
Продажба
ново
За частни лица
Елегантна жилищна сграда в централен столичен район
гр. София , кв. "Зона Б-19"
Функционални двустайни и тристайни апартаменти до ключ висок клас строителство с удобни транспортни връзки
Елегантна жилищна сграда в централен столичен район - Функционални двустайни и тристайни апартаменти до ключ висок клас строителство с удобни транспортни връзки
от 202 800 €(от 396 642,32 лв.)
(2 322 €/м2 - 2 675 €/м2)(4 541,44 лв./м2 - 5 231,85 лв./м2)Площ: 78.71 - 131.98 м2
Иванка Стойкова
Старши брокер / Мениджър на офис, Бъкстон
Вижте още имоти на пл. Капитан Петко войвода:
- Къщи на пл. Капитан Петко войвода
- Апартаменти (различни типове) на пл. Капитан Петко войвода
- Офиси на пл. Капитан Петко войвода
- Магазини на пл. Капитан Петко войвода
- Земи на пл. Капитан Петко войвода
- Всички имоти на пл. Капитан Петко войвода
Вижте още имоти в кв. "Бояна" в град София:
- Къщи в кв. "Бояна"
- Апартаменти (различни типове) в кв. "Бояна"
- Офиси в кв. "Бояна"
- Магазини в кв. "Бояна"
- Земи в кв. "Бояна"
- Всички имоти в кв. "Бояна"
Вижте още имоти в град София:
Абонирайте се за нашия канал